賃貸マンション
クレイスプリンシア池袋の賃貸物件情報(1K/10階)
| 家賃 | 管理費等 | 敷金 | 礼金 | 間取り | 専有面積 |
|---|---|---|---|---|---|
| 9万円 | 1万円 | 9万円 | 9万円 | 1K | 20.65m2 |
入居決定でお祝い金最大100,000円
- 保証金
- -
- 償却・敷引
- 9万円
- 築年数
- 築17年
- 所在階
- 10階
- 向き
- -
Point
まずはお問い合わせ!
不動産会社は街のプロ、あなたに合った物件がきっと見つかります。
提供:(株)アドバンスリビング(SUUMO経由)

詳細情報 クレイスプリンシア池袋
物件紹介
クレイスプリンシア池袋は東京メトロ有楽町線要町駅から徒歩7分にあり、駅近で通勤通学に便利なマンションです。
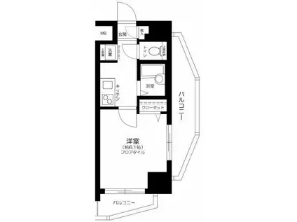
このお部屋は2階以上に位置しているので、通行人や周囲の住人からの視線が気になりにくく、防犯面でも安心。建物のエントランスはオートロックがついており、インターホンにはTVモニタもついているため、相手の顔を確認してから来客対応することができます。
人気の角部屋。周囲の居住者の生活音も気になりにくい場所です。キッチンはシステムキッチン仕様になっていますので、お料理好きの方にもぴったり。バス・トイレは別なので、のんびりお風呂タイムも楽しめるでしょう。また、雨の日でも浴室乾燥機を使えば、お洗濯も問題ありません。
建物にはエレベーターがついているので、重い荷物があっても安心。共用部には宅配ボックスが設定されているので、不在の時にも荷物を受け取ることができます。
このお部屋は2階以上に位置しているので、通行人や周囲の住人からの視線が気になりにくく、防犯面でも安心。建物のエントランスはオートロックがついており、インターホンにはTVモニタもついているため、相手の顔を確認してから来客対応することができます。
人気の角部屋。周囲の居住者の生活音も気になりにくい場所です。キッチンはシステムキッチン仕様になっていますので、お料理好きの方にもぴったり。バス・トイレは別なので、のんびりお風呂タイムも楽しめるでしょう。また、雨の日でも浴室乾燥機を使えば、お洗濯も問題ありません。
建物にはエレベーターがついているので、重い荷物があっても安心。共用部には宅配ボックスが設定されているので、不在の時にも荷物を受け取ることができます。
お金・契約の情報
※「-」と表示されているものは、実際は料金が発生するものもございます。詳細はお問い合わせください。
| 家賃 | 9万円 | 管理費・共益費 | 1万円 |
|---|---|---|---|
| 敷金 | 9万円 | 礼金 | 9万円 |
| 入居決定でお祝い金最大100,000円 | |||
| 保証金 | - | 償却・敷引 | 9万円 |
| 住宅保険料 | - | 更新料 | - |
| 保証会社利用 | 必須 | 保証会社名 | - |
| 保証会社費用 | - | 保証会社備考 | 保証会社利用必 当社指定の保証会社をご利用頂くことが契約条件となります。 |
| 契約形態 | - | 契約期間 | - |
| 入居・引渡期間 | 相談 | 現況 | - |
| 契約備考 | お客様が安心してお部屋を見学して頂き、ご契約が出来る環境を作る事を心掛け、全てのお客様に弊社を選んで良かったと思って頂ける様に、誠実さと物件情報量を駆使した丁寧な営業させていただいております。お客様との出会いそして「ありがとう!」の一言の為に、努力はいっさい惜しみません。是非とも、弊社アドバンスリビングへご来店くださいませ。スタッフ一同、心よりお待ちしております。 合計4.84万円(内訳:入居者サポート料2.2万円鍵交換代2.64万円) 更新料 新賃料1.00ヶ月分 1K 普通借家2年 損保【2万円2年】 バストイレ別、バルコニー、エアコン、ガスコンロ対応、クロゼット、TVインターホン、浴室乾燥機、オートロック、室内洗濯置、シューズボックス、システムキッチン、角住戸、エレベーター、2口コンロ、宅配ボックス、分譲賃貸、敷金1ヶ月、2面バルコニー、2沿線利用可、保証金不要、2駅利用可、3駅以上利用可、3沿線以上利用可、駅徒歩10分以内、礼金1ヶ月、初期費用カード決済可 | ||
部屋の情報
| 間取り | 1K | 専有面積 | 20.65m2 |
|---|---|---|---|
| 所在階 / 向き | 10階 / - | バルコニー面積 | - |
| 水道 / ガス | - | ||
| 設備 | バス・トイレ別、2階以上、オートロック、テレビドアホン、宅配ボックス、浴室乾燥機、システムキッチン、エアコン、エレベーター、角部屋、バルコニー、2口コンロ、コンロ:ガス、洗濯機:室内 | ||
| 当社物件ID | 129423448 | ||
建物の情報
| 建物名 | クレイスプリンシア池袋 | ||
|---|---|---|---|
| 所在地 | 東京都板橋区南町 | ||
| 交通 | 東京メトロ有楽町線 要町駅 徒歩7分 東京メトロ副都心線 要町駅 徒歩7分 JR山手線 池袋駅 徒歩12分 | ||
| 階数 | 地下1地上13階建 | 総戸数 | - |
| 築年月 | 2009年03月 / 築17年 | エレベーター | あり |
| 駐車場 | なし | バイク置き場 | - |
| 駐輪場 | - | 管理人/管理会社 | - |
| 周辺環境 | その他 デニーズ北池袋店(飲食店)まで850m その他 ジョナサン 要町駅前店(飲食店)まで746m その他 ドミノ・ピザ 豊島高松店(飲食店)まで944m その他 やよい軒 大山店(飲食店)まで1557m その他 セブンイレブン 板橋大山店 (HELLO CYCLING ポ(その他)まで1016m その他 肉のハナマサ 要町店(スーパー)まで256m | ||
| 建物種別 | マンション | 建物構造 | RC(鉄筋コンクリート) |
この部屋の取扱い不動産会社
| 会社名 | (株)アドバンスリビング(SUUMO経由) | ||
|---|---|---|---|
| 所在地 | 東京都江東区門前仲町1-7-11 名取ビル302 | 交通 | - |
| 営業時間 | 10:00~19:00 | 定休日 | 無し |
| 免許番号 | 東京都知事110317 | 取引態様 | 仲介 |
| 不動産会社管理番号 | 100471268908 | 当社管理番号 | 89 |
| 所属団体 | (公社)東京都宅地建物取引業協会会員 | ||
| 公正取引協議会 | (公社)首都圏不動産公正取引協議会加盟 | ||
| 取扱い物件情報 | 物件詳細へ | ||
※各種情報と現状に差異がある場合は、現状優先となります。問い合わせをすることで、より詳しい条件、情報を確認する事ができます。
提供:(株)アドバンスリビング(SUUMO経由)
この物件が気になったら掲載期限まであと10日
クレイスプリンシア池袋に条件(家賃・エリア)が近い物件一覧
| 写真 | 家賃 管理費等 | 敷金 礼金 | 間取り 専有面積 | 築年数 | 最寄り駅 所在地 | キープ | 詳細 |
|---|---|---|---|---|---|---|---|
アパート リブリ・EMERGENCE I(1K/3階) | |||||||
![]() | 8.2万円 4,000円 | なし 8.2万円 | 1K 21.73m2 | 築8年 | 都営三田線 本蓮沼駅 徒歩4分 都営三田線 板橋本町駅 徒歩9分 都営三田線 志村坂上駅 徒歩18分 東京都板橋区蓮沼町 | 詳細を見る | |
アパート CORE STYLE板橋(ワンルーム/2階) | |||||||
![]() | 6.7万円 4,000円 | なし なし | ワンルーム 12.49m2 | 築1年 | 東武鉄道東上線 中板橋駅 徒歩4分 東武鉄道東上線 ときわ台駅(東京) 徒歩14分 東京都板橋区中板橋 | 詳細を見る | |
マンション ミスティル志村坂上(1K/5階) | |||||||
![]() | 8.25万円 5,000円 | なし なし | 1K 21.29m2 | 築1年 | 東京都三田線 志村坂上駅 徒歩10分 埼京線 北赤羽駅 徒歩15分 東京都板橋区小豆沢2丁目 | 詳細を見る | |
マンション パークサイド見次第1レッツビル(1K/3階) | |||||||
![]() | 8万円 1万円 | 8万円 8万円 | 1K 19.35m2 | 築25年 | 都営三田線 志村坂上駅 徒歩7分 都営三田線 本蓮沼駅 徒歩12分 都営三田線 志村三丁目駅 徒歩15分 東京都板橋区前野町 | 詳細を見る | |
マンション ARKMARK志茂STA(1DK/5階) | |||||||
![]() | 9.7万円 1.8万円 | なし なし | 1DK 25.57m2 | 築5年 | 東京メトロ南北線 志茂駅 徒歩1分 東京都北区志茂 | 詳細を見る | |
アパート FORTUNATO(1K/2階) | |||||||
![]() | 7万円 5,000円 | なし なし | 1K 18.88m2 | 築8年 | 東武東上線 上板橋駅 徒歩12分 東武東上線 東武練馬駅 徒歩13分 都営三田線 志村三丁目駅 徒歩28分 東京都板橋区若木 | 詳細を見る | |
アパート レオネクスト小関2(1K/2階) | |||||||
![]() | 8.5万円 5,500円 | なし 8.5万円 | 1K 28.66m2 | 築14年 | 西武新宿線 武蔵関駅 徒歩8分 東京都練馬区石神井台 | 詳細を見る | |








