賃貸マンション
ブライズ蒲田ウエストの賃貸物件情報(1K/4階)
| 家賃 | 管理費等 | 敷金 | 礼金 | 間取り | 専有面積 |
|---|---|---|---|---|---|
| 7.3万円 | 1.5万円 | なし | 7.3万円 | 1K | 20.4m2 |
入居決定でお祝い金最大100,000円
- 保証金
- -
- 償却・敷引
- -
- 築年数
- 築12年
- 所在階
- 4階
- 向き
- 東
Point
当物件は入居費用の現金分割(3回から48回)が可能です!入居審査や初期費用のお見積りなどもお気軽にお問い合わせください。
提供:スマイスター日暮里店(株)パーソネット(SUUMO経由)

詳細情報 ブライズ蒲田ウエスト
物件紹介
ブライズ蒲田ウエストは東急池上線蓮沼駅から徒歩4分にあり、駅近で通勤通学に便利なマンションです。
このお部屋は2階以上に位置しているので、通行人や周囲の住人からの視線が気になりにくく、防犯面でも安心。建物のエントランスはオートロックがついており、インターホンにはTVモニタもついているため、相手の顔を確認してから来客対応することができます。
フローリングのお部屋なのでお掃除もラクラク。キッチンはシステムキッチン仕様になっていますので、お料理好きの方にもぴったり。バス・トイレは別なので、のんびりお風呂タイムも楽しめるでしょう。また、雨の日でも浴室乾燥機を使えば、お洗濯も問題ありません。
通信設備面では、インターネット接続が可能です。また、BSアンテナ・CSアンテナもありますので、おうち時間も充実するでしょう(別途工事、契約料が必要な場合あり)。
建物にはエレベーターがついているので、重い荷物があっても安心。共用部には宅配ボックスが設定されているので、不在の時にも荷物を受け取ることができます。
このお部屋は2階以上に位置しているので、通行人や周囲の住人からの視線が気になりにくく、防犯面でも安心。建物のエントランスはオートロックがついており、インターホンにはTVモニタもついているため、相手の顔を確認してから来客対応することができます。
フローリングのお部屋なのでお掃除もラクラク。キッチンはシステムキッチン仕様になっていますので、お料理好きの方にもぴったり。バス・トイレは別なので、のんびりお風呂タイムも楽しめるでしょう。また、雨の日でも浴室乾燥機を使えば、お洗濯も問題ありません。
通信設備面では、インターネット接続が可能です。また、BSアンテナ・CSアンテナもありますので、おうち時間も充実するでしょう(別途工事、契約料が必要な場合あり)。
建物にはエレベーターがついているので、重い荷物があっても安心。共用部には宅配ボックスが設定されているので、不在の時にも荷物を受け取ることができます。
お金・契約の情報
※「-」と表示されているものは、実際は料金が発生するものもございます。詳細はお問い合わせください。
| 家賃 | 7.3万円 | 管理費・共益費 | 1.5万円 |
|---|---|---|---|
| 敷金 | なし | 礼金 | 7.3万円 |
| 入居決定でお祝い金最大100,000円 | |||
| 保証金 | - | 償却・敷引 | - |
| 住宅保険料 | - | 更新料 | - |
| 契約形態 | - | 契約期間 | - |
| 入居・引渡期間 | 相談 | 現況 | - |
| 契約備考 | 【店頭へ初回ご来店のお客様、当物件限定、仲介手数料0円】経年劣化による修繕などで掲載している写真や設備などと実際の設備が異なる場合があります。お問い合わせやご契約の際は、その点にご留意頂き現状優先でのお貸出しになる事をご了承ください。※退去時クリーニング費用(退去時精算・借主負担)※短期解約違約金有:1年未満解約の場合、総賃料の2ヶ月分/1.5年未満解約の場合、総賃料の1.5ヶ月分 合計4.6万円(内訳:室内抗菌代(必須)1.3万円鍵交換代3.3万円) 更新料 新賃料1.50ヶ月分 室内清掃費用 57200円 保険料 月額2200円 月額手数料 月額330円 1K 普通借家2年 バストイレ別、バルコニー、エアコン、ガスコンロ対応、クロゼット、フローリング、TVインターホン、浴室乾燥機、オートロック、室内洗濯置、シューズボックス、システムキッチン、温水洗浄便座、エレベーター、洗面所独立、洗面化粧台、2口コンロ、駐輪場、宅配ボックス、BS・CS、敷金不要、防犯カメラ、分譲賃貸、保証人不要、仲介手数料不要、バイク置場、2沿線利用可、CS、2駅利用可、3駅以上利用可、3沿線以上利用可、駅徒歩5分以内、駅徒歩10分以内、都市ガス、BS、高速ネット対応、IT重説対応物件 | ||
部屋の情報
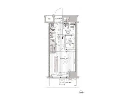
| 間取り | 1K | 専有面積 | 20.4m2 |
|---|---|---|---|
| 所在階 / 向き | 4階 / 東 | バルコニー面積 | - |
| 水道 / ガス | - | ||
| 設備 | バス・トイレ別、2階以上、オートロック、テレビドアホン、宅配ボックス、浴室乾燥機、インターネット対応、システムキッチン、エアコン、エレベーター、温水洗浄便座、バルコニー、フローリング、洗髪洗面化粧台、2口コンロ、コンロ:ガス、CSアンテナ、BSアンテナ、洗濯機:室内 | ||
| 当社物件ID | 12337625 | ||
建物の情報
| 建物名 | ブライズ蒲田ウエスト | ||
|---|---|---|---|
| 所在地 | 東京都大田区東矢口 | ||
| 交通 | 東急池上線 蓮沼駅 徒歩4分 東急多摩川線 矢口渡駅 徒歩9分 JR京浜東北線 蒲田駅 徒歩16分 | ||
| 階数 | 7階建 | 総戸数 | 69戸 |
| 築年月 | 2014年02月 / 築12年 | エレベーター | あり |
| 駐車場 | なし | バイク置き場 | あり |
| 駐輪場 | あり | 管理人/管理会社 | - |
| 建物種別 | マンション | 建物構造 | RC(鉄筋コンクリート) |
この部屋の取扱い不動産会社
| 会社名 | スマイスター日暮里店(株)パーソネット(SUUMO経由) | ||
|---|---|---|---|
| 所在地 | 東京都荒川区東日暮里5-52-10 | 交通 | - |
| 営業時間 | 9時~18時 | 定休日 | 毎週水曜日 |
| 免許番号 | 国土交通大臣8794 | 取引態様 | 仲介 |
| 不動産会社管理番号 | 100469688254 | 当社管理番号 | 89 |
| 所属団体 | (公社)全日本不動産協会東京都本部会員 | ||
| 公正取引協議会 | (公社)首都圏不動産公正取引協議会加盟 | ||
| 取扱い物件情報 | 物件詳細へ | ||
※各種情報と現状に差異がある場合は、現状優先となります。問い合わせをすることで、より詳しい条件、情報を確認する事ができます。
提供:スマイスター日暮里店(株)パーソネット(SUUMO経由)
この物件が気になったら掲載期限まであと10日
ブライズ蒲田ウエストに条件(家賃・エリア)が近い物件一覧
| 写真 | 家賃 管理費等 | 敷金 礼金 | 間取り 専有面積 | 築年数 | 最寄り駅 所在地 | キープ | 詳細 |
|---|---|---|---|---|---|---|---|
マンション メゾンプレジール(1K/1階) | |||||||
![]() | 7.2万円 2,000円 | 7.2万円 なし | 1K 20.83m2 | 築22年 | 京浜東北・根岸線 蒲田駅 徒歩15分 東急池上線 池上駅 徒歩21分 東京都大田区中央8丁目 | 詳細を見る | |
アパート SEED SAVE PETIRASU Ⅲ(1LDK/1階) | |||||||
![]() | 10.7万円 1万円 | 21.4万円 10.7万円 | 1LDK 30.55m2 | 新築 | 東京モノレール羽田 昭和島駅 徒歩12分 京浜急行電鉄本線 大森町駅 徒歩18分 東京都大田区大森東5丁目 | 詳細を見る | |
マンション ラ・ルーナ(1K/3階) | |||||||
![]() | 9.2万円 3,000円 | 9.2万円 なし | 1K 28.13m2 | 築15年 | 京浜急行電鉄本線 梅屋敷駅(東京) 徒歩9分 京浜東北・根岸線 蒲田駅 徒歩13分 東京都大田区蒲田1丁目 | 詳細を見る | |
マンション プラウドフラット森下ウエスト(1K/5階) | |||||||
![]() | 10.5万円 1万円 | 10.5万円 10.5万円 | 1K 20.77m2 | 築16年 | 東京都大江戸線 森下駅(東京) 徒歩3分 東京都江東区新大橋3丁目 | 詳細を見る | |
マンション ルーブル大森西(1K/3階) | |||||||
![]() | 10.7万円 8,000円 | なし 10.7万円 | 1K 25.46m2 | 築9年 | 京急本線 平和島駅 徒歩10分 JR京浜東北線 大森駅(東京) 徒歩15分 京急本線 大森町駅 徒歩20分 東京都大田区大森西 | 詳細を見る | |
マンション ラトレールエスポワール(1K/1階) | |||||||
![]() | 8.4万円 3,000円 | 8.4万円 なし | 1K 26.97m2 | 築23年 | 東急多摩川線 下丸子駅 徒歩4分 東急多摩川線 武蔵新田駅 徒歩14分 東京都大田区下丸子3丁目 | 詳細を見る | |
マンション エステムコートKAMEIDO TOKYO イースト(1K/4階) | |||||||
![]() | 10.47万円 1.03万円 | 10.47万円 10.47万円 | 1K 26.1m2 | 築6年 | JR総武線 亀戸駅 徒歩8分 東武亀戸線 亀戸水神駅 徒歩10分 東京メトロ半蔵門線 錦糸町駅 徒歩20分 東京都江東区亀戸 | 詳細を見る | |
マンション 東陽町レジデンス壱番館(1K/2階) | |||||||
![]() | 9.4万円 なし | 9.4万円 9.4万円 | 1K 23.97m2 | 築19年 | 東京地下鉄東西線 東陽町駅 徒歩4分 東京都江東区東陽5丁目 | 詳細を見る | |









