賃貸マンション
スカイマンションC棟の賃貸物件情報(3LDK/3階)
| 家賃 | 管理費等 | 敷金 | 礼金 | 間取り | 専有面積 |
|---|---|---|---|---|---|
| 7.8万円 | なし | 15.6万円 | なし | 3LDK | 68.3m2 |
入居決定でお祝い金最大100,000円
- 保証金
- -
- 償却・敷引
- -
- 築年数
- 築22年
- 所在階
- 3階
- 向き
- 南
Point
独立洗面台が付いているので、歯ブラシやドライヤーなどをまとめて収納できます。モニターで来訪者を確認し、インターホンで対面せずに会話することができます。こちらはエレベーター付きの物件です。
提供:いい部屋ネット大東建託リーシング(株)米子駅前店(SUUMO経由)

詳細情報 スカイマンションC棟
物件紹介
スカイマンションC棟はJR境線後藤駅から徒歩27分にあるマンションです。
このお部屋は2階以上に位置しているので、通行人や周囲の住人からの視線が気になりにくく、防犯面でも安心。インターホンにはTVモニタもついているため、相手の顔を確認してから来客対応することができます。
人気の南向きのお部屋。バス・トイレ別の仕様で、のんびりお風呂タイムも楽しめます。
通信設備面ではCATVに対応しているので、おうち時間も充実するでしょう(別途工事、契約料が必要な場合あり)。
建物にはエレベーターがついているので、重い荷物があっても安心。また、ペット飼育の相談ができますので、あなたの大切な家族の一員も快適に暮らせるか、ぜひ確認してみてください。
このお部屋は2階以上に位置しているので、通行人や周囲の住人からの視線が気になりにくく、防犯面でも安心。インターホンにはTVモニタもついているため、相手の顔を確認してから来客対応することができます。
人気の南向きのお部屋。バス・トイレ別の仕様で、のんびりお風呂タイムも楽しめます。
通信設備面ではCATVに対応しているので、おうち時間も充実するでしょう(別途工事、契約料が必要な場合あり)。
建物にはエレベーターがついているので、重い荷物があっても安心。また、ペット飼育の相談ができますので、あなたの大切な家族の一員も快適に暮らせるか、ぜひ確認してみてください。
お金・契約の情報
※「-」と表示されているものは、実際は料金が発生するものもございます。詳細はお問い合わせください。
| 家賃 | 7.8万円 | 管理費・共益費 | なし |
|---|---|---|---|
| 敷金 | 15.6万円 | 礼金 | なし |
| 入居決定でお祝い金最大100,000円 | |||
| 保証金 | - | 償却・敷引 | - |
| 住宅保険料 | - | 更新料 | - |
| 保証会社利用 | 必須 | 保証会社名 | - |
| 保証会社費用 | - | 保証会社備考 | 保証会社利用必 初回保証料 月額賃料の70%・50%(下限35 000円・25 000円)・更新10 000円/年 |
| 契約形態 | - | 契約期間 | - |
| 入居・引渡期間 | 相談 | 現況 | - |
| 入居可能条件 | ペット相談 | ||
| 契約備考 | ペット飼育時家賃80000円(家主の承認必要) 3LDK ペット相談 損保【要】 バストイレ別、バルコニー、エアコン、TVインターホン、室内洗濯置、シューズボックス、温水洗浄便座、脱衣所、エレベーター、洗面所独立、CATV、防犯カメラ、ペット相談、カードキー、物置、洗面所にドア、IT重説対応物件 | ||
部屋の情報
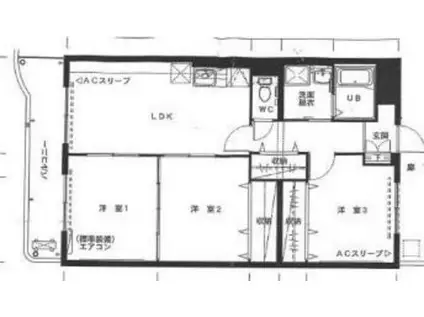
| 間取り | 3LDK | 専有面積 | 68.3m2 |
|---|---|---|---|
| 所在階 / 向き | 3階 / 南 | バルコニー面積 | - |
| 水道 / ガス | - | ||
| 設備 | バス・トイレ別、2階以上、テレビドアホン、エアコン、エレベーター、温水洗浄便座、南向き、バルコニー、洗髪洗面化粧台、CATV、洗濯機:室内 | ||
| 当社物件ID | 3615329 | ||
建物の情報
| 建物名 | スカイマンションC棟 | ||
|---|---|---|---|
| 所在地 | 鳥取県米子市西福原 | ||
| 交通 | JR境線 後藤駅 徒歩27分 JR境線 米子駅 バス乗車時間:19分 最寄りバス停で下車 徒歩11分 JR山陰本線 伯耆大山駅 バス乗車時間:38分 最寄りバス停で下車 徒歩25分 | ||
| 階数 | 5階建 | 総戸数 | 30戸 |
| 築年月 | 2004年03月 / 築22年 | エレベーター | あり |
| 駐車場 | 空有 付無料 | バイク置き場 | - |
| 駐輪場 | - | 管理人/管理会社 | - |
| 周辺環境 | その他 ラムー(スーパー)まで389m その他 ダイレックス(スーパー)まで1192m その他 マルイ両三柳店(スーパー)まで1185m その他 ローソン米子西福原七丁目店(コンビニ)まで620m その他 セブンイレブン米子西福原6丁目店(コンビニ)まで596m その他 スーパーホームセンターいない(ホームセンター)まで1237m | ||
| 建物種別 | マンション | 建物構造 | RC(鉄筋コンクリート) |
この部屋の取扱い不動産会社
| 会社名 | いい部屋ネット大東建託リーシング(株)米子駅前店(SUUMO経由) | ||
|---|---|---|---|
| 所在地 | 鳥取県米子市明治町 252 たむらビル1階 | 交通 | - |
| 営業時間 | 10:00~12:30 ・ 13:30~18:00 | 定休日 | 火・水 |
| 免許番号 | 国土交通大臣9120 | 取引態様 | 仲介 |
| 不動産会社管理番号 | 100483337041 | 当社管理番号 | 89 |
| 所属団体 | (公財)日本賃貸住宅管理協会会員 | ||
| 公正取引協議会 | (公社)首都圏不動産公正取引協議会加盟 | ||
| 取扱い物件情報 | 物件詳細へ | ||
※各種情報と現状に差異がある場合は、現状優先となります。問い合わせをすることで、より詳しい条件、情報を確認する事ができます。
提供:いい部屋ネット大東建託リーシング(株)米子駅前店(SUUMO経由)
この物件が気になったら掲載期限まであと10日
スカイマンションC棟に条件(家賃・エリア)が近い物件一覧
| 写真 | 家賃 管理費等 | 敷金 礼金 | 間取り 専有面積 | 築年数 | 最寄り駅 所在地 | キープ | 詳細 |
|---|---|---|---|---|---|---|---|
アパート レオパレスTOPAZ(1K/2階) | |||||||
![]() | 4.7万円 6,500円 | なし 4.7万円 | 1K 26.08m2 | 築20年 | 鳥取県米子市車尾6丁目 | 詳細を見る | |
アパート T-BLD角盤町(1DK/2階) | |||||||
![]() | 5万円 なし | なし なし | 1DK 44.52m2 | 築57年 | JR境線 富士見町駅(鳥取) 徒歩8分 鳥取県米子市角盤町 | 詳細を見る | |
アパート レオパレスアルシオーネ(1K/1階) | |||||||
![]() | 5万円 6,500円 | なし 5万円 | 1K 23.18m2 | 築24年 | 山陰本線 東山公園駅(鳥取) 徒歩20分 鳥取県米子市観音寺新町3丁目 | 詳細を見る | |
アパート オリエント中島A(1LDK/2階) | |||||||
![]() | 4.9万円 1,800円 | なし 5.9万円 | 1LDK 42.37m2 | 築19年 | JR山陰本線 東山公園駅(鳥取) 徒歩10分 鳥取県米子市中島 | 詳細を見る | |
アパート フェイバードパーク・Ⅱ(1K/2階) | |||||||
![]() | 4.7万円 3,000円 | 4.7万円 なし | 1K 30m2 | 築19年 | 鳥取県米子市淀江町佐陀 | 詳細を見る | |
アパート メゾン・ド・ソレイユ(2LDK/2階) | |||||||
![]() | 4.95万円 1.8万円 | なし 5.9万円 | 2LDK 57.07m2 | 築14年 | 鳥取県米子市尾高 | 詳細を見る | |
アパート ブルースター(1LDK/1階) | |||||||
![]() | 5.2万円 3,500円 | 5.2万円 なし | 1LDK 34.43m2 | 築4年 | JR境線 富士見町駅(鳥取) 徒歩41分 JR境線 後藤駅 徒歩43分 JR山陰本線 東山公園駅(鳥取) 徒歩45分 鳥取県米子市新開 | 詳細を見る | |
アパート ヤマトサカスA(2LDK/2階) | |||||||
![]() | 6.25万円 2,300円 | なし 7.25万円 | 2LDK 59.58m2 | 築1年 | 鳥取県米子市淀江町中間 | 詳細を見る | |









