賃貸アパート
レオパレス88の賃貸物件情報(1K/2階)
| 家賃 | 管理費等 | 敷金 | 礼金 | 間取り | 専有面積 |
|---|---|---|---|---|---|
| 4.3万円 | 5,000円 | なし | なし | 1K | 22.35m2 |
入居決定でお祝い金最大100,000円
Point
まずはお問い合わせ!
不動産会社は街のプロ、あなたに合った物件がきっと見つかります。
提供:ハウスコム東海株式会社 豊川店

詳細情報 レオパレス88
物件紹介
レオパレス88は東海道本線蒲郡駅から徒歩20分にあるアパートです。
このお部屋は2階以上に位置しているので、通行人や周囲の住人からの視線が気になりにくく、防犯面でも安心。インターホンにはTVモニタもついているため、相手の顔を確認してから来客対応することができます。
バス・トイレ別の仕様で、のんびりお風呂タイムも楽しめます。
通信設備面では、インターネット接続が可能です(別途工事、契約料が必要な場合あり)。
共用部には宅配ボックスが設定されているので、不在の時にも荷物を受け取ることができます。
コンビニまで徒歩24分の場所にあり、日用品や食料品のお買い物にも便利です。
このお部屋は2階以上に位置しているので、通行人や周囲の住人からの視線が気になりにくく、防犯面でも安心。インターホンにはTVモニタもついているため、相手の顔を確認してから来客対応することができます。
バス・トイレ別の仕様で、のんびりお風呂タイムも楽しめます。
通信設備面では、インターネット接続が可能です(別途工事、契約料が必要な場合あり)。
共用部には宅配ボックスが設定されているので、不在の時にも荷物を受け取ることができます。
コンビニまで徒歩24分の場所にあり、日用品や食料品のお買い物にも便利です。
お金・契約の情報
※「-」と表示されているものは、実際は料金が発生するものもございます。詳細はお問い合わせください。
| 家賃 | 4.3万円 | 管理費・共益費 | 5,000円 |
|---|---|---|---|
| 敷金 | なし | 礼金 | なし |
| 入居決定でお祝い金最大100,000円 | |||
| 保証金 | - | 償却・敷引 | - |
| 住宅保険料 | 1円 | 更新料 | - |
| その他費用 | 抗菌施工(任意):2.376万円 | ||
| 保証会社利用 | 必須 | 保証会社名 | - |
| 保証会社費用 | - | 保証会社備考 | 保証料:58190円(契約内容により100〜120%で変動有)※記載金額は120%の場合 |
| 契約形態 | - | 契約期間 | - |
| 入居・引渡期間 | 即時 | 現況 | - |
| 契約備考 | 鍵交換費10450円、抗菌施工(任意)18040円から23760円(税込)/環境維持費550円/月、更新手数料16500円/2年(税込)/基本清掃料:31350円(税込) 月額(環境維持費 550円) 鍵交換費用:16500 室内清掃費用:41800 その他設備/条件:室内洗濯機置き場 | ||
部屋の情報
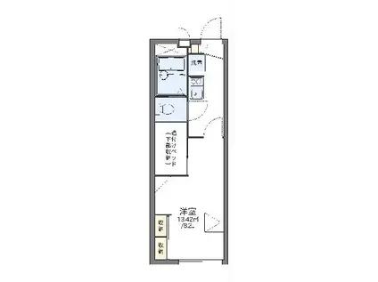
| 間取り | 1K | 専有面積 | 22.35m2 |
|---|---|---|---|
| 所在階 / 向き | 2階 / - | バルコニー面積 | - |
| 水道 / ガス | - | ||
| 設備 | バス・トイレ別、テレビドアホン、宅配ボックス、光ファイバー対応、エアコン、温水洗浄便座、コンロ:電気 | ||
| 当社物件ID | 3253668 | ||
建物の情報
| 建物名 | レオパレス88 | ||
|---|---|---|---|
| 所在地 | 愛知県蒲郡市緑町 | ||
| 交通 | 東海道本線 蒲郡駅 徒歩20分 | ||
| 階数 | 2階建 | 総戸数 | 28戸 |
| 築年月 | 2005年12月 / 築21年 | エレベーター | - |
| 駐車場 | 空有 6,050円/月 | バイク置き場 | - |
| 駐輪場 | - | 管理人/管理会社 | - |
| 周辺環境 | コンビニ 徒歩24分(1874m) その他 ドラッグストア その他 公園 その他 銀行 その他 * | ||
| 建物種別 | アパート | 建物構造 | 軽量鉄骨造 |
この部屋の取扱い不動産会社
| 会社名 | ハウスコム東海株式会社 大樹寺店 | ||
|---|---|---|---|
| 所在地 | 愛知県岡崎市1-281階 | 交通 | - |
| 営業時間 | 10:00~18:00 | 定休日 | 水曜定休 |
| 免許番号 | 国土交通大臣(1)第10227号 | 取引態様 | 仲介 |
| 不動産会社管理番号 | HC5-1274598-208-0201 | 当社管理番号 | 468 |
| 所属団体 | 、 | ||
| 取扱い物件情報 | 物件詳細へ | ||
※各種情報と現状に差異がある場合は、現状優先となります。問い合わせをすることで、より詳しい条件、情報を確認する事ができます。
提供:ハウスコム東海株式会社 大樹寺店
この物件が気になったら掲載期限まであと5日
レオパレス88に条件(家賃・エリア)が近い物件一覧
| 写真 | 家賃 管理費等 | 敷金 礼金 | 間取り 専有面積 | 築年数 | 最寄り駅 所在地 | キープ | 詳細 |
|---|---|---|---|---|---|---|---|
アパート コーポみどり(1K/2階) | |||||||
![]() | 3.2万円 4,000円 | なし なし | 1K 23.92m2 | 築37年 | 名鉄名古屋本線 美合駅 徒歩17分 名鉄名古屋本線 男川駅 徒歩25分 JR東海道本線 岡崎駅 徒歩36分 愛知県岡崎市美合町 | 詳細を見る | |
アパート ファミリー レジデンス(1LDK/1階) | |||||||
![]() | 6.6万円 4,000円 | 13.2万円 なし | 1LDK 41.27m2 | 築8年 | JR東海道本線 岡崎駅 徒歩28分 名鉄名古屋本線 男川駅 徒歩31分 名鉄名古屋本線 美合駅 徒歩31分 愛知県岡崎市緑丘 | 詳細を見る | |
アパート グランチェスタ A棟(2LDK/3階) | |||||||
![]() | 6.3万円 3,500円 | 6.3万円 なし | 2LDK 49.5m2 | 築22年 | JR東海道本線 岡崎駅 徒歩29分 愛知環状鉄道 六名駅 徒歩39分 JR東海道本線 相見駅 徒歩58分 愛知県岡崎市土井町西番城 | 詳細を見る | |
マンション ウェーブ28(2DK/3階) | |||||||
![]() | 4.5万円 3,000円 | なし なし | 2DK 49.3m2 | 築32年 | JR東海道本線 三河三谷駅 徒歩2分 JR東海道本線 蒲郡駅 徒歩30分 愛知県蒲郡市三谷町上野 | 詳細を見る | |
アパート セザンヌ中央通(ワンルーム/1階) | |||||||
![]() | 4.3万円 2,000円 | なし 4.3万円 | ワンルーム 24.84m2 | 築16年 | 名鉄豊川線 稲荷口駅 徒歩9分 JR飯田線 豊川駅(愛知) 徒歩9分 JR飯田線 牛久保駅 徒歩28分 愛知県豊川市中央通 | 詳細を見る | |
マンション フォレスティ(2LDK/1階) | |||||||
![]() | 5.8万円 3,000円 | なし なし | 2LDK 55.5m2 | 築32年 | 名鉄名古屋本線 東岡崎駅 徒歩37分 愛知環状鉄道 北岡崎駅 徒歩38分 名鉄名古屋本線 男川駅 徒歩44分 愛知県岡崎市稲熊町 | 詳細を見る | |
アパート グリーンヒルズ II(1K/1階) | |||||||
![]() | 4万円 3,000円 | なし なし | 1K 28.99m2 | 築21年 | JR飯田線 豊川駅(愛知) 徒歩18分 名鉄豊川線 豊川稲荷駅 徒歩18分 愛知県豊川市大堀町 | 詳細を見る | |
アパート 小田渕町2丁目アパート(1LDK/1階) | |||||||
![]() | 6.2万円 4,000円 | 6.2万円 なし | 1LDK 42.15m2 | 新築 | 名鉄名古屋本線 小田渕駅 徒歩6分 愛知県豊川市小田渕町2丁目 | 詳細を見る | |









