賃貸マンション
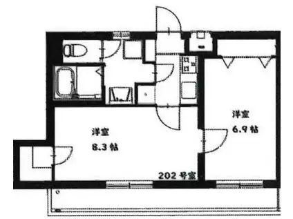
ファーム・ヴィラIIの賃貸物件情報(2K/2階)
| 家賃 | 管理費等 | 敷金 | 礼金 | 間取り | 専有面積 |
|---|---|---|---|---|---|
| 13万円 | 5,000円 | 13万円 | 13万円 | 2K | 40.85m2 |
入居決定でお祝い金最大100,000円
Point
まずはお問い合わせ!
不動産会社は街のプロ、あなたに合った物件がきっと見つかります。
提供:志幸ホーム(株)(SUUMO経由)

詳細情報 ファーム・ヴィラII
物件紹介
ファーム・ヴィラIIは都営大江戸線練馬春日町駅から徒歩10分にあり、駅近で通勤通学に便利なマンションです。
このお部屋は2階以上に位置しているので、通行人や周囲の住人からの視線が気になりにくく、防犯面でも安心。建物のエントランスはオートロックがついており、インターホンにはTVモニタもついているため、相手の顔を確認してから来客対応することができます。
人気の南向きのお部屋。キッチンはシステムキッチン仕様になっていますので、お料理好きの方にもぴったり。バス・トイレは別なので、のんびりお風呂タイムも楽しめるでしょう。また、雨の日でも浴室乾燥機を使えば、お洗濯も問題ありません。
通信設備面ではCATVに対応しているので、おうち時間も充実するでしょう(別途工事、契約料が必要な場合あり)。
このお部屋は2階以上に位置しているので、通行人や周囲の住人からの視線が気になりにくく、防犯面でも安心。建物のエントランスはオートロックがついており、インターホンにはTVモニタもついているため、相手の顔を確認してから来客対応することができます。
人気の南向きのお部屋。キッチンはシステムキッチン仕様になっていますので、お料理好きの方にもぴったり。バス・トイレは別なので、のんびりお風呂タイムも楽しめるでしょう。また、雨の日でも浴室乾燥機を使えば、お洗濯も問題ありません。
通信設備面ではCATVに対応しているので、おうち時間も充実するでしょう(別途工事、契約料が必要な場合あり)。
お金・契約の情報
※「-」と表示されているものは、実際は料金が発生するものもございます。詳細はお問い合わせください。
| 家賃 | 13万円 | 管理費・共益費 | 5,000円 |
|---|---|---|---|
| 敷金 | 13万円 | 礼金 | 13万円 |
| 入居決定でお祝い金最大100,000円 | |||
| 保証金 | - | 償却・敷引 | - |
| 住宅保険料 | - | 更新料 | - |
| 保証会社利用 | 必須 | 保証会社名 | - |
| 保証会社費用 | - | 保証会社備考 | 保証会社利用必 家賃の40%、最低保証20,000円(条件による) |
| 契約形態 | - | 契約期間 | - |
| 入居・引渡期間 | - | 現況 | - |
| 契約備考 | 巡回管理/◆2月中旬完成予定の新築マンション◆ 合計1.65万円(内訳:VITAサポート:16500円) 2K 損保【2.4万円2年】 バストイレ別、エアコン、シャワー付洗面台、TVインターホン、浴室乾燥機、オートロック、システムキッチン、南向き、温水洗浄便座、洗面所独立、CATV、閑静な住宅地、敷金1ヶ月、駅まで平坦、緑豊かな住宅地、築2年以内、耐火構造、2駅利用可、駅徒歩10分以内、敷地内ごみ置き場、当社管理物件、全居室6畳以上、都市ガス、洗面所にドア、礼金1ヶ月、IT重説対応物件 入居日:'26年2月下旬 | ||
部屋の情報
| 間取り | 2K | 専有面積 | 40.85m2 |
|---|---|---|---|
| 所在階 / 向き | 2階 / 南 | バルコニー面積 | - |
| 水道 / ガス | - | ||
| 設備 | バス・トイレ別、2階以上、オートロック、テレビドアホン、浴室乾燥機、システムキッチン、エアコン、温水洗浄便座、南向き、洗髪洗面化粧台、CATV | ||
| 当社物件ID | 160142733 | ||
建物の情報
| 建物名 | ファーム・ヴィラII | ||
|---|---|---|---|
| 所在地 | 東京都練馬区高松 | ||
| 交通 | 都営大江戸線 練馬春日町駅 徒歩10分 都営大江戸線 光が丘駅 徒歩17分 | ||
| 階数 | 地下1地上4階建 | 総戸数 | 14戸 |
| 築年月 | 2026年02月 / 新築 | エレベーター | - |
| 駐車場 | なし | バイク置き場 | - |
| 駐輪場 | - | 管理人/管理会社 | - |
| 建物種別 | マンション | 建物構造 | RC(鉄筋コンクリート) |
この部屋の取扱い不動産会社
| 会社名 | 志幸ホーム(株)(SUUMO経由) | ||
|---|---|---|---|
| 所在地 | 埼玉県和光市丸山台1-10-6 | 交通 | - |
| 営業時間 | AM10:00~PM17:30 | 定休日 | 水曜日 |
| 免許番号 | 埼玉県知事9848 | 取引態様 | 仲介 |
| 不動産会社管理番号 | 100478393839 | 当社管理番号 | 89 |
| 所属団体 | (公社)埼玉県宅地建物取引業協会会員 | ||
| 公正取引協議会 | (公社)首都圏不動産公正取引協議会加盟 | ||
| 取扱い物件情報 | 物件詳細へ | ||
※各種情報と現状に差異がある場合は、現状優先となります。問い合わせをすることで、より詳しい条件、情報を確認する事ができます。
提供:志幸ホーム(株)(SUUMO経由)
この物件が気になったら掲載期限まであと8日
ファーム・ヴィラIIに条件(家賃・エリア)が近い物件一覧
| 写真 | 家賃 管理費等 | 敷金 礼金 | 間取り 専有面積 | 築年数 | 最寄り駅 所在地 | キープ | 詳細 |
|---|---|---|---|---|---|---|---|
マンション KYビル(1LDK/2階) | |||||||
![]() | 13.8万円 なし | なし 27.6万円 | 1LDK 37.82m2 | 築12年 | 東京都三田線 志村坂上駅 徒歩2分 東京都板橋区小豆沢2丁目 | 詳細を見る | |
アパート バーミープレイス吉祥寺II(ワンルーム/2階) | |||||||
![]() | 8.5万円 3,000円 | なし なし | ワンルーム 20.02m2 | 築6年 | JR総武線 吉祥寺駅 徒歩12分 京王井の頭線 吉祥寺駅 徒歩12分 東京都武蔵野市吉祥寺南町 | 詳細を見る | |
マンション アトリエ中野(1K/1階) | |||||||
![]() | 8.4万円 4,000円 | 8.4万円 なし | 1K 24m2 | 築21年 | JR中央線 東中野駅 徒歩10分 JR中央線 中野駅(東京) 徒歩11分 東京都中野区中野 | 詳細を見る | |
アパート エレガンス浜田山(ワンルーム/4階) | |||||||
![]() | 8万円 5,000円 | 8万円 8万円 | ワンルーム 20m2 | 築34年 | 京王井の頭線 浜田山駅 徒歩3分 京王井の頭線 西永福駅 徒歩10分 京王井の頭線 高井戸駅 徒歩17分 東京都杉並区浜田山 | 詳細を見る | |
マンション レジディアタワー上池袋(1LDK/4階) | |||||||
![]() | 16.5万円 2万円 | 16.5万円 16.5万円 | 1LDK 37.56m2 | 築17年 | 山手線 大塚駅(東京) 徒歩10分 東京都豊島区上池袋1丁目 | 詳細を見る | |
マンション マトーニ ロッシ(1LDK/3階) | |||||||
![]() | 12万円 5,000円 | 12万円 12万円 | 1LDK 37.46m2 | 築8年 | 西武池袋線 石神井公園駅 徒歩3分 西武池袋線 練馬高野台駅 徒歩14分 西武池袋線 大泉学園駅 徒歩25分 東京都練馬区石神井町 | 詳細を見る | |
マンション コフレ吉祥寺本町(1LDK/3階) | |||||||
![]() | 13.5万円 なし | 13.5万円 なし | 1LDK 31.68m2 | 築3年 | JR総武線 吉祥寺駅 徒歩11分 京王井の頭線 吉祥寺駅 徒歩13分 京王井の頭線 井の頭公園駅 徒歩22分 東京都武蔵野市吉祥寺本町 | 詳細を見る | |








