賃貸マンション
メインステージ板橋蓮根IIの賃貸物件情報(1K/2階)
| 家賃 | 管理費等 | 敷金 | 礼金 | 間取り | 専有面積 |
|---|---|---|---|---|---|
| 8.9万円 | 1万円 | なし | 8.9万円 | 1K | 26.07m2 |
入居決定でお祝い金最大100,000円
- 保証金
- -
- 償却・敷引
- -
- 築年数
- 築11年
- 所在階
- 2階
- 向き
- 西
Point
オーナー様と直接取引している物件を10万戸以上保有しているため、賃料、初期費用、賃料発生日など諸条件を何でもご相談くださいませ。
提供:ハウス・トゥ・ハウス・ネットサービス(株)十条店(SUUMO経由)

詳細情報 メインステージ板橋蓮根II
物件紹介
メインステージ板橋蓮根IIは都営三田線蓮根駅から徒歩8分にあり、駅近で通勤通学に便利なマンションです。
このお部屋は2階以上に位置しているので、通行人や周囲の住人からの視線が気になりにくく、防犯面でも安心。建物のエントランスはオートロックがついており、インターホンにはTVモニタもついているため、相手の顔を確認してから来客対応することができます。
人気の南向きのお部屋。また、フローリングなのでお掃除もラクラク。キッチンはシステムキッチン仕様になっていますので、お料理好きの方にもぴったり。また、バス・トイレは別で、のんびりお風呂タイムも楽しめるでしょう。
共用部には宅配ボックスが設定されているので、不在の時にも荷物を受け取ることができます。また、ペット飼育の相談ができますので、あなたの大切な家族の一員も快適に暮らせるか、ぜひ確認してみてください。
このお部屋は2階以上に位置しているので、通行人や周囲の住人からの視線が気になりにくく、防犯面でも安心。建物のエントランスはオートロックがついており、インターホンにはTVモニタもついているため、相手の顔を確認してから来客対応することができます。
人気の南向きのお部屋。また、フローリングなのでお掃除もラクラク。キッチンはシステムキッチン仕様になっていますので、お料理好きの方にもぴったり。また、バス・トイレは別で、のんびりお風呂タイムも楽しめるでしょう。
共用部には宅配ボックスが設定されているので、不在の時にも荷物を受け取ることができます。また、ペット飼育の相談ができますので、あなたの大切な家族の一員も快適に暮らせるか、ぜひ確認してみてください。
お金・契約の情報
※「-」と表示されているものは、実際は料金が発生するものもございます。詳細はお問い合わせください。
| 家賃 | 8.9万円 | 管理費・共益費 | 1万円 |
|---|---|---|---|
| 敷金 | なし | 礼金 | 8.9万円 |
| 入居決定でお祝い金最大100,000円 | |||
| 保証金 | - | 償却・敷引 | - |
| 住宅保険料 | - | 更新料 | - |
| 保証会社利用 | 必須 | 保証会社名 | - |
| 保証会社費用 | - | 保証会社備考 | 保証会社利用必 初回50% 800円/月 |
| 契約形態 | - | 契約期間 | - |
| 入居・引渡期間 | - | 現況 | - |
| 入居可能条件 | ペット相談 | ||
| 契約備考 | 1年未満の解約は違約金1ヶ月。ペット飼育時、敷金1ヶ月積み増し償却。 合計4.95万円(内訳:契約事務手数料1.1万円鍵交換代3.85万円) 更新料 新賃料1.00ヶ月分 室内清掃費用 55000円 24時間サポート 月額1000円 1K ペット相談 普通借家2年 損保【要】 バストイレ別、バルコニー、エアコン、ガスコンロ対応、クロゼット、TVインターホン、オートロック、室内洗濯置、シューズボックス、システムキッチン、温水洗浄便座、脱衣所、洗面所独立、洗面化粧台、2口コンロ、駐輪場、宅配ボックス、敷金不要、独立型キッチン、ペット相談、2沿線利用可、耐火構造、3駅以上利用可、敷地内ごみ置き場、都市ガス、保証会社利用可 敷金積み増し【ペット飼育の場合敷金1ヶ月(総額)】 入居日:'26年3月下旬 | ||
部屋の情報
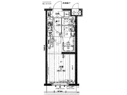
| 間取り | 1K | 専有面積 | 26.07m2 |
|---|---|---|---|
| 所在階 / 向き | 2階 / 西 | バルコニー面積 | - |
| 水道 / ガス | - | ||
| 設備 | バス・トイレ別、2階以上、オートロック、テレビドアホン、宅配ボックス、システムキッチン、エアコン、温水洗浄便座、バルコニー、洗髪洗面化粧台、2口コンロ、コンロ:ガス、洗濯機:室内 | ||
| 当社物件ID | 38030967 | ||
建物の情報
| 建物名 | メインステージ板橋蓮根II | ||
|---|---|---|---|
| 所在地 | 東京都板橋区坂下 | ||
| 交通 | 都営三田線 蓮根駅 徒歩8分 都営三田線 志村三丁目駅 徒歩13分 JR埼京線 浮間舟渡駅 徒歩18分 | ||
| 階数 | 5階建 | 総戸数 | - |
| 築年月 | 2015年11月 / 築11年 | エレベーター | - |
| 駐車場 | なし | バイク置き場 | - |
| 駐輪場 | あり | 管理人/管理会社 | - |
| 周辺環境 | その他 坂下三丁目緑地(公園)まで220m その他 志村警察署 坂下交番(警察署・交番)まで328m その他 蓮根ロイヤルクリニック(病院)まで727m その他 ファミリーマート 坂下二丁目店(コンビニ)まで152m その他 西友 蓮根坂下店(スーパー)まで300m | ||
| 建物種別 | マンション | 建物構造 | RC(鉄筋コンクリート) |
この部屋の取扱い不動産会社
| 会社名 | ハウス・トゥ・ハウス・ネットサービス(株)巣鴨店(SUUMO経由) | ||
|---|---|---|---|
| 所在地 | 東京都豊島区巣鴨2-3-10清水ビル6F | 交通 | - |
| 営業時間 | 10:00~18:30(1月~3月は9:30~) | 定休日 | 水曜日(1月~3月無休) |
| 免許番号 | 国土交通大臣7400 | 取引態様 | 仲介 |
| 不動産会社管理番号 | 100489160576 | 当社管理番号 | 89 |
| 所属団体 | (公社)全日本不動産協会東京都本部会員 | ||
| 公正取引協議会 | (公社)首都圏不動産公正取引協議会加盟 | ||
| 取扱い物件情報 | 物件詳細へ | ||
※各種情報と現状に差異がある場合は、現状優先となります。問い合わせをすることで、より詳しい条件、情報を確認する事ができます。
提供:ハウス・トゥ・ハウス・ネットサービス(株)巣鴨店(SUUMO経由)
この物件が気になったら掲載期限まであと11日
メインステージ板橋蓮根IIに条件(家賃・エリア)が近い物件一覧
| 写真 | 家賃 管理費等 | 敷金 礼金 | 間取り 専有面積 | 築年数 | 最寄り駅 所在地 | キープ | 詳細 |
|---|---|---|---|---|---|---|---|
マンション ダイホープラザ東十条(1K/5階) | |||||||
![]() | 6.9万円 6,000円 | 6.9万円 6.9万円 | 1K 16.07m2 | 築38年 | JR京浜東北線 東十条駅 徒歩5分 東京メトロ南北線 王子神谷駅 徒歩10分 JR埼京線 十条駅(東京) 徒歩14分 東京都北区東十条 | 詳細を見る | |
マンション ウィズ池袋(ワンルーム/2階) | |||||||
![]() | 7.2万円 3,000円 | 7.2万円 なし | ワンルーム 19.14m2 | 築33年 | 東京メトロ副都心線 池袋駅 徒歩10分 東京メトロ有楽町線 要町駅 徒歩10分 東武東上線 北池袋駅 徒歩17分 東京都豊島区池袋 | 詳細を見る | |
マンション クレイシアIDZ王子マークプレイス(1K/2階) | |||||||
![]() | 10.9万円 1.5万円 | 10.9万円 10.9万円 | 1K 25.8m2 | 築5年 | 東京メトロ南北線 王子駅 徒歩4分 都電荒川線 王子駅前駅 徒歩6分 JR京浜東北線 王子駅 徒歩7分 東京都北区王子 | 詳細を見る | |
マンション メインステージ板橋志村Ⅲ(1LDK/2階) | |||||||
![]() | 14.3万円 1.5万円 | なし なし | 1LDK 36.06m2 | 築1年 | 東京都三田線 志村三丁目駅 徒歩8分 東京都板橋区志村3丁目 | 詳細を見る | |
マンション ラジッド・ハウス松岡(1DK/2階) | |||||||
![]() | 6.5万円 2,000円 | 6.5万円 6.5万円 | 1DK 25m2 | 築45年 | 西武池袋・豊島線 練馬駅 徒歩15分 西武鉄道新宿線 都立家政駅 徒歩16分 東京都練馬区中村1丁目 | 詳細を見る | |
マンション レピュア蓮根レジデンスイースト(1K/4階) | |||||||
![]() | 7.9万円 1.2万円 | なし 7.9万円 | 1K 18.06m2 | 築5年 | 都営三田線 蓮根駅 徒歩12分 JR埼京線 浮間舟渡駅 徒歩16分 都営三田線 西台駅 徒歩16分 東京都板橋区坂下 | 詳細を見る | |
マンション ヴィラージュ向原(3LDK/5階) | |||||||
![]() | 14.4万円 1万円 | 14.4万円 14.4万円 | 3LDK 55.16m2 | 築31年 | 東京メトロ有楽町線 千川駅 徒歩5分 東京メトロ有楽町線 小竹向原駅 徒歩5分 東京メトロ副都心線 小竹向原駅 徒歩5分 東京都板橋区向原 | 詳細を見る | |
アパート BUZZ西台II(ワンルーム/4階) | |||||||
![]() | 8.5万円 8,000円 | なし なし | ワンルーム 18.12m2 | 築2年 | 都営三田線 西台駅 徒歩9分 都営三田線 蓮根駅 徒歩14分 都営三田線 高島平駅 徒歩17分 東京都板橋区高島平 | 詳細を見る | |




/105x80-f1-q70-wp1)



