賃貸マンション
ゴールドウッズ新長田ビルの賃貸物件情報(3LDK/4階)
| 家賃 | 管理費等 | 敷金 | 礼金 | 間取り | 専有面積 |
|---|---|---|---|---|---|
| 14.3万円 | 6,000円 | なし | 14.3万円 | 3LDK | 103.5m2 |
入居決定でお祝い金最大100,000円
- 保証金
- -
- 償却・敷引
- -
- 築年数
- 築38年
- 所在階
- 4階
- 向き
- -
Point
ご来店者様全員に、クオカード2000円プレゼント!※1グループ1名様、期限3月31日まで。
提供:(株)プラン・ドゥ・シーJR尼崎駅前店(SUUMO経由)

詳細情報 ゴールドウッズ新長田ビル
物件紹介
ゴールドウッズ新長田ビルは地下鉄海岸線駒ケ林駅から徒歩8分にあり、駅近で通勤通学に便利なマンションです。
このお部屋は2階以上に位置しているので、通行人や周囲の住人からの視線が気になりにくく、防犯面でも安心です。
人気の角部屋で周囲の居住者の生活音も気になりにくく、また、フローリングのお部屋なのでお掃除もラクラク。キッチンはシステムキッチン仕様になっていますので、お料理好きの方にもぴったり。また、バス・トイレは別で、のんびりお風呂タイムも楽しめるでしょう。
通信設備面では、インターネットが無料で使えるので、月々の出費を抑えられるのも魅力です(別途工事等が必要な場合あり)。
建物にはエレベーターがついているので、重い荷物があっても安心。
このお部屋は2階以上に位置しているので、通行人や周囲の住人からの視線が気になりにくく、防犯面でも安心です。
人気の角部屋で周囲の居住者の生活音も気になりにくく、また、フローリングのお部屋なのでお掃除もラクラク。キッチンはシステムキッチン仕様になっていますので、お料理好きの方にもぴったり。また、バス・トイレは別で、のんびりお風呂タイムも楽しめるでしょう。
通信設備面では、インターネットが無料で使えるので、月々の出費を抑えられるのも魅力です(別途工事等が必要な場合あり)。
建物にはエレベーターがついているので、重い荷物があっても安心。
お金・契約の情報
※「-」と表示されているものは、実際は料金が発生するものもございます。詳細はお問い合わせください。
| 家賃 | 14.3万円 | 管理費・共益費 | 6,000円 |
|---|---|---|---|
| 敷金 | なし | 礼金 | 14.3万円 |
| 入居決定でお祝い金最大100,000円 | |||
| 保証金 | - | 償却・敷引 | - |
| 住宅保険料 | - | 更新料 | - |
| 契約形態 | - | 契約期間 | - |
| 入居・引渡期間 | - | 現況 | - |
| 契約備考 | 初期費用、入居審査の不安など、その他お困りごと是非SumoSumoにご相談下さい★女性スタッフ対応も可能☆ 室内清掃費用 27500円 3LDK 二人入居可/子供可 普通借家2年 損保【要】 バストイレ別、バルコニー、エアコン、ガスコンロ対応、クロゼット、フローリング、シャワー付洗面台、室内洗濯置、陽当り良好、シューズボックス、システムキッチン、追焚機能浴室、角住戸、温水洗浄便座、脱衣所、エレベーター、洗面所独立、洗面化粧台、閑静な住宅地、最上階、敷金不要、3口以上コンロ、2沿線利用可、エアコン2台、メゾネット、ネット専用回線、ネット使用料不要、内装リフォーム済、眺望良好、クロゼット2ヶ所、平坦地、3面バルコニー、耐火構造、3沿線以上利用可、高層階、LDK12畳以上、都市ガス、洗面所にドア、玄関収納、IT重説対応物件、初期費用カード決済可、通風良好 入居日:'26年3月中旬 | ||
部屋の情報
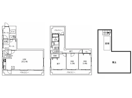
| 間取り | 3LDK | 専有面積 | 103.5m2 |
|---|---|---|---|
| 所在階 / 向き | 4階 / - | バルコニー面積 | - |
| 水道 / ガス | - | ||
| 設備 | バス・トイレ別、2階以上、追い焚き、インターネット対応、システムキッチン、エアコン、エレベーター、温水洗浄便座、角部屋、バルコニー、フローリング、洗髪洗面化粧台、2口コンロ、コンロ:ガス、インターネット使用料無料、洗濯機:室内 | ||
| 当社物件ID | 160259554 | ||
建物の情報
| 建物名 | ゴールドウッズ新長田ビル | ||
|---|---|---|---|
| 所在地 | 兵庫県神戸市長田区腕塚町 | ||
| 交通 | 地下鉄海岸線 駒ケ林駅 徒歩8分 JR山陽本線 新長田駅 徒歩9分 地下鉄西神・山手線 新長田駅 徒歩9分 | ||
| 階数 | 5階建 | 総戸数 | - |
| 築年月 | 1988年12月 / 築38年 | エレベーター | あり |
| 駐車場 | 近隣 100m16000円 | バイク置き場 | - |
| 駐輪場 | - | 管理人/管理会社 | - |
| 周辺環境 | その他 セブンイレブン 神戸大橋6丁目店(コンビニ)まで170m その他 スーパーマルハチ 新長田店(スーパー)まで197m その他 長田警察署久保交番(警察署・交番)まで190m その他 ファミリーマート アスタくにづか店(コンビニ)まで300m その他 神戸久保郵便局(郵便局)まで319m その他 マツモトキヨシ東急プラザ新長田店(ドラッグストア)まで416m | ||
| 建物種別 | マンション | 建物構造 | 鉄骨造 |
この部屋の取扱い不動産会社
| 会社名 | (株)プラン・ドゥ・シー西宮北口店(SUUMO経由) | ||
|---|---|---|---|
| 所在地 | 兵庫県西宮市甲風園1-5-8 | 交通 | - |
| 営業時間 | 10:00~19:00 | 定休日 | - |
| 免許番号 | 国土交通大臣9550 | 取引態様 | 仲介 |
| 不動産会社管理番号 | 100484247542 | 当社管理番号 | 89 |
| 所属団体 | (公社)全日本不動産協会兵庫県本部会員 | ||
| 公正取引協議会 | (公社)近畿地区不動産公正取引協議会加盟 | ||
| 取扱い物件情報 | 物件詳細へ | ||
※各種情報と現状に差異がある場合は、現状優先となります。問い合わせをすることで、より詳しい条件、情報を確認する事ができます。
提供:(株)プラン・ドゥ・シー西宮北口店(SUUMO経由)
この物件が気になったら掲載期限まであと11日
ゴールドウッズ新長田ビルに条件(家賃・エリア)が近い物件一覧
| 写真 | 家賃 管理費等 | 敷金 礼金 | 間取り 専有面積 | 築年数 | 最寄り駅 所在地 | キープ | 詳細 |
|---|---|---|---|---|---|---|---|
アパート グランアヴァンティ2B(2DK/2階) | |||||||
![]() | 11万円 6,000円 | 3万円 20万円 | 2DK 53.48m2 | 築13年 | 山陽電気鉄道本線 中八木駅 徒歩12分 山陽本線 大久保駅(兵庫) 徒歩20分 兵庫県明石市大久保町谷八木 | 詳細を見る | |
アパート シャーメゾン西明石Ⅰ(2LDK/2階) | |||||||
![]() | 9.2万円 4,000円 | 3万円 なし | 2LDK 65m2 | 築18年 | 東海道・山陽新幹線 西明石駅 徒歩23分 山陽本線 西明石駅 徒歩23分 山陽本線 大久保駅(兵庫) 徒歩29分 兵庫県明石市沢野南町3 | 詳細を見る | |
マンション 山陽電気鉄道本線 林崎松江海岸駅 徒歩3分 築29年(2LDK/2階) | |||||||
![]() | 8.6万円 6,000円 | なし 20万円 | 2LDK 67.12m2 | 築29年 | 山陽電気鉄道本線 林崎松江海岸駅 徒歩3分 山陽電気鉄道本線 西新町駅 徒歩23分 山陽本線 西明石駅 徒歩30分 兵庫県明石市林崎町3丁目 | 詳細を見る | |
マンション シャーメゾンTAMBA(2LDK/3階) | |||||||
![]() | 13.6万円 8,500円 | 3万円 なし | 2LDK 64.07m2 | 築3年 | 山陽電気鉄道本線 人丸前駅 徒歩1分 山陽電気鉄道本線 大蔵谷駅 徒歩7分 山陽本線 明石駅 徒歩13分 兵庫県明石市大蔵天神町 | 詳細を見る | |
アパート LA MAISON林崎(2LDK/2階) | |||||||
![]() | 12.5万円 7,000円 | 3万円 25万円 | 2LDK 58.68m2 | 築1年 | 山陽電気鉄道本線 林崎松江海岸駅 徒歩9分 山陽電気鉄道本線 西新町駅 徒歩12分 兵庫県明石市林崎1 | 詳細を見る | |
アパート D-ROOM国芳(1LDK/2階) | |||||||
![]() | 11.9万円 6,000円 | 2万円 10万円 | 1LDK 55.14m2 | 築3年 | 山陽電鉄本線 林崎松江海岸駅 徒歩7分 山陽電鉄本線 西新町駅 徒歩22分 山陽新幹線 西明石駅 徒歩26分 兵庫県明石市貴崎 | 詳細を見る | |
アパート グランドールⅠ(2LDK/2階) | |||||||
![]() | 8.9万円 3,000円 | なし 8.9万円 | 2LDK 56.48m2 | 新築 | 神戸電鉄粟生線 広野ゴルフ場前駅 徒歩10分 兵庫県三木市志染町東自由が丘1丁目 | 詳細を見る | |
アパート グランドールⅡ(2LDK/2階) | |||||||
![]() | 8.7万円 3,000円 | なし 8.7万円 | 2LDK 56.08m2 | 新築 | 神戸電鉄粟生線 広野ゴルフ場前駅 徒歩10分 神戸電鉄粟生線 志染駅 徒歩19分 兵庫県三木市志染町東自由が丘1丁目 | 詳細を見る | |








