賃貸マンション
ルミエール松島の賃貸物件情報(1LDK/4階)
| 家賃 | 管理費等 | 敷金 | 礼金 | 間取り | 専有面積 |
|---|---|---|---|---|---|
| 6.9万円 | 3,000円 | なし | なし | 1LDK | 43.5m2 |
入居決定でお祝い金最大100,000円
- 保証金
- -
- 償却・敷引
- -
- 築年数
- 築20年
- 所在階
- 4階
- 向き
- 東
Point
収納はクロゼット・シューズボックス・全居室収納など豊富なので、衣類や履き物の整理がしやすく便利です。室内設備は洗面所独立・浴室乾燥機などが揃っており、とても充実しています。
提供:エイブルネットワーク倉敷駅北店(株)アークス(SUUMO経由)

詳細情報 ルミエール松島
物件紹介
ルミエール松島はJR山陽本線中庄駅から徒歩5分にあり、駅近で通勤通学に便利なマンションです。
このお部屋は2階以上に位置しているので、通行人や周囲の住人からの視線が気になりにくく、防犯面でも安心。建物のエントランスはオートロックがついており、インターホンにはTVモニタもついているため、相手の顔を確認してから来客対応することができます。
フローリングのお部屋なのでお掃除もラクラク。キッチンはシステムキッチン仕様になっていますので、お料理好きの方にもぴったり。バス・トイレは別なので、のんびりお風呂タイムも楽しめるでしょう。また、雨の日でも浴室乾燥機を使えば、お洗濯も問題ありません。
通信設備面では、インターネット接続が可能です。また、BSアンテナもありますので、おうち時間も充実するでしょう(別途工事、契約料が必要な場合あり)。
建物にはエレベーターがついているので、重い荷物があっても安心。共用部には宅配ボックスが設定されているので、不在の時にも荷物を受け取ることができます。
このお部屋は2階以上に位置しているので、通行人や周囲の住人からの視線が気になりにくく、防犯面でも安心。建物のエントランスはオートロックがついており、インターホンにはTVモニタもついているため、相手の顔を確認してから来客対応することができます。
フローリングのお部屋なのでお掃除もラクラク。キッチンはシステムキッチン仕様になっていますので、お料理好きの方にもぴったり。バス・トイレは別なので、のんびりお風呂タイムも楽しめるでしょう。また、雨の日でも浴室乾燥機を使えば、お洗濯も問題ありません。
通信設備面では、インターネット接続が可能です。また、BSアンテナもありますので、おうち時間も充実するでしょう(別途工事、契約料が必要な場合あり)。
建物にはエレベーターがついているので、重い荷物があっても安心。共用部には宅配ボックスが設定されているので、不在の時にも荷物を受け取ることができます。
お金・契約の情報
※「-」と表示されているものは、実際は料金が発生するものもございます。詳細はお問い合わせください。
| 家賃 | 6.9万円 | 管理費・共益費 | 3,000円 |
|---|---|---|---|
| 敷金 | なし | 礼金 | なし |
| 入居決定でお祝い金最大100,000円 | |||
| 保証金 | - | 償却・敷引 | - |
| 住宅保険料 | - | 更新料 | - |
| 保証会社利用 | 必須 | 保証会社名 | - |
| 保証会社費用 | - | 保証会社備考 | 保証会社利用必 全国賃貸保証 初回契約時:50%、更新時:10 000円、最低保証料20,000円 振替手数料864円(税込)/月 |
| 契約形態 | - | 契約期間 | - |
| 入居・引渡期間 | 相談 | 現況 | - |
| 契約備考 | 更新料 22000円 1LDK 普通借家2年 損保【1.8万円2年】 バストイレ別、バルコニー、エアコン、クロゼット、フローリング、TVインターホン、浴室乾燥機、オートロック、室内洗濯置、シューズボックス、システムキッチン、温水洗浄便座、脱衣所、エレベーター、洗面所独立、2口コンロ、駐輪場、宅配ボックス、光ファイバー、礼金不要、防犯カメラ、IHクッキングヒーター、照明付、全居室収納、バイク置場、オール電化、LDK12畳以上、洗面所にドア、BS、年内入居可、敷金・礼金不要 | ||
部屋の情報
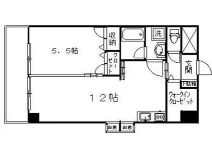
| 間取り | 1LDK | 専有面積 | 43.5m2 |
|---|---|---|---|
| 所在階 / 向き | 4階 / 東 | バルコニー面積 | - |
| 水道 / ガス | - | ||
| 設備 | バス・トイレ別、2階以上、オートロック、テレビドアホン、宅配ボックス、浴室乾燥機、インターネット対応、システムキッチン、エアコン、エレベーター、温水洗浄便座、バルコニー、フローリング、洗髪洗面化粧台、オール電化、2口コンロ、コンロ:IH、BSアンテナ、洗濯機:室内 | ||
| 当社物件ID | 160282109 | ||
建物の情報
| 建物名 | ルミエール松島 | ||
|---|---|---|---|
| 所在地 | 岡山県倉敷市松島 | ||
| 交通 | JR山陽本線 中庄駅 徒歩5分 JR山陽本線 倉敷駅 バス乗車時間:22分 最寄りバス停で下車 徒歩5分 | ||
| 階数 | 8階建 | 総戸数 | 126戸 |
| 築年月 | 2006年03月 / 築20年 | エレベーター | あり |
| 駐車場 | なし | バイク置き場 | あり |
| 駐輪場 | あり | 管理人/管理会社 | - |
| 周辺環境 | その他 イオンモール倉敷(ショッピングセンター)まで7201m その他 セブンイレブン 倉敷中庄駅前店(コンビニ)まで185m その他 ミスタードーナツ 倉敷中庄ショップ(飲食店)まで182m その他 金光薬品 倉敷中庄店(ドラッグストア)まで173m その他 業務スーパーエブリイ中庄店(スーパー)まで312m その他 ハローズ 中庄店(スーパー)まで191m | ||
| 建物種別 | マンション | 建物構造 | RC(鉄筋コンクリート) |
この部屋の取扱い不動産会社
| 会社名 | エイブルネットワーク倉敷市役所前店(株)アークス(SUUMO経由) | ||
|---|---|---|---|
| 所在地 | 岡山県倉敷市白楽町 383-3 | 交通 | - |
| 営業時間 | 10:00~18:00 | 定休日 | 年末年始 |
| 免許番号 | 国土交通大臣9898 | 取引態様 | 仲介 |
| 不動産会社管理番号 | 100485760128 | 当社管理番号 | 89 |
| 所属団体 | (一社)岡山県不動産協会会員 | ||
| 公正取引協議会 | 中国地区不動産公正取引協議会加盟 | ||
| 取扱い物件情報 | 物件詳細へ | ||
※各種情報と現状に差異がある場合は、現状優先となります。問い合わせをすることで、より詳しい条件、情報を確認する事ができます。
提供:エイブルネットワーク倉敷市役所前店(株)アークス(SUUMO経由)
この物件が気になったら掲載期限まであと11日
ルミエール松島に条件(家賃・エリア)が近い物件一覧
| 写真 | 家賃 管理費等 | 敷金 礼金 | 間取り 専有面積 | 築年数 | 最寄り駅 所在地 | キープ | 詳細 |
|---|---|---|---|---|---|---|---|
アパート AEROAD(ワンルーム/1階) | |||||||
![]() | 4.8万円 3,000円 | なし なし | ワンルーム 31.05m2 | 築3年 | 岡山電軌東山本線 東山・おかでんミュージアム駅駅 徒歩43分 岡山電軌東山本線 門田屋敷駅 徒歩48分 岡山電軌東山本線 中納言駅 徒歩50分 岡山県岡山市中区倉益 | 詳細を見る | |
アパート レオネクスト和ING(1K/1階) | |||||||
![]() | 4.6万円 4,500円 | なし 4.6万円 | 1K 23.61m2 | 築17年 | 宇野線 備前田井駅 徒歩10分 岡山県玉野市田井5丁目 | 詳細を見る | |
アパート ソレアード操山 B棟(1LDK/1階) | |||||||
![]() | 6.1万円 2,000円 | なし なし | 1LDK 43.74m2 | 築33年 | 岡山県岡山市中区原尾島 | 詳細を見る | |
マンション クレセント中仙道(3DK/1階) | |||||||
![]() | 6万円 5,000円 | 12万円 6万円 | 3DK 58.54m2 | 築31年 | JR山陽本線 北長瀬駅 徒歩12分 JR宇野線 備前西市駅 徒歩33分 JR山陽本線 岡山駅 徒歩58分 岡山県岡山市北区中仙道 | 詳細を見る | |
アパート サンパティック原尾島(2DK/2階) | |||||||
![]() | 5.5万円 なし | 5.5万円 5.5万円 | 2DK 46m2 | 築34年 | JR山陽本線 高島駅(岡山) 徒歩22分 JR山陽本線 西川原駅 徒歩30分 岡山電軌東山本線 東山・おかでんミュージアム駅駅 徒歩30分 岡山県岡山市中区原尾島 | 詳細を見る | |
アパート パミドール(2DK/2階) | |||||||
![]() | 4.8万円 4,500円 | なし 3万円 | 2DK 45.45m2 | 築23年 | 水島臨海鉄道 福井駅(岡山) 徒歩13分 水島臨海鉄道 西富井駅 徒歩16分 水島臨海鉄道 浦田駅(岡山) 徒歩25分 岡山県倉敷市中島 | 詳細を見る | |
アパート レオパレス浜野二丁目(1K/2階) | |||||||
![]() | 4.8万円 6,500円 | なし 4.8万円 | 1K 20.28m2 | 築20年 | 岡山県岡山市南区浜野2丁目 | 詳細を見る | |
マンション ルネス下中野マンション(3LDK/1階) | |||||||
![]() | 9万円 5,000円 | 27万円 9万円 | 3LDK 67m2 | 築24年 | JR宇野線 備前西市駅 徒歩15分 JR宇野線 大元駅 徒歩23分 JR山陽本線 北長瀬駅 徒歩40分 岡山県岡山市北区 | 詳細を見る | |









