賃貸アパート
GRANDTIC東照宮の賃貸物件情報(1LDK/2階)
| 家賃 | 管理費等 | 敷金 | 礼金 | 間取り | 専有面積 |
|---|---|---|---|---|---|
| 6.8万円 | 3,000円 | なし | なし | 1LDK | 30.21m2 |
入居決定でお祝い金最大100,000円
- 保証金
- -
- 償却・敷引
- -
- 築年数
- 築4年
- 所在階
- 2階
- 向き
- 北
Point
キンキホーム仙台駅前センターは他社様の掲載物件もまとめてご紹介可能です。ご来店が難しい場合のお部屋探しもお気軽にご相談ください。地下鉄仙台駅(北6出口最寄)から歩いて2分、黄色い看板が目印☆
提供:(株)キンキホーム北仙台駅前センター(SUUMO経由)

詳細情報 GRANDTIC東照宮
物件紹介
GRANDTIC東照宮はJR仙山線東照宮駅から徒歩7分にあり、駅近で通勤通学に便利なアパートです。
このお部屋は2階以上に位置しているので、通行人や周囲の住人からの視線が気になりにくく、防犯面でも安心。建物のエントランスはオートロックがついており、インターホンにはTVモニタもついているため、相手の顔を確認してから来客対応することができます。
おしゃれなデザイナーズ物件!人気の角部屋で周囲の居住者の生活音も気になりにくく、また、フローリングのお部屋なのでお掃除もラクラク。キッチンはシステムキッチン仕様になっていますので、お料理好きの方にもぴったり。バス・トイレは別なので、のんびりお風呂タイムも楽しめるでしょう。また、雨の日でも浴室乾燥機を使えば、お洗濯も問題ありません。
通信設備面では、インターネットが無料で使えるので、月々の出費を抑えられるのも魅力です(別途工事等が必要な場合あり)。
共用部には宅配ボックスが設定されているので、不在の時にも荷物を受け取ることができます。
このお部屋は2階以上に位置しているので、通行人や周囲の住人からの視線が気になりにくく、防犯面でも安心。建物のエントランスはオートロックがついており、インターホンにはTVモニタもついているため、相手の顔を確認してから来客対応することができます。
おしゃれなデザイナーズ物件!人気の角部屋で周囲の居住者の生活音も気になりにくく、また、フローリングのお部屋なのでお掃除もラクラク。キッチンはシステムキッチン仕様になっていますので、お料理好きの方にもぴったり。バス・トイレは別なので、のんびりお風呂タイムも楽しめるでしょう。また、雨の日でも浴室乾燥機を使えば、お洗濯も問題ありません。
通信設備面では、インターネットが無料で使えるので、月々の出費を抑えられるのも魅力です(別途工事等が必要な場合あり)。
共用部には宅配ボックスが設定されているので、不在の時にも荷物を受け取ることができます。
お金・契約の情報
※「-」と表示されているものは、実際は料金が発生するものもございます。詳細はお問い合わせください。
| 家賃 | 6.8万円 | 管理費・共益費 | 3,000円 |
|---|---|---|---|
| 敷金 | なし | 礼金 | なし |
| 入居決定でお祝い金最大100,000円 | |||
| 保証金 | - | 償却・敷引 | - |
| 住宅保険料 | - | 更新料 | - |
| 保証会社利用 | 必須 | 保証会社名 | 全保連 |
| 保証会社費用 | - | 保証会社備考 | 全保連利用必 初回保証料:賃料総額の50%、口座振替手数料:440円/月、更新保証料:10000円/年 |
| 契約形態 | - | 契約期間 | - |
| 入居・引渡期間 | 即時 | 現況 | - |
| 契約備考 | インターネット無料、浴室乾燥機付き、スカイバルコニー、宅配ボックス付き、防犯カメラ、オートロック、TVインターホン付 合計7.15万円(内訳:ルームクリーニング代55000円、室内消毒費16500円) 町内会費300円/月、安心サポート700円/月 火災保険800円/月 1LDK 二人入居可 損保【要】 バストイレ別、バルコニー、エアコン、クロゼット、シャワー付洗面台、TVインターホン、浴室乾燥機、オートロック、室内洗濯置、陽当り良好、シューズボックス、システムキッチン、角住戸、温水洗浄便座、脱衣所、洗面所独立、洗面化粧台、2口コンロ、駐輪場、宅配ボックス、光ファイバー、礼金不要、2面採光、敷金不要、防犯カメラ、照明付、全居室洋室、保証人不要、二人入居相談、24時間緊急通報システム、全居室フローリング、ガスレンジ付、デザイナーズ、2沿線利用可、駅まで平坦、ネット使用料不要、眺望良好、ルーフバルコニー、築2年以内、24時間換気システム、TV付浴室、複層ガラス、平坦地、2駅利用可、3駅以上利用可、駅徒歩10分以内、敷地内ごみ置き場、洗面所にドア、敷金・礼金不要、IT重説対応物件、通風良好 | ||
部屋の情報
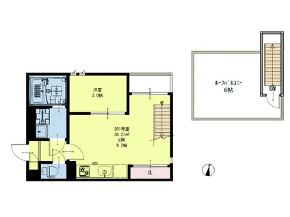
| 間取り | 1LDK | 専有面積 | 30.21m2 |
|---|---|---|---|
| 所在階 / 向き | 2階 / 北 | バルコニー面積 | - |
| 水道 / ガス | - | ||
| 設備 | バス・トイレ別、2階以上、オートロック、テレビドアホン、宅配ボックス、浴室乾燥機、インターネット対応、システムキッチン、エアコン、温水洗浄便座、角部屋、バルコニー、フローリング、洗髪洗面化粧台、2口コンロ、コンロ:ガス、デザイナーズ、インターネット使用料無料、洗濯機:室内 | ||
| 当社物件ID | 102490528 | ||
建物の情報
| 建物名 | GRANDTIC東照宮 | ||
|---|---|---|---|
| 所在地 | 宮城県仙台市青葉区高松 | ||
| 交通 | JR仙山線 東照宮駅 徒歩7分 仙台市地下鉄南北線 台原駅 徒歩33分 JR仙石線 榴ケ岡駅 徒歩34分 | ||
| 階数 | 2階建 | 総戸数 | - |
| 築年月 | 2022年05月 / 築4年 | エレベーター | - |
| 駐車場 | 近隣 300m8800円 | バイク置き場 | - |
| 駐輪場 | あり | 管理人/管理会社 | - |
| 周辺環境 | その他 イオン仙台宮町店(スーパー)まで857m その他 仙台中江病院(病院)まで516m その他 仙台銀行宮町支店(銀行)まで607m その他 ローソン仙台高松店(コンビニ)まで483m その他 ツルハドラッグ仙台二の森店(ドラッグストア)まで673m その他 仙台中江郵便局(郵便局)まで622m | ||
| 建物種別 | アパート | 建物構造 | 木造 |
この部屋の取扱い不動産会社
| 会社名 | (株)キンキホーム仙台駅前センター(SUUMO経由) | ||
|---|---|---|---|
| 所在地 | 宮城県仙台市青葉区中央2-11-30 YSビル2階 | 交通 | - |
| 営業時間 | 9:00~18:00 | 定休日 | 年末年始(12/27~1/3) |
| 免許番号 | 国土交通大臣4468 | 取引態様 | 仲介 |
| 不動産会社管理番号 | 100484726151 | 当社管理番号 | 89 |
| 所属団体 | (公社)全日本不動産協会宮城県本部会員 | ||
| 公正取引協議会 | 東北地区不動産公正取引協議会加盟 | ||
| 取扱い物件情報 | 物件詳細へ | ||
※各種情報と現状に差異がある場合は、現状優先となります。問い合わせをすることで、より詳しい条件、情報を確認する事ができます。
提供:(株)キンキホーム仙台駅前センター(SUUMO経由)
この物件が気になったら掲載期限まであと11日
GRANDTIC東照宮に条件(家賃・エリア)が近い物件一覧
| 写真 | 家賃 管理費等 | 敷金 礼金 | 間取り 専有面積 | 築年数 | 最寄り駅 所在地 | キープ | 詳細 |
|---|---|---|---|---|---|---|---|
マンション アブニール小田原(1K/7階) | |||||||
![]() | 5.4万円 5,000円 | なし なし | 1K 27m2 | 築26年 | 仙石線 榴ケ岡駅 徒歩10分 宮城県仙台市宮城野区小田原2丁目 | 詳細を見る | |
アパート ペアレシア吉岡(1K/2階) | |||||||
![]() | 5万円 3,000円 | なし なし | 1K 26.84m2 | 築1年 | 宮城県黒川郡大和町吉岡南2丁目 | 詳細を見る | |
アパート スプリングヴィラ桜ヶ丘(1LDK/1階) | |||||||
![]() | 5.4万円 2,000円 | なし なし | 1LDK 42.43m2 | 築19年 | JR仙山線 北山駅(宮城) 徒歩33分 宮城県仙台市青葉区桜ケ丘 | 詳細を見る | |
マンション メープルI(1DK/4階) | |||||||
![]() | 5.4万円 なし | なし なし | 1DK 32.25m2 | 築24年 | JR仙山線 北山駅(宮城) 徒歩15分 仙台市地下鉄南北線 北仙台駅 徒歩20分 仙台市地下鉄南北線 北四番丁駅 徒歩23分 宮城県仙台市青葉区新坂町 | 詳細を見る | |
アパート グレイスコートまほろば(1K/2階) | |||||||
![]() | 4.7万円 2,000円 | なし なし | 1K 30.18m2 | 築7年 | 宮城県黒川郡大和町吉岡まほろば | 詳細を見る | |
マンション 朝日プラザ鷺ヶ森ロイヤルクレスト(3LDK/3階) | |||||||
![]() | 7万円 3,000円 | 14万円 なし | 3LDK 66.27m2 | 築34年 | 仙台市地下鉄南北線 台原駅 徒歩22分 宮城県仙台市青葉区鷺ケ森 | 詳細を見る | |
マンション PISO FORTUNA(1K/3階) | |||||||
![]() | 6.6万円 5,500円 | 13.2万円 6.6万円 | 1K 29.64m2 | 築19年 | 仙台市地下鉄東西線 青葉通一番町駅 徒歩5分 仙台市地下鉄東西線 大町西公園駅 徒歩9分 仙台市地下鉄南北線 広瀬通駅 徒歩10分 宮城県仙台市青葉区国分町 | 詳細を見る | |
マンション シーズンフラッツ上杉(1LDK/7階) | |||||||
![]() | 9.6万円 8,000円 | 9.6万円 なし | 1LDK 36.02m2 | 築18年 | 仙台市地下鉄南北線 勾当台公園駅 徒歩5分 仙台市地下鉄南北線 北四番丁駅 徒歩5分 仙台市地下鉄南北線 広瀬通駅 徒歩13分 宮城県仙台市青葉区上杉 | 詳細を見る | |








