賃貸マンション
LA FASE ESTIERRA AKASAKAの賃貸物件情報(1LDK/10階)
| 家賃 | 管理費等 | 敷金 | 礼金 | 間取り | 専有面積 |
|---|---|---|---|---|---|
| 8.4万円 | 4,000円 | なし | 16.8万円 | 1LDK | 31.08m2 |
入居決定でお祝い金最大100,000円
- 保証金
- -
- 償却・敷引
- -
- 築年数
- 築12年
- 所在階
- 10階
- 向き
- 東
Point
まずはお問い合わせ!
不動産会社は街のプロ、あなたに合った物件がきっと見つかります。
提供:HALE不動産 福岡天神店(株)HALE(SUUMO経由)

詳細情報 LA FASE ESTIERRA AKASAKA
物件紹介
LA FASE ESTIERRA AKASAKAは地下鉄空港線赤坂駅から徒歩6分にあり、駅近で通勤通学に便利なマンションです。
このお部屋は2階以上に位置しているので、通行人や周囲の住人からの視線が気になりにくく、防犯面でも安心。建物のエントランスはオートロックがついており、インターホンにはTVモニタもついているため、相手の顔を確認してから来客対応することができます。
おしゃれなデザイナーズ物件!人気の角部屋で周囲の居住者の生活音も気になりにくく、また、フローリングのお部屋なのでお掃除もラクラク。室内にはウォークインクローゼットがありますので、たくさんの荷物も効率的に収納ができます。キッチンはシステムキッチン仕様になっていますので、お料理好きの方にもぴったり。また、バス・トイレは別で、のんびりお風呂タイムも楽しめるでしょう。
通信設備面では、インターネット接続が可能です。また、BSアンテナ・CSアンテナもありますので、おうち時間も充実するでしょう(別途工事、契約料が必要な場合あり)。
建物にはエレベーターがついているので、重い荷物があっても安心。共用部には宅配ボックスが設定されているので、不在の時にも荷物を受け取ることができます。
このお部屋は2階以上に位置しているので、通行人や周囲の住人からの視線が気になりにくく、防犯面でも安心。建物のエントランスはオートロックがついており、インターホンにはTVモニタもついているため、相手の顔を確認してから来客対応することができます。
おしゃれなデザイナーズ物件!人気の角部屋で周囲の居住者の生活音も気になりにくく、また、フローリングのお部屋なのでお掃除もラクラク。室内にはウォークインクローゼットがありますので、たくさんの荷物も効率的に収納ができます。キッチンはシステムキッチン仕様になっていますので、お料理好きの方にもぴったり。また、バス・トイレは別で、のんびりお風呂タイムも楽しめるでしょう。
通信設備面では、インターネット接続が可能です。また、BSアンテナ・CSアンテナもありますので、おうち時間も充実するでしょう(別途工事、契約料が必要な場合あり)。
建物にはエレベーターがついているので、重い荷物があっても安心。共用部には宅配ボックスが設定されているので、不在の時にも荷物を受け取ることができます。
お金・契約の情報
※「-」と表示されているものは、実際は料金が発生するものもございます。詳細はお問い合わせください。
| 家賃 | 8.4万円 | 管理費・共益費 | 4,000円 |
|---|---|---|---|
| 敷金 | なし | 礼金 | 16.8万円 |
| 入居決定でお祝い金最大100,000円 | |||
| 保証金 | - | 償却・敷引 | - |
| 住宅保険料 | - | 更新料 | - |
| 保証会社利用 | 必須 | 保証会社名 | リクルートフォレントインシュア |
| 保証会社費用 | - | 保証会社備考 | オリコフォレントインシュア利用必 オリコフォレントインシュア・オリコ 初回保証料:60%、月次保証料:1.2% →審査落ちの場合、フォーシーズ・日本セーフティーで再審査 |
| 契約形態 | - | 契約期間 | - |
| 入居・引渡期間 | 相談 | 現況 | - |
| 契約備考 | 初期費用のクレジットカード払い可(分割可能)です。他の会社様が掲載している物件でもご紹介可能です。◆公共交通機関をご利用して来られる方は、駅までの送迎サービスを行っています。◆仲介手数料0円の物件も取り扱っております。◆電話・Line・メールにて対応可能です。お急ぎの方はお電話下さい。メールの場合お返事に1日頂く場合も御座います。 合計4.6万円(内訳:室内消毒代11000円/鍵交換費用35000円) 24サポート代1100円/月 1LDK 普通借家2年 損保【要】 バストイレ別、エアコン、ガスコンロ対応、TVインターホン、オートロック、室内洗濯置、シューズボックス、システムキッチン、脱衣所、エレベーター、洗面所独立、洗面化粧台、2口コンロ、宅配ボックス、BS・CS、敷金不要、防犯カメラ、ウォークインクロゼット、仲手0.55ヶ月、駅まで平坦、浴室に窓、24時間換気システム、平坦地、3駅以上利用可、駅徒歩10分以内、高層階、プロパンガス、礼金2ヶ月 | ||
部屋の情報
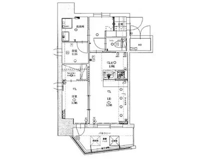
| 間取り | 1LDK | 専有面積 | 31.08m2 |
|---|---|---|---|
| 所在階 / 向き | 10階 / 東 | バルコニー面積 | - |
| 水道 / ガス | - | ||
| 設備 | バス・トイレ別、2階以上、オートロック、テレビドアホン、宅配ボックス、ウォークインクローゼット、システムキッチン、エアコン、エレベーター、洗髪洗面化粧台、2口コンロ、コンロ:ガス、CSアンテナ、BSアンテナ、洗濯機:室内 | ||
| 当社物件ID | 160515410 | ||
建物の情報
| 建物名 | LA FASE ESTIERRA AKASAKA | ||
|---|---|---|---|
| 所在地 | 福岡県福岡市中央区大手門 | ||
| 交通 | 地下鉄空港線 赤坂駅(福岡) 徒歩6分 地下鉄空港線 大濠公園駅 徒歩9分 地下鉄空港線 天神駅 徒歩15分 | ||
| 階数 | 13階建 | 総戸数 | 47戸 |
| 築年月 | 2015年02月 / 築12年 | エレベーター | あり |
| 駐車場 | なし | バイク置き場 | - |
| 駐輪場 | - | 管理人/管理会社 | - |
| 周辺環境 | その他 福岡大名ガーデンシティ(ショッピングセンター)まで1143m その他 中央警察署舞鶴交番(警察署・交番)まで1074m その他 博多診療所(病院)まで229m その他 サニー福岡長浜店(スーパー)まで350m その他 ファミリーマート 福岡長浜店(コンビニ)まで155m | ||
| 建物種別 | マンション | 建物構造 | RC(鉄筋コンクリート) |
この部屋の取扱い不動産会社
| 会社名 | いい部屋ネット天神店(株)トーマスリビング(SUUMO経由) | ||
|---|---|---|---|
| 所在地 | 福岡県福岡市中央区天神3-3-6 天神サンビル7-A | 交通 | - |
| 営業時間 | 10:00~19:00 | 定休日 | 不定休 |
| 免許番号 | 国土交通大臣8479 | 取引態様 | 仲介 |
| 不動産会社管理番号 | 100492181839 | 当社管理番号 | 89 |
| 所属団体 | (公社)全日本不動産協会福岡県本部会員 | ||
| 公正取引協議会 | (一社)九州不動産公正取引協議会加盟 | ||
| 取扱い物件情報 | 物件詳細へ | ||
※各種情報と現状に差異がある場合は、現状優先となります。問い合わせをすることで、より詳しい条件、情報を確認する事ができます。
提供:いい部屋ネット天神店(株)トーマスリビング(SUUMO経由)
この物件が気になったら掲載期限まであと11日
LA FASE ESTIERRA AKASAKAに条件(家賃・エリア)が近い物件一覧
| 写真 | 家賃 管理費等 | 敷金 礼金 | 間取り 専有面積 | 築年数 | 最寄り駅 所在地 | キープ | 詳細 |
|---|---|---|---|---|---|---|---|
アパート 博多南線 博多南駅 徒歩6分 築22年(2LDK/2階) | |||||||
![]() | 6.8万円 2,000円 | なし 13.6万円 | 2LDK 55.73m2 | 築22年 | 博多南線 博多南駅 徒歩6分 鹿児島本線 南福岡駅 徒歩43分 福岡県春日市 | 詳細を見る | |
マンション ウェルス春日(2LDK/2階) | |||||||
![]() | 5.8万円 5,000円 | なし なし | 2LDK 45m2 | 築37年 | 西鉄天神大牟田線 井尻駅 徒歩15分 鹿児島本線 笹原駅 徒歩15分 鹿児島本線 南福岡駅 徒歩22分 福岡県春日市須玖北3丁目 | 詳細を見る | |
マンション ポルト・リジエール(2LDK/2階) | |||||||
![]() | 6.9万円 4,000円 | 6.9万円 13.8万円 | 2LDK 56.43m2 | 築18年 | 博多南線 博多南駅 徒歩8分 鹿児島本線 南福岡駅 徒歩48分 鹿児島本線 春日駅(福岡) 徒歩50分 福岡県春日市 | 詳細を見る | |
アパート シャルム須玖南(2LDK/2階) | |||||||
![]() | 7万円 3,800円 | なし 10.5万円 | 2LDK 69.94m2 | 築22年 | 西鉄天神大牟田線 井尻駅 徒歩27分 鹿児島本線 南福岡駅 徒歩28分 博多南線 博多南駅 徒歩31分 福岡県春日市須玖南5丁目 | 詳細を見る | |
マンション クレセントパレス(3LDK/2階) | |||||||
![]() | 7.5万円 4,000円 | なし 7.5万円 | 3LDK 66.25m2 | 築32年 | 鹿児島本線 南福岡駅 徒歩19分 西鉄天神大牟田線 井尻駅 徒歩20分 鹿児島本線 笹原駅 徒歩24分 福岡県春日市須玖南1丁目 | 詳細を見る | |
アパート グレイス上白水(2LDK/1階) | |||||||
![]() | 5.1万円 なし | なし 5.1万円 | 2LDK 45.77m2 | 築31年 | 博多南線 博多南駅 徒歩10分 鹿児島本線 南福岡駅 徒歩49分 西鉄天神大牟田線 春日原駅 徒歩55分 福岡県春日市 | 詳細を見る | |
マンション レークサイドパーク(3LDK/4階) | |||||||
![]() | 6万円 2,000円 | なし 6万円 | 3LDK 64.26m2 | 築37年 | 博多南線 博多南駅 徒歩28分 西鉄天神大牟田線 白木原駅 徒歩46分 鹿児島本線 大野城駅 徒歩48分 福岡県春日市大土居1丁目 | 詳細を見る | |
アパート CASA(1K/2階) | |||||||
![]() | 6万円 3,000円 | なし 12万円 | 1K 26.27m2 | 築10年 | 博多南線 博多南駅 徒歩23分 鹿児島本線 南福岡駅 徒歩31分 鹿児島本線 春日駅(福岡) 徒歩35分 福岡県春日市昇町3丁目 | 詳細を見る | |








