賃貸マンション
プラウド元麻布の賃貸物件情報(3LDK/3階)
| 家賃 | 管理費等 | 敷金 | 礼金 | 間取り | 専有面積 |
|---|---|---|---|---|---|
| 185万円 | なし | 370万円 | 185万円 | 3LDK | 120.9m2 |
入居決定でお祝い金最大100,000円
- 保証金
- -
- 償却・敷引
- -
- 築年数
- 築16年
- 所在階
- 3階
- 向き
- 西
Point
ハイルーフ駐車場付き(賃料込み)食洗機・ディスポーザー・床暖房・などの設備も充実。コンシェルジュサービスやゴミ回収サービスなどもあり、徹底的に『やすらぎ』を追求した高級分譲マンションとなっております。
提供:(株)Modern Standard(SUUMO経由)

詳細情報 プラウド元麻布
物件紹介
プラウド元麻布は東京メトロ南北線麻布十番駅から徒歩9分にあり、駅近で通勤通学に便利なマンションです。
このお部屋は2階以上に位置しているので通行人や周囲の住人からの視線が気になりにくく、建物のエントランスはオートロックがついているので防犯性が高くなっています。
人気の角部屋で周囲の居住者の生活音も気になりにくく、また、フローリングのお部屋なのでお掃除もラクラク。キッチンはシステムキッチン仕様になっていますので、お料理好きの方にもぴったり。バス・トイレは別なので、のんびりお風呂タイムも楽しめるでしょう。また、雨の日でも浴室乾燥機を使えば、お洗濯も問題ありません。
通信設備面ではBSアンテナ・CSアンテナがありますので、おうち時間も充実するでしょう(別途工事、契約料が必要な場合あり)。
床暖房があり、冬も足元から暖かく快適に過ごすことができます。建物にはエレベーターがついているので、重い荷物があっても安心。共用部には宅配ボックスが設定されているので、不在の時にも荷物を受け取ることができます。また、ペット飼育の相談ができますので、あなたの大切な家族の一員も快適に暮らせるか、ぜひ確認してみてください。
このお部屋は2階以上に位置しているので通行人や周囲の住人からの視線が気になりにくく、建物のエントランスはオートロックがついているので防犯性が高くなっています。
人気の角部屋で周囲の居住者の生活音も気になりにくく、また、フローリングのお部屋なのでお掃除もラクラク。キッチンはシステムキッチン仕様になっていますので、お料理好きの方にもぴったり。バス・トイレは別なので、のんびりお風呂タイムも楽しめるでしょう。また、雨の日でも浴室乾燥機を使えば、お洗濯も問題ありません。
通信設備面ではBSアンテナ・CSアンテナがありますので、おうち時間も充実するでしょう(別途工事、契約料が必要な場合あり)。
床暖房があり、冬も足元から暖かく快適に過ごすことができます。建物にはエレベーターがついているので、重い荷物があっても安心。共用部には宅配ボックスが設定されているので、不在の時にも荷物を受け取ることができます。また、ペット飼育の相談ができますので、あなたの大切な家族の一員も快適に暮らせるか、ぜひ確認してみてください。
お金・契約の情報
※「-」と表示されているものは、実際は料金が発生するものもございます。詳細はお問い合わせください。
| 家賃 | 185万円 | 管理費・共益費 | なし |
|---|---|---|---|
| 敷金 | 370万円 | 礼金 | 185万円 |
| 入居決定でお祝い金最大100,000円 | |||
| 保証金 | - | 償却・敷引 | - |
| 住宅保険料 | - | 更新料 | - |
| 保証会社利用 | 必須 | 保証会社名 | - |
| 保証会社費用 | - | 保証会社備考 | 保証会社利用必 保証会社必須 エルズサポート 初回:60%から 以降:年間15,000円 |
| 契約形態 | 定期借家 | 契約期間 | 3年 |
| 入居・引渡期間 | 即時 | 現況 | - |
| 入居可能条件 | ペット相談 | ||
| 契約備考 | 3LDK ペット相談/事務所利用不可 定期借家3年 損保【2.4万円2年】 バストイレ別、エアコン、ガスコンロ対応、クロゼット、フローリング、浴室乾燥機、オートロック、室内洗濯置、システムキッチン、追焚機能浴室、角住戸、温水洗浄便座、エレベーター、洗面所独立、宅配ボックス、即入居可、BS・CS、3口以上コンロ、対面式キッチン、防犯カメラ、ペット相談、駐車場1台無料、分譲賃貸、全居室フローリング、床暖房、食器洗乾燥機、エアコン全室、ダブルロックキー、ディスポーザー、ペット専用設備、エレベーター2基、クロゼット3ヶ所、2駅利用可、3沿線以上利用可、アウトポール工法、24時間ゴミ出し可、敷地内ごみ置き場、LDK25畳以上、ビルトインエアコン | ||
部屋の情報
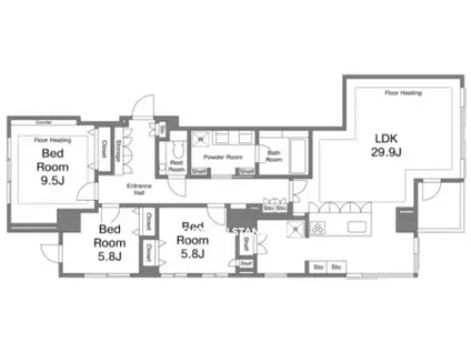
| 間取り | 3LDK | 専有面積 | 120.9m2 |
|---|---|---|---|
| 所在階 / 向き | 3階 / 西 | バルコニー面積 | - |
| 水道 / ガス | - | ||
| 設備 | バス・トイレ別、2階以上、オートロック、宅配ボックス、浴室乾燥機、追い焚き、システムキッチン、エアコン、エレベーター、温水洗浄便座、角部屋、フローリング、洗髪洗面化粧台、床暖房、2口コンロ、コンロ:ガス、CSアンテナ、BSアンテナ、洗濯機:室内 | ||
| 当社物件ID | 160157358 | ||
建物の情報
| 建物名 | プラウド元麻布 | ||
|---|---|---|---|
| 所在地 | 東京都港区元麻布 | ||
| 交通 | 東京メトロ南北線 麻布十番駅 徒歩9分 都営大江戸線 麻布十番駅 徒歩9分 東京メトロ日比谷線 広尾駅 徒歩12分 | ||
| 階数 | 地下2地上5階建 | 総戸数 | - |
| 築年月 | 2010年12月 / 築16年 | エレベーター | あり |
| 駐車場 | なし | バイク置き場 | - |
| 駐輪場 | - | 管理人/管理会社 | - |
| 周辺環境 | その他 ダイエー麻布十番店(スーパー)まで524m その他 ファミリーマート麻布運動場前店(コンビニ)まで308m その他 総本家更科堀井(飲食店)まで527m その他 THE WINE STORE DEAN&DELUCA(飲食店)まで538m その他 麻布十番郵便局(郵便局)まで610m その他 東京都立中央図書館(図書館)まで641m | ||
| 建物種別 | マンション | 建物構造 | RC(鉄筋コンクリート) |
この部屋の取扱い不動産会社
| 会社名 | (株)Modern Standard(SUUMO経由) | ||
|---|---|---|---|
| 所在地 | 東京都港区六本木3-2-1 住友不動産六本木グランドタワー40階 | 交通 | - |
| 営業時間 | 10:00~19:00 | 定休日 | - |
| 免許番号 | 東京都知事91130 | 取引態様 | 仲介 |
| 不動産会社管理番号 | 100481097551 | 当社管理番号 | 89 |
| 所属団体 | (公社)全日本不動産協会東京都本部会員 | ||
| 公正取引協議会 | (公社)首都圏不動産公正取引協議会加盟 | ||
| 取扱い物件情報 | 物件詳細へ | ||
※各種情報と現状に差異がある場合は、現状優先となります。問い合わせをすることで、より詳しい条件、情報を確認する事ができます。
提供:(株)Modern Standard(SUUMO経由)
この物件が気になったら掲載期限まであと6日
プラウド元麻布に条件(家賃・エリア)が近い物件一覧
| 写真 | 家賃 管理費等 | 敷金 礼金 | 間取り 専有面積 | 築年数 | 最寄り駅 所在地 | キープ | 詳細 |
|---|---|---|---|---|---|---|---|
マンション 三田ガーデンヒルズ イーストヒル(3LDK/9階) | |||||||
![]() | 165万円 なし | なし 165万円 | 3LDK 108.86m2 | 築2年 | 東京メトロ南北線 麻布十番駅 徒歩5分 都営大江戸線 赤羽橋駅 徒歩5分 JR山手線 田町駅(東京) 徒歩19分 東京都港区三田 | 詳細を見る | |
マンション THE COURT 神宮外苑 ザ・コートジングウガイエン(2LDK/18階) | |||||||
![]() | 115万円 5万円 | 230万円 115万円 | 2LDK 82.26m2 | 築7年 | 東京メトロ銀座線 外苑前駅 徒歩8分 都営大江戸線 国立競技場駅 徒歩11分 JR中央線 千駄ケ谷駅 徒歩14分 東京都渋谷区神宮前 | 詳細を見る | |
マンション カーサ・ドゥ・レイズ代々木上原(2LDK/2階) | |||||||
![]() | 116万円 4万円 | 116万円 なし | 2LDK 104.38m2 | 築6年 | 小田急線 代々木上原駅 徒歩5分 小田急線 東北沢駅 徒歩10分 京王新線 幡ケ谷駅 徒歩13分 東京都渋谷区大山町 | 詳細を見る | |
マンション 城山トラストコート(3LDK/5階) | |||||||
![]() | 190万円 なし | 570万円 なし | 3LDK 163.96m2 | 築35年 | 東京メトロ日比谷線 神谷町駅 徒歩3分 東京メトロ南北線 六本木一丁目駅 徒歩4分 東京メトロ銀座線 溜池山王駅 徒歩11分 東京都港区虎ノ門 | 詳細を見る | |
マンション マリックス島津山(3LDK/3階) | |||||||
![]() | 135万円 なし | 270万円 135万円 | 3LDK 206.87m2 | 築39年 | 都営浅草線 高輪台駅 徒歩7分 JR山手線 五反田駅 徒歩14分 京急本線 品川駅 徒歩15分 東京都品川区東五反田 | 詳細を見る | |
マンション グランドメゾン代官山ザパーク(3LDK/3階) | |||||||
![]() | 180万円 なし | 540万円 180万円 | 3LDK 151.42m2 | 築2年 | 東急東横線 代官山駅 徒歩10分 京王井の頭線 神泉駅 徒歩13分 東京メトロ日比谷線 中目黒駅 徒歩15分 東京都渋谷区鉢山町 | 詳細を見る | |
マンション 三田ガーデンヒルズ(2SLDK/13階) | |||||||
![]() | 117.5万円 なし | 117.5万円 117.5万円 | 2SLDK 95.25m2 | 築2年 | 東京メトロ南北線 麻布十番駅 徒歩5分 都営大江戸線 赤羽橋駅 徒歩5分 都営三田線 芝公園駅 徒歩10分 東京都港区三田 | 詳細を見る | |
マンション 松竹スクエアレジデンス(2SLDK/20階) | |||||||
![]() | 250万円 なし | 250万円 500万円 | 2SLDK 232.15m2 | 築24年 | 東京メトロ日比谷線 東銀座駅 徒歩3分 東京メトロ銀座線 銀座駅 徒歩8分 東京都中央区築地 | 詳細を見る | |









