賃貸アパート
MS HAUSの賃貸物件情報(1LDK/1階)
| 家賃 | 管理費等 | 敷金 | 礼金 | 間取り | 専有面積 |
|---|---|---|---|---|---|
| 8万円 | なし | 16万円 | 8万円 | 1LDK | 43.88m2 |
入居決定でお祝い金最大100,000円
- 保証金
- -
- 償却・敷引
- -
- 築年数
- 築5年
- 所在階
- 1階
- 向き
- 南
Point
システムキッチン・温水洗浄便座・ディンプルキー・シャワー付き洗面台他設備充実です。
提供:(株)井口不動産(SUUMO経由)

詳細情報 MS HAUS
物件紹介
MS HAUSは広島電鉄宮島線井口駅から徒歩8分にあり、駅近で通勤通学に便利なアパートです。
このお部屋のインターホンにはTVモニタがついているため、相手の顔を確認してから来客対応することができます。
おしゃれなデザイナーズ物件!人気の南向きのお部屋。角部屋でもあるため、周囲の居住者の生活音も気になりにくい場所です。キッチンはシステムキッチン仕様になっていますので、お料理好きの方にもぴったり。バス・トイレは別なので、のんびりお風呂タイムも楽しめるでしょう。また、雨の日でも浴室乾燥機を使えば、お洗濯も問題ありません。
通信設備面では、インターネットが無料で使えるので、月々の出費を抑えられるのも魅力です。また、BSアンテナ・CSアンテナもありますので、おうち時間も充実するでしょう(別途工事、BS・CSの契約料等が必要な場合あり)。
このお部屋のインターホンにはTVモニタがついているため、相手の顔を確認してから来客対応することができます。
おしゃれなデザイナーズ物件!人気の南向きのお部屋。角部屋でもあるため、周囲の居住者の生活音も気になりにくい場所です。キッチンはシステムキッチン仕様になっていますので、お料理好きの方にもぴったり。バス・トイレは別なので、のんびりお風呂タイムも楽しめるでしょう。また、雨の日でも浴室乾燥機を使えば、お洗濯も問題ありません。
通信設備面では、インターネットが無料で使えるので、月々の出費を抑えられるのも魅力です。また、BSアンテナ・CSアンテナもありますので、おうち時間も充実するでしょう(別途工事、BS・CSの契約料等が必要な場合あり)。
お金・契約の情報
※「-」と表示されているものは、実際は料金が発生するものもございます。詳細はお問い合わせください。
| 家賃 | 8万円 | 管理費・共益費 | なし |
|---|---|---|---|
| 敷金 | 16万円 | 礼金 | 8万円 |
| 入居決定でお祝い金最大100,000円 | |||
| 保証金 | - | 償却・敷引 | - |
| 住宅保険料 | - | 更新料 | - |
| 保証会社利用 | 必須 | 保証会社名 | 全保連 |
| 保証会社費用 | - | 保証会社備考 | 全保連利用必 保証料は初回一回タイプと更新タイプあり |
| 契約形態 | - | 契約期間 | - |
| 入居・引渡期間 | 相談 | 現況 | - |
| 入居可能条件 | 事務所可 | ||
| 契約備考 | おおすみストアーまで310m/弊社管理物件 1LDK 事務所利用相談/ルームシェア相談 損保【2万円2年】 バストイレ別、バルコニー、シャワー付洗面台、TVインターホン、浴室乾燥機、室内洗濯置、陽当り良好、シューズボックス、システムキッチン、南向き、追焚機能浴室、角住戸、温水洗浄便座、脱衣所、洗面所独立、洗面化粧台、2口コンロ、閑静な住宅地、BS・CS、対面式キッチン、IHクッキングヒーター、駐車場1台無料、オートバス、全居室洋室、二人入居相談、デザイナーズ、2沿線利用可、専用庭、エアコン2台、ディンプルキー、CS、ネット専用回線、ネット使用料不要、キッチンに窓、緑豊かな住宅地、眺望良好、浴室に窓、事務所相談、雨戸、1フロア1住戸、庭、複層ガラス、ルームシェア相談、両面バルコニー、玄関ポーチ、3方角住戸、耐震構造、2駅利用可、3駅以上利用可、駅徒歩10分以内、築5年以内、平面駐車場、当社管理物件、プロパンガス、シャッター、室内物干機、玄関収納、BS、年内入居可、通風良好 | ||
部屋の情報
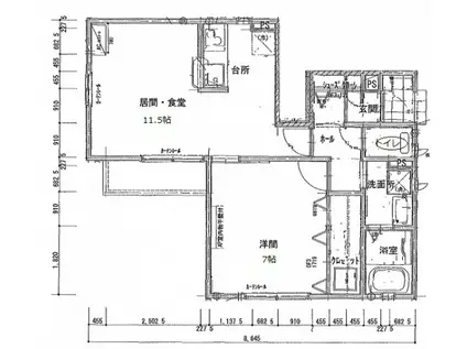
| 間取り | 1LDK | 専有面積 | 43.88m2 |
|---|---|---|---|
| 所在階 / 向き | 1階 / 南 | バルコニー面積 | - |
| 水道 / ガス | - | ||
| 設備 | バス・トイレ別、テレビドアホン、浴室乾燥機、追い焚き、インターネット対応、システムキッチン、エアコン、温水洗浄便座、南向き、角部屋、バルコニー、洗髪洗面化粧台、2口コンロ、コンロ:IH、デザイナーズ、CSアンテナ、BSアンテナ、インターネット使用料無料、専用庭、洗濯機:室内 | ||
| 当社物件ID | 100944919 | ||
建物の情報
| 建物名 | MS HAUS | ||
|---|---|---|---|
| 所在地 | 広島県広島市西区井口 | ||
| 交通 | 広島電鉄宮島線 井口駅(広島) 徒歩8分 広島電鉄宮島線 商工センター入口駅 徒歩9分 JR山陽本線 新井口駅 徒歩9分 | ||
| 階数 | 2階建 | 総戸数 | 2戸 |
| 築年月 | 2021年08月 / 築5年 | エレベーター | - |
| 駐車場 | 空有 平置駐 | バイク置き場 | - |
| 駐輪場 | - | 管理人/管理会社 | - |
| 周辺環境 | その他 アルパーク北棟(ショッピングセンター)まで850m その他 セブンイレブン広島井口明神店(コンビニ)まで790m その他 ウォンツ井口明神店(ドラッグストア)まで850m その他 広島市立井口小学校(小学校)まで670m その他 井口保育園(幼稚園・保育園)まで660m その他 広島井口郵便局(郵便局)まで420m | ||
| 建物種別 | アパート | 建物構造 | 木造 |
この部屋の取扱い不動産会社
| 会社名 | (株)井口不動産(SUUMO経由) | ||
|---|---|---|---|
| 所在地 | 広島県広島市西区井口1-5-12 | 交通 | - |
| 営業時間 | AM9:00~PM6:00 | 定休日 | 日曜・祝日 |
| 免許番号 | 広島県知事2286 | 取引態様 | 仲介 |
| 不動産会社管理番号 | 100487041334 | 当社管理番号 | 89 |
| 所属団体 | (公社)広島県宅地建物取引業協会会員 | ||
| 公正取引協議会 | 中国地区不動産公正取引協議会加盟 | ||
| 取扱い物件情報 | 物件詳細へ | ||
※各種情報と現状に差異がある場合は、現状優先となります。問い合わせをすることで、より詳しい条件、情報を確認する事ができます。
提供:(株)井口不動産(SUUMO経由)
この物件が気になったら掲載期限まであと11日
MS HAUSに条件(家賃・エリア)が近い物件一覧
| 写真 | 家賃 管理費等 | 敷金 礼金 | 間取り 専有面積 | 築年数 | 最寄り駅 所在地 | キープ | 詳細 |
|---|---|---|---|---|---|---|---|
一戸建て 広島県廿日市市 築23年(4SLDK) | |||||||
![]() | 9万円 なし | 27万円 9万円 | 4SLDK 128.34m2 | 築23年 | 広島県廿日市市四季が丘2丁目 | 詳細を見る | |
一戸建て 広島県山県郡北広島町 築30年(3LDK) | |||||||
![]() | 6万円 なし | 18万円 6万円 | 3LDK 89.34m2 | 築30年 | 広島県山県郡北広島町中祖 | 詳細を見る | |



