賃貸マンション
S-RESIDENCE今池BELETA12月契約限定キャの賃貸物件情報(1K/5階)
| 家賃 | 管理費等 | 敷金 | 礼金 | 間取り | 専有面積 |
|---|---|---|---|---|---|
| 7万円 | 8,000円 | なし | なし | 1K | 25.6m2 |
入居決定でお祝い金最大100,000円
- 保証金
- -
- 償却・敷引
- -
- 築年数
- 築1年
- 所在階
- 5階
- 向き
- 南
Point
この物件には浴室乾燥機がついているので、浴室内の温度を自由に調節でき、快適なバスタイムを過ごせます。セキュリティ面は、TVインターホン・オートロックなど充実しているので、防犯対策もばっちりです。
提供:(株)ニッショー池下支店(SUUMO経由)

詳細情報 S-RESIDENCE今池BELETA12月契約限定キャ
物件紹介
S-RESIDENCE今池BELETA12月契約限定キャは地下鉄東山線今池駅から徒歩6分にあり、駅近で通勤通学に便利なマンションです。
このお部屋は2階以上に位置しているので、通行人や周囲の住人からの視線が気になりにくく、防犯面でも安心。建物のエントランスはオートロックがついており、インターホンにはTVモニタもついているため、相手の顔を確認してから来客対応することができます。
人気の南向きのお部屋。また、フローリングなのでお掃除もラクラク。バス・トイレ別の仕様で、のんびりお風呂タイムも楽しめます。また、浴室乾燥機を使えば、雨の日でもお洗濯は問題ありません。
通信設備面では、インターネットが無料で使えるので、月々の出費を抑えられるのも魅力です(別途工事等が必要な場合あり)。
建物にはエレベーターがついているので、重い荷物があっても安心。共用部には宅配ボックスが設定されているので、不在の時にも荷物を受け取ることができます。
このお部屋は2階以上に位置しているので、通行人や周囲の住人からの視線が気になりにくく、防犯面でも安心。建物のエントランスはオートロックがついており、インターホンにはTVモニタもついているため、相手の顔を確認してから来客対応することができます。
人気の南向きのお部屋。また、フローリングなのでお掃除もラクラク。バス・トイレ別の仕様で、のんびりお風呂タイムも楽しめます。また、浴室乾燥機を使えば、雨の日でもお洗濯は問題ありません。
通信設備面では、インターネットが無料で使えるので、月々の出費を抑えられるのも魅力です(別途工事等が必要な場合あり)。
建物にはエレベーターがついているので、重い荷物があっても安心。共用部には宅配ボックスが設定されているので、不在の時にも荷物を受け取ることができます。
お金・契約の情報
※「-」と表示されているものは、実際は料金が発生するものもございます。詳細はお問い合わせください。
| 家賃 | 7万円 | 管理費・共益費 | 8,000円 |
|---|---|---|---|
| 敷金 | なし | 礼金 | なし |
| 入居決定でお祝い金最大100,000円 | |||
| 保証金 | - | 償却・敷引 | - |
| 住宅保険料 | - | 更新料 | - |
| 保証会社利用 | 必須 | 保証会社名 | - |
| 保証会社費用 | - | 保証会社備考 | 保証会社利用必 近畿保証 初回保証料:総家賃の50%(1年毎12,000円)個人契約の場合は加入必須。大手法人様契約の場合は敷金として家賃1ヶ月分で対応可。 |
| 契約形態 | - | 契約期間 | - |
| 入居・引渡期間 | 即時 | 現況 | - |
| 契約備考 | 合計3.3万円(内訳:鍵交換代3.3万円) 更新料 賃料1.00ヶ月分 室内清掃費用 33000円 1K 法人希望 普通借家2年 損保【要】 バルコニー、エアコン、ガスコンロ対応、フローリング、TVインターホン、浴室乾燥機、オートロック、室内洗濯置、シューズボックス、温水洗浄便座、エレベーター、洗面所独立、2口コンロ、駐輪場、宅配ボックス、バイク置場、2沿線利用可、ネット使用料不要、駐車5台以上、2駅利用可、3駅以上利用可、3沿線以上利用可、駅徒歩10分以内、都市ガス | ||
部屋の情報
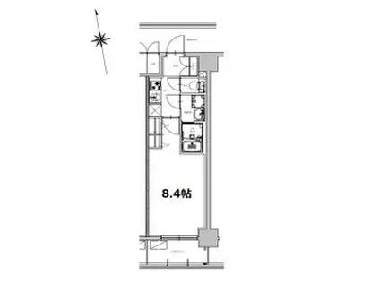
| 間取り | 1K | 専有面積 | 25.6m2 |
|---|---|---|---|
| 所在階 / 向き | 5階 / 南 | バルコニー面積 | - |
| 水道 / ガス | - | ||
| 設備 | 2階以上、オートロック、テレビドアホン、宅配ボックス、浴室乾燥機、インターネット対応、エアコン、エレベーター、温水洗浄便座、南向き、バルコニー、フローリング、洗髪洗面化粧台、2口コンロ、コンロ:ガス、インターネット使用料無料、洗濯機:室内 | ||
| 当社物件ID | 159871204 | ||
建物の情報
| 建物名 | S-RESIDENCE今池BELETA12月契約限定キャ | ||
|---|---|---|---|
| 所在地 | 愛知県名古屋市千種区今池南 | ||
| 交通 | 地下鉄東山線 今池駅(愛知) 徒歩6分 地下鉄桜通線 吹上駅(愛知) 徒歩6分 JR中央本線 千種駅 徒歩15分 | ||
| 階数 | 10階建 | 総戸数 | 58戸 |
| 築年月 | 2025年06月 / 築1年 | エレベーター | あり |
| 駐車場 | 空有 22000円 | バイク置き場 | あり |
| 駐輪場 | あり | 管理人/管理会社 | - |
| 周辺環境 | その他 名古屋外語・ホテル・ブライダル専門学校(その他)まで409m その他 コメダ珈琲 今池店(飲食店)まで507m その他 中道公園(公園)まで406m その他 今池公園(公園)まで620m その他 サンエース春岡店(スーパー)まで623m その他 タッチもとこい(スーパー)まで574m | ||
| 建物種別 | マンション | 建物構造 | RC(鉄筋コンクリート) |
この部屋の取扱い不動産会社
| 会社名 | (株)ニッショー池下支店(SUUMO経由) | ||
|---|---|---|---|
| 所在地 | 愛知県名古屋市千種区春岡1-4-8 ESSE池下1階 | 交通 | - |
| 営業時間 | 10:00~18:00 | 定休日 | 水曜定休(土日祝は営業) |
| 免許番号 | 国土交通大臣2018 | 取引態様 | 仲介 |
| 不動産会社管理番号 | 100456003734 | 当社管理番号 | 89 |
| 所属団体 | (公社)愛知県宅地建物取引業協会会員 | ||
| 公正取引協議会 | 東海不動産公正取引協議会加盟 | ||
| 取扱い物件情報 | 物件詳細へ | ||
※各種情報と現状に差異がある場合は、現状優先となります。問い合わせをすることで、より詳しい条件、情報を確認する事ができます。
提供:(株)ニッショー池下支店(SUUMO経由)
この物件が気になったら掲載期限まであと12日
S-RESIDENCE今池BELETA12月契約限定キャに条件(家賃・エリア)が近い物件一覧
| 写真 | 家賃 管理費等 | 敷金 礼金 | 間取り 専有面積 | 築年数 | 最寄り駅 所在地 | キープ | 詳細 |
|---|---|---|---|---|---|---|---|
アパート トリオネア千種(1K/2階) | |||||||
![]() | 5.75万円 4,000円 | なし なし | 1K 20.19m2 | 築8年 | 中央本線 千種駅 徒歩9分 名古屋市桜通線 吹上駅(愛知) 徒歩13分 名古屋市東山線 今池駅(愛知) 徒歩16分 愛知県名古屋市千種区千種1丁目 | 詳細を見る | |
マンション 千種アヴァンギャルドプレイス(1K/4階) | |||||||
![]() | 7.6万円 7,000円 | なし なし | 1K 30.48m2 | 築9年 | JR中央本線 鶴舞駅 徒歩9分 地下鉄東山線 新栄町駅(愛知) 徒歩15分 地下鉄名城線 矢場町駅 徒歩16分 愛知県名古屋市中区新栄 | 詳細を見る | |
アパート GIFTⅠ 旧物件名EMブランドール(1K/1階) | |||||||
![]() | 5.45万円 4,000円 | なし なし | 1K 20.33m2 | 築10年 | 名古屋市桜通線 吹上駅(愛知) 徒歩7分 中央本線 千種駅 徒歩16分 名古屋市東山線 今池駅(愛知) 徒歩19分 愛知県名古屋市千種区千種3丁目 | 詳細を見る | |
マンション ベルデアスル(1K/3階) | |||||||
![]() | 6.9万円 6,000円 | なし 6.9万円 | 1K 32.3m2 | 築16年 | 地下鉄桜通線 吹上駅(愛知) 徒歩3分 地下鉄鶴舞線 御器所駅 徒歩16分 地下鉄東山線 今池駅(愛知) 徒歩16分 愛知県名古屋市千種区大久手町 | 詳細を見る | |
マンション エステムコート名古屋新栄Ⅴラポール(1DK/3階) | |||||||
![]() | 7.85万円 5,880円 | なし なし | 1DK 28.6m2 | 築2年 | 名古屋市東山線 新栄町駅(愛知) 徒歩5分 名古屋市桜通線 高岳駅 徒歩12分 中央本線 千種駅 徒歩13分 愛知県名古屋市中区新栄2丁目 | 詳細を見る | |
マンション エステムコート名古屋葵(1K/4階) | |||||||
![]() | 6.85万円 5,430円 | なし なし | 1K 24.62m2 | 築2年 | JR中央本線 千種駅 徒歩5分 地下鉄桜通線 車道駅 徒歩6分 地下鉄東山線 新栄町駅(愛知) 徒歩6分 愛知県名古屋市東区葵 | 詳細を見る | |
マンション エステムコート名古屋新栄Ⅳネスト(1DK/15階) | |||||||
![]() | 8.05万円 6,890円 | なし なし | 1DK 28.28m2 | 築2年 | 名古屋市東山線 新栄町駅(愛知) 徒歩5分 愛知県名古屋市中区新栄2丁目 | 詳細を見る | |
マンション プレサンス今池駅前フェルディノ(1K/14階) | |||||||
![]() | 6.965万円 7,350円 | なし 7.7万円 | 1K 24.51m2 | 築3年 | 名古屋市東山線 今池駅(愛知) 徒歩1分 名古屋市桜通線 今池駅(愛知) 徒歩1分 中央本線 千種駅 徒歩11分 愛知県名古屋市千種区今池5丁目 | 詳細を見る | |









