賃貸マンション
シティハイツ米森の賃貸物件情報(2LDK/4階)
| 家賃 | 管理費等 | 敷金 | 礼金 | 間取り | 専有面積 |
|---|---|---|---|---|---|
| 7.2万円 | なし | 7.2万円 | なし | 2LDK | 69m2 |
入居決定でお祝い金最大100,000円
- 保証金
- -
- 償却・敷引
- -
- 築年数
- 築38年
- 所在階
- 4階
- 向き
- 南東
Point
まずはお問い合わせ!
不動産会社は街のプロ、あなたに合った物件がきっと見つかります。
提供:ユーミーネット鹿児島南店ユーミーコーポレーション(株)(SUUMO経由)

詳細情報 シティハイツ米森
物件紹介
シティハイツ米森はJR指宿枕崎線慈眼寺駅から徒歩9分にあり、駅近で通勤通学に便利なマンションです。
このお部屋は2階以上に位置しているので、通行人や周囲の住人からの視線が気になりにくく、防犯面でも安心。インターホンにはTVモニタもついているため、相手の顔を確認してから来客対応することができます。
人気の南向き・フローリングのお部屋。角部屋でもあるため、周囲の居住者の生活音も気になりにくい場所です。バス・トイレ別の仕様で、のんびりお風呂タイムも楽しめます。また、浴室乾燥機を使えば、雨の日でもお洗濯は問題ありません。
このお部屋は2階以上に位置しているので、通行人や周囲の住人からの視線が気になりにくく、防犯面でも安心。インターホンにはTVモニタもついているため、相手の顔を確認してから来客対応することができます。
人気の南向き・フローリングのお部屋。角部屋でもあるため、周囲の居住者の生活音も気になりにくい場所です。バス・トイレ別の仕様で、のんびりお風呂タイムも楽しめます。また、浴室乾燥機を使えば、雨の日でもお洗濯は問題ありません。
お金・契約の情報
※「-」と表示されているものは、実際は料金が発生するものもございます。詳細はお問い合わせください。
| 家賃 | 7.2万円 | 管理費・共益費 | なし |
|---|---|---|---|
| 敷金 | 7.2万円 | 礼金 | なし |
| 入居決定でお祝い金最大100,000円 | |||
| 保証金 | - | 償却・敷引 | - |
| 住宅保険料 | - | 更新料 | - |
| 保証会社利用 | 必須 | 保証会社名 | - |
| 保証会社費用 | - | 保証会社備考 | 保証会社利用必 アルファー 初回保証委託料として賃料合計の50% |
| 契約形態 | - | 契約期間 | - |
| 入居・引渡期間 | 即時 | 現況 | - |
| 契約備考 | お問い合わせはユーミーネット鹿児島南店( ナビダイヤル1番) 合計1万円(内訳:鍵交換費用10000円) 2LDK 単身者可/二人入居可/事務所利用不可 普通借家2年 損保【1.8万円2年】 バストイレ別、エアコン、ガスコンロ対応、クロゼット、フローリング、シャワー付洗面台、TVインターホン、浴室乾燥機、陽当り良好、シューズボックス、角住戸、温水洗浄便座、脱衣所、洗面所独立、駐輪場、外壁タイル張り、即入居可、最上階、全居室洋室、東南角住戸、敷金1ヶ月、全居室フローリング、駅まで平坦、内装リフォーム済、眺望良好、外壁コンクリート、平坦地、耐火構造、耐震構造、前面棟無、3駅以上利用可、駅徒歩10分以内、上階無し、東南向き、LDK12畳以上、全居室6畳以上、プロパンガス、洗面所にドア、リノベーション、IT重説対応物件、初期費用カード決済可、通風良好 | ||
部屋の情報
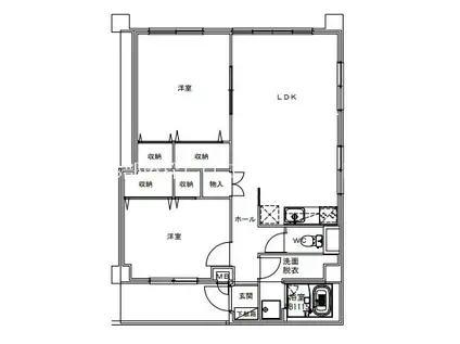
| 間取り | 2LDK | 専有面積 | 69m2 |
|---|---|---|---|
| 所在階 / 向き | 4階 / 南東 | バルコニー面積 | - |
| 水道 / ガス | - | ||
| 設備 | バス・トイレ別、2階以上、テレビドアホン、浴室乾燥機、エアコン、温水洗浄便座、南向き、角部屋、フローリング、洗髪洗面化粧台、コンロ:ガス | ||
| 当社物件ID | 159300314 | ||
建物の情報
| 建物名 | シティハイツ米森 | ||
|---|---|---|---|
| 所在地 | 鹿児島県鹿児島市谷山中央 | ||
| 交通 | JR指宿枕崎線 慈眼寺駅 徒歩9分 JR指宿枕崎線 谷山駅(JR) 徒歩23分 JR指宿枕崎線 坂之上駅 徒歩28分 | ||
| 階数 | 4階建 | 総戸数 | 9戸 |
| 築年月 | 1988年01月 / 築38年 | エレベーター | - |
| 駐車場 | 空有 付無料 | バイク置き場 | - |
| 駐輪場 | あり | 管理人/管理会社 | - |
| 周辺環境 | その他 タイヨー 慈眼寺店(スーパー)まで183m その他 コープかごしま 南谷山店(スーパー)まで653m | ||
| 建物種別 | マンション | 建物構造 | RC(鉄筋コンクリート) |
この部屋の取扱い不動産会社
| 会社名 | ユーミーネット鹿児島南店ユーミーコーポレーション(株)(SUUMO経由) | ||
|---|---|---|---|
| 所在地 | 鹿児島県鹿児島市宇宿2-15-14 | 交通 | - |
| 営業時間 | 10:00~18:00 | 定休日 | 水曜 祝日 |
| 免許番号 | 国土交通大臣9190 | 取引態様 | 仲介 |
| 不動産会社管理番号 | 100453114096 | 当社管理番号 | 89 |
| 所属団体 | (公社)鹿児島県宅地建物取引業協会会員 | ||
| 公正取引協議会 | (一社)九州不動産公正取引協議会加盟 | ||
| 取扱い物件情報 | 物件詳細へ | ||
※各種情報と現状に差異がある場合は、現状優先となります。問い合わせをすることで、より詳しい条件、情報を確認する事ができます。
提供:ユーミーネット鹿児島南店ユーミーコーポレーション(株)(SUUMO経由)
この物件が気になったら掲載期限まであと10日
シティハイツ米森に条件(家賃・エリア)が近い物件一覧
| 写真 | 家賃 管理費等 | 敷金 礼金 | 間取り 専有面積 | 築年数 | 最寄り駅 所在地 | キープ | 詳細 |
|---|---|---|---|---|---|---|---|
アパート レイアロハ(1LDK/2階) | |||||||
![]() | 4.8万円 1,800円 | なし 4.8万円 | 1LDK 44.97m2 | 築10年 | 鹿児島県指宿市十町 | 詳細を見る | |
マンション JEUNESSE・PIA八幡(ワンルーム/4階) | |||||||
![]() | 5.2万円 3,000円 | なし なし | ワンルーム 23.04m2 | 築15年 | 鹿児島市電谷山線 荒田八幡駅 徒歩3分 鹿児島市電谷山線 二中通駅 徒歩5分 鹿児島市電谷山線 武之橋駅 徒歩8分 鹿児島県鹿児島市荒田 | 詳細を見る | |
マンション さくらヒルズ樋之口参番館(ワンルーム/9階) | |||||||
![]() | 6万円 4,000円 | なし なし | ワンルーム 29.6m2 | 築17年 | 鹿児島市電谷山線 甲東中学校前駅 徒歩3分 鹿児島市電唐湊線 高見馬場駅 徒歩6分 JR鹿児島本線 鹿児島中央駅 徒歩17分 鹿児島県鹿児島市樋之口町 | 詳細を見る | |
マンション マンションパピィーズ(3LDK/3階) | |||||||
![]() | 9.8万円 5,000円 | 19.6万円 なし | 3LDK 60.25m2 | 築21年 | JR鹿児島本線 鹿児島中央駅 徒歩25分 鹿児島市電唐湊線 高見橋駅 徒歩26分 鹿児島市電唐湊線 加治屋町駅 徒歩27分 鹿児島県鹿児島市原良 | 詳細を見る | |
マンション シャーメゾンエレガント(1LDK/2階) | |||||||
![]() | 9.8万円 8,500円 | なし 21.3万円 | 1LDK 49.17m2 | 新築 | 鹿児島市電唐湊線 桜島桟橋通駅 徒歩8分 鹿児島市電唐湊線 水族館口駅 徒歩8分 JR鹿児島本線 鹿児島駅 徒歩12分 鹿児島県鹿児島市長田町 | 詳細を見る | |
アパート ディアス吉野 C棟(2LDK/1階) | |||||||
![]() | 5.6万円 3,500円 | なし 3万円 | 2LDK 44.57m2 | 築18年 | 鹿児島県鹿児島市吉野町 | 詳細を見る | |
マンション リヴェール新屋敷(2DK/3階) | |||||||
![]() | 4.7万円 なし | なし なし | 2DK 34m2 | 築37年 | 鹿児島市電谷山線 新屋敷駅 徒歩5分 鹿児島市電谷山線 甲東中学校前駅 徒歩8分 鹿児島市電谷山線 武之橋駅 徒歩10分 鹿児島県鹿児島市新屋敷町 | 詳細を見る | |
マンション サンライズ東谷山(ワンルーム/1階) | |||||||
![]() | 4.6万円 3,000円 | なし なし | ワンルーム 26.28m2 | 築8年 | 鹿児島市電谷山線 上塩屋駅 徒歩1分 鹿児島市電谷山線 笹貫駅 徒歩9分 鹿児島市電谷山線 谷山駅(市電) 徒歩10分 鹿児島県鹿児島市東谷山 | 詳細を見る | |









