賃貸アパート
アドバンスコーポの賃貸物件情報(3DK/1階)
| 家賃 | 管理費等 | 敷金 | 礼金 | 間取り | 専有面積 |
|---|---|---|---|---|---|
| 6万円 | なし | 6万円 | なし | 3DK | 44.97m2 |
入居決定でお祝い金最大100,000円
- 保証金
- -
- 償却・敷引
- -
- 築年数
- 築37年
- 所在階
- 1階
- 向き
- -
Point
閑静な住宅街の住戸の角部屋です。
提供:(有)マルフク不動産(SUUMO経由)

詳細情報 アドバンスコーポ
物件紹介
アドバンスコーポは東武伊勢崎線蒲生駅から徒歩10分にあり、駅近で通勤通学に便利なアパートです。
人気の角部屋で周囲の居住者の生活音も気になりにくく、また、フローリングのお部屋なのでお掃除もラクラク。バス・トイレ別の仕様で、のんびりお風呂タイムも楽しめます。
人気の角部屋で周囲の居住者の生活音も気になりにくく、また、フローリングのお部屋なのでお掃除もラクラク。バス・トイレ別の仕様で、のんびりお風呂タイムも楽しめます。
お金・契約の情報
※「-」と表示されているものは、実際は料金が発生するものもございます。詳細はお問い合わせください。
| 家賃 | 6万円 | 管理費・共益費 | なし |
|---|---|---|---|
| 敷金 | 6万円 | 礼金 | なし |
| 入居決定でお祝い金最大100,000円 | |||
| 保証金 | - | 償却・敷引 | - |
| 住宅保険料 | - | 更新料 | - |
| 保証会社利用 | 必須 | 保証会社名 | 日本セーフティー |
| 保証会社費用 | - | 保証会社備考 | 日本セーフティー利用必 賃料総額50%~ |
| 契約形態 | - | 契約期間 | - |
| 入居・引渡期間 | 相談 | 現況 | - |
| 契約備考 | コスト感覚の鋭いお客様に嬉しいニュース!礼金0円。閑静な住宅街の住戸、更に開放感が2倍!角部屋なので、電車で端っこの席を好む方にもおすすめです。また賢く使うことで理想のスッキリ空間が実現できる収納スペース有で、その上シューズボックス付です。 合計1.65万円(内訳:鍵交換代:16,500円~) 3DK 損保【2.2万円2年】 バストイレ別、エアコン、フローリング、室内洗濯置、シューズボックス、角住戸、礼金不要、閑静な住宅地、敷金1ヶ月、2沿線利用可、3駅以上利用可、駅徒歩10分以内、都市ガス | ||
部屋の情報
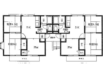
| 間取り | 3DK | 専有面積 | 44.97m2 |
|---|---|---|---|
| 所在階 / 向き | 1階 / - | バルコニー面積 | - |
| 水道 / ガス | - | ||
| 設備 | バス・トイレ別、エアコン、角部屋、フローリング、洗濯機:室内 | ||
| 当社物件ID | 10844273 | ||
建物の情報
| 建物名 | アドバンスコーポ | ||
|---|---|---|---|
| 所在地 | 埼玉県越谷市蒲生旭町 | ||
| 交通 | 東武伊勢崎線 蒲生駅 徒歩10分 JR武蔵野線 南越谷駅 徒歩16分 東武伊勢崎線 新越谷駅 徒歩18分 | ||
| 階数 | 2階建 | 総戸数 | - |
| 築年月 | 1989年07月 / 築37年 | エレベーター | - |
| 駐車場 | 近隣 200m8000円/平置駐 | バイク置き場 | - |
| 駐輪場 | - | 管理人/管理会社 | - |
| 周辺環境 | その他 ビッグ・エー(ショッピングセンター)まで207m その他 セブンイレブン(コンビニ)まで278m その他 ジョリーパスタ(その他)まで392m その他 登戸郵便局(郵便局)まで415m | ||
| 建物種別 | アパート | 建物構造 | 軽量鉄骨造 |
この部屋の取扱い不動産会社
| 会社名 | (有)マルフク不動産(SUUMO経由) | ||
|---|---|---|---|
| 所在地 | 埼玉県越谷市蒲生茜町 13-4 | 交通 | - |
| 営業時間 | 9時~18時 | 定休日 | 無し |
| 免許番号 | 埼玉県知事12309 | 取引態様 | 仲介 |
| 不動産会社管理番号 | 100487515422 | 当社管理番号 | 89 |
| 所属団体 | (公社)埼玉県宅地建物取引業協会会員 | ||
| 公正取引協議会 | (公社)首都圏不動産公正取引協議会加盟 | ||
| 取扱い物件情報 | 物件詳細へ | ||
※各種情報と現状に差異がある場合は、現状優先となります。問い合わせをすることで、より詳しい条件、情報を確認する事ができます。
提供:(有)マルフク不動産(SUUMO経由)
この物件が気になったら掲載期限まであと10日
アドバンスコーポに条件(家賃・エリア)が近い物件一覧
| 写真 | 家賃 管理費等 | 敷金 礼金 | 間取り 専有面積 | 築年数 | 最寄り駅 所在地 | キープ | 詳細 |
|---|---|---|---|---|---|---|---|
マンション アイルグランデ川口(1K/2階) | |||||||
![]() | 8.9万円 2万円 | 8.9万円 8.9万円 | 1K 25.37m2 | 築1年 | JR京浜東北線 川口駅 徒歩10分 JR京浜東北線 西川口駅 徒歩24分 JR埼京線 北赤羽駅 徒歩29分 埼玉県川口市飯塚 | 詳細を見る | |
マンション 第7つくしマンション(2K/2階) | |||||||
![]() | 5.8万円 6,000円 | 5.8万円 5.8万円 | 2K 32.04m2 | 築43年 | 京浜東北・根岸線 蕨駅 徒歩8分 埼玉県川口市 | 詳細を見る | |
アパート ACCESS(1K/2階) | |||||||
![]() | 5.3万円 7,000円 | なし 5.3万円 | 1K 19.87m2 | 築21年 | 東武伊勢崎線 新越谷駅 徒歩20分 JR武蔵野線 南越谷駅 徒歩22分 東武伊勢崎線 蒲生駅 徒歩28分 埼玉県越谷市七左町 | 詳細を見る | |
アパート BEEコート・大宮Ⅲ(1LDK/1階) | |||||||
![]() | 5.5万円 3,000円 | 5.5万円 なし | 1LDK 40.92m2 | 築31年 | 東武鉄道野田線 大和田駅(埼玉) 徒歩19分 埼玉県さいたま市見沼区大和田町1丁目 | 詳細を見る | |
アパート セブンハイツ(3DK/1階) | |||||||
![]() | 5.7万円 3,000円 | なし なし | 3DK 43.5m2 | 築42年 | 東武伊勢崎線 大袋駅 徒歩12分 東武伊勢崎線 せんげん台駅 徒歩28分 東武伊勢崎線 北越谷駅 徒歩30分 埼玉県越谷市大字袋山 | 詳細を見る | |
マンション GENOVIA西川口IV(1K/7階) | |||||||
![]() | 8.6万円 1万円 | なし なし | 1K 21.63m2 | 築1年 | JR京浜東北線 西川口駅 徒歩5分 JR京浜東北線 蕨駅 徒歩29分 JR京浜東北線 川口駅 徒歩34分 埼玉県川口市並木 | 詳細を見る | |
マンション 新HIM(ワンルーム/2階) | |||||||
![]() | 4.7万円 3,000円 | なし なし | ワンルーム 20m2 | 築22年 | 埼玉高速鉄道 鳩ケ谷駅 徒歩25分 JR京浜東北線 蕨駅 徒歩30分 埼玉高速鉄道 南鳩ケ谷駅 徒歩34分 埼玉県川口市前川 | 詳細を見る | |
マンション シャルマン南越谷(1K/2階) | |||||||
![]() | 5.1万円 3,000円 | なし なし | 1K 18.6m2 | 築26年 | JR武蔵野線 南越谷駅 徒歩8分 東武伊勢崎線 新越谷駅 徒歩8分 東武伊勢崎線 越谷駅 徒歩14分 埼玉県越谷市瓦曽根 | 詳細を見る | |









