賃貸マンション
アーバネックス森下ウエストの賃貸物件情報(1LDK/11階)
| 家賃 | 管理費等 | 敷金 | 礼金 | 間取り | 専有面積 |
|---|---|---|---|---|---|
| 14.7万円 | 1万円 | 14.7万円 | なし | 1LDK | 25.6m2 |
入居決定でお祝い金最大100,000円
Point
まずはお問い合わせ!
不動産会社は街のプロ、あなたに合った物件がきっと見つかります。
提供:アパマンショップ神田秋葉原店(オンライン専門店)
/424x317-f1-q70-wp1)
詳細情報 アーバネックス森下ウエスト
物件紹介
アーバネックス森下ウエストは東京都新宿線森下駅から徒歩6分にあり、駅近で通勤通学に便利なマンションです。
このお部屋は2階以上に位置しているので、通行人や周囲の住人からの視線が気になりにくく、防犯面でも安心。建物のエントランスはオートロックがついており、インターホンにはTVモニタもついているため、相手の顔を確認してから来客対応することができます。
フローリングのお部屋なのでお掃除もラクラク。キッチンはシステムキッチン仕様になっていますので、お料理好きの方にもぴったり。バス・トイレは別なので、のんびりお風呂タイムも楽しめるでしょう。また、雨の日でも浴室乾燥機を使えば、お洗濯も問題ありません。
通信設備面では、インターネットが無料で使えるので、月々の出費を抑えられるのも魅力です。また、BSアンテナ・CSアンテナがありCATVにも対応しているので、おうち時間も充実するでしょう(別途工事、BS・CS・CATVの契約料等が必要な場合あり)。
建物にはエレベーターがついているので、重い荷物があっても安心。共用部には宅配ボックスが設定されているので、不在の時にも荷物を受け取ることができます。
コンビニまで徒歩10分の場所にあり、日用品や食料品のお買い物にも便利です。
このお部屋は2階以上に位置しているので、通行人や周囲の住人からの視線が気になりにくく、防犯面でも安心。建物のエントランスはオートロックがついており、インターホンにはTVモニタもついているため、相手の顔を確認してから来客対応することができます。
フローリングのお部屋なのでお掃除もラクラク。キッチンはシステムキッチン仕様になっていますので、お料理好きの方にもぴったり。バス・トイレは別なので、のんびりお風呂タイムも楽しめるでしょう。また、雨の日でも浴室乾燥機を使えば、お洗濯も問題ありません。
通信設備面では、インターネットが無料で使えるので、月々の出費を抑えられるのも魅力です。また、BSアンテナ・CSアンテナがありCATVにも対応しているので、おうち時間も充実するでしょう(別途工事、BS・CS・CATVの契約料等が必要な場合あり)。
建物にはエレベーターがついているので、重い荷物があっても安心。共用部には宅配ボックスが設定されているので、不在の時にも荷物を受け取ることができます。
コンビニまで徒歩10分の場所にあり、日用品や食料品のお買い物にも便利です。
お金・契約の情報
※「-」と表示されているものは、実際は料金が発生するものもございます。詳細はお問い合わせください。
| 家賃 | 14.7万円 | 管理費・共益費 | 1万円 |
|---|---|---|---|
| 敷金 | 14.7万円 | 礼金 | なし |
| 入居決定でお祝い金最大100,000円 | |||
| 保証金 | - | 償却・敷引 | - |
| 住宅保険料 | 1円 | 更新料 | - |
| 保証会社利用 | 必須 | 保証会社名 | - |
| 保証会社費用 | - | 保証会社備考 | オリコフォレントインシュア 保証料:賃料等の50%(最低2万)、月次保証料:賃料等の1%(更新料無) |
| 契約形態 | - | 契約期間 | 2年 |
| 入居・引渡期間 | 2025年12月中旬 | 現況 | - |
| 契約備考 | 清掃費:38500円(退去時請求).エアコン清掃費:11000円(退去時請求) その他設備/条件:室内洗濯機置き場、ごみ出し24時間OK、独立洗面台、防犯カメラ | ||
部屋の情報
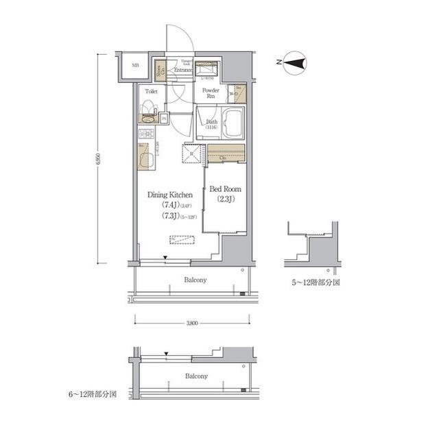
| 間取り | 1LDK | 専有面積 | 25.6m2 |
|---|---|---|---|
| 間取り詳細 | LDK(8帖)、洋室(2.3帖) | ||
| 所在階 / 向き | 11階 / 西 | バルコニー面積 | - |
| 水道 / ガス | - | ||
| 設備 | バス・トイレ別、オートロック、テレビドアホン、宅配ボックス、追い焚き、エアコン、エレベーター、温水洗浄便座、フローリング、インターネット使用料無料 | ||
| 当社物件ID | 142512707 | ||
建物の情報
| 建物名 | アーバネックス森下ウエスト | ||
|---|---|---|---|
| 所在地 | 東京都江東区新大橋2丁目 | ||
| 交通 | 東京都新宿線 森下駅(東京) 徒歩6分 総武・中央緩行線 両国駅 徒歩11分 | ||
| 階数 | 12階建 | 総戸数 | 53戸 |
| 築年月 | 2023年11月 / 築3年 | エレベーター | あり |
| 駐車場 | なし | バイク置き場 | あり |
| 駐輪場 | あり | 管理人/管理会社 | - |
| 周辺環境 | コンビニ 徒歩10分(780m) 販売店 徒歩10分(799m) その他 ドラッグストア その他 公園 その他 銀行 その他 * | ||
| 建物種別 | マンション | 建物構造 | RC(鉄筋コンクリート) |
この部屋の取扱い不動産会社
| 会社名 | ハウスコム東東京株式会社 西葛西店 | ||
|---|---|---|---|
| 所在地 | 東京都江戸川区15-3中兼ビル1階 | 交通 | - |
| 営業時間 | 10:00~18:00 | 定休日 | - |
| 免許番号 | 東京都知事(1)第108283号 | 取引態様 | 仲介 |
| 不動産会社管理番号 | HC5-4016494-1103-0186 | 当社管理番号 | 468 |
| 所属団体 | 、 | ||
| 取扱い物件情報 | 物件詳細へ | ||
※各種情報と現状に差異がある場合は、現状優先となります。問い合わせをすることで、より詳しい条件、情報を確認する事ができます。
提供:ハウスコム東東京株式会社 西葛西店
この物件が気になったら掲載期限まであと4日
アーバネックス森下ウエストに条件(家賃・エリア)が近い物件一覧
| 写真 | 家賃 管理費等 | 敷金 礼金 | 間取り 専有面積 | 築年数 | 最寄り駅 所在地 | キープ | 詳細 |
|---|---|---|---|---|---|---|---|
マンション クレール日本橋(1LDK/12階) | |||||||
![]() | 23.5万円 なし | 23.5万円 23.5万円 | 1LDK 41.06m2 | 築9年 | 東京都新宿線 馬喰横山駅 徒歩2分 総武本線 馬喰町駅 徒歩2分 東京都中央区日本橋馬喰町1丁目 | 詳細を見る | |
アパート M SONIA KUGAHARA(2LDK/1階) | |||||||
![]() | 16.8万円 3,000円 | 16.8万円 33.6万円 | 2LDK 49.27m2 | 築1年 | 東急池上線 久が原駅 徒歩8分 東急池上線 御嶽山駅 徒歩9分 東京都大田区西嶺町13丁目 | 詳細を見る | |
マンション グラウンデュークス西大島(ワンルーム/1階) | |||||||
![]() | 10.4万円 1.5万円 | なし なし | ワンルーム 21.64m2 | 築6年 | 都営新宿線 西大島駅 徒歩6分 東京メトロ半蔵門線 住吉駅(東京) 徒歩12分 都営新宿線 住吉駅(東京) 徒歩12分 東京都江東区大島 | 詳細を見る | |
マンション プレール・ドゥーク両国Ⅳ(1LDK/3階) | |||||||
![]() | 20.8万円 1.1万円 | なし 20.8万円 | 1LDK 40.53m2 | 築2年 | 東京都大江戸線 両国駅 徒歩3分 総武・中央緩行線 両国駅 徒歩7分 東京都新宿線 森下駅(東京) 徒歩11分 東京都墨田区緑1丁目 | 詳細を見る | |
マンション PLUMERIA BLANE プルメリアブラン(1LDK/1階) | |||||||
![]() | 14.9万円 3,000円 | 14.9万円 14.9万円 | 1LDK 48.99m2 | 築9年 | 京浜急行電鉄本線 大森町駅 徒歩5分 京浜急行電鉄本線 平和島駅 徒歩12分 東京都大田区大森西3丁目 | 詳細を見る | |
マンション レジディア浅草吾妻橋(1K/3階) | |||||||
![]() | 10.3万円 1万円 | なし なし | 1K 21.48m2 | 築19年 | 東京都浅草線 本所吾妻橋駅 徒歩3分 東京地下鉄銀座線 浅草駅(東武・都営・メトロ) 徒歩5分 東京都墨田区吾妻橋1丁目 | 詳細を見る | |
マンション ラトレールエスポワール(1K/3階) | |||||||
![]() | 9.4万円 3,000円 | 9.4万円 なし | 1K 24.6m2 | 築23年 | 東急多摩川線 下丸子駅 徒歩4分 東急多摩川線 武蔵新田駅 徒歩14分 東京都大田区下丸子3丁目 | 詳細を見る | |
マンション ルーブル大森西(1K/3階) | |||||||
![]() | 10.7万円 8,000円 | なし 10.7万円 | 1K 25.46m2 | 築9年 | 京急本線 平和島駅 徒歩10分 JR京浜東北線 大森駅(東京) 徒歩15分 京急本線 大森町駅 徒歩15分 東京都大田区大森西 | 詳細を見る | |








