賃貸マンション
ベルシード横濱ウエストIVの賃貸物件情報(1K/1階)
| 家賃 | 管理費等 | 敷金 | 礼金 | 間取り | 専有面積 |
|---|---|---|---|---|---|
| 7.3万円 | 1.5万円 | なし | 7.3万円 | 1K | 21.46m2 |
入居決定でお祝い金最大100,000円
Point
まずはお問い合わせ!
不動産会社は街のプロ、あなたに合った物件がきっと見つかります。
提供:(株)マインズクリエイト本店(SUUMO経由)

詳細情報 ベルシード横濱ウエストIV
物件紹介
ベルシード横濱ウエストIVは京急本線戸部駅から徒歩8分にあり、駅近で通勤通学に便利なマンションです。
建物のエントランスはオートロックがついており、インターホンにはTVモニタもついているため、相手の顔を確認してから来客対応することができます。
人気の南向き・フローリングのお部屋。角部屋でもあるため、周囲の居住者の生活音も気になりにくい場所です。キッチンはシステムキッチン仕様になっていますので、お料理好きの方にもぴったり。バス・トイレは別なので、のんびりお風呂タイムも楽しめるでしょう。また、雨の日でも浴室乾燥機を使えば、お洗濯も問題ありません。
通信設備面では、インターネットが無料で使えるので、月々の出費を抑えられるのも魅力です。また、BSアンテナ・CSアンテナもありますので、おうち時間も充実するでしょう(別途工事、BS・CSの契約料等が必要な場合あり)。
建物にはエレベーターがついているので、重い荷物があっても安心。共用部には宅配ボックスが設定されているので、不在の時にも荷物を受け取ることができます。また、ペット飼育の相談ができますので、あなたの大切な家族の一員も快適に暮らせるか、ぜひ確認してみてください。
建物のエントランスはオートロックがついており、インターホンにはTVモニタもついているため、相手の顔を確認してから来客対応することができます。
人気の南向き・フローリングのお部屋。角部屋でもあるため、周囲の居住者の生活音も気になりにくい場所です。キッチンはシステムキッチン仕様になっていますので、お料理好きの方にもぴったり。バス・トイレは別なので、のんびりお風呂タイムも楽しめるでしょう。また、雨の日でも浴室乾燥機を使えば、お洗濯も問題ありません。
通信設備面では、インターネットが無料で使えるので、月々の出費を抑えられるのも魅力です。また、BSアンテナ・CSアンテナもありますので、おうち時間も充実するでしょう(別途工事、BS・CSの契約料等が必要な場合あり)。
建物にはエレベーターがついているので、重い荷物があっても安心。共用部には宅配ボックスが設定されているので、不在の時にも荷物を受け取ることができます。また、ペット飼育の相談ができますので、あなたの大切な家族の一員も快適に暮らせるか、ぜひ確認してみてください。
お金・契約の情報
※「-」と表示されているものは、実際は料金が発生するものもございます。詳細はお問い合わせください。
| 家賃 | 7.3万円 | 管理費・共益費 | 1.5万円 |
|---|---|---|---|
| 敷金 | なし | 礼金 | 7.3万円 |
| 入居決定でお祝い金最大100,000円 | |||
| 保証金 | - | 償却・敷引 | - |
| 住宅保険料 | - | 更新料 | - |
| 保証会社利用 | 必須 | 保証会社名 | - |
| 保証会社費用 | - | 保証会社備考 | 保証会社利用必 初回:総賃料の50%・(リロ:月額1000円・その他保証会社あり 詳細はお尋ねください。 |
| 契約形態 | - | 契約期間 | - |
| 入居・引渡期間 | - | 現況 | - |
| 入居可能条件 | ペット相談 | ||
| 契約備考 | ★★ペット相談(詳細に関してはお尋ねください。)★短期解約違約金:1年未満は総賃料2ヶ月分・1年以上1.5年未満は総賃料1.5ヶ月分★■□■物件の詳細はマインズクリエイト【】までお気軽にお問い合わせ下さいませ♪♪その他の物件もご紹介可能です♪♪ご納得のいくお部屋探しを致します!!■□■ 合計4.95万円(内訳:鍵交換費用:有 33000円・室内抗菌代:16500円・) ヘルプラス:2200円/月・その他詳細に関してはお尋ねください。 1K ペット相談 損保【要】 バストイレ別、バルコニー、エアコン、ガスコンロ対応、クロゼット、フローリング、シャワー付洗面台、浴室乾燥機、オートロック、室内洗濯置、陽当り良好、シューズボックス、システムキッチン、角住戸、温水洗浄便座、エレベーター、洗面所独立、2口コンロ、宅配ボックス、最上階、BS・CS、敷金不要、防犯カメラ、ペット相談、分譲賃貸、保証人不要、全居室フローリング、CS、ネット使用料不要、24時間換気システム、平坦地、24時間ゴミ出し可、敷地内ごみ置き場、東南向き、都市ガス、BS、IT重説対応物件 入居日:'26年3月上旬 | ||
部屋の情報
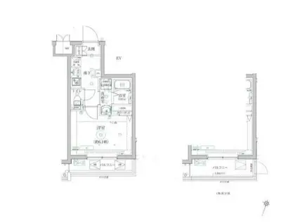
| 間取り | 1K | 専有面積 | 21.46m2 |
|---|---|---|---|
| 所在階 / 向き | 1階 / 北西 | バルコニー面積 | - |
| 水道 / ガス | - | ||
| 設備 | バス・トイレ別、オートロック、宅配ボックス、浴室乾燥機、インターネット対応、システムキッチン、エアコン、エレベーター、温水洗浄便座、南向き、角部屋、バルコニー、フローリング、洗髪洗面化粧台、2口コンロ、コンロ:ガス、CSアンテナ、BSアンテナ、インターネット使用料無料、洗濯機:室内 | ||
| 当社物件ID | 137213796 | ||
建物の情報
| 建物名 | ベルシード横濱ウエストIV | ||
|---|---|---|---|
| 所在地 | 神奈川県横浜市西区中央 | ||
| 交通 | 京急本線 戸部駅 徒歩8分 | ||
| 階数 | 4階建 | 総戸数 | - |
| 築年月 | 2023年08月 / 築3年 | エレベーター | あり |
| 駐車場 | なし | バイク置き場 | - |
| 駐輪場 | - | 管理人/管理会社 | - |
| 周辺環境 | その他 まいばすけっと戸部中央店(スーパー)まで442m その他 ローソン横浜中央二丁目店(コンビニ)まで206m その他 カフェコロラド横浜西前店(飲食店)まで149m その他 かながわ信用金庫戸部支店(銀行)まで201m | ||
| 建物種別 | マンション | 建物構造 | RC(鉄筋コンクリート) |
この部屋の取扱い不動産会社
| 会社名 | (株)マインズクリエイト本店(SUUMO経由) | ||
|---|---|---|---|
| 所在地 | 神奈川県横浜市西区南幸2-11-1横浜エム・エス7F | 交通 | - |
| 営業時間 | AM09:30-PM18:00 | 定休日 | 水曜日 |
| 免許番号 | 神奈川県知事22430 | 取引態様 | 仲介 |
| 不動産会社管理番号 | 100455432797 | 当社管理番号 | 89 |
| 所属団体 | (公社)全日本不動産協会神奈川県本部会員 | ||
| 公正取引協議会 | (公社)首都圏不動産公正取引協議会加盟 | ||
| 取扱い物件情報 | 物件詳細へ | ||
※各種情報と現状に差異がある場合は、現状優先となります。問い合わせをすることで、より詳しい条件、情報を確認する事ができます。
提供:(株)マインズクリエイト本店(SUUMO経由)
この物件が気になったら掲載期限まであと11日
ベルシード横濱ウエストIVに条件(家賃・エリア)が近い物件一覧
| 写真 | 家賃 管理費等 | 敷金 礼金 | 間取り 専有面積 | 築年数 | 最寄り駅 所在地 | キープ | 詳細 |
|---|---|---|---|---|---|---|---|
マンション ジェミニ武蔵小杉(1K/4階) | |||||||
![]() | 5.4万円 6,000円 | なし 5.4万円 | 1K 17.01m2 | 築35年 | 南武線 武蔵中原駅 徒歩12分 南武線 武蔵小杉駅 徒歩17分 神奈川県川崎市中原区上小田中7丁目 | 詳細を見る | |
マンション ミッションヒルズ(ワンルーム/3階) | |||||||
![]() | 7.2万円 4,100円 | なし 9.2万円 | ワンルーム 32.5m2 | 築19年 | 相模鉄道本線 相模大塚駅 徒歩3分 相模鉄道本線 さがみ野駅 徒歩12分 神奈川県大和市桜森3丁目 | 詳細を見る | |
アパート ラ・プリマベーラ南町田(1K/1階) | |||||||
![]() | 6.2万円 3,000円 | なし なし | 1K 23.59m2 | 築9年 | 東急田園都市線 南町田グランベリーパーク駅 徒歩10分 東急田園都市線 つきみ野駅 徒歩10分 東急田園都市線 すずかけ台駅 徒歩24分 神奈川県大和市下鶴間 | 詳細を見る | |
アパート ピアハイツ(1DK/2階) | |||||||
![]() | 7.7万円 2,000円 | なし なし | 1DK 25.51m2 | 築34年 | 東急東横線 武蔵小杉駅 徒歩4分 東急東横線 新丸子駅 徒歩10分 東急目黒線 元住吉駅 徒歩17分 神奈川県川崎市中原区市ノ坪 | 詳細を見る | |
アパート モンサンオール(1LDK/3階) | |||||||
![]() | 9.9万円 5,500円 | なし 9.9万円 | 1LDK 43.71m2 | 築12年 | 東急田園都市線 宮崎台駅 徒歩22分 神奈川県川崎市宮前区梶ケ谷 | 詳細を見る | |
アパート カリーノハイム(1K/1階) | |||||||
![]() | 9万円 なし | 9万円 9万円 | 1K 36.78m2 | 築17年 | 東急田園都市線 梶が谷駅 徒歩12分 東急田園都市線 溝の口駅 徒歩28分 JR南武線 武蔵溝ノ口駅 徒歩29分 神奈川県川崎市高津区梶ケ谷 | 詳細を見る | |
マンション ザ・グラン天王町(1K/2階) | |||||||
![]() | 7.3万円 3,500円 | 7.3万円 7.3万円 | 1K 22.47m2 | 築33年 | 相鉄本線 天王町駅 徒歩4分 湘南新宿ライン宇須 保土ケ谷駅 徒歩16分 神奈川県横浜市保土ケ谷区天王町 | 詳細を見る | |
マンション エストゥルース西横浜(1K/5階) | |||||||
![]() | 8万円 1万円 | なし なし | 1K 20.79m2 | 築7年 | 相模鉄道本線 西横浜駅 徒歩8分 神奈川県横浜市西区久保町 | 詳細を見る | |







