賃貸マンション
BPRレジデンス練馬富士見台の賃貸物件情報(1LDK/2階)
| 家賃 | 管理費等 | 敷金 | 礼金 | 間取り | 専有面積 |
|---|---|---|---|---|---|
| 12.4万円 | 1万円 | 12.4万円 | 12.4万円 | 1LDK | 31.34m2 |
入居決定でお祝い金最大100,000円
- 保証金
- -
- 償却・敷引
- -
- 築年数
- 新築(築1年)
- 所在階
- 2階
- 向き
- 北
Point
共用部にはゴミ出し24時間OK・宅配ボックスなどが揃っており、とても充実しています。
提供:東急リバブル(株)池袋センター(SUUMO経由)

詳細情報 BPRレジデンス練馬富士見台
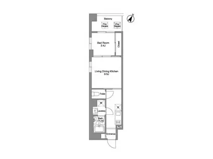
物件紹介
BPRレジデンス練馬富士見台は西武池袋線富士見台駅から徒歩4分にあり、駅近で通勤通学に便利なマンションです。
このお部屋は2階以上に位置しているので、通行人や周囲の住人からの視線が気になりにくく、防犯面でも安心。建物のエントランスはオートロックがついており、インターホンにはTVモニタもついているため、相手の顔を確認してから来客対応することができます。
人気の角部屋で周囲の居住者の生活音も気になりにくく、また、フローリングのお部屋なのでお掃除もラクラク。キッチンはシステムキッチン仕様になっていますので、お料理好きの方にもぴったり。バス・トイレは別なので、のんびりお風呂タイムも楽しめるでしょう。また、雨の日でも浴室乾燥機を使えば、お洗濯も問題ありません。
通信設備面では、インターネットが無料で使えるので、月々の出費を抑えられるのも魅力です(別途工事等が必要な場合あり)。
建物にはエレベーターがついているので、重い荷物があっても安心。共用部には宅配ボックスが設定されているので、不在の時にも荷物を受け取ることができます。また、ペット飼育の相談ができますので、あなたの大切な家族の一員も快適に暮らせるか、ぜひ確認してみてください。
コンビニまで徒歩5分の場所にあり、日用品や食料品のお買い物にも便利です。
このお部屋は2階以上に位置しているので、通行人や周囲の住人からの視線が気になりにくく、防犯面でも安心。建物のエントランスはオートロックがついており、インターホンにはTVモニタもついているため、相手の顔を確認してから来客対応することができます。
人気の角部屋で周囲の居住者の生活音も気になりにくく、また、フローリングのお部屋なのでお掃除もラクラク。キッチンはシステムキッチン仕様になっていますので、お料理好きの方にもぴったり。バス・トイレは別なので、のんびりお風呂タイムも楽しめるでしょう。また、雨の日でも浴室乾燥機を使えば、お洗濯も問題ありません。
通信設備面では、インターネットが無料で使えるので、月々の出費を抑えられるのも魅力です(別途工事等が必要な場合あり)。
建物にはエレベーターがついているので、重い荷物があっても安心。共用部には宅配ボックスが設定されているので、不在の時にも荷物を受け取ることができます。また、ペット飼育の相談ができますので、あなたの大切な家族の一員も快適に暮らせるか、ぜひ確認してみてください。
コンビニまで徒歩5分の場所にあり、日用品や食料品のお買い物にも便利です。
お金・契約の情報
※「-」と表示されているものは、実際は料金が発生するものもございます。詳細はお問い合わせください。
| 家賃 | 12.4万円 | 管理費・共益費 | 1万円 |
|---|---|---|---|
| 敷金 | 12.4万円 | 礼金 | 12.4万円 |
| 入居決定でお祝い金最大100,000円 | |||
| 保証金 | - | 償却・敷引 | - |
| 住宅保険料 | 1円 | 更新料 | - |
| 保証会社利用 | 必須 | 保証会社名 | - |
| 保証会社費用 | - | 保証会社備考 | 賃料等の50%(最低2万)、月額保証料:賃料等の1%(更新料無) |
| 契約形態 | - | 契約期間 | 2年 |
| 入居・引渡期間 | 2026年01月下旬 | 現況 | - |
| 入居可能条件 | 事務所不可、2人入居可、楽器不可、ペット可 | ||
| 契約備考 | ペット飼可(小型犬1匹又は猫2匹迄)敷金1ヶ月積増 その他設備/条件:室内洗濯機置き場、ごみ出し24時間OK、独立洗面台、ルームシェア不可、クローゼット、シューズボックス、照明器具付き | ||
部屋の情報
| 間取り | 1LDK | 専有面積 | 31.34m2 |
|---|---|---|---|
| 所在階 / 向き | 2階 / 北 | バルコニー面積 | - |
| 水道 / ガス | 水道【公営】、ガス【都市】 | ||
| 設備 | バス・トイレ別、オートロック、テレビドアホン、宅配ボックス、浴室乾燥機、追い焚き、システムキッチン、カウンターキッチン、エアコン、エレベーター、温水洗浄便座、バルコニー、フローリング、洗髪洗面化粧台、シャワー | ||
| 当社物件ID | 160089185 | ||
建物の情報
| 建物名 | BPRレジデンス練馬富士見台 | ||
|---|---|---|---|
| 所在地 | 東京都練馬区貫井3丁目 | ||
| 交通 | 西武池袋・豊島線 富士見台駅 徒歩5分 西武池袋・豊島線 中村橋駅 徒歩14分 | ||
| 階数 | 地下1地上4階建 | 総戸数 | - |
| 築年月 | 2025年11月 / 新築(築1年) | エレベーター | あり |
| 駐車場 | - | バイク置き場 | - |
| 駐輪場 | - | 管理人/管理会社 | - |
| 周辺環境 | コンビニ 徒歩5分(395m) 販売店 徒歩4分(264m) 小学校 練馬第二小学校 徒歩9分(702m) その他 ドラッグストア その他 公園 その他 銀行 その他 * | ||
| 建物種別 | マンション | 建物構造 | RC(鉄筋コンクリート) |
この部屋の取扱い不動産会社
| 会社名 | ハウスコム東東京株式会社 池袋西口店 | ||
|---|---|---|---|
| 所在地 | 東京都豊島区19-6松長ビル2階 | 交通 | - |
| 営業時間 | 10:00~18:00 | 定休日 | - |
| 免許番号 | 東京都知事(1)第108283号 | 取引態様 | 仲介 |
| 不動産会社管理番号 | HC2-5300178-209-0113 | 当社管理番号 | 468 |
| 所属団体 | 、 | ||
| 取扱い物件情報 | 物件詳細へ | ||
※各種情報と現状に差異がある場合は、現状優先となります。問い合わせをすることで、より詳しい条件、情報を確認する事ができます。
提供:ハウスコム東東京株式会社 池袋西口店
この物件が気になったら掲載期限まであと4日
BPRレジデンス練馬富士見台に条件(家賃・エリア)が近い物件一覧
| 写真 | 家賃 管理費等 | 敷金 礼金 | 間取り 専有面積 | 築年数 | 最寄り駅 所在地 | キープ | 詳細 |
|---|---|---|---|---|---|---|---|
アパート IHANA GARDENA・B棟(2LDK/2階) | |||||||
![]() | 13.7万円 3,000円 | 13.7万円 13.7万円 | 2LDK 53.41m2 | 築4年 | 西武新宿線 武蔵関駅 徒歩17分 西武池袋線 保谷駅 徒歩21分 東京都練馬区南大泉 | 詳細を見る | |
マンション サンフィールド西荻窪(1K/2階) | |||||||
![]() | 13万円 1万円 | 26万円 13万円 | 1K 28.44m2 | 築1年 | JR中央線 西荻窪駅 徒歩4分 JR中央線 吉祥寺駅 徒歩24分 京王井の頭線 三鷹台駅 徒歩24分 東京都杉並区西荻北 | 詳細を見る | |
アパート レオパレスSHINWA(1K/2階) | |||||||
![]() | 8.9万円 5,500円 | なし 8.9万円 | 1K 19.87m2 | 築17年 | 都営大江戸線 新江古田駅 徒歩15分 都営大江戸線 落合南長崎駅 徒歩15分 東京都中野区江原町 | 詳細を見る | |
マンション パルコーポフジ(ワンルーム/3階) | |||||||
![]() | 7.7万円 なし | 7.7万円 7.7万円 | ワンルーム 24.6m2 | 築43年 | 中央本線 高円寺駅 徒歩5分 東京都杉並区高円寺南3丁目 | 詳細を見る | |
マンション アムス志村(ワンルーム/6階) | |||||||
![]() | 8.7万円 6,000円 | なし 8.7万円 | ワンルーム 27.09m2 | 築23年 | 都営三田線 志村坂上駅 徒歩2分 都営三田線 志村三丁目駅 徒歩13分 都営三田線 本蓮沼駅 徒歩14分 東京都板橋区志村 | 詳細を見る | |
マンション RIOILHA(ワンルーム/9階) | |||||||
![]() | 11.1万円 5,000円 | 22.2万円 11.1万円 | ワンルーム 26.37m2 | 築9年 | 東京メトロ東西線 落合駅 徒歩1分 都営大江戸線 東中野駅 徒歩5分 JR中央線 東中野駅 徒歩7分 東京都中野区東中野 | 詳細を見る | |
アパート SAKURA TERRACE サクラテラス(1LDK/1階) | |||||||
![]() | 14.5万円 5,000円 | 14.5万円 29万円 | 1LDK 39.94m2 | 築7年 | 東京メトロ丸ノ内線 南阿佐ケ谷駅 徒歩11分 京王井の頭線 浜田山駅 徒歩21分 JR中央線 荻窪駅 徒歩26分 東京都杉並区成田西 | 詳細を見る | |




/105x80-f1-q70-wp1)


