賃貸マンション
京阪電気鉄道京阪線 伏見桃山駅 徒歩2分 3階建 築21年の賃貸物件情報(1K/2階)
| 家賃 | 管理費等 | 敷金 | 礼金 | 間取り | 専有面積 |
|---|---|---|---|---|---|
| 6.1万円 | 5,000円 | なし | なし | 1K | 29.22m2 |
入居決定でお祝い金最大100,000円
Point
広いわ便利だわ設備充実だわ 人気の桃山エリアで、築浅・広々ワンルーム
提供:株式会社 京都ライフ 小倉店(賃貸スモッカ経由)

詳細情報 京阪電気鉄道京阪線 伏見桃山駅 徒歩2分 3階建 築21年
物件紹介
京阪電気鉄道京阪線伏見桃山駅から徒歩2分にあり、駅近で通勤通学に便利なマンションです。
このお部屋は2階以上に位置しているので通行人や周囲の住人からの視線が気になりにくく、建物のエントランスはオートロックがついているので防犯性が高くなっています。
人気の角部屋で周囲の居住者の生活音も気になりにくく、また、フローリングのお部屋なのでお掃除もラクラク。バス・トイレ別の仕様で、のんびりお風呂タイムも楽しめます。
通信設備面では、インターネット接続が可能です。また、BSアンテナもありますので、おうち時間も充実するでしょう(別途工事、契約料が必要な場合あり)。
共用部には宅配ボックスが設定されているので、不在の時にも荷物を受け取ることができます。
このお部屋は2階以上に位置しているので通行人や周囲の住人からの視線が気になりにくく、建物のエントランスはオートロックがついているので防犯性が高くなっています。
人気の角部屋で周囲の居住者の生活音も気になりにくく、また、フローリングのお部屋なのでお掃除もラクラク。バス・トイレ別の仕様で、のんびりお風呂タイムも楽しめます。
通信設備面では、インターネット接続が可能です。また、BSアンテナもありますので、おうち時間も充実するでしょう(別途工事、契約料が必要な場合あり)。
共用部には宅配ボックスが設定されているので、不在の時にも荷物を受け取ることができます。
お金・契約の情報
※「-」と表示されているものは、実際は料金が発生するものもございます。詳細はお問い合わせください。
| 家賃 | 6.1万円 | 管理費・共益費 | 5,000円 |
|---|---|---|---|
| 敷金 | なし | 礼金 | なし |
| 入居決定でお祝い金最大100,000円 | |||
| 保証金 | - | 償却・敷引 | - |
| 住宅保険料 | 住宅保険料あり | 更新料 | - |
| 契約形態 | - | 契約期間 | 2年 |
| 入居・引渡期間 | 即時 | 現況 | 空室 |
| 契約備考 | 京阪伏見桃山駅まですぐの1Kマンションです(徒歩2分)。JR、京阪、近鉄のトリプルアクセス。敷金ナシです。嬉しい3点セパレートなど充実の設備。オートロック、TVホンでセキュリティも安心です。コンビニ、スーパーなど近くにあって便利ですよ。光ファイバー対応しています。 抗菌除菌処理代:27,830円 入居者サポート:24,200円 更新料:1ヶ月 保証会社:利用必須 初回:月額賃料等の50%、更新時:1.3万円/1年 その他設備/条件:独立洗面台、TVドアホン、即入居可 | ||
部屋の情報
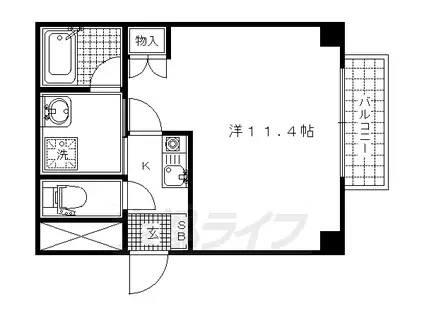
| 間取り | 1K | 専有面積 | 29.22m2 |
|---|---|---|---|
| 間取り詳細 | 洋室(11.4帖)、K(2帖) | ||
| 所在階 / 向き | 2階 / 東 | バルコニー面積 | - |
| 水道 / ガス | - | ||
| 設備 | バス・トイレ別、2階以上、オートロック、宅配ボックス、インターネット対応、エアコン、温水洗浄便座、角部屋、バルコニー、フローリング、オール電化、コンロ:IH、BSアンテナ、洗濯機:室内 | ||
| 当社物件ID | 160536819 | ||
建物の情報
| 建物名 | 京阪電気鉄道京阪線 伏見桃山駅 徒歩2分 3階建 築21年 | ||
|---|---|---|---|
| 所在地 | 京都府京都市伏見区 | ||
| 交通 | 京阪電気鉄道京阪線 伏見桃山駅 徒歩2分 近鉄京都線 桃山御陵前駅 徒歩4分 | ||
| 階数 | 3階建 | 総戸数 | - |
| 築年月 | 2006年03月 / 築21年 | エレベーター | - |
| 駐車場 | - | バイク置き場 | - |
| 駐輪場 | あり | 管理人/管理会社 | - |
| 建物種別 | マンション | 建物構造 | RC(鉄筋コンクリート) |
この部屋の取扱い不動産会社
| 会社名 | 株式会社 京都ライフ 小倉店(賃貸スモッカ経由) | ||
|---|---|---|---|
| 所在地 | 宇治市小倉町神楽田21-5 | 交通 | - |
| 営業時間 | - | 定休日 | - |
| 免許番号 | 京都府知事(11)第6353号 | 取引態様 | 仲介 |
| 不動産会社管理番号 | kyotolife_14027-201-11 | 当社管理番号 | 463 |
| 所属団体 | 京都府宅地建物取引業協会\n公益社団法人近畿地区不動産公正取引協議会 | ||
| 公正取引協議会 | 全国宅地建物取引業保証協会 | ||
| 取扱い物件情報 | 物件詳細へ | ||
※各種情報と現状に差異がある場合は、現状優先となります。問い合わせをすることで、より詳しい条件、情報を確認する事ができます。
提供:株式会社 京都ライフ 小倉店(賃貸スモッカ経由)
この物件が気になったら掲載期限まであと6日
京阪電気鉄道京阪線 伏見桃山駅 徒歩2分 3階建 築21年に条件(家賃・エリア)が近い物件一覧
| 写真 | 家賃 管理費等 | 敷金 礼金 | 間取り 専有面積 | 築年数 | 最寄り駅 所在地 | キープ | 詳細 |
|---|---|---|---|---|---|---|---|
マンション RADIANT(1LDK/3階) | |||||||
![]() | 7.2万円 6,000円 | 7.2万円 14.4万円 | 1LDK 45.36m2 | 築13年 | 近鉄京都線 小倉駅(京都) 徒歩6分 京都府宇治市小倉町西山 | 詳細を見る | |
アパート 京都市東西線 石田駅(京都市営) 徒歩9分 築18年(1K/1階) | |||||||
![]() | 5.6万円 7,000円 | なし 5.6万円 | 1K 20.81m2 | 築18年 | 京都市東西線 石田駅(京都市営) 徒歩9分 京都市東西線 六地蔵駅(京都市営) 徒歩19分 京都府京都市伏見区石田大山町 | 詳細を見る | |
マンション 東海道本線 向日町駅 徒歩3分 築39年(1K/3階) | |||||||
![]() | 4.5万円 2,000円 | なし 9万円 | 1K 17.72m2 | 築39年 | 東海道本線 向日町駅 徒歩3分 阪急電鉄京都線 東向日駅 徒歩7分 京都府向日市森本町上森本 | 詳細を見る | |
アパート 雅 六番館(2LDK/2階) | |||||||
![]() | 6.5万円 5,200円 | なし 6.5万円 | 2LDK 54.8m2 | 築5年 | 京都府南丹市園部町横田5号 | 詳細を見る | |
アパート 竹園荘(2K/2階) | |||||||
![]() | 4万円 なし | 6万円 4万円 | 2K 26.98m2 | 築57年 | 阪急電鉄京都線 西向日駅 徒歩7分 東海道本線 長岡京駅 徒歩20分 京都府向日市上植野町地後 | 詳細を見る | |
アパート ファミール木幡(1LDK/1階) | |||||||
![]() | 7.2万円 3,500円 | なし 7.2万円 | 1LDK 43.1m2 | 築10年 | JR奈良線 木幡駅(JR) 徒歩7分 京阪宇治線 木幡駅(京阪) 徒歩10分 JR奈良線 六地蔵駅(JR) 徒歩12分 京都府宇治市木幡北畠 | 詳細を見る | |
アパート 近鉄京都線 小倉駅(京都) 徒歩13分 築4年(1LDK/2階) | |||||||
![]() | 8万円 8,000円 | なし 10万円 | 1LDK 33.4m2 | 築4年 | 近鉄京都線 小倉駅(京都) 徒歩13分 奈良線 JR小倉駅 徒歩22分 京都府宇治市小倉町 | 詳細を見る | |
アパート マンションみどり(2K/2階) | |||||||
![]() | 4.5万円 2,000円 | なし 4.5万円 | 2K 31.5m2 | 築36年 | 奈良線 桃山駅 徒歩5分 京阪電気鉄道宇治線 観月橋駅 徒歩10分 京都府京都市伏見区桃山町泰長老 | 詳細を見る | |









