賃貸マンション
GROOVE上甲子園レジデンスの賃貸物件情報(2SLDK/4階)
| 家賃 | 管理費等 | 敷金 | 礼金 | 間取り | 専有面積 |
|---|---|---|---|---|---|
| 18.4万円 | 1万円 | なし | なし | 2SLDK | 68.44m2 |
入居決定でお祝い金最大100,000円
- 保証金
- -
- 償却・敷引
- -
- 築年数
- 築1年
- 所在階
- 4階
- 向き
- 西
Point
オンライン内見実施中♪電話予約&成約でQUOカード500円!!東灘区・灘区・芦屋市・西宮市.のお部屋探しの事なら【ピタットハウス岡本店】にお任せ下さい!
提供:ミニミニFC垂水店シティネット(株)(SUUMO経由)

詳細情報 GROOVE上甲子園レジデンス
物件紹介
GROOVE上甲子園レジデンスは阪神本線久寿川駅から徒歩9分にあり、駅近で通勤通学に便利なマンションです。
このお部屋は2階以上に位置しているので、通行人や周囲の住人からの視線が気になりにくく、防犯面でも安心。建物のエントランスはオートロックがついており、インターホンにはTVモニタもついているため、相手の顔を確認してから来客対応することができます。
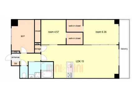
おしゃれなデザイナーズ物件!人気の角部屋で周囲の居住者の生活音も気になりにくく、また、フローリングのお部屋なのでお掃除もラクラク。室内にはウォークインクローゼットがありますので、たくさんの荷物も効率的に収納ができます。キッチンはシステムキッチン仕様になっていますので、お料理好きの方にもぴったり。バス・トイレは別なので、のんびりお風呂タイムも楽しめるでしょう。また、雨の日でも浴室乾燥機を使えば、お洗濯も問題ありません。
通信設備面では、インターネットが無料で使えるので、月々の出費を抑えられるのも魅力です。また、BSアンテナがありCATVにも対応しているので、おうち時間も充実するでしょう(別途工事、BS・CATVの契約料等が必要な場合あり)。
建物にはエレベーターがついているので、重い荷物があっても安心。共用部には宅配ボックスが設定されているので、不在の時にも荷物を受け取ることができます。また、ペット飼育の相談ができますので、あなたの大切な家族の一員も快適に暮らせるか、ぜひ確認してみてください。
このお部屋は2階以上に位置しているので、通行人や周囲の住人からの視線が気になりにくく、防犯面でも安心。建物のエントランスはオートロックがついており、インターホンにはTVモニタもついているため、相手の顔を確認してから来客対応することができます。
おしゃれなデザイナーズ物件!人気の角部屋で周囲の居住者の生活音も気になりにくく、また、フローリングのお部屋なのでお掃除もラクラク。室内にはウォークインクローゼットがありますので、たくさんの荷物も効率的に収納ができます。キッチンはシステムキッチン仕様になっていますので、お料理好きの方にもぴったり。バス・トイレは別なので、のんびりお風呂タイムも楽しめるでしょう。また、雨の日でも浴室乾燥機を使えば、お洗濯も問題ありません。
通信設備面では、インターネットが無料で使えるので、月々の出費を抑えられるのも魅力です。また、BSアンテナがありCATVにも対応しているので、おうち時間も充実するでしょう(別途工事、BS・CATVの契約料等が必要な場合あり)。
建物にはエレベーターがついているので、重い荷物があっても安心。共用部には宅配ボックスが設定されているので、不在の時にも荷物を受け取ることができます。また、ペット飼育の相談ができますので、あなたの大切な家族の一員も快適に暮らせるか、ぜひ確認してみてください。
お金・契約の情報
※「-」と表示されているものは、実際は料金が発生するものもございます。詳細はお問い合わせください。
| 家賃 | 18.4万円 | 管理費・共益費 | 1万円 |
|---|---|---|---|
| 敷金 | なし | 礼金 | なし |
| 入居決定でお祝い金最大100,000円 | |||
| 保証金 | - | 償却・敷引 | - |
| 住宅保険料 | - | 更新料 | - |
| 保証会社利用 | 必須 | 保証会社名 | - |
| 保証会社費用 | - | 保証会社備考 | 保証会社利用必 初回保証料 総賃料50%(最低保証料20,000円)月額保証料 総賃料1.5%/月(口座振替 引落手数料込) |
| 契約形態 | - | 契約期間 | - |
| 入居・引渡期間 | 即時 | 現況 | - |
| 入居可能条件 | ペット相談 | ||
| 契約備考 | 2SLDK 二人入居可/ペット相談 普通借家2年 損保【2.5万円2年】 バストイレ別、バルコニー、エアコン、クロゼット、フローリング、シャワー付洗面台、TVインターホン、浴室乾燥機、オートロック、室内洗濯置、陽当り良好、システムキッチン、追焚機能浴室、角住戸、温水洗浄便座、脱衣所、エレベーター、洗面所独立、洗面化粧台、2口コンロ、駐輪場、宅配ボックス、CATV、外壁タイル張り、即入居可、3口以上コンロ、対面式キッチン、ペット相談、全居室収納、グリル付、全居室洋室、振分、ウォークインクロゼット、バイク置場、全居室フローリング、デザイナーズ、LDK15畳以上、ディンプルキー、ネット専用回線、ネット使用料不要、雨戸、築2年以内、24時間換気システム、平坦地、納戸、一部フローリング、3駅以上利用可、3沿線以上利用可、敷地内ごみ置き場、都市ガス、洗面所にドア、縦型照明付洗面化粧台、ウォークインクロゼット2、BS、高速ネット対応、敷金・礼金不要、IT重説対応物件、初期費用カード決済可、通風良好 | ||
部屋の情報
| 間取り | 2SLDK | 専有面積 | 68.44m2 |
|---|---|---|---|
| 所在階 / 向き | 4階 / 西 | バルコニー面積 | - |
| 水道 / ガス | - | ||
| 設備 | バス・トイレ別、2階以上、オートロック、テレビドアホン、宅配ボックス、浴室乾燥機、ウォークインクローゼット、追い焚き、インターネット対応、システムキッチン、エアコン、エレベーター、温水洗浄便座、角部屋、バルコニー、フローリング、洗髪洗面化粧台、2口コンロ、デザイナーズ、CATV、BSアンテナ、インターネット使用料無料、洗濯機:室内 | ||
| 当社物件ID | 159041715 | ||
建物の情報
| 建物名 | GROOVE上甲子園レジデンス | ||
|---|---|---|---|
| 所在地 | 兵庫県西宮市上甲子園 | ||
| 交通 | 阪神本線 久寿川駅 徒歩12分 阪急今津線 今津駅(阪急) 徒歩15分 JR東海道本線 甲子園口駅 徒歩19分 | ||
| 階数 | 7階建 | 総戸数 | 28戸 |
| 築年月 | 2025年08月 / 築1年 | エレベーター | あり |
| 駐車場 | 空有 18700円 | バイク置き場 | あり |
| 駐輪場 | あり | 管理人/管理会社 | - |
| 周辺環境 | その他 ミニストップ 甲子園口5丁目店(コンビニ)まで478m その他 グルメシティ今津店(コンビニ)まで826m その他 セブンイレブン 西宮上甲子園店(コンビニ)まで1029m その他 サンディ 今津店(スーパー)まで1316m その他 ライフ甲子園店(スーパー)まで1217m その他 阪急今津駅(その他)まで1492m | ||
| 建物種別 | マンション | 建物構造 | RC(鉄筋コンクリート) |
この部屋の取扱い不動産会社
| 会社名 | ピタットハウス岡本店(株)ライブデザイン(SUUMO経由) | ||
|---|---|---|---|
| 所在地 | 兵庫県神戸市東灘区岡本1-11-26 1F | 交通 | - |
| 営業時間 | 09:00~19:00 | 定休日 | 毎週水曜日 |
| 免許番号 | 国土交通大臣10464 | 取引態様 | 仲介 |
| 不動産会社管理番号 | 100485128626 | 当社管理番号 | 89 |
| 所属団体 | (公社)全日本不動産協会兵庫県本部会員 | ||
| 公正取引協議会 | (公社)近畿地区不動産公正取引協議会加盟 | ||
| 取扱い物件情報 | 物件詳細へ | ||
※各種情報と現状に差異がある場合は、現状優先となります。問い合わせをすることで、より詳しい条件、情報を確認する事ができます。
提供:ピタットハウス岡本店(株)ライブデザイン(SUUMO経由)
この物件が気になったら掲載期限まであと10日
GROOVE上甲子園レジデンスに条件(家賃・エリア)が近い物件一覧
| 写真 | 家賃 管理費等 | 敷金 礼金 | 間取り 専有面積 | 築年数 | 最寄り駅 所在地 | キープ | 詳細 |
|---|---|---|---|---|---|---|---|
アパート LA LUCE OSAKA OVEST(2LDK/1階) | |||||||
![]() | 20.7万円 なし | なし 20.7万円 | 2LDK 86.94m2 | 築1年 | JR東西線 加島駅 徒歩18分 JR東海道本線 尼崎駅(JR) 徒歩20分 阪急神戸線 園田駅 徒歩29分 兵庫県尼崎市神崎町 | 詳細を見る | |
マンション LIVECASA西宮(2LDK/5階) | |||||||
![]() | 15.3万円 1.2万円 | なし なし | 2LDK 47.28m2 | 築1年 | 阪神本線 西宮駅(阪神) 徒歩7分 JR東海道本線 西宮駅(JR) 徒歩9分 阪急神戸線 夙川駅 徒歩19分 兵庫県西宮市中前田町 | 詳細を見る | |
マンション トリシア武庫川(2LDK/3階) | |||||||
![]() | 14.9万円 6,000円 | なし 29.8万円 | 2LDK 68.16m2 | 築1年 | 阪急神戸線 武庫之荘駅 徒歩18分 阪急神戸線 西宮北口駅 徒歩32分 JR東海道本線 立花駅 徒歩42分 兵庫県尼崎市武庫町 | 詳細を見る | |
マンション グッズイン芦屋(3LDK/3階) | |||||||
![]() | 15万円 5,000円 | 15万円 15万円 | 3LDK 76.9m2 | 築36年 | 阪神本線 打出駅 徒歩11分 JR東海道本線 芦屋駅(JR) 徒歩20分 阪急神戸線 芦屋川駅 徒歩29分 兵庫県芦屋市西蔵町 | 詳細を見る | |
マンション SDグランツ新神戸ステーションフロント(1LDK/4階) | |||||||
![]() | 12.5万円 9,000円 | なし 12.5万円 | 1LDK 39.2m2 | 築1年 | 地下鉄西神・山手線 新神戸駅 徒歩1分 地下鉄北神線 新神戸駅 徒歩1分 JR東海道本線 三ノ宮駅(JR) 徒歩15分 兵庫県神戸市中央区生田町 | 詳細を見る | |
マンション KDXレジデンス夙川ヒルズ(3LDK/2階) | |||||||
![]() | 15万円 1万円 | 15万円 15万円 | 3LDK 79.37m2 | 築28年 | 阪急電鉄甲陽線 苦楽園口駅 徒歩11分 阪急電鉄神戸線 夙川駅 徒歩19分 兵庫県西宮市樋之池町 7-5 | 詳細を見る | |
マンション レフィナード(3LDK/5階) | |||||||
![]() | 14.2万円 1.5万円 | なし なし | 3LDK 75m2 | 築28年 | 阪急今津線 門戸厄神駅 徒歩15分 阪急神戸線 西宮北口駅 徒歩22分 JR東海道本線 西宮駅(JR) 徒歩23分 兵庫県西宮市広田町 | 詳細を見る | |
マンション 星合ビル(ワンルーム/1階) | |||||||
![]() | 27.5万円 なし | 55万円 82.5万円 | ワンルーム 118m2 | 築43年 | 地下鉄西神・山手線 板宿駅 徒歩2分 山陽電鉄本線 板宿駅 徒歩2分 JR山陽本線 垂水駅 徒歩16分 兵庫県神戸市須磨区平田町 | 詳細を見る | |








