賃貸アパート
リピュートユニティの賃貸物件情報(1LDK/2階)
| 家賃 | 管理費等 | 敷金 | 礼金 | 間取り | 専有面積 |
|---|---|---|---|---|---|
| 4万円 | なし | なし | なし | 1LDK | 41.87m2 |
入居決定でお祝い金最大100,000円
Point
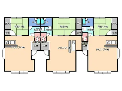
リビング13帖あります♪
提供:(株)宇都宮貸家センター江曽島営業所(SUUMO経由)

詳細情報 リピュートユニティ
物件紹介
リピュートユニティは東武宇都宮線西川田駅から徒歩10分にあり、駅近で通勤通学に便利なアパートです。
このお部屋は2階以上に位置しているので、通行人や周囲の住人からの視線が気になりにくく、防犯面でも安心です。
人気の南向きのお部屋。また、フローリングなのでお掃除もラクラク。バス・トイレ別の仕様で、のんびりお風呂タイムも楽しめます。
このお部屋は2階以上に位置しているので、通行人や周囲の住人からの視線が気になりにくく、防犯面でも安心です。
人気の南向きのお部屋。また、フローリングなのでお掃除もラクラク。バス・トイレ別の仕様で、のんびりお風呂タイムも楽しめます。
お金・契約の情報
※「-」と表示されているものは、実際は料金が発生するものもございます。詳細はお問い合わせください。
| 家賃 | 4万円 | 管理費・共益費 | なし |
|---|---|---|---|
| 敷金 | なし | 礼金 | なし |
| 入居決定でお祝い金最大100,000円 | |||
| 保証金 | - | 償却・敷引 | - |
| 住宅保険料 | - | 更新料 | - |
| 保証会社利用 | 必須 | 保証会社名 | - |
| 保証会社費用 | - | 保証会社備考 | 保証会社利用必 初回保証料総賃料の50%(最低保証料20,000円) / 月額保証料800円 / 引落手数料440円 |
| 契約形態 | - | 契約期間 | - |
| 入居・引渡期間 | 即時 | 現況 | - |
| 契約備考 | 合計4.5万円(内訳:ルームクリーニング費用45000円) 1LDK 普通借家2年 損保【2万円2年】 バストイレ別、エアコン、フローリング、室内洗濯置、陽当り良好、シューズボックス、南向き、押入、即入居可、閑静な住宅地、最上階、対面式キッチン、駐車場1台無料、内階段、駅徒歩10分以内、LDK12畳以上、和室、プロパンガス、敷金・礼金不要、IT重説対応物件 | ||
部屋の情報
| 間取り | 1LDK | 専有面積 | 41.87m2 |
|---|---|---|---|
| 所在階 / 向き | 2階 / 南 | バルコニー面積 | - |
| 水道 / ガス | - | ||
| 設備 | バス・トイレ別、2階以上、エアコン、南向き、フローリング、洗濯機:室内 | ||
| 当社物件ID | 28122966 | ||
建物の情報
| 建物名 | リピュートユニティ | ||
|---|---|---|---|
| 所在地 | 栃木県宇都宮市西川田本町 | ||
| 交通 | 東武宇都宮線 西川田駅 徒歩10分 | ||
| 階数 | 2階建 | 総戸数 | 6戸 |
| 築年月 | 1988年04月 / 築39年 | エレベーター | - |
| 駐車場 | 空有 付無料 | バイク置き場 | - |
| 駐輪場 | - | 管理人/管理会社 | - |
| 周辺環境 | その他 ヨークベニマル 西川田店(スーパー)まで851m その他 セブンイレブン 宇都宮西川田2丁目店(コンビニ)まで691m | ||
| 建物種別 | アパート | 建物構造 | 木造 |
この部屋の取扱い不動産会社
| 会社名 | (株)宇都宮貸家センター江曽島営業所(SUUMO経由) | ||
|---|---|---|---|
| 所在地 | 栃木県宇都宮市八千代2-11-12 | 交通 | - |
| 営業時間 | 9:30(日祭10:00)~18:30 | 定休日 | 水曜日、第2火曜日 |
| 免許番号 | 栃木県知事1525 | 取引態様 | 仲介 |
| 不動産会社管理番号 | 100090525778 | 当社管理番号 | 89 |
| 所属団体 | (公社)栃木県宅地建物取引業協会会員 | ||
| 公正取引協議会 | (公社)首都圏不動産公正取引協議会加盟 | ||
| 取扱い物件情報 | 物件詳細へ | ||
※各種情報と現状に差異がある場合は、現状優先となります。問い合わせをすることで、より詳しい条件、情報を確認する事ができます。
提供:(株)宇都宮貸家センター江曽島営業所(SUUMO経由)
この物件が気になったら掲載期限まであと11日
リピュートユニティに条件(家賃・エリア)が近い物件一覧
| 写真 | 家賃 管理費等 | 敷金 礼金 | 間取り 専有面積 | 築年数 | 最寄り駅 所在地 | キープ | 詳細 |
|---|---|---|---|---|---|---|---|
アパート メゾン・ドゥ・ナミA(1K/2階) | |||||||
![]() | 5.8万円 3,000円 | 5.8万円 なし | 1K 33.05m2 | 築21年 | 東北本線 宇都宮駅 徒歩121分 栃木県宇都宮市ゆいの杜2丁目 | 詳細を見る | |
アパート クレスト雅B棟(1LDK/1階) | |||||||
![]() | 4.5万円 2,000円 | なし なし | 1LDK 34.21m2 | 築20年 | 東北本線 雀宮駅 徒歩20分 栃木県宇都宮市茂原町 | 詳細を見る | |
アパート アクツハイツⅠ(3DK/2階) | |||||||
![]() | 4.2万円 なし | なし なし | 3DK 40m2 | 築50年 | 東武宇都宮線 江曽島駅 徒歩23分 JR日光線 鶴田駅 徒歩43分 JR宇都宮線 宇都宮駅 徒歩55分 栃木県宇都宮市江曽島町 | 詳細を見る | |
アパート コントラストD棟(1LDK/1階) | |||||||
![]() | 3.5万円 2,000円 | なし なし | 1LDK 45m2 | 築29年 | 東武日光線 新鹿沼駅 徒歩5分 JR日光線 鹿沼駅 徒歩28分 東武日光線 北鹿沼駅 徒歩37分 栃木県鹿沼市蓬莱町 | 詳細を見る | |
アパート グリーンハイツヒロミ(1K/2階) | |||||||
![]() | 4万円 なし | 4万円 なし | 1K 23.18m2 | 築35年 | JR日光線 鹿沼駅 徒歩10分 東武日光線 新鹿沼駅 徒歩30分 栃木県鹿沼市上野町 | 詳細を見る | |
アパート ハイツスクエア(2K/1階) | |||||||
![]() | 3.2万円 なし | なし 3.2万円 | 2K 35m2 | 築34年 | JR日光線 鹿沼駅 徒歩7分 東武日光線 新鹿沼駅 徒歩36分 東武日光線 北鹿沼駅 徒歩42分 栃木県鹿沼市上野町 | 詳細を見る | |
アパート リェス ソーンチェ B(1LDK/2階) | |||||||
![]() | 4.9万円 3,500円 | なし なし | 1LDK 46.54m2 | 築11年 | JR日光線 鹿沼駅 徒歩29分 東武日光線 新鹿沼駅 徒歩39分 東武日光線 樅山駅 徒歩62分 栃木県鹿沼市緑町 | 詳細を見る | |
アパート ラフォーレ・昴B(1K/1階) | |||||||
![]() | 3.7万円 なし | 3.7万円 なし | 1K 24.71m2 | 築31年 | JR日光線 鹿沼駅 徒歩13分 東武日光線 新鹿沼駅 徒歩24分 東武日光線 北鹿沼駅 徒歩37分 栃木県鹿沼市府中町 | 詳細を見る | |









