賃貸マンション
ダノイ美崇の賃貸物件情報(2LDK/1階)
| 家賃 | 管理費等 | 敷金 | 礼金 | 間取り | 専有面積 |
|---|---|---|---|---|---|
| 10万円 | 5,000円 | 10万円 | なし | 2LDK | 60.32m2 |
入居決定でお祝い金最大100,000円
Point
セキュリティ面は、オートロック・TVインターホンなどを備え付けているので安心して暮らせます。
提供:(株)ユニホー緑営業所住まい研究室(SUUMO経由)

詳細情報 ダノイ美崇
物件紹介
ダノイ美崇は名古屋市東山線藤が丘駅から徒歩7分にあり、駅近で通勤通学に便利なマンションです。
建物のエントランスはオートロックがついており、インターホンにはTVモニタもついているため、相手の顔を確認してから来客対応することができます。
人気の南向き・フローリングのお部屋。角部屋でもあるため、周囲の居住者の生活音も気になりにくい場所です。キッチンはシステムキッチン仕様になっていますので、お料理好きの方にもぴったり。また、バス・トイレは別で、のんびりお風呂タイムも楽しめるでしょう。
通信設備面では、インターネットが無料で使えるので、月々の出費を抑えられるのも魅力です。また、BSアンテナがありCATVにも対応しているので、おうち時間も充実するでしょう(別途工事、BS・CATVの契約料等が必要な場合あり)。
共用部には宅配ボックスが設定されているので、不在の時にも荷物を受け取ることができます。
コンビニまで徒歩3分の場所にあり、日用品や食料品のお買い物にも便利です。
建物のエントランスはオートロックがついており、インターホンにはTVモニタもついているため、相手の顔を確認してから来客対応することができます。
人気の南向き・フローリングのお部屋。角部屋でもあるため、周囲の居住者の生活音も気になりにくい場所です。キッチンはシステムキッチン仕様になっていますので、お料理好きの方にもぴったり。また、バス・トイレは別で、のんびりお風呂タイムも楽しめるでしょう。
通信設備面では、インターネットが無料で使えるので、月々の出費を抑えられるのも魅力です。また、BSアンテナがありCATVにも対応しているので、おうち時間も充実するでしょう(別途工事、BS・CATVの契約料等が必要な場合あり)。
共用部には宅配ボックスが設定されているので、不在の時にも荷物を受け取ることができます。
コンビニまで徒歩3分の場所にあり、日用品や食料品のお買い物にも便利です。
お金・契約の情報
※「-」と表示されているものは、実際は料金が発生するものもございます。詳細はお問い合わせください。
| 家賃 | 10万円 | 管理費・共益費 | 5,000円 |
|---|---|---|---|
| 敷金 | 10万円 | 礼金 | なし |
| 入居決定でお祝い金最大100,000円 | |||
| 保証金 | - | 償却・敷引 | - |
| 住宅保険料 | 1円 | 更新料 | - |
| 保証会社利用 | 必須 | 保証会社名 | - |
| 保証会社費用 | - | 保証会社備考 | 初回保証料 総賃料×50%、月額保証料 総賃料×1.5%(変動費含む) |
| 契約形態 | - | 契約期間 | 2年 |
| 入居・引渡期間 | 相談 | 現況 | - |
| 入居可能条件 | 2人入居可 | ||
| 契約備考 | 火災保険・保証会社要加入 鍵交換費用:11000 その他設備/条件:室内洗濯機置き場、独立洗面台、クローゼット、シューズボックス、オートバス | ||
部屋の情報
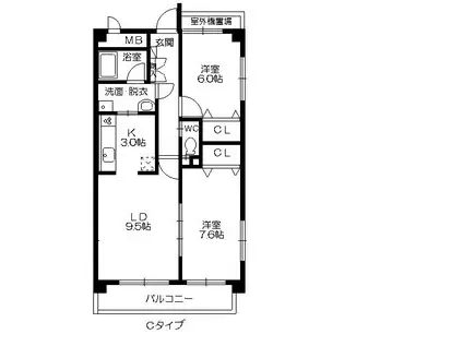
| 間取り | 2LDK | 専有面積 | 60.32m2 |
|---|---|---|---|
| 間取り詳細 | 洋室(6帖)、洋室(7.6帖)、LDK(12.5帖) | ||
| 所在階 / 向き | 1階 / 南 | バルコニー面積 | - |
| 水道 / ガス | 水道【公営】、ガス【都市】 | ||
| 設備 | バス・トイレ別、オートロック、テレビドアホン、宅配ボックス、追い焚き、インターネット対応、システムキッチン、エアコン、角部屋、バルコニー、フローリング、洗髪洗面化粧台、3口コンロ、コンロ:ガス、CATV、BSアンテナ、インターネット使用料無料、シャワー、給湯 | ||
| 当社物件ID | 771211 | ||
建物の情報
| 建物名 | ダノイ美崇 | ||
|---|---|---|---|
| 所在地 | 愛知県名古屋市名東区富が丘 | ||
| 交通 | 名古屋市東山線 藤が丘駅(愛知) 徒歩7分 名古屋市東山線 本郷駅(愛知) 徒歩22分 | ||
| 階数 | 3階建 | 総戸数 | 8戸 |
| 築年月 | 2006年04月 / 築20年 | エレベーター | - |
| 駐車場 | 空有 1.1万円/月 | バイク置き場 | - |
| 駐輪場 | あり | 管理人/管理会社 | - |
| 周辺環境 | コンビニ 徒歩3分(186m) 小学校 名古屋市立藤が丘小学校 徒歩9分(664m) その他 ドラッグストア その他 公園 その他 銀行 その他 藤が丘駅 徒歩7分(529m) | ||
| 建物種別 | マンション | 建物構造 | RC(鉄筋コンクリート) |
この部屋の取扱い不動産会社
| 会社名 | ハウスコム東海株式会社 藤が丘店 | ||
|---|---|---|---|
| 所在地 | 愛知県名古屋市名東区123-2第一明が丘ビル1階 | 交通 | - |
| 営業時間 | 10:00~18:00 | 定休日 | - |
| 免許番号 | 国土交通大臣(1)第10227号 | 取引態様 | 仲介 |
| 不動産会社管理番号 | HC2-408607-101-0059 | 当社管理番号 | 468 |
| 所属団体 | 、 | ||
| 取扱い物件情報 | 物件詳細へ | ||
※各種情報と現状に差異がある場合は、現状優先となります。問い合わせをすることで、より詳しい条件、情報を確認する事ができます。
提供:ハウスコム東海株式会社 藤が丘店
この物件が気になったら掲載期限まであと4日
ダノイ美崇に条件(家賃・エリア)が近い物件一覧
| 写真 | 家賃 管理費等 | 敷金 礼金 | 間取り 専有面積 | 築年数 | 最寄り駅 所在地 | キープ | 詳細 |
|---|---|---|---|---|---|---|---|
マンション ミリアン宮前(2LDK/2階) | |||||||
![]() | 6万円 5,000円 | なし なし | 2LDK 68.67m2 | 築35年 | 名鉄瀬戸線 小幡駅 徒歩34分 愛知県名古屋市名東区引山1丁目 | 詳細を見る | |
アパート サンパティー・Ⅰ南(2DK/1階) | |||||||
![]() | 7.1万円 5,000円 | 7.1万円 7.1万円 | 2DK 50.34m2 | 築25年 | 中央本線 春日井駅(JR) 徒歩12分 愛知県春日井市弥生町2丁目 | 詳細を見る | |
マンション アザレア宮前(3DK/3階) | |||||||
![]() | 6.5万円 3,000円 | なし なし | 3DK 54.47m2 | 築30年 | 東海道本線 枇杷島駅 徒歩5分 名鉄名古屋本線 二ツ杁駅 徒歩13分 愛知県清須市西枇杷島町宮前1丁目 | 詳細を見る | |
マンション ヴェルデ小田井(2LDK/2階) | |||||||
![]() | 12.4万円 8,000円 | なし 24.8万円 | 2LDK 68.39m2 | 築1年 | 名鉄犬山線 下小田井駅 徒歩8分 名鉄犬山線 中小田井駅 徒歩15分 JR東海道本線 枇杷島駅 徒歩22分 愛知県清須市西枇杷島町小田井 | 詳細を見る | |
マンション エトワール共栄(2LDK/1階) | |||||||
![]() | 7.5万円 6,000円 | 15万円 なし | 2LDK 60.4m2 | 築26年 | JR東海道本線 共和駅 徒歩3分 JR東海道本線 南大高駅 徒歩29分 JR東海道本線 大府駅 徒歩41分 愛知県大府市共栄町 | 詳細を見る | |
マンション ブルーム上社(1K/3階) | |||||||
![]() | 6万円 2,000円 | なし なし | 1K 31m2 | 築21年 | 名古屋市東山線 上社駅 徒歩3分 愛知県名古屋市名東区上社2丁目 | 詳細を見る | |
マンション やすいコーポ(2LDK/4階) | |||||||
![]() | 7万円 3,500円 | 9.8万円 なし | 2LDK 69.49m2 | 築43年 | 名鉄津島線 甚目寺駅 徒歩37分 地下鉄東山線 中村公園駅 徒歩37分 地下鉄東山線 岩塚駅 徒歩50分 愛知県海部郡大治町大字東條高松 | 詳細を見る | |
アパート すずらん 古井(2LDK/1階) | |||||||
![]() | 6.5万円 4,000円 | 6.5万円 なし | 2LDK 57.33m2 | 築21年 | 名鉄犬山線 徳重・名古屋芸大駅 徒歩8分 愛知県北名古屋市熊之庄古井 | 詳細を見る | |

/105x80-f1-q70-wp1)






/105x80-f1-q70-wp1)