賃貸アパート
カレッジ浜の賃貸物件情報(1K/2階)
| 家賃 | 管理費等 | 敷金 | 礼金 | 間取り | 専有面積 |
|---|---|---|---|---|---|
| 3.4万円 | 2,200円 | なし | なし | 1K | 23m2 |
入居決定でお祝い金最大100,000円
- 保証金
- -
- 償却・敷引
- -
- 築年数
- 築40年
- 所在階
- 2階
- 向き
- 南
Point
浜1k、女性専用、家具家電付きのお部屋。ネット無料。
提供:(株)良和ハウス岡山駅西口店(SUUMO経由)

詳細情報 カレッジ浜
物件紹介
カレッジ浜はJR山陽本線西川原駅から徒歩6分にあり、駅近で通勤通学に便利なアパートです。
このお部屋は2階以上に位置しているので、通行人や周囲の住人からの視線が気になりにくく、防犯面でも安心。インターホンにはTVモニタもついているため、相手の顔を確認してから来客対応することができます。
人気の南向きのお部屋。また、フローリングなのでお掃除もラクラク。バス・トイレ別の仕様で、のんびりお風呂タイムも楽しめます。
通信設備面では、インターネットが無料で使えるので、月々の出費を抑えられるのも魅力です(別途工事等が必要な場合あり)。
このお部屋は2階以上に位置しているので、通行人や周囲の住人からの視線が気になりにくく、防犯面でも安心。インターホンにはTVモニタもついているため、相手の顔を確認してから来客対応することができます。
人気の南向きのお部屋。また、フローリングなのでお掃除もラクラク。バス・トイレ別の仕様で、のんびりお風呂タイムも楽しめます。
通信設備面では、インターネットが無料で使えるので、月々の出費を抑えられるのも魅力です(別途工事等が必要な場合あり)。
お金・契約の情報
※「-」と表示されているものは、実際は料金が発生するものもございます。詳細はお問い合わせください。
| 家賃 | 3.4万円 | 管理費・共益費 | 2,200円 |
|---|---|---|---|
| 敷金 | なし | 礼金 | なし |
| 入居決定でお祝い金最大100,000円 | |||
| 保証金 | - | 償却・敷引 | - |
| 住宅保険料 | - | 更新料 | - |
| 契約形態 | - | 契約期間 | - |
| 入居・引渡期間 | 即時 | 現況 | - |
| 契約備考 | JR津山線法界院駅徒歩28分/巡回管理/お気軽にお問い合わせください。 合計1.98万円(内訳:鍵交換代 19800円税込) 1K 女性限定 普通借家2年 損保【1.6万円2年】 バストイレ別、バルコニー、エアコン、ガスコンロ対応、フローリング、TVインターホン、室内洗濯置、陽当り良好、南向き、温水洗浄便座、駐輪場、光ファイバー、即入居可、閑静な住宅地、最上階、照明付、全居室洋室、冷蔵庫、バイク置場、全居室フローリング、ネット専用回線、駅まで平坦、洗濯機、ネット使用料不要、平坦地、電子レンジ、家電付、家具付、前面棟無、3駅以上利用可、3沿線以上利用可、防犯強化地域、駅徒歩10分以内、敷地内ごみ置き場、プロパンガス、高速ネット対応、敷金・礼金不要、IT重説対応物件、通風良好 | ||
部屋の情報
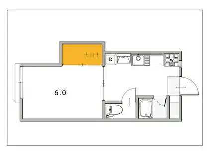
| 間取り | 1K | 専有面積 | 23m2 |
|---|---|---|---|
| 所在階 / 向き | 2階 / 南 | バルコニー面積 | - |
| 水道 / ガス | - | ||
| 設備 | バス・トイレ別、2階以上、テレビドアホン、インターネット対応、エアコン、温水洗浄便座、南向き、バルコニー、フローリング、コンロ:ガス、インターネット使用料無料、洗濯機:室内 | ||
| 当社物件ID | 8433497 | ||
建物の情報
| 建物名 | カレッジ浜 | ||
|---|---|---|---|
| 所在地 | 岡山県岡山市中区浜 | ||
| 交通 | JR山陽本線 西川原駅 徒歩6分 JR赤穂線 西川原駅 徒歩6分 岡山電軌東山本線 城下駅(岡山) 徒歩22分 | ||
| 階数 | 2階建 | 総戸数 | - |
| 築年月 | 1987年03月 / 築40年 | エレベーター | - |
| 駐車場 | 空有 5500円 | バイク置き場 | あり |
| 駐輪場 | あり | 管理人/管理会社 | - |
| 周辺環境 | その他 天満屋ハピータウン原尾島店(ショッピングセンター)まで961m その他 ユニクロ原尾島店(ショッピングセンター)まで896m その他 コープ東川原(スーパー)まで703m その他 ローソン岡山浜三丁目店(コンビニ)まで594m その他 くすりのラブ東川原店(ドラッグストア)まで572m その他 私立就実大学・短期大学(大学・短大)まで210m | ||
| 建物種別 | アパート | 建物構造 | 鉄骨造 |
この部屋の取扱い不動産会社
| 会社名 | エイブルネットワーク東岡山店BRUNO不動産(株)(SUUMO経由) | ||
|---|---|---|---|
| 所在地 | 岡山県岡山市中区長岡 472-1 | 交通 | - |
| 営業時間 | 09:00~17:30 | 定休日 | 年末年始12月28日~1月3日 |
| 免許番号 | 国土交通大臣10228 | 取引態様 | 仲介 |
| 不動産会社管理番号 | 100414928468 | 当社管理番号 | 89 |
| 所属団体 | (一社)岡山県不動産協会会員 | ||
| 公正取引協議会 | 中国地区不動産公正取引協議会加盟 | ||
| 取扱い物件情報 | 物件詳細へ | ||
※各種情報と現状に差異がある場合は、現状優先となります。問い合わせをすることで、より詳しい条件、情報を確認する事ができます。
提供:エイブルネットワーク東岡山店BRUNO不動産(株)(SUUMO経由)
この物件が気になったら掲載期限まであと11日
カレッジ浜に条件(家賃・エリア)が近い物件一覧
| 写真 | 家賃 管理費等 | 敷金 礼金 | 間取り 専有面積 | 築年数 | 最寄り駅 所在地 | キープ | 詳細 |
|---|---|---|---|---|---|---|---|
アパート グランディールA(2LDK/2階) | |||||||
![]() | 4.5万円 2,200円 | なし なし | 2LDK 59.09m2 | 築21年 | 岡山県備前市大内 | 詳細を見る | |
アパート ニューシティサルビア(1K/2階) | |||||||
![]() | 2.8万円 2,200円 | 5万円 なし | 1K 22.02m2 | 築31年 | 岡山県岡山市中区平井1丁目 | 詳細を見る | |
マンション サンレック中井(1K/2階) | |||||||
![]() | 2.2万円 3,500円 | なし 2.2万円 | 1K 19.82m2 | 築36年 | 山陽本線 高島駅(岡山) 徒歩14分 山陽本線 西川原駅 徒歩38分 津山線 備前原駅 徒歩39分 岡山県岡山市中区中井 | 詳細を見る | |
アパート タウニィ88(1K/2階) | |||||||
![]() | 2.9万円 3,000円 | なし 2.9万円 | 1K 21.28m2 | 築39年 | 山陽本線 高島駅(岡山) 徒歩15分 山陽本線 西川原駅 徒歩27分 岡山電軌東山本線 東山・おかでんミュージアム駅駅 徒歩39分 岡山県岡山市中区藤原西町2丁目 | 詳細を見る | |
アパート エクセレンス祇園(2DK/1階) | |||||||
![]() | 5.2万円 なし | なし なし | 2DK 42.48m2 | 築32年 | 津山線 玉柏駅 徒歩21分 津山線 備前原駅 徒歩41分 山陽本線 高島駅(岡山) 徒歩42分 岡山県岡山市中区 | 詳細を見る | |
アパート アメニティタウンA(2LDK/1階) | |||||||
![]() | 5.5万円 2,200円 | 5.5万円 5.5万円 | 2LDK 52.89m2 | 築31年 | 山陽本線 西川原駅 徒歩20分 山陽本線 高島駅(岡山) 徒歩22分 岡山県岡山市中区東川原 | 詳細を見る | |
アパート ファミーユK・B(ワンルーム/2階) | |||||||
![]() | 2.5万円 3,000円 | 5.5万円 なし | ワンルーム 21.67m2 | 築41年 | 山陽本線 西川原駅 徒歩2分 津山線 法界院駅 徒歩22分 岡山電軌東山本線 城下駅(岡山) 徒歩29分 岡山県岡山市中区西川原 | 詳細を見る | |
アパート カーサ後楽園(1LDK/3階) | |||||||
![]() | 4.7万円 3,000円 | なし なし | 1LDK 36m2 | 築34年 | 山陽本線 西川原駅 徒歩15分 岡山電軌東山本線 城下駅(岡山) 徒歩18分 岡山電軌東山本線 県庁通り駅 徒歩21分 岡山県岡山市中区浜2丁目 | 詳細を見る | |








