賃貸マンション
パークアクシス豊洲の賃貸物件情報(2LDK/16階)
| 家賃 | 管理費等 | 敷金 | 礼金 | 間取り | 専有面積 |
|---|---|---|---|---|---|
| 32.8万円 | 1万円 | 32.8万円 | なし | 2LDK | 69.74m2 |
入居決定でお祝い金最大100,000円
- 保証金
- -
- 償却・敷引
- -
- 築年数
- 築18年
- 所在階
- 16階
- 向き
- 南東
Point
現地集合、オンライン内見、LINEでのご相談などお客様のご希望に合わせた方法で物件をご提案いたします!SUUMOに載っていない非公開物件もご紹介できますので、ぜひお気軽にご相談ください♪
提供:A-Ship(株)(SUUMO経由)

詳細情報 パークアクシス豊洲
物件紹介
パークアクシス豊洲は東京メトロ有楽町線豊洲駅から徒歩8分にあり、駅近で通勤通学に便利なマンションです。
このお部屋は2階以上に位置しているので通行人や周囲の住人からの視線が気になりにくく、建物のエントランスはオートロックがついているので防犯性が高くなっています。
こちらは楽器相談が可能な物件。楽器演奏をお考えの方はぜひ相談してみてください。人気の南向きのお部屋。また、フローリングなのでお掃除もラクラク。キッチンはシステムキッチン仕様になっていますので、お料理好きの方にもぴったり。バス・トイレは別なので、のんびりお風呂タイムも楽しめるでしょう。また、雨の日でも浴室乾燥機を使えば、お洗濯も問題ありません。
通信設備面では、インターネット接続が可能です。また、BSアンテナ・CSアンテナがありCATVにも対応しているので、おうち時間も充実するでしょう(別途工事、契約料が必要な場合あり)。
建物にはエレベーターがついているので、重い荷物があっても安心。共用部には宅配ボックスが設定されているので、不在の時にも荷物を受け取ることができます。また、ペット飼育の相談ができますので、あなたの大切な家族の一員も快適に暮らせるか、ぜひ確認してみてください。
このお部屋は2階以上に位置しているので通行人や周囲の住人からの視線が気になりにくく、建物のエントランスはオートロックがついているので防犯性が高くなっています。
こちらは楽器相談が可能な物件。楽器演奏をお考えの方はぜひ相談してみてください。人気の南向きのお部屋。また、フローリングなのでお掃除もラクラク。キッチンはシステムキッチン仕様になっていますので、お料理好きの方にもぴったり。バス・トイレは別なので、のんびりお風呂タイムも楽しめるでしょう。また、雨の日でも浴室乾燥機を使えば、お洗濯も問題ありません。
通信設備面では、インターネット接続が可能です。また、BSアンテナ・CSアンテナがありCATVにも対応しているので、おうち時間も充実するでしょう(別途工事、契約料が必要な場合あり)。
建物にはエレベーターがついているので、重い荷物があっても安心。共用部には宅配ボックスが設定されているので、不在の時にも荷物を受け取ることができます。また、ペット飼育の相談ができますので、あなたの大切な家族の一員も快適に暮らせるか、ぜひ確認してみてください。
お金・契約の情報
※「-」と表示されているものは、実際は料金が発生するものもございます。詳細はお問い合わせください。
| 家賃 | 32.8万円 | 管理費・共益費 | 1万円 |
|---|---|---|---|
| 敷金 | 32.8万円 | 礼金 | なし |
| 入居決定でお祝い金最大100,000円 | |||
| 保証金 | - | 償却・敷引 | - |
| 住宅保険料 | - | 更新料 | - |
| 保証会社利用 | 必須 | 保証会社名 | - |
| 保証会社費用 | - | 保証会社備考 | 保証会社利用必 初回保証委託料(最低20,000円):月額賃料等の50%、 2年目以降:9,600円/年 |
| 契約形態 | - | 契約期間 | - |
| 入居・引渡期間 | 即時 | 現況 | - |
| 入居可能条件 | 楽器相談、ペット相談 | ||
| 契約備考 | 更新料新賃料1ヶ月クリーニング費用130413円 合計1.65万円(内訳:鍵交換代16500円) 口座振替事務手数料月額110円/月室内清掃費用130,413円 2LDK ペット相談/楽器相談 普通借家2年 損保【2万円2年】 バストイレ別、バルコニー、エアコン、フローリング、浴室乾燥機、オートロック、室内洗濯置、システムキッチン、エレベーター、洗面所独立、駐輪場、宅配ボックス、CATV、即入居可、礼金不要、BS・CS、ペット相談、IHクッキングヒーター、グリル付、敷金1ヶ月、2沿線利用可、CS、ネット専用回線、コインランドリー、楽器相談、フロントサービス、2駅利用可、駅徒歩10分以内、高層階、24時間ゴミ出し可、BS、保証会社利用可 | ||
部屋の情報
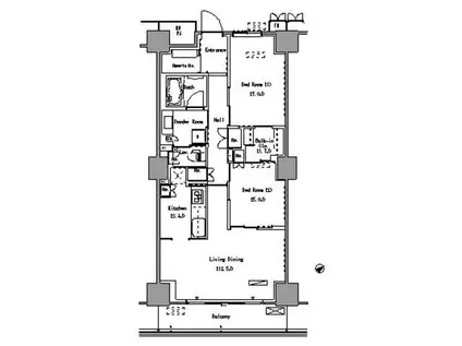
| 間取り | 2LDK | 専有面積 | 69.74m2 |
|---|---|---|---|
| 所在階 / 向き | 16階 / 南東 | バルコニー面積 | 8m2 |
| 水道 / ガス | - | ||
| 設備 | バス・トイレ別、2階以上、オートロック、宅配ボックス、浴室乾燥機、インターネット対応、システムキッチン、エアコン、エレベーター、南向き、バルコニー、フローリング、洗髪洗面化粧台、コンロ:IH、CATV、CSアンテナ、BSアンテナ、洗濯機:室内 | ||
| 当社物件ID | 160252679 | ||
建物の情報
| 建物名 | パークアクシス豊洲 | ||
|---|---|---|---|
| 所在地 | 東京都江東区豊洲 | ||
| 交通 | 東京メトロ有楽町線 豊洲駅 徒歩8分 新交通ゆりかもめ 豊洲駅 徒歩11分 東京メトロ有楽町線 月島駅 徒歩16分 | ||
| 階数 | 地下1地上20階建 | 総戸数 | - |
| 築年月 | 2008年03月 / 築18年 | エレベーター | あり |
| 駐車場 | 空有 27500円 | バイク置き場 | - |
| 駐輪場 | あり | 管理人/管理会社 | - |
| 周辺環境 | その他 セブンイレブン豊洲1丁目店(コンビニ)まで287m その他 デイリーヤマザキ豊洲キュービックG店(コンビニ)まで438m その他 どらっぐぱぱす豊洲フォレシア店(ドラッグストア)まで628m その他 松のや豊洲IHIビル店(飲食店)まで373m その他 松屋豊洲IHIビル店(マイカリー食堂併設)(飲食店)まで316m その他 江東豊洲郵便局(郵便局)まで706m | ||
| 建物種別 | マンション | 建物構造 | RC(鉄筋コンクリート) |
この部屋の取扱い不動産会社
| 会社名 | A-Ship(株)(SUUMO経由) | ||
|---|---|---|---|
| 所在地 | 東京都港区芝浦3-11-1 キョウワクリエイト第一ビル2階 | 交通 | - |
| 営業時間 | 9時~22時 | 定休日 | なし |
| 免許番号 | 東京都知事110659 | 取引態様 | 仲介 |
| 不動産会社管理番号 | 100484072996 | 当社管理番号 | 89 |
| 所属団体 | (公社)東京都宅地建物取引業協会会員 | ||
| 公正取引協議会 | (公社)首都圏不動産公正取引協議会加盟 | ||
| 取扱い物件情報 | 物件詳細へ | ||
※各種情報と現状に差異がある場合は、現状優先となります。問い合わせをすることで、より詳しい条件、情報を確認する事ができます。
提供:A-Ship(株)(SUUMO経由)
この物件が気になったら掲載期限まであと10日
パークアクシス豊洲の空き部屋一覧
全部で31の空き部屋があります。
パークアクシス豊洲に条件(家賃・エリア)が近い物件一覧
| 写真 | 家賃 管理費等 | 敷金 礼金 | 間取り 専有面積 | 築年数 | 最寄り駅 所在地 | キープ | 詳細 |
|---|---|---|---|---|---|---|---|
マンション ガリシア森下Ⅴ(1LDK/5階) | |||||||
![]() | 20.8万円 1.5万円 | なし なし | 1LDK 42.56m2 | 築5年 | 東京都大江戸線 森下駅(東京) 徒歩4分 総武・中央緩行線 両国駅 徒歩14分 東京都新宿線 菊川駅(東京) 徒歩14分 東京都墨田区千歳3丁目 | 詳細を見る | |
マンション プレール・ドゥーク両国Ⅳ(1LDK/2階) | |||||||
![]() | 20.7万円 1.1万円 | なし 20.7万円 | 1LDK 40.53m2 | 築2年 | 東京都大江戸線 両国駅 徒歩3分 総武・中央緩行線 両国駅 徒歩7分 東京都新宿線 森下駅(東京) 徒歩11分 東京都墨田区緑1丁目 | 詳細を見る | |
マンション コスモリード西馬込(2LDK/1階) | |||||||
![]() | 22.5万円 2万円 | 22.5万円 なし | 2LDK 54.23m2 | 築21年 | 都営浅草線 西馬込駅 徒歩12分 東急池上線 久が原駅 徒歩20分 東急池上線 御嶽山駅 徒歩22分 東京都大田区仲池上 | 詳細を見る | |
アパート 御殿山テラスⅡ(2LDK/1階) | |||||||
![]() | 22.5万円 3,000円 | 22.5万円 45万円 | 2LDK 57.6m2 | 築2年 | 山手線 大崎駅 徒歩8分 京浜急行電鉄本線 北品川駅 徒歩14分 東京都品川区北品川5丁目 | 詳細を見る | |
一戸建て 東京地下鉄東西線 木場駅 徒歩7分 築10年(2LDK) | |||||||
![]() | 24万円 なし | 48万円 24万円 | 2LDK 70.43m2 | 築10年 | 東京地下鉄東西線 木場駅 徒歩7分 東京都大江戸線 門前仲町駅 徒歩17分 京葉線 越中島駅 徒歩19分 東京都江東区木場6丁目 | 詳細を見る | |
マンション フロンティアレジデンス錦糸公園(1SLDK/2階) | |||||||
![]() | 33.3万円 1万円 | 33.3万円 なし | 1SLDK 59.7m2 | 築2年 | 東京地下鉄半蔵門線 押上駅 徒歩10分 東京地下鉄半蔵門線 錦糸町駅 徒歩13分 東京都墨田区横川5丁目 | 詳細を見る | |
マンション ラグゼナ平井ノース(1LDK/3階) | |||||||
![]() | 20万円 1万円 | なし なし | 1LDK 48.24m2 | 築1年 | 東武鉄道亀戸線 東あずま駅 徒歩11分 東武鉄道亀戸線 小村井駅 徒歩14分 東京都墨田区立花6丁目 | 詳細を見る | |
一戸建て 京浜東北・根岸線 蒲田駅 徒歩11分 築4年(2SLDK) | |||||||
![]() | 32.3万円 なし | 32.3万円 32.3万円 | 2SLDK 94.36m2 | 築4年 | 京浜東北・根岸線 蒲田駅 徒歩11分 東京都大田区東矢口3丁目 | 詳細を見る | |









