賃貸マンション
コスモリード西馬込の賃貸物件情報(2LDK/1階)
| 家賃 | 管理費等 | 敷金 | 礼金 | 間取り | 専有面積 |
|---|---|---|---|---|---|
| 22.5万円 | 2万円 | 22.5万円 | なし | 2LDK | 54.23m2 |
入居決定でお祝い金最大100,000円
Point
まずはお問い合わせ!
不動産会社は街のプロ、あなたに合った物件がきっと見つかります。
提供:アパマンショップ自由が丘店

詳細情報 コスモリード西馬込
物件紹介
コスモリード西馬込は東京都浅草線西馬込駅から徒歩11分にあるマンションです。
建物のエントランスはオートロックがついており、インターホンにはTVモニタもついているため、相手の顔を確認してから来客対応することができます。
人気の南向きのお部屋。また、フローリングなのでお掃除もラクラク。キッチンはシステムキッチン仕様になっていますので、お料理好きの方にもぴったり。バス・トイレは別なので、のんびりお風呂タイムも楽しめるでしょう。また、雨の日でも浴室乾燥機を使えば、お洗濯も問題ありません。
通信設備面では、インターネット接続が可能です。また、BSアンテナ・CSアンテナがありCATVにも対応しているので、おうち時間も充実するでしょう(別途工事、契約料が必要な場合あり)。
建物にはエレベーターがついているので、重い荷物があっても安心。共用部には宅配ボックスが設定されているので、不在の時にも荷物を受け取ることができます。
コンビニまで徒歩21分の場所にあり、日用品や食料品のお買い物にも便利です。
建物のエントランスはオートロックがついており、インターホンにはTVモニタもついているため、相手の顔を確認してから来客対応することができます。
人気の南向きのお部屋。また、フローリングなのでお掃除もラクラク。キッチンはシステムキッチン仕様になっていますので、お料理好きの方にもぴったり。バス・トイレは別なので、のんびりお風呂タイムも楽しめるでしょう。また、雨の日でも浴室乾燥機を使えば、お洗濯も問題ありません。
通信設備面では、インターネット接続が可能です。また、BSアンテナ・CSアンテナがありCATVにも対応しているので、おうち時間も充実するでしょう(別途工事、契約料が必要な場合あり)。
建物にはエレベーターがついているので、重い荷物があっても安心。共用部には宅配ボックスが設定されているので、不在の時にも荷物を受け取ることができます。
コンビニまで徒歩21分の場所にあり、日用品や食料品のお買い物にも便利です。
お金・契約の情報
※「-」と表示されているものは、実際は料金が発生するものもございます。詳細はお問い合わせください。
| 家賃 | 22.5万円 | 管理費・共益費 | 2万円 |
|---|---|---|---|
| 敷金 | 22.5万円 | 礼金 | なし |
| 入居決定でお祝い金最大100,000円 | |||
| 保証金 | - | 償却・敷引 | - |
| 住宅保険料 | - | 更新料 | - |
| 保証会社利用 | 利用可 | 保証会社名 | レジデントアシスタント |
| 保証会社費用 | - | 保証会社備考 | 初回:月額賃料(共益費・駐車場料金含む)の50%、年間:9,600円 |
| 契約形態 | - | 契約期間 | 2年 |
| 入居・引渡期間 | 相談 | 現況 | - |
| 契約備考 | 鍵交換費 44000円、[退去時費用:室内清掃費 83,514円 ※故意・過失等別途実費] | ||
部屋の情報
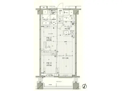
| 間取り | 2LDK | 専有面積 | 54.23m2 |
|---|---|---|---|
| 所在階 / 向き | 1階 / 南東 | バルコニー面積 | - |
| 水道 / ガス | - | ||
| 設備 | バス・トイレ別、オートロック、宅配ボックス、浴室乾燥機、システムキッチン、エレベーター、バルコニー、フローリング、CATV、CSアンテナ、洗濯機:室内 | ||
| 当社物件ID | 69464949 | ||
建物の情報
| 建物名 | コスモリード西馬込 | ||
|---|---|---|---|
| 所在地 | 東京都大田区仲池上1丁目 | ||
| 交通 | 東京都浅草線 西馬込駅 徒歩12分 | ||
| 階数 | 9階建 | 総戸数 | - |
| 築年月 | 2005年02月 / 築21年 | エレベーター | あり |
| 駐車場 | - | バイク置き場 | あり |
| 駐輪場 | - | 管理人/管理会社 | - |
| 周辺環境 | 病院 昭和大学病院 徒歩37分(2888m) その他 オーケー田園調布店 徒歩28分(2219m) その他 まいばすけっと 田園調布1丁目店 徒歩34分(2643m) その他 東京工業大学 徒歩38分(2996m) その他 大岡山駅 徒歩37分(2958m) その他 ローソン 徒歩42分(3347m) その他 東急ストア 徒歩39分(3052m) その他 大森駅 徒歩42分(3305m) | ||
| 建物種別 | マンション | 建物構造 | RC(鉄筋コンクリート) |
この部屋の取扱い不動産会社
| 会社名 | アパマンショップ渋谷道玄坂店 | ||
|---|---|---|---|
| 所在地 | 東京都渋谷区道玄坂2丁目 9-9光真ビル3階 | 交通 | 湘南新宿ライン宇須渋谷から徒歩1分 |
| 営業時間 | 10:00〜19:00(オンライン接客・内見可能!) | 定休日 | 水曜日 |
| 免許番号 | 国土交通大臣(5)6971 | 取引態様 | 仲介 |
| 不動産会社管理番号 | 89437442 | 当社管理番号 | 4 |
| 所属団体 | (公社)東京都宅地建物取引協会 | ||
| 公正取引協議会 | (公社) 首都圏不動産公正取引協議会加盟 | ||
| 取扱い物件情報 | 物件詳細へ | ||
※各種情報と現状に差異がある場合は、現状優先となります。問い合わせをすることで、より詳しい条件、情報を確認する事ができます。
提供:アパマンショップ渋谷道玄坂店
この物件が気になったら掲載期限まであと3日
コスモリード西馬込に条件(家賃・エリア)が近い物件一覧
| 写真 | 家賃 管理費等 | 敷金 礼金 | 間取り 専有面積 | 築年数 | 最寄り駅 所在地 | キープ | 詳細 |
|---|---|---|---|---|---|---|---|
マンション GRANDUO田園調布Ⅳ(1LDK/2階) | |||||||
![]() | 18.5万円 1.5万円 | なし なし | 1LDK 34.61m2 | 築6年 | 東急東横線 田園調布駅 徒歩4分 東急東横線 多摩川駅 徒歩11分 東京都大田区田園調布2丁目 | 詳細を見る | |
マンション ハイツ髙沢(1LDK/2階) | |||||||
![]() | 13.5万円 5,000円 | 13.5万円 27万円 | 1LDK 32.89m2 | 築7年 | 東急池上線 旗の台駅 徒歩5分 東急大井町線 荏原町駅 徒歩6分 横須賀線 西大井駅 徒歩21分 東京都品川区旗の台4丁目 | 詳細を見る | |
マンション スタイリオ池上WELL(1LDK/2階) | |||||||
![]() | 19.3万円 1.5万円 | 19.3万円 なし | 1LDK 42.63m2 | 築3年 | 東急池上線 池上駅 徒歩7分 東京都大田区池上7丁目 | 詳細を見る | |
一戸建て 東京地下鉄東西線 木場駅 徒歩7分 築10年(2LDK) | |||||||
![]() | 24万円 なし | 48万円 24万円 | 2LDK 70.43m2 | 築10年 | 東京地下鉄東西線 木場駅 徒歩7分 東京都大江戸線 門前仲町駅 徒歩17分 京葉線 越中島駅 徒歩19分 東京都江東区木場6丁目 | 詳細を見る | |
マンション ブランシエスタ西馬込(2LDK/4階) | |||||||
![]() | 19.7万円 1.8万円 | 19.7万円 19.7万円 | 2LDK 44.63m2 | 築2年 | 都営浅草線 西馬込駅 徒歩12分 東急池上線 久が原駅 徒歩18分 東急池上線 御嶽山駅 徒歩20分 東京都大田区仲池上 | 詳細を見る | |
マンション クレストコート門前仲町(1DK/10階) | |||||||
![]() | 15.5万円 1.2万円 | 15.5万円 なし | 1DK 26.14m2 | 築1年 | 都営大江戸線 門前仲町駅 徒歩7分 JR京葉線 越中島駅 徒歩11分 東京メトロ日比谷線 八丁堀駅(東京) 徒歩15分 東京都江東区永代 | 詳細を見る | |
マンション スプランディッド大島(1DK/2階) | |||||||
![]() | 13.9万円 1万円 | なし なし | 1DK 30.3m2 | 築1年 | 東京都新宿線 大島駅(東京) 徒歩6分 東京都江東区大島8丁目 | 詳細を見る | |
アパート セレスティア下丸子(2LDK/1階) | |||||||
![]() | 18.6万円 6,000円 | なし 37.2万円 | 2LDK 48.93m2 | 新築 | 東急多摩川線 武蔵新田駅 徒歩7分 東急多摩川線 下丸子駅 徒歩8分 東急多摩川線 矢口渡駅 徒歩22分 東京都大田区下丸子 | 詳細を見る | |








