賃貸アパート
長浜アパートの賃貸物件情報(ワンルーム/1階)
| 家賃 | 管理費等 | 敷金 | 礼金 | 間取り | 専有面積 |
|---|---|---|---|---|---|
| 4.8万円 | 3,000円 | なし | なし | ワンルーム | 16.67m2 |
入居決定でお祝い金最大100,000円
- 保証金
- -
- 償却・敷引
- -
- 築年数
- 築13年
- 所在階
- 1階
- 向き
- 北東
Point
まずはお問い合わせ!
不動産会社は街のプロ、あなたに合った物件がきっと見つかります。
提供:リロの不動産(株)日商ベックス横浜店(SUUMO経由)

詳細情報 長浜アパート
物件紹介
長浜アパートは京急本線能見台駅から徒歩8分にあり、駅近で通勤通学に便利なアパートです。
このお部屋のインターホンにはTVモニタがついているため、相手の顔を確認してから来客対応することができます。
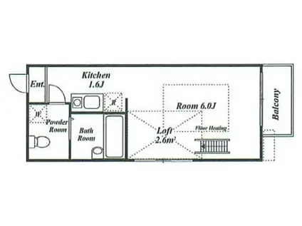
人気の角部屋で周囲の居住者の生活音も気になりにくく、また、フローリングのお部屋なのでお掃除もラクラク。室内にはウォークインクローゼットがありますので、たくさんの荷物も効率的に収納ができます。キッチンはシステムキッチン仕様になっていますので、お料理好きの方にもぴったり。バス・トイレは別なので、のんびりお風呂タイムも楽しめるでしょう。また、雨の日でも浴室乾燥機を使えば、お洗濯も問題ありません。
通信設備面では、インターネットが無料で使えるので、月々の出費を抑えられるのも魅力です。また、CATVにも対応しているので、おうち時間も充実するでしょう(別途工事、CATVの契約料等が必要な場合あり)。
床暖房があり、冬も足元から暖かく快適に過ごすことができます。
このお部屋のインターホンにはTVモニタがついているため、相手の顔を確認してから来客対応することができます。
人気の角部屋で周囲の居住者の生活音も気になりにくく、また、フローリングのお部屋なのでお掃除もラクラク。室内にはウォークインクローゼットがありますので、たくさんの荷物も効率的に収納ができます。キッチンはシステムキッチン仕様になっていますので、お料理好きの方にもぴったり。バス・トイレは別なので、のんびりお風呂タイムも楽しめるでしょう。また、雨の日でも浴室乾燥機を使えば、お洗濯も問題ありません。
通信設備面では、インターネットが無料で使えるので、月々の出費を抑えられるのも魅力です。また、CATVにも対応しているので、おうち時間も充実するでしょう(別途工事、CATVの契約料等が必要な場合あり)。
床暖房があり、冬も足元から暖かく快適に過ごすことができます。
お金・契約の情報
※「-」と表示されているものは、実際は料金が発生するものもございます。詳細はお問い合わせください。
| 家賃 | 4.8万円 | 管理費・共益費 | 3,000円 |
|---|---|---|---|
| 敷金 | なし | 礼金 | なし |
| 入居決定でお祝い金最大100,000円 | |||
| 保証金 | - | 償却・敷引 | - |
| 住宅保険料 | - | 更新料 | - |
| 保証会社利用 | 必須 | 保証会社名 | - |
| 保証会社費用 | - | 保証会社備考 | 保証会社利用必 初回契約時:100%、月額:2%、最低保証料:15,000円 |
| 契約形態 | - | 契約期間 | - |
| 入居・引渡期間 | 相談 | 現況 | - |
| 契約備考 | 金沢シーサイドライン並木中央駅徒歩24分/巡回管理/賃貸のことなら日商ベックス横浜店にご相談ください♪(直通電話:)■非対面にて契約締結可能■非対面にてご対応可能★セルフ内見・オンライン契約承ります♪ 合計7.87万円(内訳:鍵交換代 19800円税込 ハウスクリーニング 58850円税込) ベックスサポートクラブ 1980円/月額 更新料 1ヶ月/更新事務手数料 3300円 ワンルーム 単身者限定/ルームシェア不可 普通借家2年 損保【要】 バストイレ別、バルコニー、エアコン、フローリング、TVインターホン、浴室乾燥機、室内洗濯置、陽当り良好、シューズボックス、システムキッチン、角住戸、温水洗浄便座、脱衣所、駐輪場、CATV、閑静な住宅地、IHクッキングヒーター、ロフト、全居室洋室、保証人不要、単身者相談、CATVインターネット、バイク置場、2沿線利用可、ディンプルキー、ネット使用料不要、床暖房、緑豊かな住宅地、眺望良好、24時間換気システム、3駅以上利用可、駅徒歩10分以内、全居室6畳以上、都市ガス、高速ネット対応、敷金・礼金不要、IT重説対応物件、初期費用カード決済可、通風良好 | ||
部屋の情報
| 間取り | ワンルーム | 専有面積 | 16.67m2 |
|---|---|---|---|
| 所在階 / 向き | 1階 / 北東 | バルコニー面積 | - |
| 水道 / ガス | - | ||
| 設備 | バス・トイレ別、テレビドアホン、浴室乾燥機、インターネット対応、システムキッチン、エアコン、温水洗浄便座、角部屋、バルコニー、フローリング、ロフトあり、床暖房、コンロ:IH、CATV、インターネット使用料無料、洗濯機:室内 | ||
| 当社物件ID | 28593512 | ||
建物の情報
| 建物名 | 長浜アパート | ||
|---|---|---|---|
| 所在地 | 神奈川県横浜市金沢区長浜 | ||
| 交通 | 京急本線 能見台駅 徒歩8分 京急本線 京急富岡駅 徒歩16分 シーサイドライン 幸浦駅 徒歩23分 | ||
| 階数 | 2階建 | 総戸数 | 6戸 |
| 築年月 | 2014年02月 / 築13年 | エレベーター | - |
| 駐車場 | なし | バイク置き場 | あり |
| 駐輪場 | あり | 管理人/管理会社 | - |
| 周辺環境 | その他 イトーヨーカドー能見台店(スーパー)まで1000m その他 ローソン循環器呼吸器病センター店(コンビニ)まで754m その他 セブンイレブン横浜能見台駅前店(コンビニ)まで733m その他 ハックドラッグ能見台駅前店(ドラッグストア)まで721m その他 能見台駅前郵便局(郵便局)まで861m その他 横浜銀行能見台駅前支店(銀行)まで753m | ||
| 建物種別 | アパート | 建物構造 | 木造 |
この部屋の取扱い不動産会社
| 会社名 | リロの不動産(株)日商ベックス横浜店(SUUMO経由) | ||
|---|---|---|---|
| 所在地 | 神奈川県横浜市西区北幸1-11-11 NMF横浜西口ビル2階 | 交通 | - |
| 営業時間 | 9:00~18:00 | 定休日 | 水曜日 |
| 免許番号 | 国土交通大臣3273 | 取引態様 | 仲介 |
| 不動産会社管理番号 | 100486862459 | 当社管理番号 | 89 |
| 所属団体 | (公社)神奈川県宅地建物取引業協会会員 | ||
| 公正取引協議会 | (公社)首都圏不動産公正取引協議会加盟 | ||
| 取扱い物件情報 | 物件詳細へ | ||
※各種情報と現状に差異がある場合は、現状優先となります。問い合わせをすることで、より詳しい条件、情報を確認する事ができます。
提供:リロの不動産(株)日商ベックス横浜店(SUUMO経由)
この物件が気になったら掲載期限まであと11日
長浜アパートに条件(家賃・エリア)が近い物件一覧
| 写真 | 家賃 管理費等 | 敷金 礼金 | 間取り 専有面積 | 築年数 | 最寄り駅 所在地 | キープ | 詳細 |
|---|---|---|---|---|---|---|---|
アパート レオパレス金沢文庫第3(1K/2階) | |||||||
![]() | 3.4万円 なし | 3.4万円 なし | 1K 14.49m2 | 築39年 | シーサイドライン 海の公園南口駅 徒歩6分 京急本線 金沢文庫駅 徒歩12分 京急逗子線 金沢八景駅 徒歩20分 神奈川県横浜市金沢区寺前 | 詳細を見る | |
マンション ハイツアキモト(2LDK/1階) | |||||||
![]() | 6万円 なし | 6万円 6万円 | 2LDK 46.33m2 | 築52年 | 小田急江ノ島線 六会日大前駅 徒歩8分 小田急江ノ島線 湘南台駅 徒歩28分 ブルーライン 湘南台駅 徒歩28分 神奈川県藤沢市亀井野 | 詳細を見る | |
マンション 鄕ビル(2DK/2階) | |||||||
![]() | 7.5万円 3,000円 | 7.5万円 7.5万円 | 2DK 36.45m2 | 築46年 | 東急田園都市線 宮崎台駅 徒歩9分 東急田園都市線 梶が谷駅 徒歩13分 神奈川県川崎市宮前区宮崎 | 詳細を見る | |
マンション TOP・大和(ワンルーム/2階) | |||||||
![]() | 4万円 5,000円 | なし なし | ワンルーム 15.21m2 | 築40年 | 小田急電鉄江ノ島線 大和駅(神奈川) 徒歩5分 神奈川県大和市大和南2丁目 | 詳細を見る | |
アパート 衣笠レジデンス(1K/2階) | |||||||
![]() | 5万円 2,000円 | 5万円 なし | 1K 29.8m2 | 築18年 | 横須賀線 衣笠駅 徒歩9分 神奈川県横須賀市小矢部1丁目 | 詳細を見る | |
マンション コスモヒルズ中央林間(ワンルーム/3階) | |||||||
![]() | 5.7万円 5,000円 | 5.7万円 5.7万円 | ワンルーム 25.08m2 | 築33年 | 東急田園都市線 中央林間駅 徒歩12分 小田急江ノ島線 南林間駅 徒歩13分 東急田園都市線 つきみ野駅 徒歩24分 神奈川県大和市中央林間 | 詳細を見る | |
マンション キャッスルヴィレッジ(1K/2階) | |||||||
![]() | 6.7万円 なし | 6.7万円 6.7万円 | 1K 27.62m2 | 築23年 | JR南武線 中野島駅 徒歩5分 JR南武線 稲田堤駅 徒歩17分 京王相模原線 京王稲田堤駅 徒歩21分 神奈川県川崎市多摩区布田 | 詳細を見る | |
マンション トーヨーマリンハイム(2DK/8階) | |||||||
![]() | 6万円 5,000円 | 6万円 6万円 | 2DK 38.88m2 | 築38年 | 横須賀線 田浦駅 徒歩5分 京浜急行電鉄本線 安針塚駅 徒歩20分 神奈川県横須賀市田浦港町 | 詳細を見る | |









