賃貸マンション
ロータリーパレス一之江の賃貸物件情報(2LDK/9階)
| 家賃 | 管理費等 | 敷金 | 礼金 | 間取り | 専有面積 |
|---|---|---|---|---|---|
| 16.5万円 | 1万円 | 16.5万円 | 16.5万円 | 2LDK | 60.44m2 |
入居決定でお祝い金最大100,000円
Point
「一之江駅」徒歩8分の分譲マンション。最上階角部屋です。
提供:(株)中央都市管理(SUUMO経由)

詳細情報 ロータリーパレス一之江
物件紹介
ロータリーパレス一之江は都営新宿線一之江駅から徒歩8分にあり、駅近で通勤通学に便利なマンションです。
このお部屋は2階以上に位置しているので、通行人や周囲の住人からの視線が気になりにくく、防犯面でも安心。建物のエントランスはオートロックがついており、インターホンにはTVモニタもついているため、相手の顔を確認してから来客対応することができます。
人気の角部屋で周囲の居住者の生活音も気になりにくく、また、フローリングのお部屋なのでお掃除もラクラク。キッチンはシステムキッチン仕様になっていますので、お料理好きの方にもぴったり。バス・トイレは別なので、のんびりお風呂タイムも楽しめるでしょう。また、雨の日でも浴室乾燥機を使えば、お洗濯も問題ありません。
建物にはエレベーターがついているので、重い荷物があっても安心。共用部には宅配ボックスが設定されているので、不在の時にも荷物を受け取ることができます。
このお部屋は2階以上に位置しているので、通行人や周囲の住人からの視線が気になりにくく、防犯面でも安心。建物のエントランスはオートロックがついており、インターホンにはTVモニタもついているため、相手の顔を確認してから来客対応することができます。
人気の角部屋で周囲の居住者の生活音も気になりにくく、また、フローリングのお部屋なのでお掃除もラクラク。キッチンはシステムキッチン仕様になっていますので、お料理好きの方にもぴったり。バス・トイレは別なので、のんびりお風呂タイムも楽しめるでしょう。また、雨の日でも浴室乾燥機を使えば、お洗濯も問題ありません。
建物にはエレベーターがついているので、重い荷物があっても安心。共用部には宅配ボックスが設定されているので、不在の時にも荷物を受け取ることができます。
お金・契約の情報
※「-」と表示されているものは、実際は料金が発生するものもございます。詳細はお問い合わせください。
| 家賃 | 16.5万円 | 管理費・共益費 | 1万円 |
|---|---|---|---|
| 敷金 | 16.5万円 | 礼金 | 16.5万円 |
| 入居決定でお祝い金最大100,000円 | |||
| 保証金 | - | 償却・敷引 | - |
| 住宅保険料 | - | 更新料 | - |
| 保証会社利用 | 必須 | 保証会社名 | - |
| 保証会社費用 | - | 保証会社備考 | 保証会社利用必 (株)オリコフォレントインシュア 初回賃料等総額の50% 更新料年1万円 |
| 契約形態 | - | 契約期間 | - |
| 入居・引渡期間 | - | 現況 | - |
| 契約備考 | 合計2.2万円(内訳:カギ交換代2.2万円) 住宅総合保険料850円/24時間安心サポート880円 2LDK 損保【0.09万円】 バストイレ別、バルコニー、エアコン、フローリング、TVインターホン、浴室乾燥機、オートロック、シューズボックス、システムキッチン、追焚機能浴室、角住戸、温水洗浄便座、エレベーター、駐輪場、宅配ボックス、外壁タイル張り、最上階、分譲賃貸、駅徒歩10分以内 入居日:'26年3月中旬 | ||
部屋の情報
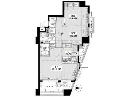
| 間取り | 2LDK | 専有面積 | 60.44m2 |
|---|---|---|---|
| 所在階 / 向き | 9階 / 東 | バルコニー面積 | 11m2 |
| 水道 / ガス | - | ||
| 設備 | バス・トイレ別、2階以上、オートロック、テレビドアホン、宅配ボックス、浴室乾燥機、追い焚き、システムキッチン、エアコン、エレベーター、温水洗浄便座、角部屋、バルコニー、フローリング | ||
| 当社物件ID | 15188593 | ||
建物の情報
| 建物名 | ロータリーパレス一之江 | ||
|---|---|---|---|
| 所在地 | 東京都江戸川区一之江 | ||
| 交通 | 都営新宿線 一之江駅 徒歩8分 | ||
| 階数 | 9階建 | 総戸数 | 25戸 |
| 築年月 | 2004年01月 / 築23年 | エレベーター | あり |
| 駐車場 | なし | バイク置き場 | - |
| 駐輪場 | あり | 管理人/管理会社 | - |
| 建物種別 | マンション | 建物構造 | SRC(鉄骨鉄筋コンクリート) |
この部屋の取扱い不動産会社
| 会社名 | (株)中央都市管理(SUUMO経由) | ||
|---|---|---|---|
| 所在地 | 東京都新宿区西新宿7-22-35 西新宿三晃ビル 3階 | 交通 | - |
| 営業時間 | AM9:30~PM7:00 | 定休日 | 水曜日 |
| 免許番号 | 東京都知事71467 | 取引態様 | 仲介 |
| 不動産会社管理番号 | 100486192204 | 当社管理番号 | 89 |
| 所属団体 | (公社)全日本不動産協会東京都本部会員 | ||
| 公正取引協議会 | (公社)首都圏不動産公正取引協議会加盟 | ||
| 取扱い物件情報 | 物件詳細へ | ||
※各種情報と現状に差異がある場合は、現状優先となります。問い合わせをすることで、より詳しい条件、情報を確認する事ができます。
提供:(株)中央都市管理(SUUMO経由)
この物件が気になったら掲載期限まであと11日
ロータリーパレス一之江に条件(家賃・エリア)が近い物件一覧
| 写真 | 家賃 管理費等 | 敷金 礼金 | 間取り 専有面積 | 築年数 | 最寄り駅 所在地 | キープ | 詳細 |
|---|---|---|---|---|---|---|---|
マンション アーデン両国(1K/7階) | |||||||
![]() | 12.2万円 6,000円 | なし なし | 1K 23.36m2 | 築21年 | 東京都浅草線 蔵前駅 徒歩7分 東京都大江戸線 両国駅 徒歩8分 総武・中央緩行線 両国駅 徒歩9分 東京都墨田区横網2丁目 | 詳細を見る | |
マンション ブランシエスタ本所吾妻橋(1DK/3階) | |||||||
![]() | 12万円 1.2万円 | なし なし | 1DK 25.43m2 | 築5年 | 東京都浅草線 本所吾妻橋駅 徒歩3分 東京地下鉄銀座線 浅草駅(東武・都営・メトロ) 徒歩6分 東京地下鉄半蔵門線 押上駅 徒歩13分 東京都墨田区吾妻橋1丁目 | 詳細を見る | |
マンション ACP RESIDENCE 亀戸(1K/3階) | |||||||
![]() | 11.8万円 1.5万円 | なし なし | 1K 25.23m2 | 築2年 | 東武亀戸線 亀戸水神駅 徒歩5分 JR総武線 亀戸駅 徒歩11分 東武亀戸線 東あずま駅 徒歩16分 東京都江東区亀戸 | 詳細を見る | |
マンション CASA G(1LDK/2階) | |||||||
![]() | 15.4万円 4,600円 | なし 30.8万円 | 1LDK 39.29m2 | 築12年 | 総武・中央緩行線 錦糸町駅 徒歩10分 東京地下鉄半蔵門線 押上駅 徒歩12分 東京都墨田区横川2丁目 | 詳細を見る | |
マンション LUNIQ錦糸町(1LDK/3階) | |||||||
![]() | 18.9万円 2万円 | なし なし | 1LDK 40.81m2 | 築5年 | 東京都新宿線 菊川駅(東京) 徒歩8分 総武本線 錦糸町駅 徒歩12分 東京地下鉄半蔵門線 住吉駅(東京) 徒歩12分 東京都墨田区立川4丁目 | 詳細を見る | |
マンション パークアクシス本所・親水公園(1LDK/2階) | |||||||
![]() | 19.1万円 1.5万円 | 19.1万円 なし | 1LDK 41.08m2 | 築5年 | 東京都浅草線 本所吾妻橋駅 徒歩9分 東京地下鉄半蔵門線 押上駅 徒歩10分 総武・中央緩行線 錦糸町駅 徒歩19分 東京都墨田区本所4丁目 | 詳細を見る | |
マンション メイクスデザイン住吉IV(1K/6階) | |||||||
![]() | 10.6万円 1.1万円 | なし 10.6万円 | 1K 22.53m2 | 築13年 | 東京地下鉄半蔵門線 住吉駅(東京) 徒歩10分 東京都新宿線 住吉駅(東京) 徒歩12分 東京都新宿線 西大島駅 徒歩13分 東京都江東区扇橋3丁目 | 詳細を見る | |
マンション プレサンス木場公園(1K/3階) | |||||||
![]() | 13.4万円 1.1万円 | なし 13.4万円 | 1K 25.76m2 | 築3年 | 東京メトロ東西線 木場駅 徒歩7分 東京メトロ東西線 東陽町駅 徒歩8分 都営大江戸線 門前仲町駅 徒歩18分 東京都江東区東陽 | 詳細を見る | |









