賃貸アパート
COMFY COURT 五条西洞院の賃貸物件情報(1LDK/2階)
| 家賃 | 管理費等 | 敷金 | 礼金 | 間取り | 専有面積 |
|---|---|---|---|---|---|
| 14.8万円 | 8,000円 | 5万円 | 14.8万円 | 1LDK | 52.38m2 |
入居決定でお祝い金最大100,000円
- 保証金
- -
- 償却・敷引
- -
- 築年数
- 築1年
- 所在階
- 2階
- 向き
- 東
Point
地下鉄烏丸線五条駅徒歩6分・JR京都駅へも徒歩圏。スーパー「フレスコ五条西洞院店」や郵便局、コンビニ、病院が近く、日々の暮らしも快適な生活利便エリアです。
提供:(株)ハウスネットワーク烏丸今出川店(SUUMO経由)

詳細情報 COMFY COURT 五条西洞院
物件紹介
COMFY COURT 五条西洞院は地下鉄烏丸線五条駅から徒歩7分にあり、駅近で通勤通学に便利なアパートです。
このお部屋は2階以上に位置しているので、通行人や周囲の住人からの視線が気になりにくく、防犯面でも安心。建物のエントランスはオートロックがついており、インターホンにはTVモニタもついているため、相手の顔を確認してから来客対応することができます。
人気の角部屋で周囲の居住者の生活音も気になりにくく、また、フローリングのお部屋なのでお掃除もラクラク。キッチンはシステムキッチン仕様になっていますので、お料理好きの方にもぴったり。バス・トイレは別なので、のんびりお風呂タイムも楽しめるでしょう。また、雨の日でも浴室乾燥機を使えば、お洗濯も問題ありません。
通信設備面では、インターネットが無料で使えるので、月々の出費を抑えられるのも魅力です。また、BSアンテナもありますので、おうち時間も充実するでしょう(別途工事、BSの契約料等が必要な場合あり)。
共用部には宅配ボックスが設定されているので、不在の時にも荷物を受け取ることができます。
このお部屋は2階以上に位置しているので、通行人や周囲の住人からの視線が気になりにくく、防犯面でも安心。建物のエントランスはオートロックがついており、インターホンにはTVモニタもついているため、相手の顔を確認してから来客対応することができます。
人気の角部屋で周囲の居住者の生活音も気になりにくく、また、フローリングのお部屋なのでお掃除もラクラク。キッチンはシステムキッチン仕様になっていますので、お料理好きの方にもぴったり。バス・トイレは別なので、のんびりお風呂タイムも楽しめるでしょう。また、雨の日でも浴室乾燥機を使えば、お洗濯も問題ありません。
通信設備面では、インターネットが無料で使えるので、月々の出費を抑えられるのも魅力です。また、BSアンテナもありますので、おうち時間も充実するでしょう(別途工事、BSの契約料等が必要な場合あり)。
共用部には宅配ボックスが設定されているので、不在の時にも荷物を受け取ることができます。
お金・契約の情報
※「-」と表示されているものは、実際は料金が発生するものもございます。詳細はお問い合わせください。
| 家賃 | 14.8万円 | 管理費・共益費 | 8,000円 |
|---|---|---|---|
| 敷金 | 5万円 | 礼金 | 14.8万円 |
| 入居決定でお祝い金最大100,000円 | |||
| 保証金 | - | 償却・敷引 | - |
| 住宅保険料 | - | 更新料 | - |
| 契約形態 | - | 契約期間 | - |
| 入居・引渡期間 | 即時 | 現況 | - |
| 契約備考 | 近鉄京都線京都駅駅徒歩18分/水道代検針実費2年契約更新料1ヶ月 合計4万円(内訳:退去時清掃費) 口座振替手数料500円 1LDK 損保【要】 バストイレ別、バルコニー、エアコン、ガスコンロ対応、フローリング、シャワー付洗面台、TVインターホン、浴室乾燥機、オートロック、室内洗濯置、シューズボックス、システムキッチン、追焚機能浴室、角住戸、温水洗浄便座、脱衣所、洗面所独立、洗面化粧台、2口コンロ、駐輪場、宅配ボックス、押入、2面採光、3口以上コンロ、対面式キッチン、グリル付、全居室洋室、全居室フローリング、仲手0.55ヶ月、エアコン2台、駅まで平坦、ネット使用料不要、エアコン全室、1フロア2住戸、築2年以内、クロゼット2ヶ所、築3年以内、駅徒歩10分以内、バス停徒歩3分以内、24時間ゴミ出し可、敷地内ごみ置き場、築5年以内、LDK12畳以上、全居室6畳以上、洗面所にドア、玄関収納、BS、礼金1ヶ月、通風良好 | ||
部屋の情報
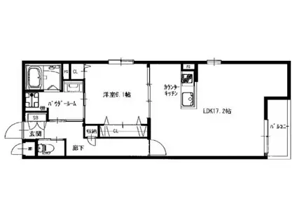
| 間取り | 1LDK | 専有面積 | 52.38m2 |
|---|---|---|---|
| 所在階 / 向き | 2階 / 東 | バルコニー面積 | - |
| 水道 / ガス | - | ||
| 設備 | バス・トイレ別、2階以上、オートロック、テレビドアホン、宅配ボックス、浴室乾燥機、追い焚き、インターネット対応、システムキッチン、エアコン、温水洗浄便座、角部屋、バルコニー、フローリング、洗髪洗面化粧台、2口コンロ、コンロ:ガス、BSアンテナ、インターネット使用料無料、洗濯機:室内 | ||
| 当社物件ID | 160259073 | ||
建物の情報
| 建物名 | COMFY COURT 五条西洞院 | ||
|---|---|---|---|
| 所在地 | 京都府京都市下京区小柳町 | ||
| 交通 | 地下鉄烏丸線 五条駅(京都市営) 徒歩7分 阪急京都線 烏丸駅 徒歩18分 JR東海道本線 京都駅 徒歩18分 | ||
| 階数 | 3階建 | 総戸数 | 6戸 |
| 築年月 | 2025年12月 / 築1年 | エレベーター | - |
| 駐車場 | なし | バイク置き場 | - |
| 駐輪場 | あり | 管理人/管理会社 | - |
| 周辺環境 | その他 フレスコ五条西洞院店(スーパー)まで181m その他 ローソン五条若宮店(コンビニ)まで251m その他 ココカラファイン新町店(ドラッグストア)まで260m その他 木津屋橋武田病院(病院)まで839m その他 京都六条郵便局(郵便局)まで220m その他 京都府下京警察署(警察署・交番)まで1033m | ||
| 建物種別 | アパート | 建物構造 | 鉄骨造 |
この部屋の取扱い不動産会社
| 会社名 | (株)ハウスネットワーク烏丸今出川店(SUUMO経由) | ||
|---|---|---|---|
| 所在地 | 京都府京都市上京区岡松町 270 わびすけビル1階 | 交通 | - |
| 営業時間 | 10:00~18:30 | 定休日 | 水曜日 |
| 免許番号 | 京都府知事10378 | 取引態様 | 仲介 |
| 不動産会社管理番号 | 100484178899 | 当社管理番号 | 89 |
| 所属団体 | (公社)京都府宅地建物取引業協会会員 | ||
| 公正取引協議会 | (公社)近畿地区不動産公正取引協議会加盟 | ||
| 取扱い物件情報 | 物件詳細へ | ||
※各種情報と現状に差異がある場合は、現状優先となります。問い合わせをすることで、より詳しい条件、情報を確認する事ができます。
提供:(株)ハウスネットワーク烏丸今出川店(SUUMO経由)
この物件が気になったら掲載期限まであと10日
COMFY COURT 五条西洞院に条件(家賃・エリア)が近い物件一覧
| 写真 | 家賃 管理費等 | 敷金 礼金 | 間取り 専有面積 | 築年数 | 最寄り駅 所在地 | キープ | 詳細 |
|---|---|---|---|---|---|---|---|
アパート 奈良線 木幡駅(JR) 徒歩1分 築1年(2LDK/2階) | |||||||
![]() | 10.3万円 8,000円 | なし 20.6万円 | 2LDK 48.45m2 | 築1年 | 奈良線 木幡駅(JR) 徒歩1分 京阪電気鉄道宇治線 木幡駅(京阪) 徒歩4分 京都府宇治市木幡大瀬戸 | 詳細を見る | |
アパート コティ コルミオ(2LDK/2階) | |||||||
![]() | 10.3万円 8,000円 | なし 20.6万円 | 2LDK 48.45m2 | 築1年 | 奈良線 木幡駅(JR) 徒歩1分 京阪電気鉄道宇治線 木幡駅(京阪) 徒歩4分 京都府宇治市木幡大瀬戸 | 詳細を見る | |
マンション 東海道本線 西大路駅 徒歩5分 築27年(3LDK/3階) | |||||||
![]() | 12万円 なし | 24万円 12万円 | 3LDK 73.6m2 | 築27年 | 東海道本線 西大路駅 徒歩5分 山陰本線 丹波口駅 徒歩22分 京都府京都市下京区梅小路高畑町 | 詳細を見る | |
マンション 山陰本線 丹波口駅 徒歩5分 新築(1LDK/10階) | |||||||
![]() | 10.2万円 8,000円 | なし 10.2万円 | 1LDK 31.72m2 | 新築 | 山陰本線 丹波口駅 徒歩5分 東海道本線 京都駅 徒歩27分 京都府京都市下京区朱雀分木町 | 詳細を見る | |
アパート メゾンN 京都三十三間堂(1LDK/1階) | |||||||
![]() | 10.4万円 8,000円 | なし 20万円 | 1LDK 41.42m2 | 築7年 | 京阪本線 七条駅 徒歩6分 JR奈良線 東福寺駅 徒歩10分 JR東海道本線 京都駅 徒歩15分 京都府京都市東山区辰巳町 | 詳細を見る | |





