賃貸マンション
ハイム下鶴間の賃貸物件情報(3DK/2階)
| 家賃 | 管理費等 | 敷金 | 礼金 | 間取り | 専有面積 |
|---|---|---|---|---|---|
| 11.1万円 | 6,000円 | 11.1万円 | なし | 3DK | 73.77m2 |
入居決定でお祝い金最大100,000円
- 保証金
- -
- 償却・敷引
- -
- 築年数
- 築37年
- 所在階
- 2階
- 向き
- 南
Point
お電話でのお問い合わせは8時30分から20時まで可能です!お気軽にフリーダイヤルまでご連絡ください♪◇webでのお申し込みも対応可能です◇
提供:いえらび町田店(株)ドリームアーク(SUUMO経由)

詳細情報 ハイム下鶴間
物件紹介
ハイム下鶴間は小田急江ノ島線鶴間駅から徒歩13分にあるマンションです。
このお部屋は2階以上に位置しているので、通行人や周囲の住人からの視線が気になりにくく、防犯面でも安心。インターホンにはTVモニタもついているため、相手の顔を確認してから来客対応することができます。
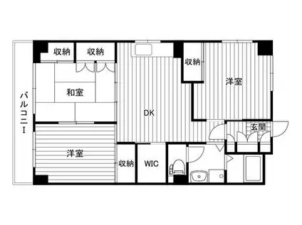
人気の南向き・フローリングのお部屋。角部屋でもあるため、周囲の居住者の生活音も気になりにくい場所です。室内にはウォークインクローゼットがありますので、たくさんの荷物も効率的に収納ができます。バス・トイレ別の仕様で、のんびりお風呂タイムも楽しめます。
通信設備面では、インターネット接続が可能です(別途工事、契約料が必要な場合あり)。
建物にはエレベーターがついているので、重い荷物があっても安心。
このお部屋は2階以上に位置しているので、通行人や周囲の住人からの視線が気になりにくく、防犯面でも安心。インターホンにはTVモニタもついているため、相手の顔を確認してから来客対応することができます。
人気の南向き・フローリングのお部屋。角部屋でもあるため、周囲の居住者の生活音も気になりにくい場所です。室内にはウォークインクローゼットがありますので、たくさんの荷物も効率的に収納ができます。バス・トイレ別の仕様で、のんびりお風呂タイムも楽しめます。
通信設備面では、インターネット接続が可能です(別途工事、契約料が必要な場合あり)。
建物にはエレベーターがついているので、重い荷物があっても安心。
お金・契約の情報
※「-」と表示されているものは、実際は料金が発生するものもございます。詳細はお問い合わせください。
| 家賃 | 11.1万円 | 管理費・共益費 | 6,000円 |
|---|---|---|---|
| 敷金 | 11.1万円 | 礼金 | なし |
| 入居決定でお祝い金最大100,000円 | |||
| 保証金 | - | 償却・敷引 | - |
| 住宅保険料 | - | 更新料 | - |
| 保証会社利用 | 必須 | 保証会社名 | - |
| 保証会社費用 | - | 保証会社備考 | 保証会社利用必 初回(月額総賃料の40%)、年間(10000円)、月額(330円) |
| 契約形態 | - | 契約期間 | - |
| 入居・引渡期間 | - | 現況 | - |
| 契約備考 | 鍵交換代:41800円(上下片方のみ交換相談可:25300円) ルームクリーニング費(退去時):81400円 違約金:1年未満の解約で月額賃料の1ヶ月分 ◆お持ちのクレジットカードで初期費用の決済が可能です◆初期費用のお見積り等、お気軽にお問い合わせくださいませ◆◆ 更新料 新賃料1.00ヶ月分 3DK 二人入居可 普通借家2年 損保【2.3万円2年】 バストイレ別、バルコニー、エアコン、TVインターホン、室内洗濯置、シューズボックス、南向き、角住戸、脱衣所、エレベーター、洗面所独立、洗面化粧台、駐輪場、礼金不要、2面採光、全居室収納、ウォークインクロゼット、二人入居相談、2沿線利用可、2駅利用可、3駅以上利用可、敷地内ごみ置き場、和室、都市ガス、玄関収納、初期費用カード決済可 入居日:'26年1月中旬 | ||
部屋の情報
| 間取り | 3DK | 専有面積 | 73.77m2 |
|---|---|---|---|
| 所在階 / 向き | 2階 / 南 | バルコニー面積 | - |
| 水道 / ガス | - | ||
| 設備 | バス・トイレ別、2階以上、テレビドアホン、ウォークインクローゼット、エアコン、エレベーター、南向き、角部屋、バルコニー、洗髪洗面化粧台、洗濯機:室内 | ||
| 当社物件ID | 160012371 | ||
建物の情報
| 建物名 | ハイム下鶴間 | ||
|---|---|---|---|
| 所在地 | 神奈川県大和市下鶴間 | ||
| 交通 | 小田急江ノ島線 鶴間駅 徒歩13分 小田急江ノ島線 南林間駅 徒歩15分 東急田園都市線 つきみ野駅 徒歩28分 | ||
| 階数 | 5階建 | 総戸数 | - |
| 築年月 | 1989年12月 / 築37年 | エレベーター | あり |
| 駐車場 | 空有 11000円 | バイク置き場 | - |
| 駐輪場 | あり | 管理人/管理会社 | - |
| 周辺環境 | その他 オークシティ(その他)まで592m その他 パレッテ大和鶴間店(スーパー)まで568m その他 セブンイレブン(コンビニ)まで865m その他 クリエイトS・D(ドラッグストア)まで984m その他 マルエツ(スーパー)まで1182m | ||
| 建物種別 | マンション | 建物構造 | RC(鉄筋コンクリート) |
この部屋の取扱い不動産会社
| 会社名 | (株)ネクストライフ溝の口店(SUUMO経由) | ||
|---|---|---|---|
| 所在地 | 神奈川県川崎市高津区溝口1-13-18 セキグチビル3階 | 交通 | - |
| 営業時間 | 10:00~18:30(電話8:30~21:00) | 定休日 | 水曜日(1月~3月は営業) |
| 免許番号 | 国土交通大臣8175 | 取引態様 | 仲介 |
| 不動産会社管理番号 | 100481496889 | 当社管理番号 | 89 |
| 所属団体 | (公社)神奈川県宅地建物取引業協会会員 | ||
| 公正取引協議会 | (公社)首都圏不動産公正取引協議会加盟 | ||
| 取扱い物件情報 | 物件詳細へ | ||
※各種情報と現状に差異がある場合は、現状優先となります。問い合わせをすることで、より詳しい条件、情報を確認する事ができます。
提供:(株)ネクストライフ溝の口店(SUUMO経由)
この物件が気になったら掲載期限まであと10日
ハイム下鶴間に条件(家賃・エリア)が近い物件一覧
| 写真 | 家賃 管理費等 | 敷金 礼金 | 間取り 専有面積 | 築年数 | 最寄り駅 所在地 | キープ | 詳細 |
|---|---|---|---|---|---|---|---|
マンション AINA LEA VILLA(2LDK/6階) | |||||||
![]() | 12万円 9,000円 | 12万円 なし | 2LDK 50.18m2 | 築33年 | 京急本線 日ノ出町駅 徒歩3分 JR京浜東北線 桜木町駅 徒歩13分 みなとみらい線 馬車道駅 徒歩18分 神奈川県横浜市中区若葉町 | 詳細を見る | |
マンション N-FLATS 横浜反町(1K/6階) | |||||||
![]() | 8.7万円 1万円 | なし 8.7万円 | 1K 21.83m2 | 築6年 | 東急東横線 反町駅 徒歩3分 JR京浜東北線 東神奈川駅 徒歩14分 京急本線 京急東神奈川駅 徒歩16分 神奈川県横浜市神奈川区松本町 | 詳細を見る | |
アパート ルリアンラポーズ(1LDK/3階) | |||||||
![]() | 10.5万円 3,300円 | なし 10.5万円 | 1LDK 42.05m2 | 新築 | 相模鉄道本線 かしわ台駅 徒歩6分 相模鉄道本線 さがみ野駅 徒歩11分 神奈川県海老名市東柏ケ谷1丁目 | 詳細を見る | |
マンション メインステージ横濱弥生町(1K/6階) | |||||||
![]() | 7.95万円 1.5万円 | なし 7.95万円 | 1K 20.55m2 | 築7年 | 横浜市ブルーライン 伊勢佐木長者町駅 徒歩5分 神奈川県横浜市中区弥生町2丁目 | 詳細を見る | |
マンション AF COTEAU湘南/コトー (ワンルーム/2階) | |||||||
![]() | 7.1万円 4,000円 | 7.1万円 7.1万円 | ワンルーム 34.34m2 | 築8年 | 小田急江ノ島線 六会日大前駅 徒歩5分 小田急江ノ島線 湘南台駅 徒歩24分 小田急江ノ島線 善行駅 徒歩32分 神奈川県藤沢市亀井野 | 詳細を見る | |
マンション アーバンヒルズ能見台(2DK/2階) | |||||||
![]() | 9万円 なし | 18万円 9万円 | 2DK 42.93m2 | 築32年 | 京浜急行電鉄本線 能見台駅 徒歩4分 京浜急行電鉄本線 京急富岡駅 徒歩13分 神奈川県横浜市金沢区堀口 | 詳細を見る | |
マンション リブリ・ADONIS(1K/3階) | |||||||
![]() | 8.5万円 4,000円 | なし 8.5万円 | 1K 26.08m2 | 築14年 | 東急東横線 大倉山駅(神奈川) 徒歩12分 東急東横線 綱島駅 徒歩15分 神奈川県横浜市港北区樽町 | 詳細を見る | |







