賃貸マンション
ピトレスクエアの賃貸物件情報(3DK/5階)
| 家賃 | 管理費等 | 敷金 | 礼金 | 間取り | 専有面積 |
|---|---|---|---|---|---|
| 8.6万円 | 6,000円 | なし | 15万円 | 3DK | 50.4m2 |
入居決定でお祝い金最大100,000円
- 保証金
- -
- 償却・敷引
- -
- 築年数
- 築40年
- 所在階
- 5階
- 向き
- 東
- 交通
- JR東海道本線 立花駅 徒歩15分
阪神本線 尼崎センタープール前駅 徒歩19分
阪神本線 出屋敷駅 徒歩21分
- 所在地
- 兵庫県尼崎市浜田町
ピトレスクエア
[地図を表示]
Point
ネット無料★エレベーター★防犯カメラ★TVドアホン等設備充実★ご案内は【現地】【最寄り駅】お待ち合わせOK♪オンライン内見OK♪インターネット掲載物件まとめてご案内可能!初期費用はクレジット分割払い◎
提供:(株)プラン・ドゥ・シー岡本店(SUUMO経由)

詳細情報 ピトレスクエア
物件紹介
ピトレスクエアはJR東海道本線立花駅から徒歩13分にあるマンションです。
このお部屋は2階以上に位置しているので、通行人や周囲の住人からの視線が気になりにくく、防犯面でも安心。インターホンにはTVモニタもついているため、相手の顔を確認してから来客対応することができます。
おしゃれなデザイナーズ物件!人気の南向き・フローリングのお部屋。角部屋でもあるため、周囲の居住者の生活音も気になりにくい場所です。キッチンはシステムキッチン仕様になっていますので、お料理好きの方にもぴったり。また、バス・トイレは別で、のんびりお風呂タイムも楽しめるでしょう。
通信設備面では、インターネットが無料で使えるので、月々の出費を抑えられるのも魅力です。また、BSアンテナ・CSアンテナがありCATVにも対応しているので、おうち時間も充実するでしょう(別途工事、BS・CS・CATVの契約料等が必要な場合あり)。
建物にはエレベーターがついているので、重い荷物があっても安心。
コンビニまで徒歩3分の場所にあり、日用品や食料品のお買い物にも便利です。
このお部屋は2階以上に位置しているので、通行人や周囲の住人からの視線が気になりにくく、防犯面でも安心。インターホンにはTVモニタもついているため、相手の顔を確認してから来客対応することができます。
おしゃれなデザイナーズ物件!人気の南向き・フローリングのお部屋。角部屋でもあるため、周囲の居住者の生活音も気になりにくい場所です。キッチンはシステムキッチン仕様になっていますので、お料理好きの方にもぴったり。また、バス・トイレは別で、のんびりお風呂タイムも楽しめるでしょう。
通信設備面では、インターネットが無料で使えるので、月々の出費を抑えられるのも魅力です。また、BSアンテナ・CSアンテナがありCATVにも対応しているので、おうち時間も充実するでしょう(別途工事、BS・CS・CATVの契約料等が必要な場合あり)。
建物にはエレベーターがついているので、重い荷物があっても安心。
コンビニまで徒歩3分の場所にあり、日用品や食料品のお買い物にも便利です。
お金・契約の情報
※「-」と表示されているものは、実際は料金が発生するものもございます。詳細はお問い合わせください。
| 家賃 | 8.6万円 | 管理費・共益費 | 6,000円 |
|---|---|---|---|
| 敷金 | なし | 礼金 | 15万円 |
| 入居決定でお祝い金最大100,000円 | |||
| 保証金 | - | 償却・敷引 | - |
| 住宅保険料 | - | 更新料 | - |
| 保証会社利用 | 必須 | 保証会社名 | 日本賃貸保証 |
| 保証会社費用 | - | 保証会社備考 | 日本賃貸保証利用必 日本賃貸保証 |
| 契約形態 | - | 契約期間 | - |
| 入居・引渡期間 | 即時 | 現況 | - |
| 契約備考 | 巡回管理/ネット無料★エレベーター★防犯カメラ★TVドアホン等設備充実★ご案内は【現地】【最寄り駅】お待ち合わせOK♪オンライン内見OK♪インターネット掲載物件まとめてご案内可能!初期費用はクレジット分割払いOK♪【ピタットハウスJR尼崎駅南口店】 3DK 二人入居可 普通借家2年 損保【要】 バストイレ別、バルコニー、ガスコンロ対応、クロゼット、フローリング、TVインターホン、室内洗濯置、陽当り良好、システムキッチン、角住戸、脱衣所、エレベーター、洗面所独立、洗面化粧台、駐輪場、押入、CATV、光ファイバー、即入居可、閑静な住宅地、最上階、BS・CS、敷金不要、防犯カメラ、照明付、2沿線利用可、ネット専用回線、駅まで平坦、ネット使用料不要、内装リフォーム済、緑豊かな住宅地、眺望良好、ダブルロックキー、平坦地、一部フローリング、耐震構造、3駅以上利用可、バス2路線、上階無し、敷地内ごみ置き場、和室、全居室6畳以上、都市ガス、高速ネット対応、IT重説対応物件、LGBTフレンドリー、初期費用カード決済可、通風良好 | ||
部屋の情報
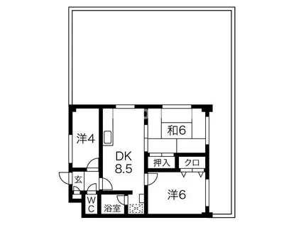
| 間取り | 3DK | 専有面積 | 50.4m2 |
|---|---|---|---|
| 所在階 / 向き | 5階 / 東 | バルコニー面積 | - |
| 水道 / ガス | - | ||
| 設備 | バス・トイレ別、2階以上、テレビドアホン、インターネット対応、システムキッチン、エレベーター、角部屋、バルコニー、フローリング、洗髪洗面化粧台、コンロ:ガス、CATV、CSアンテナ、BSアンテナ、インターネット使用料無料、洗濯機:室内 | ||
| 当社物件ID | 110499809 | ||
建物の情報
| 建物名 | ピトレスクエア | ||
|---|---|---|---|
| 所在地 | 兵庫県尼崎市浜田町 | ||
| 交通 | JR東海道本線 立花駅 徒歩15分 阪神本線 尼崎センタープール前駅 徒歩19分 阪神本線 出屋敷駅 徒歩21分 | ||
| 階数 | 5階建 | 総戸数 | - |
| 築年月 | 1987年03月 / 築40年 | エレベーター | あり |
| 駐車場 | 空有 14300円 | バイク置き場 | - |
| 駐輪場 | あり | 管理人/管理会社 | - |
| 周辺環境 | その他 セブンイレブン 尼崎浜田町2丁目店(コンビニ)まで191m その他 ニトリ 尼崎浜田店(ショッピングセンター)まで585m その他 セブンイレブン 尼崎七松町店(コンビニ)まで621m その他 ウエルシア尼崎大庄店(ドラッグストア)まで850m その他 セブンイレブン 尼崎西難波6丁目店(コンビニ)まで984m その他 スーパーマルハチ大庄店(スーパー)まで938m | ||
| 建物種別 | マンション | 建物構造 | RC(鉄筋コンクリート) |
この部屋の取扱い不動産会社
| 会社名 | (株)ライブデザイン江坂店(SUUMO経由) | ||
|---|---|---|---|
| 所在地 | 大阪府吹田市広芝町 10-25 第2池上ビル2D | 交通 | - |
| 営業時間 | 9:00~19:00 | 定休日 | なし |
| 免許番号 | 国土交通大臣10464 | 取引態様 | 仲介 |
| 不動産会社管理番号 | 100498458499 | 当社管理番号 | 89 |
| 所属団体 | (公社)全日本不動産協会大阪府本部会員 | ||
| 公正取引協議会 | (公社)近畿地区不動産公正取引協議会加盟 | ||
| 取扱い物件情報 | 物件詳細へ | ||
※各種情報と現状に差異がある場合は、現状優先となります。問い合わせをすることで、より詳しい条件、情報を確認する事ができます。
提供:(株)ライブデザイン江坂店(SUUMO経由)
この物件が気になったら掲載期限まであと11日
ピトレスクエアに条件(家賃・エリア)が近い物件一覧
| 写真 | 家賃 管理費等 | 敷金 礼金 | 間取り 専有面積 | 築年数 | 最寄り駅 所在地 | キープ | 詳細 |
|---|---|---|---|---|---|---|---|
アパート ジーメゾン立花レヴリア(1LDK/1階) | |||||||
![]() | 7万円 5,000円 | なし なし | 1LDK 29.96m2 | 新築 | JR東海道本線 立花駅 徒歩14分 阪急神戸線 武庫之荘駅 徒歩20分 JR東海道本線 甲子園口駅 徒歩27分 兵庫県尼崎市水堂町 | 詳細を見る | |
アパート フジパレス塚口本町番館(1K/1階) | |||||||
![]() | 6.5万円 4,200円 | なし 10万円 | 1K 29.46m2 | 築8年 | 阪急電鉄神戸線 塚口駅(阪急) 徒歩7分 阪急電鉄伊丹線 塚口駅(阪急) 徒歩7分 福知山線 塚口駅(JR) 徒歩13分 兵庫県尼崎市塚口本町2丁目 | 詳細を見る | |
アパート フジパレス西本町番館(1LDK/2階) | |||||||
![]() | 6.6万円 4,100円 | なし 10万円 | 1LDK 34.4m2 | 築10年 | 阪神電鉄本線 尼崎駅(阪神) 徒歩6分 阪神電鉄阪神なんば 大物駅 徒歩17分 兵庫県尼崎市西本町2丁目 | 詳細を見る | |
アパート フジパレス阪急武庫之荘番館(1K/3階) | |||||||
![]() | 6.3万円 4,600円 | なし 6万円 | 1K 26.5m2 | 築1年 | 阪急電鉄神戸線 武庫之荘駅 徒歩12分 東海道本線 甲子園口駅 徒歩25分 東海道本線 立花駅 徒歩32分 兵庫県尼崎市南武庫之荘7丁目 | 詳細を見る | |
アパート フジパレスJR塚口番館(1LDK/1階) | |||||||
![]() | 7.85万円 5,700円 | なし 15万円 | 1LDK 41.41m2 | 新築 | 福知山線 塚口駅(JR) 徒歩10分 兵庫県尼崎市上坂部2丁目 | 詳細を見る | |
マンション パークノヴァ夙川(3LDK/1階) | |||||||
![]() | 13.2万円 5,000円 | なし 13.7万円 | 3LDK 67.5m2 | 築38年 | 阪急神戸線 夙川駅 徒歩10分 JR東海道本線 芦屋駅(JR) 徒歩15分 JR東海道本線 さくら夙川駅 徒歩20分 兵庫県西宮市高塚町 | 詳細を見る | |
アパート フジパレス阪急武庫之荘駅西番館(1K/1階) | |||||||
![]() | 6.35万円 4,600円 | なし 7万円 | 1K 30.09m2 | 新築 | 阪急電鉄神戸線 武庫之荘駅 徒歩13分 兵庫県尼崎市南武庫之荘7丁目 | 詳細を見る | |
アパート GAZELLE NOAH尼崎尾浜(1DK/2階) | |||||||
![]() | 6.6万円 6,000円 | なし 6.6万円 | 1DK 25.4m2 | 築1年 | 東海道本線 尼崎駅(JR) 徒歩18分 東海道本線 立花駅 徒歩31分 兵庫県尼崎市尾浜町3丁目 | 詳細を見る | |





