賃貸マンション
PINE SEA TUDANUMAの賃貸物件情報(ワンルーム/4階)
| 家賃 | 管理費等 | 敷金 | 礼金 | 間取り | 専有面積 |
|---|---|---|---|---|---|
| 4.8万円 | 6,000円 | 4.8万円 | なし | ワンルーム | 17.43m2 |
入居決定でお祝い金最大100,000円
- 保証金
- -
- 償却・敷引
- -
- 築年数
- 築39年
- 所在階
- 4階
- 向き
- 南西
Point
お客様のご希望に合わせた方法(店頭、オンライン等)で物件をご提案いたします。初期費用のお見積りや入居希望日のご相談もお気軽にお問い合わせください。予約なしのご来店もご対応させていただきます。
提供:(株)エバンス東船橋本店(SUUMO経由)

詳細情報 PINE SEA TUDANUMA
物件紹介
PINE SEA TUDANUMAはJR総武線快速津田沼駅から徒歩5分にあり、駅近で通勤通学に便利なマンションです。
このお部屋は2階以上に位置しているので通行人や周囲の住人からの視線が気になりにくく、建物のエントランスはオートロックがついているので防犯性が高くなっています。
人気の南向きのお部屋。また、フローリングなのでお掃除もラクラク。
建物にはエレベーターがついているので、重い荷物があっても安心。共用部には宅配ボックスが設定されているので、不在の時にも荷物を受け取ることができます。
このお部屋は2階以上に位置しているので通行人や周囲の住人からの視線が気になりにくく、建物のエントランスはオートロックがついているので防犯性が高くなっています。
人気の南向きのお部屋。また、フローリングなのでお掃除もラクラク。
建物にはエレベーターがついているので、重い荷物があっても安心。共用部には宅配ボックスが設定されているので、不在の時にも荷物を受け取ることができます。
お金・契約の情報
※「-」と表示されているものは、実際は料金が発生するものもございます。詳細はお問い合わせください。
| 家賃 | 4.8万円 | 管理費・共益費 | 6,000円 |
|---|---|---|---|
| 敷金 | 4.8万円 | 礼金 | なし |
| 入居決定でお祝い金最大100,000円 | |||
| 保証金 | - | 償却・敷引 | - |
| 住宅保険料 | - | 更新料 | - |
| 保証会社利用 | 必須 | 保証会社名 | - |
| 保証会社費用 | - | 保証会社備考 | 保証会社利用必 初回保証料:月額総賃料50% 月次保証料:月額総賃料1.1% |
| 契約形態 | - | 契約期間 | - |
| 入居・引渡期間 | 即時 | 現況 | - |
| 契約備考 | 巡回管理/短期解約違約金:1年未満解約は賃料等の1ヶ月分 合計2.2万円(内訳:鍵交換代2.2万円) 更新料 新賃料1.00ヶ月分 ワンルーム 普通借家2年 損保【1.9万円2年】 バルコニー、エアコン、クロゼット、フローリング、オートロック、室内洗濯置、陽当り良好、シューズボックス、温水洗浄便座、エレベーター、駐輪場、宅配ボックス、即入居可、礼金不要、IHクッキングヒーター、照明付、保証人不要、敷金1ヶ月、2沿線利用可、眺望良好、始発駅、2駅利用可、3駅以上利用可、3沿線以上利用可、駅徒歩5分以内、駅徒歩10分以内、南西向き、都市ガス、シャワールーム、南面バルコニー、保証会社利用可、IT重説対応物件、LGBTフレンドリー、初期費用カード決済可、通風良好 | ||
部屋の情報
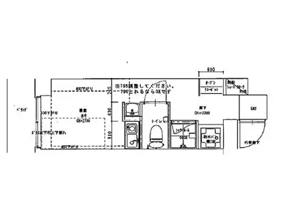
| 間取り | ワンルーム | 専有面積 | 17.43m2 |
|---|---|---|---|
| 所在階 / 向き | 4階 / 南西 | バルコニー面積 | - |
| 水道 / ガス | - | ||
| 設備 | 2階以上、オートロック、宅配ボックス、エアコン、エレベーター、温水洗浄便座、南向き、バルコニー、フローリング、コンロ:IH、洗濯機:室内 | ||
| 当社物件ID | 160524237 | ||
建物の情報
| 建物名 | PINE SEA TUDANUMA | ||
|---|---|---|---|
| 所在地 | 千葉県船橋市前原西 | ||
| 交通 | JR総武線快速 津田沼駅 徒歩5分 京成松戸線 前原駅 徒歩16分 京成本線 京成津田沼駅 徒歩19分 | ||
| 階数 | 9階建 | 総戸数 | - |
| 築年月 | 1987年09月 / 築39年 | エレベーター | あり |
| 駐車場 | 近隣 150m16500円 | バイク置き場 | - |
| 駐輪場 | あり | 管理人/管理会社 | - |
| 周辺環境 | その他 ファミリーマート津田沼駅北口店(コンビニ)まで153m その他 ベルク・フォルテ津田沼店(スーパー)まで859m その他 くすりの福太郎津田沼店(ドラッグストア)まで165m その他 ザ・ダイソー 奏の杜フォルテ津田沼店(その他)まで877m その他 マクドナルド 津田沼駅前店(飲食店)まで324m その他 イオン津田沼店(ショッピングセンター)まで584m | ||
| 建物種別 | マンション | 建物構造 | RC(鉄筋コンクリート) |
この部屋の取扱い不動産会社
| 会社名 | (株)エバンス東船橋本店(SUUMO経由) | ||
|---|---|---|---|
| 所在地 | 千葉県船橋市東船橋2-10-16 | 交通 | - |
| 営業時間 | 10:00~18:00 | 定休日 | 毎週水曜日 |
| 免許番号 | 千葉県知事14475 | 取引態様 | 仲介 |
| 不動産会社管理番号 | 100492481011 | 当社管理番号 | 89 |
| 所属団体 | (公社)全日本不動産協会千葉県本部会員 | ||
| 公正取引協議会 | (公社)首都圏不動産公正取引協議会加盟 | ||
| 取扱い物件情報 | 物件詳細へ | ||
※各種情報と現状に差異がある場合は、現状優先となります。問い合わせをすることで、より詳しい条件、情報を確認する事ができます。
提供:(株)エバンス東船橋本店(SUUMO経由)
この物件が気になったら掲載期限まであと12日
PINE SEA TUDANUMAに条件(家賃・エリア)が近い物件一覧
| 写真 | 家賃 管理費等 | 敷金 礼金 | 間取り 専有面積 | 築年数 | 最寄り駅 所在地 | キープ | 詳細 |
|---|---|---|---|---|---|---|---|
マンション SKI南行徳(1K/3階) | |||||||
![]() | 3.8万円 3,000円 | 3.8万円 なし | 1K 16.65m2 | 築36年 | 東京地下鉄東西線 南行徳駅 徒歩16分 東京地下鉄東西線 浦安駅(千葉) 徒歩19分 千葉県市川市広尾1丁目 | 詳細を見る | |
アパート αNEXT八千代第6(2DK/2階) | |||||||
![]() | 5.5万円 3,000円 | なし なし | 2DK 37.97m2 | 築39年 | 京成本線 八千代台駅 徒歩17分 京成本線 実籾駅 徒歩29分 京成本線 京成大和田駅 徒歩42分 千葉県習志野市東習志野 | 詳細を見る | |
マンション SKビル拾四番館(ワンルーム/2階) | |||||||
![]() | 7.4万円 6,000円 | なし なし | ワンルーム 35.53m2 | 築1年 | 京成松戸線 くぬぎ山駅 徒歩10分 北総線 大町駅(千葉) 徒歩15分 京成松戸線 元山駅(千葉) 徒歩18分 千葉県鎌ケ谷市くぬぎ山 | 詳細を見る | |
アパート レオパレスシャンブルNS(1K/2階) | |||||||
![]() | 4.6万円 5,000円 | なし 4.6万円 | 1K 19.87m2 | 築23年 | 京成電鉄松戸線 前原駅 徒歩19分 千葉県船橋市田喜野井1丁目 | 詳細を見る | |
アパート レオパレスドエル(1K/2階) | |||||||
![]() | 6.2万円 5,000円 | なし 6.2万円 | 1K 19.87m2 | 築19年 | 東葉高速鉄道 八千代中央駅 徒歩6分 千葉県八千代市ゆりのき台2丁目 | 詳細を見る | |
マンション ストリーム三山(1K/3階) | |||||||
![]() | 4万円 5,000円 | なし 4万円 | 1K 26.4m2 | 築34年 | 京成本線 実籾駅 徒歩21分 京成本線 京成大久保駅 徒歩29分 千葉県船橋市三山 | 詳細を見る | |
マンション 東京SHARE市川(ワンルーム/4階) | |||||||
![]() | 4.1万円 1.8万円 | なし なし | ワンルーム 11m2 | 築37年 | 東京メトロ東西線 原木中山駅 徒歩9分 JR総武線 下総中山駅 徒歩9分 JR総武線 西船橋駅 徒歩19分 千葉県市川市二俣 | 詳細を見る | |
アパート ビューラゆりのきII(1K/1階) | |||||||
![]() | 3.6万円 5,000円 | なし なし | 1K 24.7m2 | 築24年 | 東葉高速鉄道 八千代中央駅 徒歩17分 千葉県八千代市ゆりのき台 | 詳細を見る | |





/105x80-f1-q70-wp1)



