賃貸マンション
パスト泉野の賃貸物件情報(3LDK/2階)
| 家賃 | 管理費等 | 敷金 | 礼金 | 間取り | 専有面積 |
|---|---|---|---|---|---|
| 7.5万円 | 5,000円 | なし | 7.5万円 | 3LDK | 86.5m2 |
入居決定でお祝い金最大100,000円
Point
エレベーターや宅配BOX、防犯カメラなど共用部の設備にも注目です。近くには図書館など公共の施設あり♪
提供:(株)のうか不動産小立野店(SUUMO経由)

詳細情報 パスト泉野
物件紹介
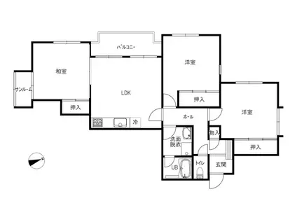
このお部屋は2階以上に位置しているので、通行人や周囲の住人からの視線が気になりにくく、防犯面でも安心。インターホンにはTVモニタもついているため、相手の顔を確認してから来客対応することができます。
人気の角部屋。周囲の居住者の生活音も気になりにくい場所です。キッチンはシステムキッチン仕様になっていますので、お料理好きの方にもぴったり。また、バス・トイレは別で、のんびりお風呂タイムも楽しめるでしょう。
通信設備面では、インターネットが無料で使えるので、月々の出費を抑えられるのも魅力です。また、CATVにも対応しているので、おうち時間も充実するでしょう(別途工事、CATVの契約料等が必要な場合あり)。
建物にはエレベーターがついているので、重い荷物があっても安心。共用部には宅配ボックスが設定されているので、不在の時にも荷物を受け取ることができます。
人気の角部屋。周囲の居住者の生活音も気になりにくい場所です。キッチンはシステムキッチン仕様になっていますので、お料理好きの方にもぴったり。また、バス・トイレは別で、のんびりお風呂タイムも楽しめるでしょう。
通信設備面では、インターネットが無料で使えるので、月々の出費を抑えられるのも魅力です。また、CATVにも対応しているので、おうち時間も充実するでしょう(別途工事、CATVの契約料等が必要な場合あり)。
建物にはエレベーターがついているので、重い荷物があっても安心。共用部には宅配ボックスが設定されているので、不在の時にも荷物を受け取ることができます。
お金・契約の情報
※「-」と表示されているものは、実際は料金が発生するものもございます。詳細はお問い合わせください。
| 家賃 | 7.5万円 | 管理費・共益費 | 5,000円 |
|---|---|---|---|
| 敷金 | なし | 礼金 | 7.5万円 |
| 入居決定でお祝い金最大100,000円 | |||
| 保証金 | - | 償却・敷引 | - |
| 住宅保険料 | - | 更新料 | - |
| 保証会社利用 | 必須 | 保証会社名 | - |
| 保証会社費用 | - | 保証会社備考 | 保証会社利用必 株式会社エポスカード マメックス会費に含む |
| 契約形態 | - | 契約期間 | - |
| 入居・引渡期間 | 即時 | 現況 | - |
| 契約備考 | ●マメックスメンバーズクラブ入会必須●保証料・火災保険料・24時間365日の安心かけつけサポートを含む。【入会金:24,200円(税込)、会費:3,300円/月(税込)】 合計10.58万円(内訳:退去修繕負担金:75000円/インターネット初期費用:11000円/鍵代:19800円) 3LDK 二人入居可/子供可 バストイレ別、バルコニー、エアコン、ガスコンロ対応、クロゼット、TVインターホン、室内洗濯置、シューズボックス、システムキッチン、角住戸、温水洗浄便座、脱衣所、エレベーター、洗面所独立、2口コンロ、駐輪場、宅配ボックス、CATV、光ファイバー、即入居可、敷金不要、防犯カメラ、照明付、カードキー、ネット使用料不要、浄水器、サンルーム、バス停徒歩3分以内、敷地内ごみ置き場、専有面積25坪以上、LDK12畳以上、和室8畳以上、プロパンガス、保証会社利用可、IT重説対応物件 | ||
部屋の情報
| 間取り | 3LDK | 専有面積 | 86.5m2 |
|---|---|---|---|
| 所在階 / 向き | 2階 / 西 | バルコニー面積 | - |
| 水道 / ガス | - | ||
| 設備 | バス・トイレ別、2階以上、テレビドアホン、宅配ボックス、インターネット対応、システムキッチン、エアコン、エレベーター、温水洗浄便座、角部屋、バルコニー、洗髪洗面化粧台、2口コンロ、コンロ:ガス、CATV、インターネット使用料無料、洗濯機:室内 | ||
| 当社物件ID | 158574989 | ||
建物の情報
| 建物名 | パスト泉野 | ||
|---|---|---|---|
| 所在地 | 石川県金沢市泉野出町 | ||
| 交通 | 北陸新幹線 金沢駅 バス乗車時間:22分 最寄りバス停で下車 徒歩3分 | ||
| 階数 | 4階建 | 総戸数 | 16戸 |
| 築年月 | 1989年10月 / 築37年 | エレベーター | あり |
| 駐車場 | 空有 7700円 | バイク置き場 | - |
| 駐輪場 | あり | 管理人/管理会社 | - |
| 周辺環境 | その他 金沢市立泉野小学校(小学校)まで234m その他 金沢市立野田中学校(中学校)まで677m その他 幼保連携型認定こども園泉の台幼稚(幼稚園・保育園)まで477m その他 金沢泉野町郵便局(郵便局)まで419m その他 金沢市立泉野図書館(図書館)まで633m その他 泉野町3丁目緑地(公園)まで1048m | ||
| 建物種別 | マンション | 建物構造 | RC(鉄筋コンクリート) |
この部屋の取扱い不動産会社
| 会社名 | (株)のうか不動産小立野店(SUUMO経由) | ||
|---|---|---|---|
| 所在地 | 石川県金沢市石引1-7-1 | 交通 | - |
| 営業時間 | 10時~18時 | 定休日 | 水 |
| 免許番号 | 石川県知事3529 | 取引態様 | 代理 |
| 不動産会社管理番号 | 100428033222 | 当社管理番号 | 89 |
| 所属団体 | (公社)石川県宅地建物取引業協会会員 | ||
| 公正取引協議会 | 北陸不動産公正取引協議会加盟 | ||
| 取扱い物件情報 | 物件詳細へ | ||
※各種情報と現状に差異がある場合は、現状優先となります。問い合わせをすることで、より詳しい条件、情報を確認する事ができます。
提供:(株)のうか不動産小立野店(SUUMO経由)
この物件が気になったら掲載期限まであと10日
パスト泉野に条件(家賃・エリア)が近い物件一覧
| 写真 | 家賃 管理費等 | 敷金 礼金 | 間取り 専有面積 | 築年数 | 最寄り駅 所在地 | キープ | 詳細 |
|---|---|---|---|---|---|---|---|
マンション リブロイヤル石引(1K/6階) | |||||||
![]() | 4.9万円 3,000円 | なし なし | 1K 29.5m2 | 築38年 | 石川県金沢市石引 | 詳細を見る | |
アパート 石川県金沢市 築6年(ワンルーム/1階) | |||||||
![]() | 6.8万円 6,500円 | なし 12万円 | ワンルーム 34.72m2 | 築6年 | 石川県金沢市松村町ヌ | 詳細を見る | |
アパート グランディールFII AB棟(2K/2階) | |||||||
![]() | 4.7万円 2,000円 | なし なし | 2K 37m2 | 築28年 | 石川県野々市市菅原町 | 詳細を見る | |
アパート MAISON DE YASUKA メゾンドヤスカ(1LDK/2階) | |||||||
![]() | 5.8万円 6,000円 | なし 7.5万円 | 1LDK 33.39m2 | 築17年 | 北陸鉄道浅野川線 内灘駅 徒歩13分 石川県金沢市粟崎町 | 詳細を見る | |
アパート メゾンド・グリシーヌ(1LDK/2階) | |||||||
![]() | 5.9万円 4,000円 | なし 7万円 | 1LDK 41.89m2 | 築21年 | 北陸鉄道浅野川線 割出駅 徒歩21分 石川県金沢市南新保町ロ | 詳細を見る | |
アパート STATIONII(1LDK/2階) | |||||||
![]() | 6.4万円 4,500円 | なし 6.4万円 | 1LDK 31.67m2 | 築1年 | IRいしかわ鉄道 松任駅 徒歩7分 IRいしかわ鉄道 野々市駅(IR) 徒歩42分 石川県白山市八ツ矢町 | 詳細を見る | |
アパート クレール響(1LDK/2階) | |||||||
![]() | 6.2万円 6,000円 | なし 6.2万円 | 1LDK 33.39m2 | 築15年 | 石川県金沢市御影町 | 詳細を見る | |
アパート ボヌール・シャンブル(2DK/1階) | |||||||
![]() | 4.5万円 5,000円 | なし なし | 2DK 45.81m2 | 築33年 | 石川県金沢市近岡町 | 詳細を見る | |









