賃貸アパート
サニーコーポ藤の賃貸物件情報(2DK/2階)
| 家賃 | 管理費等 | 敷金 | 礼金 | 間取り | 専有面積 |
|---|---|---|---|---|---|
| 3.8万円 | なし | 3.8万円 | 3.8万円 | 2DK | 39.7m2 |
入居決定でお祝い金最大100,000円
Point
まずはお問い合わせ!
不動産会社は街のプロ、あなたに合った物件がきっと見つかります。
提供:奥久慈不動産(株)(SUUMO経由)

詳細情報 サニーコーポ藤
物件紹介
サニーコーポ藤はJR水郡線磐城塙駅から徒歩12分にあるアパートです。
このお部屋は2階以上に位置しているので、通行人や周囲の住人からの視線が気になりにくく、防犯面でも安心です。
人気の南向きのお部屋。また、フローリングなのでお掃除もラクラク。バス・トイレ別の仕様で、のんびりお風呂タイムも楽しめます。
このお部屋は2階以上に位置しているので、通行人や周囲の住人からの視線が気になりにくく、防犯面でも安心です。
人気の南向きのお部屋。また、フローリングなのでお掃除もラクラク。バス・トイレ別の仕様で、のんびりお風呂タイムも楽しめます。
お金・契約の情報
※「-」と表示されているものは、実際は料金が発生するものもございます。詳細はお問い合わせください。
| 家賃 | 3.8万円 | 管理費・共益費 | なし |
|---|---|---|---|
| 敷金 | 3.8万円 | 礼金 | 3.8万円 |
| 入居決定でお祝い金最大100,000円 | |||
| 保証金 | - | 償却・敷引 | - |
| 住宅保険料 | - | 更新料 | - |
| 契約形態 | - | 契約期間 | - |
| 入居・引渡期間 | 即時 | 現況 | - |
| 契約備考 | 2DK 普通借家2年 損保【1.7万円2年】 バストイレ別、バルコニー、エアコン、陽当り良好、南向き、即入居可、全居室フローリング | ||
部屋の情報
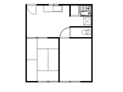
| 間取り | 2DK | 専有面積 | 39.7m2 |
|---|---|---|---|
| 所在階 / 向き | 2階 / 南 | バルコニー面積 | 2m2 |
| 水道 / ガス | - | ||
| 設備 | バス・トイレ別、2階以上、エアコン、南向き、バルコニー、フローリング | ||
| 当社物件ID | 160788036 | ||
建物の情報
| 建物名 | サニーコーポ藤 | ||
|---|---|---|---|
| 所在地 | 福島県東白川郡塙町大字塙柳町 | ||
| 交通 | JR水郡線 磐城塙駅 徒歩12分 | ||
| 階数 | 2階建 | 総戸数 | - |
| 築年月 | 1983年01月 / 築44年 | エレベーター | - |
| 駐車場 | 空有 付無料 | バイク置き場 | - |
| 駐輪場 | - | 管理人/管理会社 | - |
| 建物種別 | アパート | 建物構造 | 木造 |
この部屋の取扱い不動産会社
| 会社名 | 奥久慈不動産(株)(SUUMO経由) | ||
|---|---|---|---|
| 所在地 | 福島県東白川郡塙町大字塙字大町3-39-3 | 交通 | - |
| 営業時間 | 9:00~17:00 | 定休日 | 不定期 |
| 免許番号 | 福島県知事3331 | 取引態様 | 仲介 |
| 不動産会社管理番号 | 100502436775 | 当社管理番号 | 89 |
| 所属団体 | (公社)福島県宅地建物取引業協会会員 | ||
| 公正取引協議会 | 東北地区不動産公正取引協議会加盟 | ||
| 取扱い物件情報 | 物件詳細へ | ||
※各種情報と現状に差異がある場合は、現状優先となります。問い合わせをすることで、より詳しい条件、情報を確認する事ができます。
提供:奥久慈不動産(株)(SUUMO経由)
この物件が気になったら掲載期限まであと11日
サニーコーポ藤に条件(家賃・エリア)が近い物件一覧
| 写真 | 家賃 管理費等 | 敷金 礼金 | 間取り 専有面積 | 築年数 | 最寄り駅 所在地 | キープ | 詳細 |
|---|---|---|---|---|---|---|---|
アパート ソレイユルヴァン新町I(1LDK/2階) | |||||||
![]() | 5万円 2,300円 | なし 7万円 | 1LDK 40.09m2 | 築9年 | JR水郡線 磐城棚倉駅 徒歩2分 福島県東白川郡棚倉町大字棚倉新町 | 詳細を見る | |
アパート ディアス今宮(1LDK/1階) | |||||||
![]() | 5.5万円 4,000円 | なし 5.5万円 | 1LDK 41.2m2 | 築20年 | JR水郡線 中豊駅 徒歩4分 福島県東白川郡棚倉町大字棚倉下町 | 詳細を見る | |
マンション マンションフジ(3DK/3階) | |||||||
![]() | 4.8万円 4,000円 | なし なし | 3DK 50m2 | 築29年 | JR水郡線 磐城棚倉駅 徒歩16分 福島県東白川郡棚倉町大字棚倉宮下 | 詳細を見る | |
アパート メゾン・リュミエール(2DK/1階) | |||||||
![]() | 4.9万円 2,500円 | なし なし | 2DK 40.45m2 | 築21年 | JR水郡線 磐城棚倉駅 徒歩22分 福島県東白川郡棚倉町大字棚倉崖ノ上 | 詳細を見る | |
アパート ソレイユ ルヴァン 風呂ヶ沢館(2LDK/2階) | |||||||
![]() | 5.9万円 2,500円 | なし 7.9万円 | 2LDK 50.27m2 | 築20年 | JR水郡線 磐城棚倉駅 徒歩12分 福島県東白川郡棚倉町大字棚倉風呂ケ沢 | 詳細を見る | |
マンション フォーシーズン青葉(1K/2階) | |||||||
![]() | 4.5万円 1,500円 | 4.5万円 なし | 1K 27m2 | 築29年 | JR水郡線 磐城棚倉駅 徒歩25分 福島県東白川郡棚倉町大字棚倉崖ノ上 | 詳細を見る | |
東白川郡塙町の町名から探す
東白川郡塙町の部屋を間取りから探す
- 2DK(1)







