賃貸マンション
東海道本線 灘駅 徒歩10分 4階建 築8年の賃貸物件情報(1K/1階)
| 家賃 | 管理費等 | 敷金 | 礼金 | 間取り | 専有面積 |
|---|---|---|---|---|---|
| 7.2万円 | 3,500円 | なし | なし | 1K | 30m2 |
入居決定でお祝い金最大100,000円
Point
多くの方からご好評頂いているレーヴのご紹介です。収納はシューズボックス・クロゼット・全居室収納など豊富なので、衣類や履き物の整理がしやすく便利です。セキュリティ面は、TVインターホン・オートロックなどを備え付けているので安心して暮らせます。駐輪場付きの物件です。東海道・山陽本線灘周辺で住まい探しをす
提供:CHINTAI ROOM 六甲本店

詳細情報 東海道本線 灘駅 徒歩10分 4階建 築8年
物件紹介
東海道本線灘駅から徒歩10分にあり、駅近で通勤通学に便利なマンションです。
建物のエントランスはオートロックがついており、インターホンにはTVモニタもついているため、相手の顔を確認してから来客対応することができます。
フローリングのお部屋なのでお掃除もラクラク。キッチンはシステムキッチン仕様になっていますので、お料理好きの方にもぴったり。バス・トイレは別なので、のんびりお風呂タイムも楽しめるでしょう。また、雨の日でも浴室乾燥機を使えば、お洗濯も問題ありません。
通信設備面では、インターネット接続が可能です。また、BSアンテナ・CSアンテナがありCATVにも対応しているので、おうち時間も充実するでしょう(別途工事、契約料が必要な場合あり)。
共用部には宅配ボックスが設定されているので、不在の時にも荷物を受け取ることができます。
建物のエントランスはオートロックがついており、インターホンにはTVモニタもついているため、相手の顔を確認してから来客対応することができます。
フローリングのお部屋なのでお掃除もラクラク。キッチンはシステムキッチン仕様になっていますので、お料理好きの方にもぴったり。バス・トイレは別なので、のんびりお風呂タイムも楽しめるでしょう。また、雨の日でも浴室乾燥機を使えば、お洗濯も問題ありません。
通信設備面では、インターネット接続が可能です。また、BSアンテナ・CSアンテナがありCATVにも対応しているので、おうち時間も充実するでしょう(別途工事、契約料が必要な場合あり)。
共用部には宅配ボックスが設定されているので、不在の時にも荷物を受け取ることができます。
お金・契約の情報
※「-」と表示されているものは、実際は料金が発生するものもございます。詳細はお問い合わせください。
| 家賃 | 7.2万円 | 管理費・共益費 | 3,500円 |
|---|---|---|---|
| 敷金 | なし | 礼金 | なし |
| 入居決定でお祝い金最大100,000円 | |||
| 保証金 | - | 償却・敷引 | - |
| 住宅保険料 | 住宅保険料あり | 更新料 | - |
| その他費用 | クリーニング費用:4万円 | ||
| 保証会社利用 | 必須 | 保証会社名 | - |
| 保証会社費用 | - | 保証会社備考 | 初回70% |
| 契約形態 | - | 契約期間 | 2年 |
| 入居・引渡期間 | 即時 | 現況 | 空室 |
| 入居可能条件 | 高齢者可、学生可 | ||
| 契約備考 | 新生活を失敗せず、スタートさせたいならこちらの「レーヴ」はいかがでしょうか。留守中に注文した商品が届くので、配送時間を気にせず注文ができる宅配ボックスがあります。室内設備は洗面化粧台・浴室乾燥機など充実した設備を備え付けています。新しいお住まいをお探しの際はCHINTAI ROOM 六甲本店 キュリアを是非ご利用ください。神戸市中央区にある不動産情報を、条件に合わせてご紹介いたします。 | ||
部屋の情報
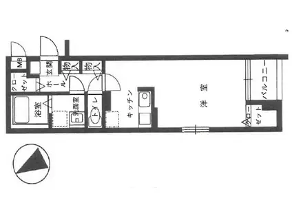
| 間取り | 1K | 専有面積 | 30m2 |
|---|---|---|---|
| 間取り詳細 | 洋室(7.4帖) | ||
| 所在階 / 向き | 1階 / 南東 | バルコニー面積 | - |
| 水道 / ガス | 水道【公営】、ガス【都市】 | ||
| 設備 | バス・トイレ別、オートロック、テレビドアホン、宅配ボックス、浴室乾燥機、光ファイバー対応、システムキッチン、エアコン、温水洗浄便座、バルコニー、フローリング、洗髪洗面化粧台、家具家電付き、2口コンロ、コンロ:ガス、CATV、CSアンテナ、BSアンテナ、シャワー、冷蔵庫あり、給湯、洗濯機:室内 | ||
| 当社物件ID | 28707961 | ||
建物の情報
| 建物名 | 東海道本線 灘駅 徒歩10分 4階建 築8年 | ||
|---|---|---|---|
| 所在地 | 兵庫県神戸市中央区宮本通3丁目 1-4 | ||
| 交通 | 東海道本線 灘駅 徒歩10分 阪急電鉄神戸線 春日野道駅(阪急) 徒歩11分 | ||
| 階数 | 4階建 | 総戸数 | - |
| 築年月 | 2018年11月 / 築8年 | エレベーター | - |
| 駐車場 | 近隣 1.7万円/月 徒歩1分(50m) | バイク置き場 | あり |
| 駐輪場 | あり | 管理人/管理会社 | 無し |
| 周辺環境 | 中学校 神戸市立筒井台中学校 徒歩4分(294m) 小学校 神戸市立宮本小学校 徒歩4分(267m) | ||
| 建物種別 | マンション | 建物構造 | RC(鉄筋コンクリート) |
この部屋の取扱い不動産会社
| 会社名 | CHINTAI ROOM 六甲本店 | ||
|---|---|---|---|
| 所在地 | 兵庫県 神戸市灘区森後町1丁目4番10号 フレグランス六甲1F | 交通 | JR東海道本線「六甲道駅」徒歩1分 |
| 営業時間 | 10:00-19:30 | 定休日 | なし |
| 免許番号 | 兵庫県知事(2)第11891号 | 取引態様 | 仲介 |
| 不動産会社管理番号 | 1636875 | 当社管理番号 | 377 |
| 取扱い物件情報 | 物件詳細へ | ||
※各種情報と現状に差異がある場合は、現状優先となります。問い合わせをすることで、より詳しい条件、情報を確認する事ができます。
提供:CHINTAI ROOM 六甲本店
この物件が気になったら掲載期限まであと5日
東海道本線 灘駅 徒歩10分 4階建 築8年に条件(家賃・エリア)が近い物件一覧
| 写真 | 家賃 管理費等 | 敷金 礼金 | 間取り 専有面積 | 築年数 | 最寄り駅 所在地 | キープ | 詳細 |
|---|---|---|---|---|---|---|---|
アパート アレグラールⅡ(2LDK/1階) | |||||||
![]() | 5.05万円 2,200円 | 5.05万円 5.05万円 | 2LDK 53.51m2 | 築27年 | 山陽本線 魚住駅 徒歩19分 山陽電気鉄道本線 山陽魚住駅 徒歩30分 山陽電気鉄道本線 西江井ケ島駅 徒歩30分 兵庫県明石市魚住町長坂寺 | 詳細を見る | |
アパート ファミリーマンション和田(1LDK/1階) | |||||||
![]() | 6.1万円 3,000円 | なし 6.1万円 | 1LDK 56.62m2 | 築13年 | 神戸電鉄粟生線 恵比須駅 徒歩6分 神戸電鉄粟生線 三木上の丸駅 徒歩13分 兵庫県三木市大塚 | 詳細を見る | |
アパート ハーベストスクエア壱番館(1LDK/1階) | |||||||
![]() | 5.95万円 3,500円 | なし 5.95万円 | 1LDK 42.37m2 | 築20年 | 山陽本線 大久保駅(兵庫) 徒歩29分 兵庫県明石市大久保町大窪 | 詳細を見る | |
アパート サンハイツ北野(1LDK/2階) | |||||||
![]() | 4.8万円 2,800円 | なし なし | 1LDK 40.04m2 | 築31年 | 山陽電鉄本線 中八木駅 徒歩7分 JR山陽本線 大久保駅(兵庫) 徒歩14分 山陽電鉄本線 藤江駅 徒歩15分 兵庫県明石市大久保町谷八木 | 詳細を見る | |
アパート ソフィア ルミエールⅡ(2DK/2階) | |||||||
![]() | 7.9万円 6,000円 | 2万円 15万円 | 2DK 58.88m2 | 築10年 | 神戸電鉄粟生線 志染駅 徒歩4分 神戸電鉄粟生線 広野ゴルフ場前駅 徒歩27分 兵庫県三木市志染町西自由が丘1丁目 | 詳細を見る | |
アパート アステリア(1K/2階) | |||||||
![]() | 7.4万円 3,500円 | なし 7.4万円 | 1K 27.95m2 | 新築 | 山陽電鉄本線 人丸前駅 徒歩3分 JR山陽本線 明石駅 徒歩13分 兵庫県明石市天文町 | 詳細を見る | |
アパート グランドールⅡ(1LDK/1階) | |||||||
![]() | 7.5万円 3,000円 | なし 7.5万円 | 1LDK 44.17m2 | 築1年 | 神戸電鉄粟生線 広野ゴルフ場前駅 徒歩10分 神戸電鉄粟生線 志染駅 徒歩19分 兵庫県三木市志染町東自由が丘1丁目 | 詳細を見る | |
マンション ビレッジハウス志染(3DK/5階) | |||||||
![]() | 5.68万円 なし | なし なし | 3DK 58.35m2 | 築47年 | 神戸電鉄粟生線 志染駅 徒歩12分 神戸電鉄粟生線 恵比須駅 徒歩29分 神戸電鉄粟生線 広野ゴルフ場前駅 徒歩29分 兵庫県三木市志染町西自由が丘2丁目 | 詳細を見る | |








