賃貸マンション
COMFY COURT五条西洞院の賃貸物件情報(1LDK/2階)
| 家賃 | 管理費等 | 敷金 | 礼金 | 間取り | 専有面積 |
|---|---|---|---|---|---|
| 14.8万円 | 8,000円 | 5万円 | 14.8万円 | 1LDK | 57.66m2 |
入居決定でお祝い金最大100,000円
- 保証金
- -
- 償却・敷引
- -
- 築年数
- 築1年
- 所在階
- 2階
- 向き
- 東
Point
オートロック、宅配ボックス付き 追い焚き、浴室乾燥機、洗面化粧台など室内設備充実しています
提供:(株)アルティム七条店(SUUMO経由)

詳細情報 COMFY COURT五条西洞院
物件紹介
COMFY COURT五条西洞院は地下鉄烏丸線五条駅から徒歩6分にあり、駅近で通勤通学に便利なマンションです。
このお部屋は2階以上に位置しているので、通行人や周囲の住人からの視線が気になりにくく、防犯面でも安心。建物のエントランスはオートロックがついており、インターホンにはTVモニタもついているため、相手の顔を確認してから来客対応することができます。
人気の角部屋。周囲の居住者の生活音も気になりにくい場所です。キッチンはシステムキッチン仕様になっていますので、お料理好きの方にもぴったり。バス・トイレは別なので、のんびりお風呂タイムも楽しめるでしょう。また、雨の日でも浴室乾燥機を使えば、お洗濯も問題ありません。
通信設備面では、インターネット接続が可能です。また、BSアンテナもありますので、おうち時間も充実するでしょう(別途工事、契約料が必要な場合あり)。
共用部には宅配ボックスが設定されているので、不在の時にも荷物を受け取ることができます。
このお部屋は2階以上に位置しているので、通行人や周囲の住人からの視線が気になりにくく、防犯面でも安心。建物のエントランスはオートロックがついており、インターホンにはTVモニタもついているため、相手の顔を確認してから来客対応することができます。
人気の角部屋。周囲の居住者の生活音も気になりにくい場所です。キッチンはシステムキッチン仕様になっていますので、お料理好きの方にもぴったり。バス・トイレは別なので、のんびりお風呂タイムも楽しめるでしょう。また、雨の日でも浴室乾燥機を使えば、お洗濯も問題ありません。
通信設備面では、インターネット接続が可能です。また、BSアンテナもありますので、おうち時間も充実するでしょう(別途工事、契約料が必要な場合あり)。
共用部には宅配ボックスが設定されているので、不在の時にも荷物を受け取ることができます。
お金・契約の情報
※「-」と表示されているものは、実際は料金が発生するものもございます。詳細はお問い合わせください。
| 家賃 | 14.8万円 | 管理費・共益費 | 8,000円 |
|---|---|---|---|
| 敷金 | 5万円 | 礼金 | 14.8万円 |
| 入居決定でお祝い金最大100,000円 | |||
| 保証金 | - | 償却・敷引 | - |
| 住宅保険料 | - | 更新料 | - |
| 保証会社利用 | 必須 | 保証会社名 | 全保連 |
| 保証会社費用 | - | 保証会社備考 | 全保連利用必 初回保証料:月額支払総額の50%、更新保証料:13,000円/年、賃料振替手数料:550円(税込) |
| 契約形態 | - | 契約期間 | - |
| 入居・引渡期間 | - | 現況 | - |
| 契約備考 | 駐輪は自転車1台のみ(バイク駐輪不可) 合計4.4万円(内訳:退去時清掃費44000円) Dプロテクト利用料1500円/月 1LDK 普通借家2年 バストイレ別、バルコニー、エアコン、ガスコンロ対応、クロゼット、TVインターホン、浴室乾燥機、オートロック、室内洗濯置、シューズボックス、システムキッチン、追焚機能浴室、角住戸、温水洗浄便座、脱衣所、洗面所独立、洗面化粧台、2口コンロ、駐輪場、宅配ボックス、光ファイバー、2面採光、対面式キッチン、仲手0.55ヶ月、エアコン2台、LDK15畳以上、エアコン全室、1フロア2住戸、築2年以内、クロゼット2ヶ所、未入居、3駅以上利用可、3沿線以上利用可、駅徒歩10分以内、都市ガス、洗面所にドア、BS、礼金1ヶ月、IT重説対応物件 入居日:'26年1月中旬 | ||
部屋の情報
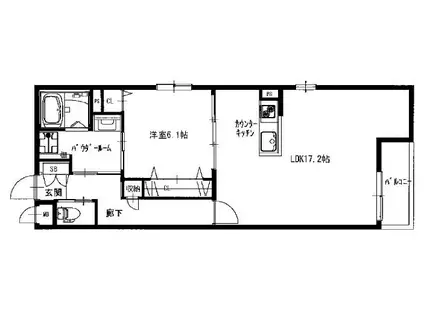
| 間取り | 1LDK | 専有面積 | 57.66m2 |
|---|---|---|---|
| 所在階 / 向き | 2階 / 東 | バルコニー面積 | - |
| 水道 / ガス | - | ||
| 設備 | バス・トイレ別、2階以上、オートロック、テレビドアホン、宅配ボックス、浴室乾燥機、追い焚き、インターネット対応、システムキッチン、エアコン、温水洗浄便座、角部屋、バルコニー、洗髪洗面化粧台、2口コンロ、コンロ:ガス、BSアンテナ、洗濯機:室内 | ||
| 当社物件ID | 160013196 | ||
建物の情報
| 建物名 | COMFY COURT五条西洞院 | ||
|---|---|---|---|
| 所在地 | 京都府京都市下京区小柳町 | ||
| 交通 | 地下鉄烏丸線 五条駅(京都市営) 徒歩6分 JR東海道本線 京都駅 徒歩17分 阪急京都線 烏丸駅 徒歩19分 | ||
| 階数 | 3階建 | 総戸数 | 6戸 |
| 築年月 | 2025年12月 / 築1年 | エレベーター | - |
| 駐車場 | なし | バイク置き場 | - |
| 駐輪場 | あり | 管理人/管理会社 | - |
| 周辺環境 | その他 フレスコ五条西洞院店(スーパー)まで161m その他 ココカラファイン新町店(ドラッグストア)まで265m その他 横江医院(病院)まで871m その他 下京警察署元両替町交番(警察署・交番)まで693m その他 ローソン 五条若宮店(コンビニ)まで259m その他 京都六条郵便局(郵便局)まで200m | ||
| 建物種別 | マンション | 建物構造 | 鉄骨造 |
この部屋の取扱い不動産会社
| 会社名 | (株)アルティム七条店(SUUMO経由) | ||
|---|---|---|---|
| 所在地 | 京都府京都市東山区七条通大和大路西入西之門町 549 澤村ビル1F | 交通 | - |
| 営業時間 | 10:00-19:00 | 定休日 | 毎週水曜日 |
| 免許番号 | 京都府知事11894 | 取引態様 | 仲介 |
| 不動産会社管理番号 | 100476745263 | 当社管理番号 | 89 |
| 所属団体 | (公社)京都府宅地建物取引業協会会員 | ||
| 公正取引協議会 | (公社)近畿地区不動産公正取引協議会加盟 | ||
| 取扱い物件情報 | 物件詳細へ | ||
※各種情報と現状に差異がある場合は、現状優先となります。問い合わせをすることで、より詳しい条件、情報を確認する事ができます。
提供:(株)アルティム七条店(SUUMO経由)
この物件が気になったら掲載期限まであと11日
COMFY COURT五条西洞院に条件(家賃・エリア)が近い物件一覧
| 写真 | 家賃 管理費等 | 敷金 礼金 | 間取り 専有面積 | 築年数 | 最寄り駅 所在地 | キープ | 詳細 |
|---|---|---|---|---|---|---|---|
アパート 山陰本線 丹波口駅 徒歩5分 築1年(1LDK/1階) | |||||||
![]() | 12万円 8,000円 | なし 12万円 | 1LDK 41.43m2 | 築1年 | 山陰本線 丹波口駅 徒歩5分 東海道本線 京都駅 徒歩25分 京都府京都市下京区西新屋敷下之町 | 詳細を見る | |
マンション 藤和シティコープ四条西洞院(2K/1階) | |||||||
![]() | 9万円 9,000円 | 10万円 10万円 | 2K 40.01m2 | 築42年 | 京都市烏丸線 四条駅(京都市営) 徒歩7分 京都府京都市中京区古西町西洞院通蛸薬師下る | 詳細を見る | |
マンション 東海道本線 京都駅 徒歩2分 築28年(2SLDK/11階) | |||||||
![]() | 17万円 1.2万円 | 17万円 34万円 | 2SLDK 65.36m2 | 築28年 | 東海道本線 京都駅 徒歩2分 近鉄京都線 東寺駅 徒歩15分 京都府京都市下京区南不動堂町 | 詳細を見る | |
アパート 京阪電気鉄道宇治線 木幡駅(京阪) 徒歩8分 築12年(1LDK/2階) | |||||||
![]() | 9.2万円 7,000円 | なし 15万円 | 1LDK 45.07m2 | 築12年 | 京阪電気鉄道宇治線 木幡駅(京阪) 徒歩8分 奈良線 木幡駅(JR) 徒歩10分 京都府宇治市木幡 | 詳細を見る | |
アパート 東海道本線 長岡京駅 徒歩19分 築13年(2LDK/2階) | |||||||
![]() | 9.3万円 6,500円 | なし 20万円 | 2LDK 57.93m2 | 築13年 | 東海道本線 長岡京駅 徒歩19分 阪急電鉄京都線 西向日駅 徒歩19分 京都府向日市上植野町落堀 | 詳細を見る | |
マンション 京都市烏丸線 五条駅(京都市営) 徒歩6分 築6年(ワンルーム/1階) | |||||||
![]() | 10.8万円 1.1万円 | なし 20万円 | ワンルーム 35.89m2 | 築6年 | 京都市烏丸線 五条駅(京都市営) 徒歩6分 京阪電気鉄道京阪線 清水五条駅 徒歩8分 京都府京都市下京区堅田町 | 詳細を見る | |
アパート 東海道本線 西大路駅 徒歩18分 新築(1LDK/3階) | |||||||
![]() | 10万円 5,500円 | なし 10万円 | 1LDK 43.7m2 | 新築 | 東海道本線 西大路駅 徒歩18分 東海道本線 京都駅 徒歩33分 京都府京都市南区唐橋南琵琶町 | 詳細を見る | |
アパート カーサ・フェリーチェ長岡京(1LDK/3階) | |||||||
![]() | 9.5万円 5,000円 | なし 19万円 | 1LDK 39.9m2 | 築1年 | JR東海道本線 長岡京駅 徒歩8分 阪急京都線 長岡天神駅 徒歩13分 阪急京都線 西向日駅 徒歩23分 京都府長岡京市馬場 | 詳細を見る | |









