賃貸マンション
地下鉄四つ橋線 本町駅 徒歩4分 13階建 築19年の賃貸物件情報(ワンルーム/2階)
| 家賃 | 管理費等 | 敷金 | 礼金 | 間取り | 専有面積 |
|---|---|---|---|---|---|
| 6.6万円 | 8,000円 | なし | なし | ワンルーム | 26.66m2 |
入居決定でお祝い金最大100,000円
Point
来店しないでお部屋探しから契約、鍵のお渡しまで可能です。クレジット決済対応なので初期費用分割もOK♪公式LINEでのご対応も可能。掲載写真以外の室内、周辺情報もご要望頂けると写真、動画でお送りします♪
提供:ミニミニFC桜川店井上コーポレーション(有)(SUUMO経由)

詳細情報 地下鉄四つ橋線 本町駅 徒歩4分 13階建 築19年
物件紹介
地下鉄四つ橋線本町駅から徒歩4分にあり、駅近で通勤通学に便利なマンションです。
このお部屋は2階以上に位置しているので、通行人や周囲の住人からの視線が気になりにくく、防犯面でも安心。建物のエントランスはオートロックがついており、インターホンにはTVモニタもついているため、相手の顔を確認してから来客対応することができます。
フローリングのお部屋なのでお掃除もラクラク。キッチンはシステムキッチン仕様になっていますので、お料理好きの方にもぴったり。バス・トイレは別なので、のんびりお風呂タイムも楽しめるでしょう。また、雨の日でも浴室乾燥機を使えば、お洗濯も問題ありません。
通信設備面では、インターネットが無料で使えるので、月々の出費を抑えられるのも魅力です(別途工事等が必要な場合あり)。
建物にはエレベーターがついているので、重い荷物があっても安心。共用部には宅配ボックスが設定されているので、不在の時にも荷物を受け取ることができます。
このお部屋は2階以上に位置しているので、通行人や周囲の住人からの視線が気になりにくく、防犯面でも安心。建物のエントランスはオートロックがついており、インターホンにはTVモニタもついているため、相手の顔を確認してから来客対応することができます。
フローリングのお部屋なのでお掃除もラクラク。キッチンはシステムキッチン仕様になっていますので、お料理好きの方にもぴったり。バス・トイレは別なので、のんびりお風呂タイムも楽しめるでしょう。また、雨の日でも浴室乾燥機を使えば、お洗濯も問題ありません。
通信設備面では、インターネットが無料で使えるので、月々の出費を抑えられるのも魅力です(別途工事等が必要な場合あり)。
建物にはエレベーターがついているので、重い荷物があっても安心。共用部には宅配ボックスが設定されているので、不在の時にも荷物を受け取ることができます。
お金・契約の情報
※「-」と表示されているものは、実際は料金が発生するものもございます。詳細はお問い合わせください。
| 家賃 | 6.6万円 | 管理費・共益費 | 8,000円 |
|---|---|---|---|
| 敷金 | なし | 礼金 | なし |
| 入居決定でお祝い金最大100,000円 | |||
| 保証金 | - | 償却・敷引 | - |
| 住宅保険料 | - | 更新料 | - |
| 保証会社利用 | 必須 | 保証会社名 | - |
| 保証会社費用 | - | 保証会社備考 | 保証会社利用必 エポス月次(FIS保険)大阪初回保証料50%+月次1.5%(フレックス少額短期保険代保証) |
| 契約形態 | - | 契約期間 | - |
| 入居・引渡期間 | - | 現況 | - |
| 契約備考 | ●●当店ではオトリ広告を一切致しておりません●●常に新鮮な情報をお届けし、最適なお部屋をご提案致します。インターネット使用無料・デザイナーズ・敷金礼金0円・ペット可・家具家電付き・分譲賃貸・ファミリー物件等、幅広く取り扱っており、当社ならではのネットワークがございますので、お部屋探しは是非ミニミニ桜川店へお問合せ下さいませ(^^♪ 合計5.39万円(内訳:契約事務手数料(仲介)0.77万円消毒代2.2万円鍵交換代2.42万円) 室内清掃費用 33000円 ワンルーム 普通借家2年 損保【2万円2年】 バストイレ別、バルコニー、エアコン、ガスコンロ対応、クロゼット、フローリング、シャワー付洗面台、TVインターホン、浴室乾燥機、オートロック、室内洗濯置、シューズボックス、システムキッチン、温水洗浄便座、エレベーター、洗面所独立、洗面化粧台、2口コンロ、駐輪場、宅配ボックス、光ファイバー、礼金不要、敷金不要、防犯カメラ、バイク置場、2沿線利用可、ネット使用料不要、24時間換気システム、耐火構造、2駅利用可、駅徒歩5分以内、駅徒歩10分以内、都市ガス、敷金・礼金不要 入居日:'26年2月下旬 | ||
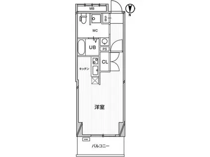
部屋の情報
| 間取り | ワンルーム | 専有面積 | 26.66m2 |
|---|---|---|---|
| 所在階 / 向き | 2階 / 北 | バルコニー面積 | - |
| 水道 / ガス | - | ||
| 設備 | バス・トイレ別、2階以上、オートロック、テレビドアホン、宅配ボックス、浴室乾燥機、インターネット対応、システムキッチン、エアコン、エレベーター、温水洗浄便座、バルコニー、フローリング、洗髪洗面化粧台、2口コンロ、コンロ:ガス、インターネット使用料無料、洗濯機:室内 | ||
| 当社物件ID | 160260448 | ||
建物の情報
| 建物名 | 地下鉄四つ橋線 本町駅 徒歩4分 13階建 築19年 | ||
|---|---|---|---|
| 所在地 | 大阪府大阪市西区西本町 | ||
| 交通 | 地下鉄四つ橋線 本町駅 徒歩4分 地下鉄御堂筋線 本町駅 徒歩11分 | ||
| 階数 | 13階建 | 総戸数 | - |
| 築年月 | 2008年01月 / 築19年 | エレベーター | あり |
| 駐車場 | なし | バイク置き場 | あり |
| 駐輪場 | あり | 管理人/管理会社 | - |
| 周辺環境 | その他 ライフ阿波座駅前(スーパー)まで705m その他 ビッグビーンズ West本店(スーパー)まで763m その他 靱公園(公園)まで235m その他 新阿波座公園(公園)まで457m その他 住友病院(病院)まで1154m その他 大阪西郵便局(郵便局)まで839m | ||
| 建物種別 | マンション | 建物構造 | RC(鉄筋コンクリート) |
この部屋の取扱い不動産会社
| 会社名 | ミニミニFC桜川店井上コーポレーション(有)(SUUMO経由) | ||
|---|---|---|---|
| 所在地 | 大阪府大阪市浪速区幸町1-3-19 | 交通 | - |
| 営業時間 | 9時~19時 | 定休日 | 無し |
| 免許番号 | 大阪府知事47283 | 取引態様 | 仲介 |
| 不動産会社管理番号 | 100484274284 | 当社管理番号 | 89 |
| 所属団体 | (一社)大阪府宅地建物取引業協会会員 | ||
| 公正取引協議会 | (公社)近畿地区不動産公正取引協議会加盟 | ||
| 取扱い物件情報 | 物件詳細へ | ||
※各種情報と現状に差異がある場合は、現状優先となります。問い合わせをすることで、より詳しい条件、情報を確認する事ができます。
提供:ミニミニFC桜川店井上コーポレーション(有)(SUUMO経由)
この物件が気になったら掲載期限まであと11日
地下鉄四つ橋線 本町駅 徒歩4分 13階建 築19年に条件(家賃・エリア)が近い物件一覧
| 写真 | 家賃 管理費等 | 敷金 礼金 | 間取り 専有面積 | 築年数 | 最寄り駅 所在地 | キープ | 詳細 |
|---|---|---|---|---|---|---|---|
マンション LUXE布施北(1K/13階) | |||||||
![]() | 6万円 8,000円 | なし なし | 1K 21.5m2 | 築2年 | 近鉄難波・奈良線 布施駅 徒歩7分 大阪市千日前線 新深江駅 徒歩7分 大阪市千日前線 小路駅(大阪メトロ) 徒歩11分 大阪府東大阪市足代北1丁目 | 詳細を見る | |
アパート フジパレス吹田正雀(1K/1階) | |||||||
| 6.4万円 4,800円 | なし 10万円 | 1K 27m2 | 築4年 | 阪急電鉄京都線 正雀駅 徒歩5分 東海道本線 岸辺駅 徒歩10分 大阪市今里筋線 井高野駅 徒歩24分 大阪府吹田市南正雀2丁目27-3 | 詳細を見る | ||
マンション 日晃マンション(2K/4階) | |||||||
![]() | 4.2万円 3,000円 | なし 8.4万円 | 2K 28.57m2 | 築50年 | 京阪電気鉄道京阪線 門真市駅 徒歩5分 京阪電気鉄道京阪線 古川橋駅 徒歩9分 京阪電気鉄道京阪線 西三荘駅 徒歩10分 大阪府門真市新橋町 | 詳細を見る | |
マンション リードレジデンス関大前(1K/3階) | |||||||
| 6.4万円 6,000円 | 6.4万円 6.4万円 | 1K 25.2m2 | 築11年 | 阪急電鉄千里線 関大前駅 徒歩6分 阪急電鉄千里線 千里山駅 徒歩12分 阪急電鉄千里線 豊津駅(大阪) 徒歩17分 大阪府吹田市千里山東1丁目14-24 | 詳細を見る | ||
マンション 南海電鉄泉北線 深井駅 徒歩27分 築30年(3LDK/3階) | |||||||
![]() | 6.5万円 5,000円 | 6.5万円 6.5万円 | 3LDK 57m2 | 築30年 | 南海電鉄泉北線 深井駅 徒歩27分 阪和線 津久野駅 徒歩40分 阪和線 鳳駅 徒歩41分 大阪府堺市中区八田西町3丁 | 詳細を見る | |
マンション ARCA正雀(1K/7階) | |||||||
| 7.05万円 6,000円 | なし 7.05万円 | 1K 23.35m2 | 築1年 | 阪急電鉄京都線 正雀駅 徒歩4分 東海道本線 岸辺駅 徒歩12分 大阪モノレール本線 摂津駅 徒歩22分 大阪府摂津市正雀本町1丁目20-9 | 詳細を見る | ||
マンション 阪和線 富木駅 徒歩21分 築33年(3LDK/3階) | |||||||
![]() | 6.8万円 なし | なし 10万円 | 3LDK 60m2 | 築33年 | 阪和線 富木駅 徒歩21分 阪和線 鳳駅 徒歩25分 阪和線 北信太駅 徒歩35分 大阪府堺市西区草部 | 詳細を見る | |
マンション リバティ西三荘(1K/4階) | |||||||
![]() | 6.1万円 7,000円 | なし なし | 1K 29.65m2 | 築12年 | 京阪電気鉄道京阪線 西三荘駅 徒歩2分 大阪府門真市本町 | 詳細を見る | |






