賃貸マンション
ベスト伊勢佐木長者町の賃貸物件情報(ワンルーム/4階)
| 家賃 | 管理費等 | 敷金 | 礼金 | 間取り | 専有面積 |
|---|---|---|---|---|---|
| 7.2万円 | 8,000円 | 7.2万円 | 14.4万円 | ワンルーム | 30.95m2 |
入居決定でお祝い金最大100,000円
- 保証金
- -
- 償却・敷引
- -
- 築年数
- 築27年
- 所在階
- 4階
- 向き
- 北東
Point
室内設備はBS・システムキッチン・エアコンなどが揃っているので、快適に過ごしやすいお部屋になります。オートロック機能を備え付けているので、建物内は基本的に住民のみという環境に安心感が得られます。
提供:(株)FJネクスト(SUUMO経由)

詳細情報 ベスト伊勢佐木長者町
物件紹介
ベスト伊勢佐木長者町はブルーライン伊勢佐木長者町駅から徒歩1分にあり、駅近で通勤通学に便利なマンションです。
このお部屋は2階以上に位置しているので通行人や周囲の住人からの視線が気になりにくく、建物のエントランスはオートロックがついているので防犯性が高くなっています。
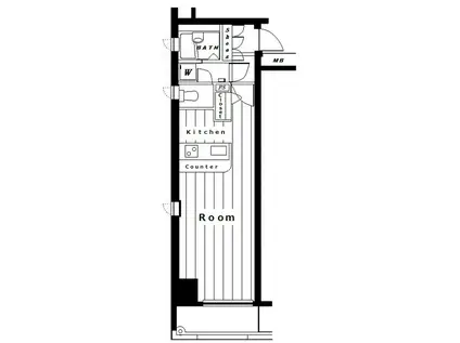
人気の角部屋で周囲の居住者の生活音も気になりにくく、また、フローリングのお部屋なのでお掃除もラクラク。キッチンはシステムキッチン仕様になっていますので、お料理好きの方にもぴったり。また、バス・トイレは別で、のんびりお風呂タイムも楽しめるでしょう。
通信設備面では、インターネット接続が可能です。また、BSアンテナもありますので、おうち時間も充実するでしょう(別途工事、契約料が必要な場合あり)。
建物にはエレベーターがついているので、重い荷物があっても安心。共用部には宅配ボックスが設定されているので、不在の時にも荷物を受け取ることができます。
このお部屋は2階以上に位置しているので通行人や周囲の住人からの視線が気になりにくく、建物のエントランスはオートロックがついているので防犯性が高くなっています。
人気の角部屋で周囲の居住者の生活音も気になりにくく、また、フローリングのお部屋なのでお掃除もラクラク。キッチンはシステムキッチン仕様になっていますので、お料理好きの方にもぴったり。また、バス・トイレは別で、のんびりお風呂タイムも楽しめるでしょう。
通信設備面では、インターネット接続が可能です。また、BSアンテナもありますので、おうち時間も充実するでしょう(別途工事、契約料が必要な場合あり)。
建物にはエレベーターがついているので、重い荷物があっても安心。共用部には宅配ボックスが設定されているので、不在の時にも荷物を受け取ることができます。
お金・契約の情報
※「-」と表示されているものは、実際は料金が発生するものもございます。詳細はお問い合わせください。
| 家賃 | 7.2万円 | 管理費・共益費 | 8,000円 |
|---|---|---|---|
| 敷金 | 7.2万円 | 礼金 | 14.4万円 |
| 入居決定でお祝い金最大100,000円 | |||
| 保証金 | - | 償却・敷引 | - |
| 住宅保険料 | - | 更新料 | - |
| 保証会社利用 | 必須 | 保証会社名 | - |
| 保証会社費用 | - | 保証会社備考 | 保証会社利用必 保証料:賃料等の0.5ヶ月分(最低保証料2万円)/月額保証料 賃料等の1.2% |
| 契約形態 | - | 契約期間 | - |
| 入居・引渡期間 | - | 現況 | - |
| 契約備考 | 通勤管理/スーパー(ウィズ)・・・35m コンビニ(セブンイレブン)・・・30m クリーニング屋・・・15m商店街(イセザキモール)・・・340m JR京浜東北線・根岸線「関内」駅も徒歩圏内 イセザキモールにはユニクロやTSUTAYA、ブックオフ、たくさんの飲食店(カフェもあり)があり生活環境充実しています。 合計6.23万円(内訳:(退去時)エアコンクリーニング費用/1台につき1.32万円火災保険(地震特約付き)2.6万円鍵交換代2.31万円) 更新料 新賃料1.00ヶ月分 室内清掃費用 49500円 ワンルーム 普通借家2年 損保【2万円2年】 バストイレ別、バルコニー、エアコン、ガスコンロ対応、クロゼット、フローリング、オートロック、室内洗濯置、シューズボックス、システムキッチン、角住戸、エレベーター、2口コンロ、駐輪場、宅配ボックス、光ファイバー、対面式キッチン、防犯カメラ、保証人不要、24時間緊急通報システム、ネット専用回線、浴室に窓、24時間ゴミ出し可、風除室、敷地内ごみ置き場、都市ガス、BS、年内入居可、年度内入居可、礼金2ヶ月、初期費用カード決済可、家賃カード決済可 入居日:'26年3月中旬 | ||
部屋の情報
| 間取り | ワンルーム | 専有面積 | 30.95m2 |
|---|---|---|---|
| 所在階 / 向き | 4階 / 北東 | バルコニー面積 | 3m2 |
| 水道 / ガス | - | ||
| 設備 | バス・トイレ別、2階以上、オートロック、宅配ボックス、インターネット対応、システムキッチン、エアコン、エレベーター、角部屋、バルコニー、フローリング、2口コンロ、コンロ:ガス、BSアンテナ、洗濯機:室内 | ||
| 当社物件ID | 1167652 | ||
建物の情報
| 建物名 | ベスト伊勢佐木長者町 | ||
|---|---|---|---|
| 所在地 | 神奈川県横浜市中区長者町 | ||
| 交通 | ブルーライン 伊勢佐木長者町駅 徒歩1分 JR京浜東北線 関内駅 徒歩5分 京急本線 日ノ出町駅 徒歩10分 | ||
| 階数 | 12階建 | 総戸数 | 79戸 |
| 築年月 | 1999年11月 / 築27年 | エレベーター | あり |
| 駐車場 | なし | バイク置き場 | - |
| 駐輪場 | あり | 管理人/管理会社 | - |
| 周辺環境 | その他 ウィズ長者町店(その他)まで35m その他 セブンイレブン(コンビニ)まで30m その他 オリジン弁当伊勢佐木長者町店(その他)まで65m その他 100円ローソン(コンビニ)まで85m その他 TSUTAYA羽衣町店(その他)まで355m その他 イセザキモール(商店街)(その他)まで340m | ||
| 建物種別 | マンション | 建物構造 | SRC(鉄骨鉄筋コンクリート) |
この部屋の取扱い不動産会社
| 会社名 | (株)FJネクスト(SUUMO経由) | ||
|---|---|---|---|
| 所在地 | 東京都新宿区西新宿6-5-1 新宿アイランドタワー11階 | 交通 | - |
| 営業時間 | 10:00~19:00 | 定休日 | 年中無休 |
| 免許番号 | 国土交通大臣9976 | 取引態様 | 代理 |
| 不動産会社管理番号 | 100486116373 | 当社管理番号 | 89 |
| 所属団体 | (公社)全日本不動産協会東京都本部会員 | ||
| 公正取引協議会 | (公社)首都圏不動産公正取引協議会加盟 | ||
| 取扱い物件情報 | 物件詳細へ | ||
※各種情報と現状に差異がある場合は、現状優先となります。問い合わせをすることで、より詳しい条件、情報を確認する事ができます。
提供:(株)FJネクスト(SUUMO経由)
この物件が気になったら掲載期限まであと10日
ベスト伊勢佐木長者町に条件(家賃・エリア)が近い物件一覧
| 写真 | 家賃 管理費等 | 敷金 礼金 | 間取り 専有面積 | 築年数 | 最寄り駅 所在地 | キープ | 詳細 |
|---|---|---|---|---|---|---|---|
マンション ヴィルヌーブ(1K/5階) | |||||||
![]() | 9.3万円 6,000円 | 9.3万円 18.6万円 | 1K 25.31m2 | 築22年 | 東急東横線 日吉駅(神奈川) 徒歩9分 東急東横線 元住吉駅 徒歩12分 神奈川県川崎市中原区木月 | 詳細を見る | |
アパート メイプルハウス(1K/1階) | |||||||
![]() | 4.5万円 3,000円 | なし なし | 1K 23.04m2 | 築32年 | 京王相模原線 京王稲田堤駅 徒歩5分 JR南武線 稲田堤駅 徒歩9分 JR南武線 矢野口駅 徒歩15分 神奈川県川崎市多摩区菅 | 詳細を見る | |
アパート ユナイト東門前モンターナの杜(ワンルーム/2階) | |||||||
![]() | 5.75万円 3,500円 | なし なし | ワンルーム 12.49m2 | 築11年 | 京急大師線 東門前駅 徒歩14分 京急大師線 大師橋駅 徒歩17分 京急大師線 川崎大師駅 徒歩20分 神奈川県川崎市川崎区四谷上町 | 詳細を見る | |
アパート ウィステリア本鵠沼(1K/2階) | |||||||
![]() | 5.5万円 なし | 5.5万円 なし | 1K 20.46m2 | 築20年 | 小田急電鉄江ノ島線 本鵠沼駅 徒歩7分 神奈川県藤沢市本鵠沼4丁目 | 詳細を見る | |
アパート COAST TERRACE Ⅱ 逗子新宿(1K/2階) | |||||||
![]() | 7.9万円 3,000円 | 7.9万円 7.9万円 | 1K 20.19m2 | 築1年 | 横須賀線 逗子駅 徒歩10分 神奈川県逗子市新宿3丁目 | 詳細を見る | |
アパート SWEET BEACH(ワンルーム/1階) | |||||||
![]() | 5.6万円 4,000円 | なし なし | ワンルーム 19.63m2 | 築12年 | 京急本線 戸部駅 徒歩13分 京急本線 日ノ出町駅 徒歩14分 JR京浜東北線 桜木町駅 徒歩14分 神奈川県横浜市西区西戸部町 | 詳細を見る | |
アパート 深見台ハウス(1K/1階) | |||||||
![]() | 5.8万円 2,000円 | なし 5.8万円 | 1K 22.35m2 | 築14年 | 小田急江ノ島線 大和駅(神奈川) 徒歩9分 相鉄本線 大和駅(神奈川) 徒歩9分 相鉄本線 瀬谷駅 徒歩27分 神奈川県大和市深見台 | 詳細を見る | |
マンション 竹尾ビル(1K/2階) | |||||||
![]() | 4.6万円 2,000円 | 4.6万円 なし | 1K 17m2 | 築37年 | 小田急電鉄小田原線 生田駅(神奈川) 徒歩1分 小田急電鉄小田原線 読売ランド前駅 徒歩15分 神奈川県川崎市多摩区生田7丁目 | 詳細を見る | |









