賃貸マンション
ハーモニーレジデンス森下ステーションフロントの賃貸物件情報(1K/11階)
| 家賃 | 管理費等 | 敷金 | 礼金 | 間取り | 専有面積 |
|---|---|---|---|---|---|
| 13.4万円 | 1.5万円 | なし | なし | 1K | 25.5m2 |
入居決定でお祝い金最大100,000円
- 保証金
- -
- 償却・敷引
- -
- 築年数
- 築12年
- 所在階
- 11階
- 向き
- 南
Point
スタッフ一同、お客様のご来店をこころよりお待ちしております!
提供:いい部屋ネット大東建託リーシング(株)亀戸店(SUUMO経由)

詳細情報 ハーモニーレジデンス森下ステーションフロント
物件紹介
ハーモニーレジデンス森下ステーションフロントは都営大江戸線森下駅から徒歩5分にあり、駅近で通勤通学に便利なマンションです。
このお部屋は2階以上に位置しているので通行人や周囲の住人からの視線が気になりにくく、建物のエントランスはオートロックがついているので防犯性が高くなっています。
人気の南向きのお部屋。また、フローリングなのでお掃除もラクラク。キッチンはシステムキッチン仕様になっていますので、お料理好きの方にもぴったり。バス・トイレは別なので、のんびりお風呂タイムも楽しめるでしょう。また、雨の日でも浴室乾燥機を使えば、お洗濯も問題ありません。
通信設備面では、インターネット接続が可能です。また、BSアンテナもありますので、おうち時間も充実するでしょう(別途工事、契約料が必要な場合あり)。
建物にはエレベーターがついているので、重い荷物があっても安心。共用部には宅配ボックスが設定されているので、不在の時にも荷物を受け取ることができます。また、ペット飼育の相談ができますので、あなたの大切な家族の一員も快適に暮らせるか、ぜひ確認してみてください。
このお部屋は2階以上に位置しているので通行人や周囲の住人からの視線が気になりにくく、建物のエントランスはオートロックがついているので防犯性が高くなっています。
人気の南向きのお部屋。また、フローリングなのでお掃除もラクラク。キッチンはシステムキッチン仕様になっていますので、お料理好きの方にもぴったり。バス・トイレは別なので、のんびりお風呂タイムも楽しめるでしょう。また、雨の日でも浴室乾燥機を使えば、お洗濯も問題ありません。
通信設備面では、インターネット接続が可能です。また、BSアンテナもありますので、おうち時間も充実するでしょう(別途工事、契約料が必要な場合あり)。
建物にはエレベーターがついているので、重い荷物があっても安心。共用部には宅配ボックスが設定されているので、不在の時にも荷物を受け取ることができます。また、ペット飼育の相談ができますので、あなたの大切な家族の一員も快適に暮らせるか、ぜひ確認してみてください。
お金・契約の情報
※「-」と表示されているものは、実際は料金が発生するものもございます。詳細はお問い合わせください。
| 家賃 | 13.4万円 | 管理費・共益費 | 1.5万円 |
|---|---|---|---|
| 敷金 | なし | 礼金 | なし |
| 入居決定でお祝い金最大100,000円 | |||
| 保証金 | - | 償却・敷引 | - |
| 住宅保険料 | - | 更新料 | - |
| 保証会社利用 | 必須 | 保証会社名 | - |
| 保証会社費用 | - | 保証会社備考 | 保証会社利用必 エムぞう君 初回55%~(最低5.5万円)年間1.1万円(滞納状況により変動有) |
| 契約形態 | - | 契約期間 | - |
| 入居・引渡期間 | - | 現況 | - |
| 入居可能条件 | ペット相談 | ||
| 契約備考 | 普通賃貸借1年契約(更新型)※更新時5%賃料改定が行われますが、2回目以降は更新料はかかりませんので安心して長くお住まいになれます。 短期解約違約金有り 24時間安心サポート料(税込):22,000、室内抗菌処理代(税込):17,600、事務手数料(税込):11,000 ペット:可追加敷金1ヶ月 中型迄体長40cm10kgまでの犬猫1匹●契約後の追加は手数料2万 合計2.2万円(内訳:鍵交換代2.2万円) 1K 二人入居可/子供可/ペット相談 損保【要】 バストイレ別、バルコニー、ガスコンロ対応、クロゼット、フローリング、浴室乾燥機、オートロック、室内洗濯置、システムキッチン、南向き、温水洗浄便座、エレベーター、駐輪場、宅配ボックス、光ファイバー、ペット相談、分譲賃貸、バイク置場、24時間緊急通報システム、プロパンガス、BS、IT重説対応物件 入居日:'26年4月中旬 | ||
部屋の情報
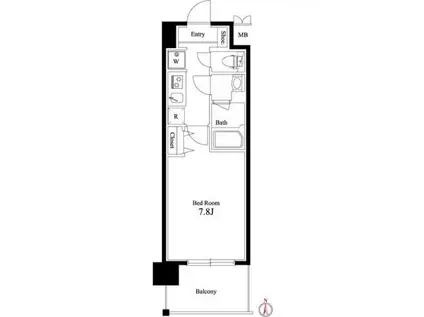
| 間取り | 1K | 専有面積 | 25.5m2 |
|---|---|---|---|
| 所在階 / 向き | 11階 / 南 | バルコニー面積 | - |
| 水道 / ガス | - | ||
| 設備 | バス・トイレ別、2階以上、オートロック、宅配ボックス、浴室乾燥機、インターネット対応、システムキッチン、エレベーター、温水洗浄便座、南向き、バルコニー、フローリング、コンロ:ガス、BSアンテナ、洗濯機:室内 | ||
| 当社物件ID | 160322867 | ||
建物の情報
| 建物名 | ハーモニーレジデンス森下ステーションフロント | ||
|---|---|---|---|
| 所在地 | 東京都江東区新大橋 | ||
| 交通 | 都営大江戸線 森下駅(東京) 徒歩5分 都営新宿線 浜町駅 徒歩12分 JR総武線 両国駅 徒歩16分 | ||
| 階数 | 11階建 | 総戸数 | - |
| 築年月 | 2014年11月 / 築12年 | エレベーター | あり |
| 駐車場 | なし | バイク置き場 | あり |
| 駐輪場 | あり | 管理人/管理会社 | - |
| 周辺環境 | その他 森下駅(その他)まで194m その他 錦糸町(その他)まで2455m その他 住吉(東京都)(その他)まで1850m その他 新日本橋(その他)まで2511m その他 新御徒町(その他)まで3398m その他 小伝馬町駅(その他)まで2087m | ||
| 建物種別 | マンション | 建物構造 | RC(鉄筋コンクリート) |
この部屋の取扱い不動産会社
| 会社名 | いい部屋ネット大東建託リーシング(株)池袋東口店(SUUMO経由) | ||
|---|---|---|---|
| 所在地 | 東京都豊島区南池袋1-21-7 イー・パートナーズ池袋駅前ビル 8階 | 交通 | - |
| 営業時間 | 10:00~12:30・13:30~18:00 | 定休日 | 火・水 |
| 免許番号 | 国土交通大臣9120 | 取引態様 | 仲介 |
| 不動産会社管理番号 | 100486011550 | 当社管理番号 | 89 |
| 所属団体 | (公財)日本賃貸住宅管理協会会員 | ||
| 公正取引協議会 | (公社)首都圏不動産公正取引協議会加盟 | ||
| 取扱い物件情報 | 物件詳細へ | ||
※各種情報と現状に差異がある場合は、現状優先となります。問い合わせをすることで、より詳しい条件、情報を確認する事ができます。
提供:いい部屋ネット大東建託リーシング(株)池袋東口店(SUUMO経由)
この物件が気になったら掲載期限まであと10日
ハーモニーレジデンス森下ステーションフロントに条件(家賃・エリア)が近い物件一覧
| 写真 | 家賃 管理費等 | 敷金 礼金 | 間取り 専有面積 | 築年数 | 最寄り駅 所在地 | キープ | 詳細 |
|---|---|---|---|---|---|---|---|
マンション プレール・ドゥーク東京CANAL(1K/6階) | |||||||
![]() | 10.6万円 1.1万円 | なし 10.6万円 | 1K 22.34m2 | 築20年 | 京葉線 潮見駅 徒歩7分 東京地下鉄有楽町線 豊洲駅 徒歩22分 東京地下鉄東西線 木場駅 徒歩23分 東京都江東区枝川3丁目 | 詳細を見る | |
マンション ルーブル南馬込伍番館(2DK/2階) | |||||||
![]() | 15.85万円 1.65万円 | なし 15.85万円 | 2DK 40.97m2 | 築12年 | JR京浜東北線 大森駅(東京) 徒歩12分 都営浅草線 馬込駅 徒歩13分 JR横須賀線 西大井駅 徒歩21分 東京都大田区南馬込 | 詳細を見る | |
マンション グランドコンシェルジュ馬込アジールコート(1DK/3階) | |||||||
![]() | 11.2万円 5,000円 | 11.2万円 11.2万円 | 1DK 26.62m2 | 築6年 | 都営浅草線 馬込駅 徒歩10分 都営浅草線 西馬込駅 徒歩12分 東急大井町線 荏原町駅 徒歩19分 東京都大田区中馬込 | 詳細を見る | |
アパート M SONIA KUGAHARA(ワンルーム/1階) | |||||||
![]() | 8.8万円 3,000円 | 8.8万円 8.8万円 | ワンルーム 24.64m2 | 築1年 | 東急池上線 久が原駅 徒歩8分 東急池上線 御嶽山駅 徒歩9分 東急多摩川線 鵜の木駅 徒歩13分 東京都大田区西嶺町 | 詳細を見る | |
マンション SEED JUST B-BASE Ⅱ(1LDK/2階) | |||||||
![]() | 8.8万円 1.5万円 | 8.8万円 8.8万円 | 1LDK 23.07m2 | 築1年 | 東京モノレール羽田 昭和島駅 徒歩11分 京浜急行電鉄本線 梅屋敷駅(東京) 徒歩19分 東京都大田区大森南4丁目 | 詳細を見る | |





