賃貸マンション
京阪電気鉄道鴨東線 出町柳駅 徒歩7分 6階建 築18年の賃貸物件情報(2LDK/5階)
| 家賃 | 管理費等 | 敷金 | 礼金 | 間取り | 専有面積 |
|---|---|---|---|---|---|
| 18万円 | 1.6万円 | なし | 36万円 | 2LDK | 60.25m2 |
入居決定でお祝い金最大100,000円
Point
稀少な出町築浅ファミリー物件 交通買物至便、環境良好な河原町今出川の築浅2LDK。京極学区
提供:株式会社 京都ライフ 北山店(賃貸スモッカ経由)

詳細情報 京阪電気鉄道鴨東線 出町柳駅 徒歩7分 6階建 築18年
物件紹介
京阪電気鉄道鴨東線出町柳駅から徒歩7分にあり、駅近で通勤通学に便利なマンションです。
このお部屋は2階以上に位置しているので通行人や周囲の住人からの視線が気になりにくく、建物のエントランスはオートロックがついているので防犯性が高くなっています。
人気の南向き・フローリングのお部屋。角部屋でもあるため、周囲の居住者の生活音も気になりにくい場所です。キッチンはシステムキッチン仕様になっていますので、お料理好きの方にもぴったり。また、バス・トイレは別で、のんびりお風呂タイムも楽しめるでしょう。
通信設備面では、インターネット接続が可能です。また、BSアンテナもありますので、おうち時間も充実するでしょう(別途工事、契約料が必要な場合あり)。
建物にはエレベーターがついているので、重い荷物があっても安心。
このお部屋は2階以上に位置しているので通行人や周囲の住人からの視線が気になりにくく、建物のエントランスはオートロックがついているので防犯性が高くなっています。
人気の南向き・フローリングのお部屋。角部屋でもあるため、周囲の居住者の生活音も気になりにくい場所です。キッチンはシステムキッチン仕様になっていますので、お料理好きの方にもぴったり。また、バス・トイレは別で、のんびりお風呂タイムも楽しめるでしょう。
通信設備面では、インターネット接続が可能です。また、BSアンテナもありますので、おうち時間も充実するでしょう(別途工事、契約料が必要な場合あり)。
建物にはエレベーターがついているので、重い荷物があっても安心。
お金・契約の情報
※「-」と表示されているものは、実際は料金が発生するものもございます。詳細はお問い合わせください。
| 家賃 | 18万円 | 管理費・共益費 | 1.6万円 |
|---|---|---|---|
| 敷金 | なし | 礼金 | 36万円 |
| 入居決定でお祝い金最大100,000円 | |||
| 保証金 | - | 償却・敷引 | - |
| 住宅保険料 | 住宅保険料あり | 更新料 | - |
| 契約形態 | - | 契約期間 | 2年 |
| 入居・引渡期間 | 即時 | 現況 | 空室 |
| 契約備考 | 京阪出町柳駅まで徒歩7分の2LDKマンションです。叡山、京阪、地下鉄のトリプルアクセス。嬉しい3点セパレートに追い焚き機能付浴室、システムキッチンなど充実の設備。オートロック、TVホンでセキュリティも安心です。コンビニ、スーパー、ホームセンターなど近くにあって便利ですよ。光ファイバー対応しています。 高松安心サポート:1,000円 更新料:50,000円 保証会社:利用必須 初回:月額賃料等の60%、月額:支払い手数料として月額賃料等の1%((初回引落時のみ月額総額の61%)) その他設備/条件:コンロ2口以上、独立洗面台、TVドアホン、即入居可 | ||
部屋の情報
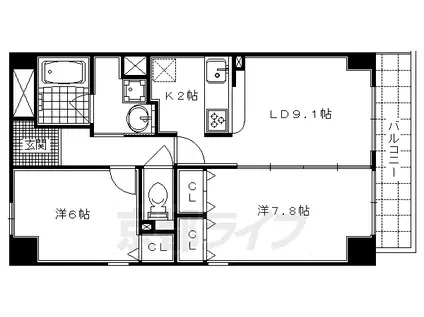
| 間取り | 2LDK | 専有面積 | 60.25m2 |
|---|---|---|---|
| 間取り詳細 | 洋室(7.8帖)、洋室(6帖)、LD(9.1帖)、K(2帖) | ||
| 所在階 / 向き | 5階 / 南 | バルコニー面積 | - |
| 水道 / ガス | - | ||
| 設備 | バス・トイレ別、2階以上、オートロック、インターネット対応、システムキッチン、エレベーター、南向き、角部屋、バルコニー、フローリング、オール電化、コンロ:IH、BSアンテナ、洗濯機:室内 | ||
| 当社物件ID | 159558396 | ||
建物の情報
| 建物名 | 京阪電気鉄道鴨東線 出町柳駅 徒歩7分 6階建 築18年 | ||
|---|---|---|---|
| 所在地 | 京都府京都市上京区大猪熊町 | ||
| 交通 | 京阪電気鉄道鴨東線 出町柳駅 徒歩7分 京都市烏丸線 今出川駅 徒歩11分 | ||
| 階数 | 6階建 | 総戸数 | - |
| 築年月 | 2008年03月 / 築18年 | エレベーター | あり |
| 駐車場 | - | バイク置き場 | - |
| 駐輪場 | あり | 管理人/管理会社 | - |
| 建物種別 | マンション | 建物構造 | RC(鉄筋コンクリート) |
この部屋の取扱い不動産会社
| 会社名 | 株式会社 京都ライフ 北山店(賃貸スモッカ経由) | ||
|---|---|---|---|
| 所在地 | 京都市北区上賀茂岩ヶ垣内町98-2 | 交通 | - |
| 営業時間 | - | 定休日 | - |
| 免許番号 | 京都府知事(11)第6353号 | 取引態様 | 仲介 |
| 不動産会社管理番号 | kyotolife_29307-502-13 | 当社管理番号 | 463 |
| 所属団体 | 京都府宅地建物取引業協会\n公益社団法人近畿地区不動産公正取引協議会 | ||
| 公正取引協議会 | 全国宅地建物取引業保証協会 | ||
| 取扱い物件情報 | 物件詳細へ | ||
※各種情報と現状に差異がある場合は、現状優先となります。問い合わせをすることで、より詳しい条件、情報を確認する事ができます。
提供:株式会社 京都ライフ 北山店(賃貸スモッカ経由)
この物件が気になったら掲載期限まであと6日
京阪電気鉄道鴨東線 出町柳駅 徒歩7分 6階建 築18年に条件(家賃・エリア)が近い物件一覧
| 写真 | 家賃 管理費等 | 敷金 礼金 | 間取り 専有面積 | 築年数 | 最寄り駅 所在地 | キープ | 詳細 |
|---|---|---|---|---|---|---|---|
マンション 京都市烏丸線 丸太町駅(京都市営) 徒歩15分 築8年(2SLDK/1階) | |||||||
![]() | 16.9万円 1万円 | 16.9万円 16.9万円 | 2SLDK 74.47m2 | 築8年 | 京都市烏丸線 丸太町駅(京都市営) 徒歩15分 京都市東西線 二条城前駅 徒歩15分 京都府京都市上京区北蟹屋町 | 詳細を見る | |
マンション 京都市烏丸線 今出川駅 徒歩10分 築44年(3LDK/2階) | |||||||
![]() | 12.5万円 なし | 12.5万円 12.5万円 | 3LDK 71.45m2 | 築44年 | 京都市烏丸線 今出川駅 徒歩10分 京都市烏丸線 丸太町駅(京都市営) 徒歩20分 京都府京都市上京区竪富田町 | 詳細を見る | |
マンション グランディールA&N出町柳(2LDK/2階) | |||||||
![]() | 21.3万円 なし | 21.3万円 30万円 | 2LDK 82.1m2 | 築2年 | 京阪鴨東線 出町柳駅 徒歩2分 叡山電鉄叡山本線 出町柳駅 徒歩2分 叡山電鉄叡山本線 元田中駅 徒歩12分 京都府京都市左京区田中上柳町 | 詳細を見る | |
一戸建て 京阪電気鉄道鴨東線 出町柳駅 徒歩30分 築77年(3LDK) | |||||||
![]() | 14万円 なし | 14万円 14万円 | 3LDK 115.5m2 | 築77年 | 京阪電気鉄道鴨東線 出町柳駅 徒歩30分 京都府京都市左京区浄土寺南田町 | 詳細を見る | |
アパート シャーメゾン室町御所西(2LDK/1階) | |||||||
![]() | 16.5万円 6,000円 | 10万円 35万円 | 2LDK 56.22m2 | 築3年 | 京都市烏丸線 今出川駅 徒歩8分 京都市烏丸線 丸太町駅(京都市営) 徒歩11分 京都府京都市上京区花立町 | 詳細を見る | |
マンション 京都市烏丸線 今出川駅 徒歩13分 築1年(ワンルーム/3階) | |||||||
![]() | 19.6万円 9,000円 | 5万円 22万円 | ワンルーム 62.22m2 | 築1年 | 京都市烏丸線 今出川駅 徒歩13分 京都市烏丸線 烏丸御池駅 徒歩23分 京都府京都市上京区仲之町 | 詳細を見る | |
マンション 京都市烏丸線 今出川駅 徒歩13分 築5年(1LDK/2階) | |||||||
![]() | 11.3万円 1.355万円 | なし 11.3万円 | 1LDK 45m2 | 築5年 | 京都市烏丸線 今出川駅 徒歩13分 京都市烏丸線 北大路駅 徒歩19分 京都府京都市上京区寺之内竪町 | 詳細を見る | |
マンション 京都市烏丸線 今出川駅 徒歩15分 築19年(1LDK/11階) | |||||||
![]() | 10.8万円 7,000円 | なし なし | 1LDK 44.9m2 | 築19年 | 京都市烏丸線 今出川駅 徒歩15分 京都市烏丸線 丸太町駅(京都市営) 徒歩15分 京都府京都市上京区二町目 | 詳細を見る | |









