賃貸マンション
ビレッジハウス苗木2号棟の賃貸物件情報(3DK/5階)
| 家賃 | 管理費等 | 敷金 | 礼金 | 間取り | 専有面積 |
|---|---|---|---|---|---|
| 3.67万円 | なし | なし | なし | 3DK | 54.63m2 |
入居決定でお祝い金最大100,000円
- 保証金
- -
- 償却・敷引
- -
- 築年数
- 築44年
- 所在階
- 5階
- 向き
- 南
Point
まずはお問い合わせ!
不動産会社は街のプロ、あなたに合った物件がきっと見つかります。
提供:ビレッジハウス・マネジメント株式会社 住まい相談センター

詳細情報 ビレッジハウス苗木2号棟
物件紹介
このお部屋は2階以上に位置しているので、通行人や周囲の住人からの視線が気になりにくく、防犯面でも安心です。
人気の南向きのお部屋。バス・トイレ別の仕様で、のんびりお風呂タイムも楽しめます。
ペット飼育の相談ができますので、あなたの大切な家族の一員も快適に暮らせるか、ぜひ確認してみてください。
人気の南向きのお部屋。バス・トイレ別の仕様で、のんびりお風呂タイムも楽しめます。
ペット飼育の相談ができますので、あなたの大切な家族の一員も快適に暮らせるか、ぜひ確認してみてください。
お金・契約の情報
※「-」と表示されているものは、実際は料金が発生するものもございます。詳細はお問い合わせください。
| 家賃 | 3.67万円 | 管理費・共益費 | なし |
|---|---|---|---|
| 敷金 | なし | 礼金 | なし |
| フリーレント | 0ヶ月 | ||
| 入居決定でお祝い金最大100,000円 | |||
| 保証金 | - | 償却・敷引 | - |
| 住宅保険料 | 1万円(2年) | 更新料 | - |
| 保証会社利用 | - | 保証会社名 | - |
| 保証会社費用 | - | 保証会社備考 | - |
| 契約形態 | - | 契約期間 | - |
| 入居・引渡期間 | - | 現況 | 空室 |
| 入居可能条件 | 2人入居可、高齢者相談、学生可、ペット相談 | ||
| 契約備考 | 契約種類:普通契約、24時間緊急対応、洗面台 | ||
部屋の情報
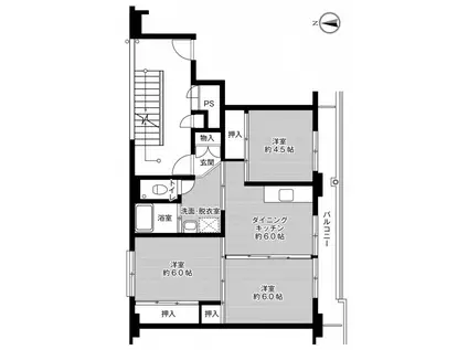
| 間取り | 3DK | 専有面積 | 54.63m2 |
|---|---|---|---|
| 所在階 / 向き | 5階 / 南 | バルコニー面積 | - |
| 水道 / ガス | - | ||
| 設備 | バス・トイレ別、追い焚き、エアコン、バルコニー、給湯、洗濯機:室内 | ||
| 当社物件ID | 25909838 | ||
建物の情報
| 建物名 | ビレッジハウス苗木2号棟 | ||
|---|---|---|---|
| 所在地 | 岐阜県中津川市苗木4547-121 | ||
| 交通 | 中央本線 美乃坂本駅 バス乗車時間:15分 上苗木バス停で下車 徒歩85分 中央本線 中津川駅 バス乗車時間:15分 最寄りバス停で下車 徒歩88分 | ||
| 階数 | 5階建 | 総戸数 | - |
| 築年月 | 1983年02月 / 築44年 | エレベーター | - |
| 駐車場 | 空有 3,300円/月 円 | バイク置き場 | - |
| 駐輪場 | - | 管理人/管理会社 | 日勤 |
| 建物種別 | マンション | 建物構造 | RC(鉄筋コンクリート) |
この部屋の取扱い不動産会社
| 会社名 | ビレッジハウス・マネジメント株式会社 住まい相談センター | ||
|---|---|---|---|
| 所在地 | 東京都港区虎ノ門4丁目3-13 ヒューリック神谷町ビル4階 | 交通 | 東京メトロ日比谷線「神谷町駅」 徒歩2分 |
| 営業時間 | 平日:9:00-18:30/土日祝:9:00-18:00 | 定休日 | 年中無休(年末年始を除く) |
| 免許番号 | 東京都知事(2)第100758号 | 取引態様 | 貸主 |
| 不動産会社管理番号 | 00013923838 | 当社管理番号 | 459 |
| 所属団体 | 公益社団法人東京都宅地建物取引業協会会員 日本賃貸住宅管理協会会員 | ||
| 取扱い物件情報 | 物件詳細へ | ||
※各種情報と現状に差異がある場合は、現状優先となります。問い合わせをすることで、より詳しい条件、情報を確認する事ができます。
提供:ビレッジハウス・マネジメント株式会社 住まい相談センター
この物件が気になったら掲載期限まであと13日
ビレッジハウス苗木2号棟に条件(家賃・エリア)が近い物件一覧
| 写真 | 家賃 管理費等 | 敷金 礼金 | 間取り 専有面積 | 築年数 | 最寄り駅 所在地 | キープ | 詳細 |
|---|---|---|---|---|---|---|---|
マンション レジデンス落合A(2DK/2階) | |||||||
![]() | 5.1万円 5,000円 | なし なし | 2DK 44.72m2 | 築25年 | JR中央本線 落合川駅 徒歩27分 岐阜県中津川市落合 | 詳細を見る | |
マンション フラットサンパール(1K/2階) | |||||||
![]() | 3.8万円 なし | なし なし | 1K 22.68m2 | 築37年 | JR中央本線 恵那駅 徒歩17分 岐阜県恵那市大井町 | 詳細を見る | |
アパート サンフォレスト(2LDK/2階) | |||||||
![]() | 5.6万円 3,000円 | 5.6万円 なし | 2LDK 49.5m2 | 築25年 | JR中央本線 恵那駅 徒歩25分 岐阜県恵那市大井町 | 詳細を見る | |
マンション メゾン伊藤(2DK/3階) | |||||||
![]() | 4.6万円 なし | なし なし | 2DK 38.88m2 | 築38年 | JR中央本線 中津川駅 徒歩44分 岐阜県中津川市駒場 | 詳細を見る | |
マンション SURPLUS TWO NIMURA(2DK/1階) | |||||||
![]() | 4.6万円 3,000円 | なし なし | 2DK 44.72m2 | 築28年 | JR中央本線 中津川駅 徒歩29分 岐阜県中津川市中津川 | 詳細を見る | |
マンション ニューハイツ明峰(ワンルーム/1階) | |||||||
![]() | 3.2万円 3,000円 | なし なし | ワンルーム 19m2 | 築32年 | 岐阜県中津川市付知町 | 詳細を見る | |
アパート メゾン.ド.シエル(2LDK/2階) | |||||||
![]() | 5.2万円 3,300円 | なし なし | 2LDK 51.67m2 | 築21年 | JR中央本線 中津川駅 徒歩20分 岐阜県中津川市中津川 | 詳細を見る | |








