賃貸マンション
プラウド元住吉ガーデンズの賃貸物件情報(3LDK/1階)
| 家賃 | 管理費等 | 敷金 | 礼金 | 間取り | 専有面積 |
|---|---|---|---|---|---|
| 24万円 | 1.5万円 | 48万円 | 24万円 | 3LDK | 72.68m2 |
入居決定でお祝い金最大100,000円
- 保証金
- -
- 償却・敷引
- -
- 築年数
- 築3年
- 所在階
- 1階
- 向き
- 西
Point
【ネットに掲載しきれない情報も多数ございます!LINE対応OK!全物件契約金クレジット払い可能!他社様掲載の物件もご紹介可能なのでまとめてご案内させていただきます!お気軽にお問い合わせくださいませ】
提供:(株)アクアトゥエンティワン武蔵小杉店(SUUMO経由)

詳細情報 プラウド元住吉ガーデンズ
物件紹介
プラウド元住吉ガーデンズは東急東横線元住吉駅から徒歩8分にあり、駅近で通勤通学に便利なマンションです。
建物のエントランスはオートロックがついており、インターホンにはTVモニタもついているため、相手の顔を確認してから来客対応することができます。
人気の角部屋で周囲の居住者の生活音も気になりにくく、また、フローリングのお部屋なのでお掃除もラクラク。室内にはウォークインクローゼットがありますので、たくさんの荷物も効率的に収納ができます。キッチンはシステムキッチン仕様になっていますので、お料理好きの方にもぴったり。バス・トイレは別なので、のんびりお風呂タイムも楽しめるでしょう。また、雨の日でも浴室乾燥機を使えば、お洗濯も問題ありません。
通信設備面ではCATVに対応しているので、おうち時間も充実するでしょう(別途工事、契約料が必要な場合あり)。
建物にはエレベーターがついているので、重い荷物があっても安心。共用部には宅配ボックスが設定されているので、不在の時にも荷物を受け取ることができます。
建物のエントランスはオートロックがついており、インターホンにはTVモニタもついているため、相手の顔を確認してから来客対応することができます。
人気の角部屋で周囲の居住者の生活音も気になりにくく、また、フローリングのお部屋なのでお掃除もラクラク。室内にはウォークインクローゼットがありますので、たくさんの荷物も効率的に収納ができます。キッチンはシステムキッチン仕様になっていますので、お料理好きの方にもぴったり。バス・トイレは別なので、のんびりお風呂タイムも楽しめるでしょう。また、雨の日でも浴室乾燥機を使えば、お洗濯も問題ありません。
通信設備面ではCATVに対応しているので、おうち時間も充実するでしょう(別途工事、契約料が必要な場合あり)。
建物にはエレベーターがついているので、重い荷物があっても安心。共用部には宅配ボックスが設定されているので、不在の時にも荷物を受け取ることができます。
お金・契約の情報
※「-」と表示されているものは、実際は料金が発生するものもございます。詳細はお問い合わせください。
| 家賃 | 24万円 | 管理費・共益費 | 1.5万円 |
|---|---|---|---|
| 敷金 | 48万円 | 礼金 | 24万円 |
| 入居決定でお祝い金最大100,000円 | |||
| 保証金 | - | 償却・敷引 | - |
| 住宅保険料 | - | 更新料 | - |
| 保証会社利用 | 必須 | 保証会社名 | - |
| 保証会社費用 | - | 保証会社備考 | 保証会社利用必 初回:100% 月々:2% |
| 契約形態 | 定期借家 | 契約期間 | 3年 |
| 入居・引渡期間 | - | 現況 | - |
| 契約備考 | 地域に精通したスタッフがご案内致します。お気軽にお問い合わせ下さい。LINEも可能です! 合計1.98万円(内訳:除菌施工料19800円) リロサポプラス2500円/月 3LDK 定期借家3年 損保【2.55万円2年】 バストイレ別、エアコン、ガスコンロ対応、フローリング、シャワー付洗面台、TVインターホン、浴室乾燥機、オートロック、室内洗濯置、システムキッチン、追焚機能浴室、角住戸、温水洗浄便座、エレベーター、洗面所独立、洗面化粧台、駐輪場、宅配ボックス、CATV、3口以上コンロ、対面式キッチン、照明付、分譲賃貸、オートバス、ウォークインクロゼット、駅まで平坦、敷金2ヶ月、食器洗乾燥機、平坦地、築3年以内、3駅以上利用可、3沿線以上利用可、駅徒歩10分以内、敷地内ごみ置き場、都市ガス、礼金1ヶ月、初期費用カード決済可 入居日:'26年4月上旬 | ||
部屋の情報
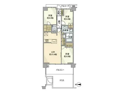
| 間取り | 3LDK | 専有面積 | 72.68m2 |
|---|---|---|---|
| 所在階 / 向き | 1階 / 西 | バルコニー面積 | - |
| 水道 / ガス | - | ||
| 設備 | バス・トイレ別、オートロック、テレビドアホン、宅配ボックス、浴室乾燥機、ウォークインクローゼット、追い焚き、システムキッチン、エアコン、エレベーター、温水洗浄便座、角部屋、フローリング、洗髪洗面化粧台、2口コンロ、コンロ:ガス、CATV、洗濯機:室内 | ||
| 当社物件ID | 160415741 | ||
建物の情報
| 建物名 | プラウド元住吉ガーデンズ | ||
|---|---|---|---|
| 所在地 | 神奈川県川崎市中原区木月住吉町 | ||
| 交通 | 東急東横線 元住吉駅 徒歩8分 JR横須賀線 武蔵小杉駅 徒歩13分 JR南武線 向河原駅 徒歩16分 | ||
| 階数 | 6階建 | 総戸数 | - |
| 築年月 | 2023年03月 / 築3年 | エレベーター | あり |
| 駐車場 | 空有 11000円 | バイク置き場 | - |
| 駐輪場 | あり | 管理人/管理会社 | - |
| 周辺環境 | その他 マックスバリュ エクスプレス木月住吉店(スーパー)まで327m その他 川崎市中原平和公園(公園)まで408m その他 川崎木月郵便局(郵便局)まで387m その他 かりやど保育園(幼稚園・保育園)まで389m その他 セブンイレブン 川崎中原市ノ坪店(コンビニ)まで468m その他 ローソン 府中街道中丸子店(コンビニ)まで512m | ||
| 建物種別 | マンション | 建物構造 | RC(鉄筋コンクリート) |
この部屋の取扱い不動産会社
| 会社名 | (株)アクアトゥエンティワン日吉店(SUUMO経由) | ||
|---|---|---|---|
| 所在地 | 神奈川県横浜市港北区日吉本町1-3-1 | 交通 | - |
| 営業時間 | 10:00~18:30 | 定休日 | 1~3月は定休日なし |
| 免許番号 | 神奈川県知事24536 | 取引態様 | 仲介 |
| 不動産会社管理番号 | 100488728007 | 当社管理番号 | 89 |
| 所属団体 | (公社)全日本不動産協会神奈川県本部会員 | ||
| 公正取引協議会 | (公社)首都圏不動産公正取引協議会加盟 | ||
| 取扱い物件情報 | 物件詳細へ | ||
※各種情報と現状に差異がある場合は、現状優先となります。問い合わせをすることで、より詳しい条件、情報を確認する事ができます。
提供:(株)アクアトゥエンティワン日吉店(SUUMO経由)
この物件が気になったら掲載期限まであと10日
プラウド元住吉ガーデンズに条件(家賃・エリア)が近い物件一覧
| 写真 | 家賃 管理費等 | 敷金 礼金 | 間取り 専有面積 | 築年数 | 最寄り駅 所在地 | キープ | 詳細 |
|---|---|---|---|---|---|---|---|
アパート D PAINA 市場下町(2LDK/1階) | |||||||
![]() | 16.3万円 6,000円 | なし 32.6万円 | 2LDK 56.4m2 | 新築 | 京浜急行電鉄本線 鶴見市場駅 徒歩6分 神奈川県横浜市鶴見区市場下町 | 詳細を見る | |
マンション ライムライト松風台3(3LDK/4階) | |||||||
![]() | 21.5万円 なし | 43万円 なし | 3LDK 74.58m2 | 築29年 | 東急田園都市線 青葉台駅 徒歩8分 神奈川県横浜市青葉区松風台 | 詳細を見る | |
マンション ハイランド磯子I(3DK/9階) | |||||||
![]() | 14.5万円 7,000円 | なし なし | 3DK 60.65m2 | 築26年 | JR根岸線 磯子駅 徒歩3分 京急本線 屏風浦駅 徒歩13分 JR根岸線 新杉田駅 徒歩20分 神奈川県横浜市磯子区森 | 詳細を見る | |
アパート アイル井ヶ(2LDK/1階) | |||||||
![]() | 16.3万円 5,000円 | 16.3万円 16.3万円 | 2LDK 51.57m2 | 築1年 | 京浜急行電鉄本線 井土ケ谷駅 徒歩7分 神奈川県横浜市南区井土ケ谷中町 | 詳細を見る | |
マンション コンフォーザ(2LDK/4階) | |||||||
![]() | 26.3万円 1.5万円 | なし 26.3万円 | 2LDK 69.85m2 | 築1年 | 東急東横線 元住吉駅 徒歩11分 東急東横線 武蔵小杉駅 徒歩13分 JR南武線 向河原駅 徒歩17分 神奈川県川崎市中原区木月住吉町 | 詳細を見る | |
マンション JP NOIE 横浜平沼(1LDK/9階) | |||||||
![]() | 15.3万円 2万円 | 15.3万円 22.95万円 | 1LDK 40.04m2 | 築2年 | 相鉄本線 平沼橋駅 徒歩2分 京急本線 戸部駅 徒歩7分 JR京浜東北線 横浜駅 徒歩12分 神奈川県横浜市西区平沼 | 詳細を見る | |
マンション ケーディーエックスレジデンス横濱紅葉坂(2LDK/4階) | |||||||
![]() | 29.1万円 1.5万円 | 29.1万円 43.65万円 | 2LDK 59.48m2 | 築5年 | ブルーライン 桜木町駅 徒歩7分 京急本線 日ノ出町駅 徒歩12分 みなとみらい線 みなとみらい駅 徒歩15分 神奈川県横浜市西区紅葉ケ丘 | 詳細を見る | |
マンション THE TACT YOKOHAMA(1LDK/10階) | |||||||
![]() | 14.4万円 1.5万円 | 14.4万円 14.4万円 | 1LDK 44.35m2 | 築8年 | 京急本線 日ノ出町駅 徒歩4分 ブルーライン 伊勢佐木長者町駅 徒歩6分 JR京浜東北線 関内駅 徒歩9分 神奈川県横浜市中区長者町 | 詳細を見る | |





/105x80-f1-q70-wp1)



