賃貸アパート
コーポ滝ノ上1号棟の賃貸物件情報(3DK/2階)
| 家賃 | 管理費等 | 敷金 | 礼金 | 間取り | 専有面積 |
|---|---|---|---|---|---|
| 4.5万円 | なし | 4.5万円 | なし | 3DK | 42m2 |
入居決定でお祝い金最大100,000円
Point
かわいいらしい黄色の建物です♪♪和室二間続きの使いやすい間取り♪キッチンを新しく交換しました!
提供:ピタットハウスいわき店(株)サンアロープラン(SUUMO経由)

詳細情報 コーポ滝ノ上1号棟
物件紹介
コーポ滝ノ上1号棟はJR常磐線泉駅から徒歩7分にあり、駅近で通勤通学に便利なアパートです。
このお部屋は2階以上に位置しているので、通行人や周囲の住人からの視線が気になりにくく、防犯面でも安心です。
人気の南向きのお部屋。角部屋でもあるため、周囲の居住者の生活音も気になりにくい場所です。バス・トイレ別の仕様で、のんびりお風呂タイムも楽しめます。
このお部屋は2階以上に位置しているので、通行人や周囲の住人からの視線が気になりにくく、防犯面でも安心です。
人気の南向きのお部屋。角部屋でもあるため、周囲の居住者の生活音も気になりにくい場所です。バス・トイレ別の仕様で、のんびりお風呂タイムも楽しめます。
お金・契約の情報
※「-」と表示されているものは、実際は料金が発生するものもございます。詳細はお問い合わせください。
| 家賃 | 4.5万円 | 管理費・共益費 | なし |
|---|---|---|---|
| 敷金 | 4.5万円 | 礼金 | なし |
| 入居決定でお祝い金最大100,000円 | |||
| 保証金 | - | 償却・敷引 | - |
| 住宅保険料 | - | 更新料 | - |
| 保証会社利用 | 必須 | 保証会社名 | - |
| 保証会社費用 | - | 保証会社備考 | 保証会社利用必 その他 アーク賃貸保証(保証委託料36.264円) |
| 契約形態 | - | 契約期間 | - |
| 入居・引渡期間 | 即時 | 現況 | - |
| 契約備考 | 巡回管理 3DK 損保【要】 バストイレ別、バルコニー、エアコン、ガスコンロ対応、南向き、角住戸、即入居可、礼金不要、最上階、駐車場1台無料、駅徒歩10分以内、プロパンガス | ||
部屋の情報
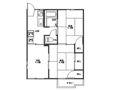
| 間取り | 3DK | 専有面積 | 42m2 |
|---|---|---|---|
| 所在階 / 向き | 2階 / 南 | バルコニー面積 | - |
| 水道 / ガス | - | ||
| 設備 | バス・トイレ別、2階以上、エアコン、南向き、角部屋、バルコニー、コンロ:ガス | ||
| 当社物件ID | 159154683 | ||
建物の情報
| 建物名 | コーポ滝ノ上1号棟 | ||
|---|---|---|---|
| 所在地 | 福島県いわき市泉町 | ||
| 交通 | JR常磐線 泉駅(JR) 徒歩7分 | ||
| 階数 | 2階建 | 総戸数 | 8戸 |
| 築年月 | 1986年03月 / 築41年 | エレベーター | - |
| 駐車場 | 空有 平置駐 | バイク置き場 | - |
| 駐輪場 | - | 管理人/管理会社 | - |
| 周辺環境 | その他 いわき市立泉小学校(小学校)まで791m その他 私立いわき秀英中学校(中学校)まで1347m その他 いわき市立泉中学校(中学校)まで1229m その他 泉幼稚園(幼稚園・保育園)まで525m その他 私立いわき秀英高校(高校・高専)まで1347m その他 双葉町役場いわき支所(役所)まで7019m | ||
| 建物種別 | アパート | 建物構造 | 軽量鉄骨造 |
この部屋の取扱い不動産会社
| 会社名 | ピタットハウスいわき店(株)サンアロープラン(SUUMO経由) | ||
|---|---|---|---|
| 所在地 | 福島県いわき市小名浜岡小名字反町 10 | 交通 | - |
| 営業時間 | 9:00~18:00 | 定休日 | 水曜日・木曜日 |
| 免許番号 | 福島県知事80253 | 取引態様 | 仲介 |
| 不動産会社管理番号 | 100448645786 | 当社管理番号 | 89 |
| 所属団体 | (公社)福島県宅地建物取引業協会会員 | ||
| 公正取引協議会 | 東北地区不動産公正取引協議会加盟 | ||
| 取扱い物件情報 | 物件詳細へ | ||
※各種情報と現状に差異がある場合は、現状優先となります。問い合わせをすることで、より詳しい条件、情報を確認する事ができます。
提供:ピタットハウスいわき店(株)サンアロープラン(SUUMO経由)
この物件が気になったら掲載期限まであと10日
コーポ滝ノ上1号棟に条件(家賃・エリア)が近い物件一覧
| 写真 | 家賃 管理費等 | 敷金 礼金 | 間取り 専有面積 | 築年数 | 最寄り駅 所在地 | キープ | 詳細 |
|---|---|---|---|---|---|---|---|
アパート SK宮田 北棟(1K/2階) | |||||||
![]() | 4万円 なし | なし なし | 1K 20.13m2 | 築12年 | JR常磐線 広野駅(福島) 徒歩12分 福島県双葉郡広野町大字下北迫宮田 | 詳細を見る | |
アパート パーク ビサイド中岡(1LDK/2階) | |||||||
![]() | 5.5万円 2,900円 | なし 5.5万円 | 1LDK 42.37m2 | 築18年 | 福島県いわき市中岡町2丁目 | 詳細を見る | |
アパート リトル・プラム(2LDK/2階) | |||||||
![]() | 6.2万円 4,000円 | 6.2万円 なし | 2LDK 59.83m2 | 築8年 | JR磐越東線 赤井駅 徒歩5分 福島県いわき市平赤井諸荷 | 詳細を見る | |
アパート エフォートA(2LDK/2階) | |||||||
![]() | 5.2万円 2,300円 | なし 5.2万円 | 2LDK 57.71m2 | 築14年 | 福島県いわき市中岡町5丁目 | 詳細を見る | |
アパート EDENII(1K/1階) | |||||||
![]() | 4.5万円 4,000円 | なし なし | 1K 31.57m2 | 築9年 | JR常磐線 久ノ浜駅 徒歩9分 福島県いわき市久之浜町久之浜水上 | 詳細を見る | |
アパート ハイツ・サンバレー(3DK/2階) | |||||||
![]() | 4.5万円 なし | なし なし | 3DK 50.41m2 | 築40年 | 福島県いわき市小名浜岡小名字作前 | 詳細を見る | |
アパート リアン56(1LDK/2階) | |||||||
![]() | 5.35万円 2,300円 | なし 5.35万円 | 1LDK 40.09m2 | 築12年 | 福島県いわき市小名浜岡小名高田 | 詳細を見る | |
アパート コーポラス TM(2DK/1階) | |||||||
![]() | 5.1万円 2,800円 | なし なし | 2DK 46.48m2 | 築28年 | 常磐線 泉駅(JR) 徒歩13分 福島県いわき市泉玉露1丁目 | 詳細を見る | |



/105x80-f1-q70-wp1)

/105x80-f1-q70-wp1)

/105x80-f1-q70-wp1)

/105x80-f1-q70-wp1)