賃貸マンション
ヒルブリッジヒルNO2の賃貸物件情報(2SLDK/3階)
| 家賃 | 管理費等 | 敷金 | 礼金 | 間取り | 専有面積 |
|---|---|---|---|---|---|
| 14万円 | 1万円 | なし | 28万円 | 2SLDK | 64.53m2 |
入居決定でお祝い金最大100,000円
- 保証金
- -
- 償却・敷引
- -
- 築年数
- 築43年
- 所在階
- 3階
- 向き
- 南
Point
共用部には宅配ボックスを設置しているため、外出が多い方でも荷物を受け取ることができます。
提供:大阪ハウスコム株式会社 肥後橋店

詳細情報 ヒルブリッジヒルNO2
物件紹介
ヒルブリッジヒルNO2は大阪メトロ堺筋線北浜駅から徒歩6分にあり、駅近で通勤通学に便利なマンションです。
このお部屋は2階以上に位置しているので、通行人や周囲の住人からの視線が気になりにくく、防犯面でも安心です。
人気の南向きのお部屋。角部屋でもあるため、周囲の居住者の生活音も気になりにくい場所です。バス・トイレ別の仕様で、のんびりお風呂タイムも楽しめます。
通信設備面では、インターネット接続が可能です。また、CATVにも対応しているので、おうち時間も充実するでしょう(別途工事、契約料が必要な場合あり)。
建物にはエレベーターがついているので、重い荷物があっても安心。共用部には宅配ボックスが設定されているので、不在の時にも荷物を受け取ることができます。また、ペット飼育の相談ができますので、あなたの大切な家族の一員も快適に暮らせるか、ぜひ確認してみてください。
このお部屋は2階以上に位置しているので、通行人や周囲の住人からの視線が気になりにくく、防犯面でも安心です。
人気の南向きのお部屋。角部屋でもあるため、周囲の居住者の生活音も気になりにくい場所です。バス・トイレ別の仕様で、のんびりお風呂タイムも楽しめます。
通信設備面では、インターネット接続が可能です。また、CATVにも対応しているので、おうち時間も充実するでしょう(別途工事、契約料が必要な場合あり)。
建物にはエレベーターがついているので、重い荷物があっても安心。共用部には宅配ボックスが設定されているので、不在の時にも荷物を受け取ることができます。また、ペット飼育の相談ができますので、あなたの大切な家族の一員も快適に暮らせるか、ぜひ確認してみてください。
お金・契約の情報
※「-」と表示されているものは、実際は料金が発生するものもございます。詳細はお問い合わせください。
| 家賃 | 14万円 | 管理費・共益費 | 1万円 |
|---|---|---|---|
| 敷金 | なし | 礼金 | 28万円 |
| 入居決定でお祝い金最大100,000円 | |||
| 保証金 | - | 償却・敷引 | - |
| 住宅保険料 | 1円 | 更新料 | - |
| 保証会社利用 | 必須 | 保証会社名 | クレディセゾン |
| 保証会社費用 | - | 保証会社備考 | 【契約時】賃料・共益費・駐車場の合計額の60%【月額】賃料・共益費・駐車場の合計額の1%【更新時】なし |
| 契約形態 | - | 契約期間 | 6年 |
| 入居・引渡期間 | 2026年02月下旬 | 現況 | - |
| 入居可能条件 | 事務所不可、2人入居可、楽器不可、ペット相談 | ||
| 契約備考 | 室内犬・猫相談可1匹につき敷金1ヶ月要。ペット飼育時は定期借家期間は2年。・解約予告2ヶ月前・1年未満の解約は総賃料の1ヶ月分の違約金要。 鍵交換費用:27500 室内清掃費用:85179 その他設備/条件:室内洗濯機置き場、独立洗面台、防犯カメラ、初期費用カード決済可、シューズボックス | ||
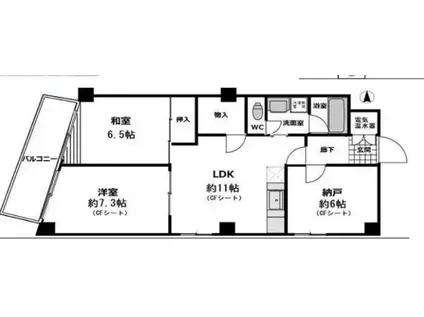
部屋の情報
| 間取り | 2SLDK | 専有面積 | 64.53m2 |
|---|---|---|---|
| 間取り詳細 | LDK(11帖)、和室(6.5帖)、S(6帖)、洋室(7.3帖) | ||
| 所在階 / 向き | 3階 / 南 | バルコニー面積 | - |
| 水道 / ガス | 水道【公営】、ガス【都市】 | ||
| 設備 | バス・トイレ別、宅配ボックス、インターネット対応、エアコン、エレベーター、角部屋、バルコニー、コンロ:ガス、CATV、シャワー、給湯 | ||
| 当社物件ID | 160076629 | ||
建物の情報
| 建物名 | ヒルブリッジヒルNO2 | ||
|---|---|---|---|
| 所在地 | 大阪府大阪市中央区東高麗橋 | ||
| 交通 | 大阪メトロ堺筋線 北浜駅(大阪) 徒歩6分 大阪メトロ谷町線 天満橋駅 徒歩9分 | ||
| 階数 | 9階建 | 総戸数 | - |
| 築年月 | 1983年12月 / 築43年 | エレベーター | あり |
| 駐車場 | 空有 3.3万円/月 | バイク置き場 | あり |
| 駐輪場 | あり | 管理人/管理会社 | 日勤 |
| 周辺環境 | 販売店 徒歩7分(523m) その他 ドラッグストア その他 公園 その他 銀行 その他 * | ||
| 建物種別 | マンション | 建物構造 | SRC(鉄骨鉄筋コンクリート) |
この部屋の取扱い不動産会社
| 会社名 | 大阪ハウスコム株式会社 天満橋店 | ||
|---|---|---|---|
| 所在地 | 大阪府大阪市中央区6-2 | 交通 | - |
| 営業時間 | 10:00~18:00 | 定休日 | - |
| 免許番号 | 国土交通大臣(3)第8685号 | 取引態様 | 仲介 |
| 不動産会社管理番号 | HC2-3127868-308-0250 | 当社管理番号 | 468 |
| 所属団体 | 、 | ||
| 取扱い物件情報 | 物件詳細へ | ||
※各種情報と現状に差異がある場合は、現状優先となります。問い合わせをすることで、より詳しい条件、情報を確認する事ができます。
提供:大阪ハウスコム株式会社 天満橋店
この物件が気になったら掲載期限まであと4日
ヒルブリッジヒルNO2に条件(家賃・エリア)が近い物件一覧
| 写真 | 家賃 管理費等 | 敷金 礼金 | 間取り 専有面積 | 築年数 | 最寄り駅 所在地 | キープ | 詳細 |
|---|---|---|---|---|---|---|---|
マンション クレストコート江坂垂水町(1DK/8階) | |||||||
| 9.4万円 8,000円 | なし なし | 1DK 25.32m2 | 新築 | 北大阪急行南北線 江坂駅 徒歩10分 阪急電鉄千里線 豊津駅(大阪) 徒歩10分 阪急電鉄千里線 吹田駅(阪急) 徒歩20分 大阪府吹田市垂水町3丁目16以下 | 詳細を見る | ||
アパート SHAMAISON FLEUR SUEHIRO(2LDK/1階) | |||||||
![]() | 10.4万円 6,000円 | 2万円 なし | 2LDK 57.59m2 | 築2年 | 近鉄奈良線 瓢箪山駅(大阪) 徒歩10分 近鉄奈良線 東花園駅 徒歩22分 近鉄奈良線 河内花園駅 徒歩30分 大阪府東大阪市末広町 | 詳細を見る | |
マンション MAXIV CROS 江坂(1LDK/2階) | |||||||
| 9.1万円 1万円 | なし なし | 1LDK 30.03m2 | 築1年 | 北大阪急行南北線 江坂駅 徒歩16分 阪急電鉄宝塚線 庄内駅(大阪) 徒歩18分 阪急電鉄宝塚線 服部天神駅 徒歩29分 大阪府吹田市芳野町8-9 | 詳細を見る | ||
一戸建て 京阪電気鉄道京阪線 古川橋駅 徒歩12分 築36年(4DK) | |||||||
![]() | 9万円 なし | なし 18万円 | 4DK 91.45m2 | 築36年 | 京阪電気鉄道京阪線 古川橋駅 徒歩12分 京阪電気鉄道京阪線 門真市駅 徒歩16分 大阪市谷町線 大日駅 徒歩17分 大阪府門真市石原町 | 詳細を見る | |
マンション 南海電鉄泉北線 深井駅 徒歩17分 築29年(3LDK/4階) | |||||||
![]() | 8.4万円 6,500円 | なし 8.4万円 | 3LDK 65.67m2 | 築29年 | 南海電鉄泉北線 深井駅 徒歩17分 南海電鉄泉北線 泉ケ丘駅 徒歩41分 南海電鉄高野線 初芝駅 徒歩43分 大阪府堺市中区東山 | 詳細を見る | |
マンション アルテーヌ浜寺元町(2LDK/2階) | |||||||
![]() | 13.4万円 1.2万円 | 2万円 28万円 | 2LDK 64m2 | 新築 | 南海電鉄南海本線 浜寺公園駅 徒歩12分 南海電鉄南海本線 諏訪ノ森駅 徒歩15分 南海電鉄南海本線 羽衣駅 徒歩19分 大阪府堺市西区浜寺元町3丁 | 詳細を見る | |
マンション ES-GRANDE江坂公園(1K/6階) | |||||||
| 9.7万円 1万円 | なし なし | 1K 33.24m2 | 築19年 | 北大阪急行南北線 江坂駅 徒歩4分 大阪市御堂筋線 江坂駅 徒歩4分 阪急電鉄千里線 豊津駅(大阪) 徒歩14分 大阪府吹田市江坂町1丁目16 | 詳細を見る | ||
アパート 阪和線 鳳駅 徒歩15分 築2年(2LDK/3階) | |||||||
![]() | 12.3万円 6,500円 | なし 12.3万円 | 2LDK 62.67m2 | 築2年 | 阪和線 鳳駅 徒歩15分 阪和線 津久野駅 徒歩16分 南海電鉄南海本線 浜寺公園駅 徒歩22分 大阪府堺市西区鳳北町8丁 | 詳細を見る | |





