賃貸アパート
リックメゾン千早 464の賃貸物件情報(1K/1階)
| 家賃 | 管理費等 | 敷金 | 礼金 | 間取り | 専有面積 |
|---|---|---|---|---|---|
| 5.3万円 | 3,000円 | なし | なし | 1K | 31.04m2 |
入居決定でお祝い金最大100,000円
- 保証金
- -
- 償却・敷引
- -
- 築年数
- 築12年
- 所在階
- 1階
- 向き
- 北東
Point
通話ボタンを押せば相手の声が聞けるので、会話したうえで直接会うかを決められるインターホンが付いております♪身支度に必要となる様々なアイテムを収納できるスペースがある洗面化粧台が付いています(^o^)
提供:(株)Lien(SUUMO経由)

詳細情報 リックメゾン千早 464
物件紹介
リックメゾン千早 464は西鉄貝塚線名島駅から徒歩6分にあり、駅近で通勤通学に便利なアパートです。
このお部屋のインターホンにはTVモニタがついているため、相手の顔を確認してから来客対応することができます。
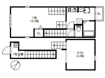
人気の角部屋で周囲の居住者の生活音も気になりにくく、また、フローリングのお部屋なのでお掃除もラクラク。室内にはウォークインクローゼットがありますので、たくさんの荷物も効率的に収納ができます。キッチンはシステムキッチン仕様になっていますので、お料理好きの方にもぴったり。また、バス・トイレは別で、のんびりお風呂タイムも楽しめるでしょう。
通信設備面では、インターネットが無料で使えるので、月々の出費を抑えられるのも魅力です。また、CATVにも対応しているので、おうち時間も充実するでしょう(別途工事、CATVの契約料等が必要な場合あり)。
このお部屋のインターホンにはTVモニタがついているため、相手の顔を確認してから来客対応することができます。
人気の角部屋で周囲の居住者の生活音も気になりにくく、また、フローリングのお部屋なのでお掃除もラクラク。室内にはウォークインクローゼットがありますので、たくさんの荷物も効率的に収納ができます。キッチンはシステムキッチン仕様になっていますので、お料理好きの方にもぴったり。また、バス・トイレは別で、のんびりお風呂タイムも楽しめるでしょう。
通信設備面では、インターネットが無料で使えるので、月々の出費を抑えられるのも魅力です。また、CATVにも対応しているので、おうち時間も充実するでしょう(別途工事、CATVの契約料等が必要な場合あり)。
お金・契約の情報
※「-」と表示されているものは、実際は料金が発生するものもございます。詳細はお問い合わせください。
| 家賃 | 5.3万円 | 管理費・共益費 | 3,000円 |
|---|---|---|---|
| 敷金 | なし | 礼金 | なし |
| 入居決定でお祝い金最大100,000円 | |||
| 保証金 | - | 償却・敷引 | - |
| 住宅保険料 | - | 更新料 | - |
| 保証会社利用 | 必須 | 保証会社名 | - |
| 保証会社費用 | - | 保証会社備考 | 保証会社利用必 初回:賃料総額×50% 更新料:なし 口振料:500円 |
| 契約形態 | - | 契約期間 | - |
| 入居・引渡期間 | 相談 | 現況 | - |
| 契約備考 | 合計1.96万円(内訳:24時間サポート0.088万円鍵交換代1.87万円) 室内清掃費用 30円 町会費 月額300円 1K 普通借家2年 損保【2万円2年】 バストイレ別、バルコニー、エアコン、フローリング、シャワー付洗面台、TVインターホン、室内洗濯置、シューズボックス、システムキッチン、追焚機能浴室、角住戸、温水洗浄便座、洗面化粧台、CATV、敷金不要、ロフト、ネット使用料不要、2駅利用可、駅徒歩10分以内、プロパンガス | ||
部屋の情報
| 間取り | 1K | 専有面積 | 31.04m2 |
|---|---|---|---|
| 所在階 / 向き | 1階 / 北東 | バルコニー面積 | - |
| 水道 / ガス | - | ||
| 設備 | バス・トイレ別、テレビドアホン、追い焚き、インターネット対応、システムキッチン、エアコン、温水洗浄便座、角部屋、バルコニー、フローリング、ロフトあり、CATV、インターネット使用料無料、洗濯機:室内 | ||
| 当社物件ID | 160149529 | ||
建物の情報
| 建物名 | リックメゾン千早 464 | ||
|---|---|---|---|
| 所在地 | 福岡県福岡市東区千早 | ||
| 交通 | 西鉄貝塚線 名島駅 徒歩6分 JR鹿児島本線 千早駅 徒歩10分 西鉄貝塚線 香椎宮前駅 徒歩19分 | ||
| 階数 | 2階建 | 総戸数 | - |
| 築年月 | 2015年01月 / 築12年 | エレベーター | - |
| 駐車場 | なし | バイク置き場 | - |
| 駐輪場 | - | 管理人/管理会社 | - |
| 周辺環境 | その他 サニーガーデンズ千早店(スーパー)まで723m その他 マルキョウ 千早店(スーパー)まで996m その他 マックスバリュエクスプレス千早駅前店(スーパー)まで979m その他 ジーユー香椎フェスティバルガーデン店(ショッピングセンター)まで1058m その他 ローソン 千早三丁目店(コンビニ)まで558m その他 セブンイレブン福岡千早4丁目店(コンビニ)まで583m | ||
| 建物種別 | アパート | 建物構造 | 木造 |
この部屋の取扱い不動産会社
| 会社名 | LIBERTE(株)(SUUMO経由) | ||
|---|---|---|---|
| 所在地 | 福岡県福岡市中央区春吉3-21-18 GEST25ビル603 | 交通 | - |
| 営業時間 | 10:00~19:00 | 定休日 | 不定期 |
| 免許番号 | 福岡県知事19496 | 取引態様 | 仲介 |
| 不動産会社管理番号 | 100480825623 | 当社管理番号 | 89 |
| 所属団体 | (公社)福岡県宅地建物取引業協会会員 | ||
| 公正取引協議会 | (一社)九州不動産公正取引協議会加盟 | ||
| 取扱い物件情報 | 物件詳細へ | ||
※各種情報と現状に差異がある場合は、現状優先となります。問い合わせをすることで、より詳しい条件、情報を確認する事ができます。
提供:LIBERTE(株)(SUUMO経由)
この物件が気になったら掲載期限まであと10日
リックメゾン千早 464に条件(家賃・エリア)が近い物件一覧
| 写真 | 家賃 管理費等 | 敷金 礼金 | 間取り 専有面積 | 築年数 | 最寄り駅 所在地 | キープ | 詳細 |
|---|---|---|---|---|---|---|---|
アパート ラシックランテ若葉台西(1LDK/1階) | |||||||
![]() | 6.3万円 3,500円 | なし 6.3万円 | 1LDK 32.46m2 | 築1年 | 鹿児島本線 春日駅(福岡) 徒歩12分 鹿児島本線 南福岡駅 徒歩21分 西鉄天神大牟田線 春日原駅 徒歩22分 福岡県春日市若葉台西1丁目 | 詳細を見る | |
マンション ウエストビレッジ春日(1LDK/2階) | |||||||
![]() | 5.2万円 3,000円 | なし 5.2万円 | 1LDK 50.22m2 | 築36年 | 博多南線 博多南駅 徒歩23分 鹿児島本線 南福岡駅 徒歩30分 福岡県春日市昇町5丁目 | 詳細を見る | |
マンション グロース春日ビル(1K/5階) | |||||||
![]() | 3.7万円 3,000円 | なし なし | 1K 20.44m2 | 築35年 | 西鉄天神大牟田線 井尻駅 徒歩18分 鹿児島本線 南福岡駅 徒歩18分 鹿児島本線 笹原駅 徒歩19分 福岡県春日市日の出町6丁目 | 詳細を見る | |
アパート 鹿児島本線 大野城駅 徒歩29分 築36年(2LDK/1階) | |||||||
![]() | 4.8万円 4,000円 | なし 4.8万円 | 2LDK 53.76m2 | 築36年 | 鹿児島本線 大野城駅 徒歩29分 福岡県春日市平田台4丁目 | 詳細を見る | |
アパート CASA(1K/2階) | |||||||
![]() | 6万円 3,000円 | なし 12万円 | 1K 26.27m2 | 築9年 | 博多南線 博多南駅 徒歩23分 鹿児島本線 南福岡駅 徒歩31分 鹿児島本線 春日駅(福岡) 徒歩35分 福岡県春日市昇町3丁目 | 詳細を見る | |
マンション 三宝ビル(3DK/1階) | |||||||
![]() | 6.6万円 なし | なし 13.2万円 | 3DK 59.08m2 | 築42年 | 鹿児島本線 南福岡駅 徒歩15分 鹿児島本線 春日駅(福岡) 徒歩17分 西鉄天神大牟田線 春日原駅 徒歩24分 福岡県春日市宝町4丁目 | 詳細を見る | |
マンション スカイタウン春日(3LDK/1階) | |||||||
![]() | 5.4万円 3,000円 | なし なし | 3LDK 60m2 | 築40年 | 博多南線 博多南駅 徒歩20分 鹿児島本線 春日駅(福岡) 徒歩33分 鹿児島本線 南福岡駅 徒歩37分 福岡県春日市一の谷6丁目 | 詳細を見る | |
アパート 鹿児島本線 水城駅 徒歩12分 築14年(2DK/2階) | |||||||
![]() | 8.5万円 2,000円 | 8.5万円 8.5万円 | 2DK 50.93m2 | 築14年 | 鹿児島本線 水城駅 徒歩12分 福岡県大野城市中央2丁目 | 詳細を見る | |








