賃貸マンション
ラグゼ東灘の賃貸物件情報(1K/2階)
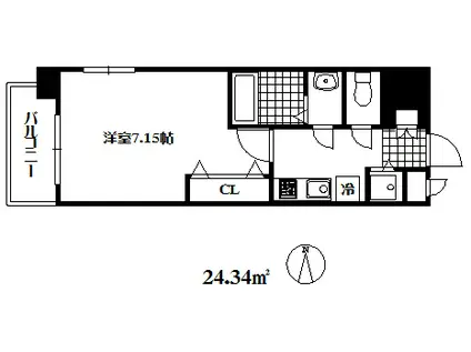
| 家賃 | 管理費等 | 敷金 | 礼金 | 間取り | 専有面積 |
|---|---|---|---|---|---|
| 6.6万円 | 6,000円 | なし | なし | 1K | 24.34m2 |
入居決定でお祝い金最大100,000円
- 保証金
- -
- 償却・敷引
- -
- 築年数
- 築7年
- 所在階
- 2階
- 向き
- -
Point
大型クローゼット!温水洗浄便座付き!初期費用クレジット決済OK!弊社なら仲介手数料半額です!
提供:センチュリー21(株)リライフ不動産販売兵庫駅前店(SUUMO経由)

詳細情報 ラグゼ東灘
物件紹介
ラグゼ東灘は阪神本線青木駅から徒歩1分にあり、駅近で通勤通学に便利なマンションです。
このお部屋は2階以上に位置しているので、通行人や周囲の住人からの視線が気になりにくく、防犯面でも安心。建物のエントランスはオートロックがついており、インターホンにはTVモニタもついているため、相手の顔を確認してから来客対応することができます。
こちらは楽器相談が可能な物件。楽器演奏をお考えの方はぜひ相談してみてください。人気の角部屋で周囲の居住者の生活音も気になりにくく、また、フローリングのお部屋なのでお掃除もラクラク。キッチンはシステムキッチン仕様になっていますので、お料理好きの方にもぴったり。バス・トイレは別なので、のんびりお風呂タイムも楽しめるでしょう。また、雨の日でも浴室乾燥機を使えば、お洗濯も問題ありません。
通信設備面では、インターネット接続が可能です。また、BSアンテナ・CSアンテナがありCATVにも対応しているので、おうち時間も充実するでしょう(別途工事、契約料が必要な場合あり)。
建物にはエレベーターがついているので、重い荷物があっても安心。共用部には宅配ボックスが設定されているので、不在の時にも荷物を受け取ることができます。
このお部屋は2階以上に位置しているので、通行人や周囲の住人からの視線が気になりにくく、防犯面でも安心。建物のエントランスはオートロックがついており、インターホンにはTVモニタもついているため、相手の顔を確認してから来客対応することができます。
こちらは楽器相談が可能な物件。楽器演奏をお考えの方はぜひ相談してみてください。人気の角部屋で周囲の居住者の生活音も気になりにくく、また、フローリングのお部屋なのでお掃除もラクラク。キッチンはシステムキッチン仕様になっていますので、お料理好きの方にもぴったり。バス・トイレは別なので、のんびりお風呂タイムも楽しめるでしょう。また、雨の日でも浴室乾燥機を使えば、お洗濯も問題ありません。
通信設備面では、インターネット接続が可能です。また、BSアンテナ・CSアンテナがありCATVにも対応しているので、おうち時間も充実するでしょう(別途工事、契約料が必要な場合あり)。
建物にはエレベーターがついているので、重い荷物があっても安心。共用部には宅配ボックスが設定されているので、不在の時にも荷物を受け取ることができます。
お金・契約の情報
※「-」と表示されているものは、実際は料金が発生するものもございます。詳細はお問い合わせください。
| 家賃 | 6.6万円 | 管理費・共益費 | 6,000円 |
|---|---|---|---|
| 敷金 | なし | 礼金 | なし |
| 入居決定でお祝い金最大100,000円 | |||
| 保証金 | - | 償却・敷引 | - |
| 住宅保険料 | - | 更新料 | - |
| 契約形態 | - | 契約期間 | - |
| 入居・引渡期間 | 相談 | 現況 | - |
| 入居可能条件 | 事務所可、楽器相談 | ||
| 契約備考 | サンシャインワーフ神戸まで435m/パル・ヤマト青木店まで374m/巡回管理/宅配ボックスも完備で安心!大型クローゼット!温水洗浄便座付き!初期費用クレジット決済OK! 1K 単身者可/楽器相談/事務所利用相談/ルームシェア相談 普通借家2年 損保【1.2万円2年】 バストイレ別、バルコニー、エアコン、ガスコンロ対応、クロゼット、フローリング、浴室乾燥機、オートロック、室内洗濯置、シューズボックス、システムキッチン、温水洗浄便座、脱衣所、エレベーター、洗面所独立、洗面化粧台、2口コンロ、宅配ボックス、防犯カメラ、全居室洋室、保証人不要、単身者相談、24時間緊急通報システム、全居室フローリング、仲手0.55ヶ月、事務所相談、24時間換気システム、楽器相談、ルームシェア相談、学生相談、耐震構造、3駅以上利用可、3沿線以上利用可、駅徒歩5分以内、全居室6畳以上、都市ガス、洗面所にドア、BS、敷金・礼金不要、保証会社利用可、IT重説対応物件、高齢者歓迎、LGBTフレンドリー、初期費用カード決済可 | ||
部屋の情報
| 間取り | 1K | 専有面積 | 24.34m2 |
|---|---|---|---|
| 所在階 / 向き | 2階 / - | バルコニー面積 | - |
| 水道 / ガス | - | ||
| 設備 | バス・トイレ別、2階以上、オートロック、宅配ボックス、浴室乾燥機、システムキッチン、エアコン、エレベーター、温水洗浄便座、バルコニー、フローリング、洗髪洗面化粧台、2口コンロ、コンロ:ガス、BSアンテナ、洗濯機:室内 | ||
| 当社物件ID | 159003813 | ||
建物の情報
| 建物名 | ラグゼ東灘 | ||
|---|---|---|---|
| 所在地 | 兵庫県神戸市東灘区青木 | ||
| 交通 | 阪神本線 青木駅 徒歩1分 JR東海道本線 摂津本山駅 徒歩15分 阪神本線 深江駅(兵庫) 徒歩15分 | ||
| 階数 | 8階建 | 総戸数 | - |
| 築年月 | 2019年10月 / 築7年 | エレベーター | あり |
| 駐車場 | 近隣 100m16000円 | バイク置き場 | - |
| 駐輪場 | - | 管理人/管理会社 | - |
| 周辺環境 | その他 セブンイレブン阪神青木駅前店(コンビニ)まで77m その他 スギ薬局本山南店(ドラッグストア)まで453m その他 神戸市立福池小学校(小学校)まで540m その他 本庄中央公園(公園)まで467m その他 サンシャインワーフ神戸(ショッピングセンター)まで435m その他 パル・ヤマト青木店(スーパー)まで374m | ||
| 建物種別 | マンション | 建物構造 | RC(鉄筋コンクリート) |
この部屋の取扱い不動産会社
| 会社名 | センチュリー21 (株)リライフ神戸三宮店(SUUMO経由) | ||
|---|---|---|---|
| 所在地 | 兵庫県神戸市中央区小野柄通5-1-13 IPSXMAGNET201 | 交通 | - |
| 営業時間 | 10:00~19:00 | 定休日 | 水曜日 |
| 免許番号 | 兵庫県知事11692 | 取引態様 | 仲介 |
| 不動産会社管理番号 | 100443291489 | 当社管理番号 | 89 |
| 所属団体 | (公社)全日本不動産協会兵庫県本部会員 | ||
| 公正取引協議会 | (公社)近畿地区不動産公正取引協議会加盟 | ||
| 取扱い物件情報 | 物件詳細へ | ||
※各種情報と現状に差異がある場合は、現状優先となります。問い合わせをすることで、より詳しい条件、情報を確認する事ができます。
提供:センチュリー21 (株)リライフ神戸三宮店(SUUMO経由)
この物件が気になったら掲載期限まであと9日
ラグゼ東灘に条件(家賃・エリア)が近い物件一覧
| 写真 | 家賃 管理費等 | 敷金 礼金 | 間取り 専有面積 | 築年数 | 最寄り駅 所在地 | キープ | 詳細 |
|---|---|---|---|---|---|---|---|
アパート ヒカルサ稲美天満Ⅱ(2LDK/2階) | |||||||
![]() | 8.35万円 3,900円 | なし 8.35万円 | 2LDK 56.44m2 | 新築 | 兵庫県加古郡稲美町六分一 | 詳細を見る | |
マンション ビレッジハウス志染(3K/4階) | |||||||
![]() | 4.7699万円 なし | なし なし | 3K 43.5m2 | 築46年 | 神戸電鉄粟生線 志染駅 徒歩19分 神戸電鉄粟生線 恵比須駅 徒歩30分 神戸電鉄粟生線 広野ゴルフ場前駅 徒歩31分 兵庫県三木市志染町西自由が丘 | 詳細を見る | |
マンション エビスマンション(2DK/2階) | |||||||
![]() | 5.8万円 なし | 5.8万円 5.8万円 | 2DK 43.99m2 | 築50年 | 神戸電鉄粟生線 恵比須駅 徒歩5分 神戸電鉄粟生線 三木上の丸駅 徒歩8分 神戸電鉄粟生線 三木駅(神戸電鉄) 徒歩16分 兵庫県三木市大塚 | 詳細を見る | |
アパート エルミタージュ(1K/2階) | |||||||
![]() | 5.4万円 5,000円 | なし なし | 1K 22.8m2 | 築1年 | 神戸電鉄粟生線 志染駅 徒歩5分 神戸電鉄粟生線 広野ゴルフ場前駅 徒歩29分 神戸電鉄粟生線 恵比須駅 徒歩30分 兵庫県三木市志染町西自由が丘 | 詳細を見る | |
一戸建て 神戸電鉄粟生線 志染駅 徒歩21分 築45年(5LDK) | |||||||
![]() | 8万円 3,000円 | 8万円 8万円 | 5LDK 82.82m2 | 築45年 | 神戸電鉄粟生線 志染駅 徒歩21分 神戸電鉄粟生線 広野ゴルフ場前駅 徒歩23分 神戸電鉄粟生線 緑が丘駅(兵庫) 徒歩32分 兵庫県三木市志染町東自由が丘3丁目 | 詳細を見る | |
アパート カーサドマーニ(ワンルーム/2階) | |||||||
![]() | 6.8万円 3,500円 | なし 15万円 | ワンルーム 31.18m2 | 築9年 | 山陽電気鉄道本線 東二見駅 徒歩8分 山陽電気鉄道本線 西二見駅 徒歩19分 兵庫県明石市二見町西二見 | 詳細を見る | |
アパート ヒカルサ稲美天満Ⅰ(1LDK/1階) | |||||||
![]() | 7.55万円 3,900円 | なし 7.55万円 | 1LDK 44.7m2 | 新築 | 兵庫県加古郡稲美町六分一 | 詳細を見る | |
マンション シーサイドパストラル林崎II(2LDK/1階) | |||||||
![]() | 8.6万円 6,000円 | なし 20万円 | 2LDK 67.12m2 | 築29年 | 山陽電気鉄道本線 林崎松江海岸駅 徒歩3分 山陽電気鉄道本線 西新町駅 徒歩23分 山陽本線 西明石駅 徒歩30分 兵庫県明石市林崎町3丁目 | 詳細を見る | |








