賃貸マンション
パルシオ三宮フラワーロードの賃貸物件情報(1K/6階)
| 家賃 | 管理費等 | 敷金 | 礼金 | 間取り | 専有面積 |
|---|---|---|---|---|---|
| 5万円 | 4,950円 | なし | 5万円 | 1K | 18.76m2 |
入居決定でお祝い金最大100,000円
- 保証金
- -
- 償却・敷引
- -
- 築年数
- 築28年
- 所在階
- 6階
- 向き
- 南
Point
保証会社加入要
提供:(株)SuMirai(SUUMO経由)

詳細情報 パルシオ三宮フラワーロード
物件紹介
パルシオ三宮フラワーロードはポートアイランド線貿易センター駅から徒歩2分にあり、駅近で通勤通学に便利なマンションです。
このお部屋は2階以上に位置しているので通行人や周囲の住人からの視線が気になりにくく、建物のエントランスはオートロックがついているので防犯性が高くなっています。
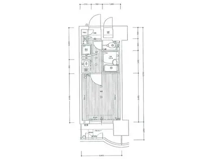
人気の南向きのお部屋。また、フローリングなのでお掃除もラクラク。キッチンはシステムキッチン仕様になっていますので、お料理好きの方にもぴったり。また、バス・トイレは別で、のんびりお風呂タイムも楽しめるでしょう。
通信設備面では、インターネット接続が可能です。また、BSアンテナ・CSアンテナがありCATVにも対応しているので、おうち時間も充実するでしょう(別途工事、契約料が必要な場合あり)。
建物にはエレベーターがついているので、重い荷物があっても安心。また、ペット飼育の相談ができますので、あなたの大切な家族の一員も快適に暮らせるか、ぜひ確認してみてください。
このお部屋は2階以上に位置しているので通行人や周囲の住人からの視線が気になりにくく、建物のエントランスはオートロックがついているので防犯性が高くなっています。
人気の南向きのお部屋。また、フローリングなのでお掃除もラクラク。キッチンはシステムキッチン仕様になっていますので、お料理好きの方にもぴったり。また、バス・トイレは別で、のんびりお風呂タイムも楽しめるでしょう。
通信設備面では、インターネット接続が可能です。また、BSアンテナ・CSアンテナがありCATVにも対応しているので、おうち時間も充実するでしょう(別途工事、契約料が必要な場合あり)。
建物にはエレベーターがついているので、重い荷物があっても安心。また、ペット飼育の相談ができますので、あなたの大切な家族の一員も快適に暮らせるか、ぜひ確認してみてください。
お金・契約の情報
※「-」と表示されているものは、実際は料金が発生するものもございます。詳細はお問い合わせください。
| 家賃 | 5万円 | 管理費・共益費 | 4,950円 |
|---|---|---|---|
| 敷金 | なし | 礼金 | 5万円 |
| 入居決定でお祝い金最大100,000円 | |||
| 保証金 | - | 償却・敷引 | - |
| 住宅保険料 | - | 更新料 | - |
| 契約形態 | - | 契約期間 | - |
| 入居・引渡期間 | 即時 | 現況 | - |
| 入居可能条件 | ペット相談 | ||
| 契約備考 | 巡回管理 1K ペット相談 普通借家2年 損保【1.5万円2年】 バストイレ別、バルコニー、エアコン、フローリング、オートロック、室内洗濯置、システムキッチン、エレベーター、駐輪場、外壁タイル張り、即入居可、敷金不要、ペット相談、分譲賃貸、2沿線利用可、保証金不要、2駅利用可、3駅以上利用可、3沿線以上利用可、駅徒歩5分以内、都市ガス | ||
部屋の情報
| 間取り | 1K | 専有面積 | 18.76m2 |
|---|---|---|---|
| 所在階 / 向き | 6階 / 南 | バルコニー面積 | - |
| 水道 / ガス | - | ||
| 設備 | バス・トイレ別、2階以上、オートロック、システムキッチン、エアコン、エレベーター、南向き、バルコニー、フローリング、洗濯機:室内 | ||
| 当社物件ID | 7385855 | ||
建物の情報
| 建物名 | パルシオ三宮フラワーロード | ||
|---|---|---|---|
| 所在地 | 兵庫県神戸市中央区浜辺通 | ||
| 交通 | ポートアイランド線 貿易センター駅 徒歩2分 JR東海道本線 三ノ宮駅(JR) 徒歩8分 阪急神戸線 神戸三宮駅(阪急) 徒歩14分 | ||
| 階数 | 12階建 | 総戸数 | - |
| 築年月 | 1998年08月 / 築28年 | エレベーター | あり |
| 駐車場 | なし | バイク置き場 | - |
| 駐輪場 | あり | 管理人/管理会社 | - |
| 周辺環境 | その他 ファミリーマート 貿易センター駅前店(コンビニ)まで170m その他 KOHYO(コーヨー) 三宮店(スーパー)まで956m その他 阪急オアシス 神戸三宮店(スーパー)まで1161m その他 三聖病院(病院)まで1187m その他 神戸市立神戸生田中学校(中学校)まで1839m その他 私立関西国際大学神戸山手キャンパス3号館(大学・短大)まで2509m | ||
| 建物種別 | マンション | 建物構造 | SRC(鉄骨鉄筋コンクリート) |
この部屋の取扱い不動産会社
| 会社名 | ホームメイトFC三宮店(有)アパマン住宅(SUUMO経由) | ||
|---|---|---|---|
| 所在地 | 兵庫県神戸市中央区三宮町1-8-1 さんプラザ112 | 交通 | - |
| 営業時間 | 10:00~19:00 | 定休日 | なし |
| 免許番号 | 兵庫県知事9090 | 取引態様 | 仲介 |
| 不動産会社管理番号 | 100482184539 | 当社管理番号 | 89 |
| 所属団体 | (一社)兵庫県宅地建物取引業協会会員 | ||
| 公正取引協議会 | (公社)近畿地区不動産公正取引協議会加盟 | ||
| 取扱い物件情報 | 物件詳細へ | ||
※各種情報と現状に差異がある場合は、現状優先となります。問い合わせをすることで、より詳しい条件、情報を確認する事ができます。
提供:ホームメイトFC三宮店(有)アパマン住宅(SUUMO経由)
この物件が気になったら掲載期限まであと11日
パルシオ三宮フラワーロードに条件(家賃・エリア)が近い物件一覧
| 写真 | 家賃 管理費等 | 敷金 礼金 | 間取り 専有面積 | 築年数 | 最寄り駅 所在地 | キープ | 詳細 |
|---|---|---|---|---|---|---|---|
アパート プレジール明石Ⅲ(1LDK/1階) | |||||||
![]() | 7.6万円 4,000円 | 2万円 なし | 1LDK 43.01m2 | 築17年 | 山陽電気鉄道本線 西新町駅 徒歩5分 山陽電気鉄道本線 林崎松江海岸駅 徒歩18分 山陽本線 明石駅 徒歩22分 兵庫県明石市硯町2 | 詳細を見る | |
マンション 東加古川ファミリーマンション103号棟(2LDK/3階) | |||||||
![]() | 4.5万円 なし | なし なし | 2LDK 48.84m2 | 築58年 | JR山陽本線 東加古川駅 徒歩20分 兵庫県加古郡稲美町中村 | 詳細を見る | |
アパート ヒカルサ稲美天満Ⅰ(2LDK/2階) | |||||||
![]() | 8.05万円 3,900円 | なし 8.05万円 | 2LDK 56.48m2 | 新築 | 兵庫県加古郡稲美町六分一 | 詳細を見る | |
マンション 阪神電鉄本線 元町駅(阪神) 徒歩4分 築30年(1K/4階) | |||||||
![]() | 4.8万円 5,000円 | なし なし | 1K 25.4m2 | 築30年 | 阪神電鉄本線 元町駅(阪神) 徒歩4分 山陽本線 神戸駅(兵庫) 徒歩7分 神戸高速鉄道東西線 花隈駅 徒歩10分 兵庫県神戸市中央区元町通6丁目 | 詳細を見る | |
アパート MSシーサイドプラザⅡ(3DK/2階) | |||||||
![]() | 5.8万円 なし | 2万円 なし | 3DK 567m2 | 築32年 | 山陽電気鉄道本線 東二見駅 徒歩9分 山陽電気鉄道本線 西二見駅 徒歩19分 山陽本線 魚住駅 徒歩31分 兵庫県明石市二見町東二見 | 詳細を見る | |
マンション ビレッジハウス志染(3DK/2階) | |||||||
![]() | 5.89万円 なし | なし なし | 3DK 54.38m2 | 築46年 | 神戸電鉄粟生線 志染駅 徒歩19分 神戸電鉄粟生線 恵比須駅 徒歩29分 神戸電鉄粟生線 広野ゴルフ場前駅 徒歩29分 兵庫県三木市志染町西自由が丘2丁目 | 詳細を見る | |
アパート 神戸電鉄粟生線 広野ゴルフ場前駅 徒歩17分 築19年(1K/1階) | |||||||
![]() | 5万円 5,000円 | なし 5万円 | 1K 29.98m2 | 築19年 | 神戸電鉄粟生線 広野ゴルフ場前駅 徒歩17分 神戸電鉄粟生線 緑が丘駅(兵庫) 徒歩19分 神戸電鉄粟生線 押部谷駅 徒歩40分 兵庫県三木市緑が丘町西2丁目 | 詳細を見る | |
アパート ジーメゾン大久保アスピダ(1LDK/2階) | |||||||
![]() | 7万円 5,000円 | なし なし | 1LDK 32.43m2 | 築1年 | 山陽本線 大久保駅(兵庫) 徒歩11分 山陽電気鉄道本線 江井ケ島駅 徒歩21分 山陽電気鉄道本線 中八木駅 徒歩29分 兵庫県明石市大久保町大窪 | 詳細を見る | |







