賃貸マンション
ハイフラッツ213の賃貸物件情報(3LDK/8階)
| 家賃 | 管理費等 | 敷金 | 礼金 | 間取り | 専有面積 |
|---|---|---|---|---|---|
| 10.4万円 | 7,500円 | 20.8万円 | なし | 3LDK | 72m2 |
入居決定でお祝い金最大100,000円
Point
忙しい朝にも嬉しい、洗面所が独立している物件。陽当たりが良いので、洗濯物が臭わずに乾きます。
提供:(株)ユニホー名古屋北営業所(SUUMO経由)

詳細情報 ハイフラッツ213
物件紹介
ハイフラッツ213は名古屋市鶴舞線浄心駅から徒歩2分にあり、駅近で通勤通学に便利なマンションです。
このお部屋は2階以上に位置しているので、通行人や周囲の住人からの視線が気になりにくく、防犯面でも安心。建物のエントランスはオートロックがついており、インターホンにはTVモニタもついているため、相手の顔を確認してから来客対応することができます。
人気の南向き・フローリングのお部屋。角部屋でもあるため、周囲の居住者の生活音も気になりにくい場所です。バス・トイレ別の仕様で、のんびりお風呂タイムも楽しめます。
通信設備面では、インターネット接続が可能です(別途工事、契約料が必要な場合あり)。
建物にはエレベーターがついているので、重い荷物があっても安心。
このお部屋は2階以上に位置しているので、通行人や周囲の住人からの視線が気になりにくく、防犯面でも安心。建物のエントランスはオートロックがついており、インターホンにはTVモニタもついているため、相手の顔を確認してから来客対応することができます。
人気の南向き・フローリングのお部屋。角部屋でもあるため、周囲の居住者の生活音も気になりにくい場所です。バス・トイレ別の仕様で、のんびりお風呂タイムも楽しめます。
通信設備面では、インターネット接続が可能です(別途工事、契約料が必要な場合あり)。
建物にはエレベーターがついているので、重い荷物があっても安心。
お金・契約の情報
※「-」と表示されているものは、実際は料金が発生するものもございます。詳細はお問い合わせください。
| 家賃 | 10.4万円 | 管理費・共益費 | 7,500円 |
|---|---|---|---|
| 敷金 | 20.8万円 | 礼金 | なし |
| 入居決定でお祝い金最大100,000円 | |||
| 保証金 | - | 償却・敷引 | - |
| 住宅保険料 | 1円 | 更新料 | - |
| 保証会社利用 | 必須 | 保証会社名 | - |
| 保証会社費用 | - | 保証会社備考 | 初回保証料:月額総賃料の50%、月額保証料:月額総賃料の1.5% |
| 契約形態 | - | 契約期間 | 2年 |
| 入居・引渡期間 | 相談 | 現況 | - |
| 入居可能条件 | 事務所不可、2人入居可、楽器不可、ペット不可 | ||
| 契約備考 | 月額(町会費 300円) 鍵交換費用:11000 その他設備/条件:室内洗濯機置き場、独立洗面台、クローゼット、シューズボックス | ||
部屋の情報
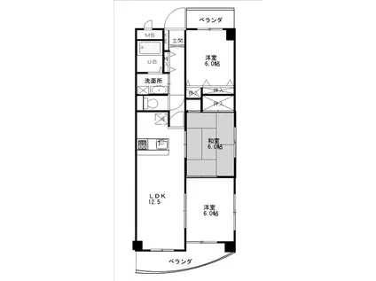
| 間取り | 3LDK | 専有面積 | 72m2 |
|---|---|---|---|
| 間取り詳細 | 和室(6帖)、洋室(6帖)、洋室(6帖)、LDK(12.5帖) | ||
| 所在階 / 向き | 8階 / 南 | バルコニー面積 | - |
| 水道 / ガス | 水道【公営】、ガス【都市】 | ||
| 設備 | バス・トイレ別、オートロック、追い焚き、インターネット対応、カウンターキッチン、エレベーター、角部屋、バルコニー、フローリング、洗髪洗面化粧台、シャワー、給湯、タイル張り | ||
| 当社物件ID | 15457617 | ||
建物の情報
| 建物名 | ハイフラッツ213 | ||
|---|---|---|---|
| 所在地 | 愛知県名古屋市西区浄心2丁目 | ||
| 交通 | 名古屋市鶴舞線 浄心駅 徒歩2分 名古屋市鶴舞線 浅間町駅 徒歩14分 | ||
| 階数 | 11階建 | 総戸数 | 21戸 |
| 築年月 | 1997年03月 / 築29年 | エレベーター | あり |
| 駐車場 | 空有 1.76万円/月 | バイク置き場 | - |
| 駐輪場 | - | 管理人/管理会社 | - |
| 周辺環境 | 販売店 徒歩9分(651m) 中学校 浄心中学校 徒歩5分(394m) 小学校 児玉小学校 徒歩6分(438m) その他 ドラッグストア その他 公園 その他 銀行 その他 三菱東京UFJ銀行 浄心支店 徒歩2分(158m) | ||
| 建物種別 | マンション | 建物構造 | SRC(鉄骨鉄筋コンクリート) |
この部屋の取扱い不動産会社
| 会社名 | ハウスコム東海株式会社 浄心店 | ||
|---|---|---|---|
| 所在地 | 愛知県名古屋市西区15-11アストラーレ浄心1階 | 交通 | - |
| 営業時間 | 10:00~18:00 | 定休日 | - |
| 免許番号 | 国土交通大臣(1)第10227号 | 取引態様 | 仲介 |
| 不動産会社管理番号 | HC2-27820-801-0125 | 当社管理番号 | 468 |
| 所属団体 | 、 | ||
| 取扱い物件情報 | 物件詳細へ | ||
※各種情報と現状に差異がある場合は、現状優先となります。問い合わせをすることで、より詳しい条件、情報を確認する事ができます。
提供:ハウスコム東海株式会社 浄心店
この物件が気になったら掲載期限まであと4日
ハイフラッツ213に条件(家賃・エリア)が近い物件一覧
| 写真 | 家賃 管理費等 | 敷金 礼金 | 間取り 専有面積 | 築年数 | 最寄り駅 所在地 | キープ | 詳細 |
|---|---|---|---|---|---|---|---|
マンション S-RESIDENCE庄内通駅前CURERE(1K/9階) | |||||||
![]() | 6.6万円 8,000円 | なし 6.6万円 | 1K 24.8m2 | 築1年 | 名古屋市鶴舞線 庄内通駅 徒歩3分 名古屋市鶴舞線 庄内緑地公園駅 徒歩16分 愛知県名古屋市西区庄内通4丁目 | 詳細を見る | |
アパート ESPRESSO新清須(1SLDK/2階) | |||||||
![]() | 8.2万円 4,000円 | なし 8.2万円 | 1SLDK 50.59m2 | 築4年 | 名鉄名古屋本線 新清洲駅 徒歩4分 名鉄名古屋本線 丸ノ内駅 徒歩14分 名鉄名古屋本線 須ケ口駅 徒歩24分 愛知県清須市新清洲3丁目 | 詳細を見る | |
マンション メイクスWアート丸の内(1LDK/13階) | |||||||
![]() | 9.76万円 8,000円 | なし 9.76万円 | 1LDK 36.07m2 | 築2年 | 名古屋市鶴舞線 丸の内駅(愛知) 徒歩9分 名古屋市桜通線 国際センター駅(愛知) 徒歩11分 愛知県名古屋市西区那古野1丁目 | 詳細を見る | |
マンション プレサンス丸の内サージュ(1LDK/9階) | |||||||
![]() | 9.16万円 1.076万円 | なし なし | 1LDK 34.72m2 | 築1年 | 名古屋市鶴舞線 丸の内駅(愛知) 徒歩8分 愛知県名古屋市西区幅下2丁目 | 詳細を見る | |
マンション S-RESIDENCE浄心イースト(1K/7階) | |||||||
![]() | 6.4万円 7,000円 | なし なし | 1K 24.15m2 | 築3年 | 名古屋市鶴舞線 浄心駅 徒歩6分 名古屋市名城線 名城公園駅 徒歩15分 名古屋市鶴舞線 浅間町駅 徒歩18分 愛知県名古屋市西区上名古屋2丁目 | 詳細を見る | |
マンション エステムコート名古屋駅前CORE(2K/10階) | |||||||
![]() | 8.4万円 1.22万円 | なし なし | 2K 32.12m2 | 築14年 | 名古屋市桜通線 国際センター駅(愛知) 徒歩6分 名古屋市鶴舞線 丸の内駅(愛知) 徒歩14分 東海道本線 名古屋駅 徒歩14分 愛知県名古屋市西区那古野2丁目 | 詳細を見る | |
マンション HANANOKI RISE(1K/7階) | |||||||
![]() | 7.3万円 7,000円 | なし 7.3万円 | 1K 30.45m2 | 築7年 | 地下鉄鶴舞線 浄心駅 徒歩5分 地下鉄鶴舞線 浅間町駅 徒歩6分 地下鉄名城線 名城公園駅 徒歩19分 愛知県名古屋市西区花の木 | 詳細を見る | |
マンション シャルマンソワレ名駅(1K/2階) | |||||||
![]() | 6.8万円 6,500円 | なし 6.8万円 | 1K 28.82m2 | 築6年 | 近鉄名古屋線 近鉄名古屋駅 徒歩8分 愛知県名古屋市西区那古野2丁目 | 詳細を見る | |







