賃貸一戸建て
京都市東西線 東野駅(京都) 徒歩12分 3階建 築29年の賃貸物件情報(3SLDK)
| 家賃 | 管理費等 | 敷金 | 礼金 | 間取り | 専有面積 |
|---|---|---|---|---|---|
| 8.8万円 | なし | 8.8万円 | 8.8万円 | 3SLDK | 80.73m2 |
入居決定でお祝い金最大100,000円
Point
大宅小学校区より戸建て 今回の物件は珍しくも数少ないオール洋室仕様となっております。
提供:株式会社 京都ライフ 山科店(賃貸スモッカ経由)

詳細情報 京都市東西線 東野駅(京都) 徒歩12分 3階建 築29年
物件紹介
京都市東西線東野駅から徒歩12分にある一戸建てです。
フローリングのお部屋なのでお掃除もラクラク。バス・トイレ別の仕様で、のんびりお風呂タイムも楽しめます。
フローリングのお部屋なのでお掃除もラクラク。バス・トイレ別の仕様で、のんびりお風呂タイムも楽しめます。
お金・契約の情報
※「-」と表示されているものは、実際は料金が発生するものもございます。詳細はお問い合わせください。
| 家賃 | 8.8万円 | 管理費・共益費 | なし |
|---|---|---|---|
| 敷金 | 8.8万円 | 礼金 | 8.8万円 |
| 入居決定でお祝い金最大100,000円 | |||
| 保証金 | - | 償却・敷引 | - |
| 住宅保険料 | 住宅保険料あり | 更新料 | - |
| 契約形態 | - | 契約期間 | 2年 |
| 入居・引渡期間 | 即時 | 現況 | 空室 |
| 契約備考 | 京都市山科区 東野エリアの分譲賃貸です。コンビニ、スーパー、ドラッグストアなど近くにあって便利ですよ。 更新料:1ヶ月 その他設備/条件:即入居可 | ||
部屋の情報
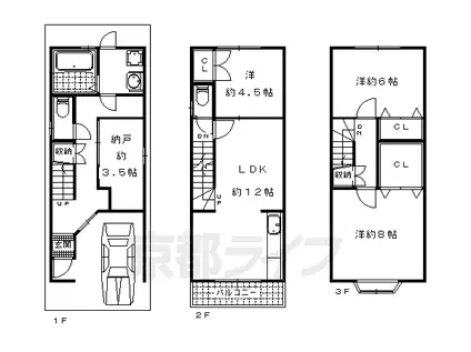
| 間取り | 3SLDK | 専有面積 | 80.73m2 |
|---|---|---|---|
| 間取り詳細 | 洋室(8帖)、洋室(6帖)、洋室(4.5帖)、その他(3.5帖)、LDK(12帖) | ||
| 所在階 / 向き | 地下階 / 西 | バルコニー面積 | - |
| 水道 / ガス | ガス【都市】 | ||
| 設備 | バス・トイレ別、エアコン、フローリング、洗濯機:室内 | ||
| 当社物件ID | 159348961 | ||
建物の情報
| 建物名 | 京都市東西線 東野駅(京都) 徒歩12分 3階建 築29年 | ||
|---|---|---|---|
| 所在地 | 京都府京都市山科区東野南井ノ上町 | ||
| 交通 | 京都市東西線 東野駅(京都) 徒歩12分 東海道本線 山科駅 徒歩23分 | ||
| 階数 | 3階建 | 総戸数 | - |
| 築年月 | 1997年12月 / 築29年 | エレベーター | - |
| 駐車場 | - | バイク置き場 | - |
| 駐輪場 | あり | 管理人/管理会社 | - |
| 建物種別 | 一戸建て | 建物構造 | 木造 |
この部屋の取扱い不動産会社
| 会社名 | 株式会社 京都ライフ 丹波橋店(賃貸スモッカ経由) | ||
|---|---|---|---|
| 所在地 | 京都市伏見区京町北7丁目1-4 | 交通 | - |
| 営業時間 | - | 定休日 | - |
| 免許番号 | 京都府知事(11)第6353号 | 取引態様 | 仲介 |
| 不動産会社管理番号 | kyotolife_17026-1-05 | 当社管理番号 | 463 |
| 所属団体 | 京都府宅地建物取引業協会\n公益社団法人近畿地区不動産公正取引協議会 | ||
| 公正取引協議会 | 全国宅地建物取引業保証協会 | ||
| 取扱い物件情報 | 物件詳細へ | ||
※各種情報と現状に差異がある場合は、現状優先となります。問い合わせをすることで、より詳しい条件、情報を確認する事ができます。
提供:株式会社 京都ライフ 丹波橋店(賃貸スモッカ経由)
この物件が気になったら掲載期限まであと6日
京都市東西線 東野駅(京都) 徒歩12分 3階建 築29年に条件(家賃・エリア)が近い物件一覧
| 写真 | 家賃 管理費等 | 敷金 礼金 | 間取り 専有面積 | 築年数 | 最寄り駅 所在地 | キープ | 詳細 |
|---|---|---|---|---|---|---|---|
マンション 東海道本線 長岡京駅 徒歩3分 築17年(1K/3階) | |||||||
![]() | 7万円 8,000円 | 5万円 20万円 | 1K 36.89m2 | 築17年 | 東海道本線 長岡京駅 徒歩3分 阪急電鉄京都線 長岡天神駅 徒歩10分 京都府長岡京市神足2丁目 | 詳細を見る | |
マンション VINA山科ウエスト(1DK/1階) | |||||||
![]() | 6.6万円 7,000円 | なし 7.3万円 | 1DK 25.33m2 | 築1年 | 京阪京津線 京阪山科駅 徒歩13分 地下鉄東西線 山科駅 徒歩13分 JR東海道本線 山科駅 徒歩16分 京都府京都市山科区厨子奥若林町 | 詳細を見る | |
マンション 東海道本線 長岡京駅 徒歩10分 築1年(2LDK/1階) | |||||||
![]() | 14.1万円 9,000円 | 3万円 28万円 | 2LDK 62.29m2 | 築1年 | 東海道本線 長岡京駅 徒歩10分 阪急電鉄京都線 長岡天神駅 徒歩14分 京都府長岡京市神足2丁目 | 詳細を見る | |
アパート ハーモニーテラス椥辻中在家町(1K/2階) | |||||||
![]() | 6.2万円 4,000円 | なし 6.2万円 | 1K 20.32m2 | 築1年 | 地下鉄東西線 椥辻駅 徒歩9分 地下鉄東西線 東野駅(京都) 徒歩13分 地下鉄東西線 小野駅(京都) 徒歩25分 京都府京都市山科区椥辻中在家町 | 詳細を見る | |
アパート 京都市東西線 椥辻駅 徒歩5分 新築(1LDK/1階) | |||||||
![]() | 6.8万円 3,000円 | なし 6.8万円 | 1LDK 27.9m2 | 新築 | 京都市東西線 椥辻駅 徒歩5分 京都市東西線 小野駅(京都) 徒歩14分 京都府京都市山科区大宅御供田町 | 詳細を見る | |
マンション 京阪電気鉄道京津線 四宮駅 徒歩4分 築13年(2LDK/1階) | |||||||
![]() | 9.2万円 4,500円 | 5万円 18万円 | 2LDK 55.85m2 | 築13年 | 京阪電気鉄道京津線 四宮駅 徒歩4分 東海道本線 山科駅 徒歩12分 京都府京都市山科区音羽草田町 | 詳細を見る | |
マンション 東海道本線 山科駅 徒歩1分 築20年(1K/2階) | |||||||
![]() | 5.7万円 3,000円 | 5万円 5万円 | 1K 28.88m2 | 築20年 | 東海道本線 山科駅 徒歩1分 京都市東西線 山科駅 徒歩1分 京都府京都市山科区上野御所ノ内町 | 詳細を見る | |
アパート 京阪電気鉄道京阪線 石清水八幡宮駅 徒歩5分 築21年(1K/2階) | |||||||
![]() | 5.8万円 7,000円 | なし なし | 1K 30.27m2 | 築21年 | 京阪電気鉄道京阪線 石清水八幡宮駅 徒歩5分 京阪電気鉄道京阪線 橋本駅(京都) 徒歩22分 京都府八幡市八幡科手 | 詳細を見る | |









