賃貸アパート
ルージュ茅ヶ崎IIの賃貸物件情報(1K/2階)
| 家賃 | 管理費等 | 敷金 | 礼金 | 間取り | 専有面積 |
|---|---|---|---|---|---|
| 4万円 | なし | なし | 4万円 | 1K | 16m2 |
入居決定でお祝い金最大100,000円
Point
まずはお問い合わせ!
不動産会社は街のプロ、あなたに合った物件がきっと見つかります。
提供:(株)太平商事元町支店(SUUMO経由)

詳細情報 ルージュ茅ヶ崎II
物件紹介
ルージュ茅ヶ崎IIはJR東海道本線茅ケ崎駅から徒歩18分にあるアパートです。
このお部屋は2階以上に位置しているので、通行人や周囲の住人からの視線が気になりにくく、防犯面でも安心です。
フローリングのお部屋なのでお掃除もラクラク。室内には多目的に利用できる人気のロフトもあり、お部屋のアレンジも自在です。バス・トイレ別の仕様で、のんびりお風呂タイムも楽しめます。
通信設備面ではCATVに対応しているので、おうち時間も充実するでしょう(別途工事、契約料が必要な場合あり)。
このお部屋は2階以上に位置しているので、通行人や周囲の住人からの視線が気になりにくく、防犯面でも安心です。
フローリングのお部屋なのでお掃除もラクラク。室内には多目的に利用できる人気のロフトもあり、お部屋のアレンジも自在です。バス・トイレ別の仕様で、のんびりお風呂タイムも楽しめます。
通信設備面ではCATVに対応しているので、おうち時間も充実するでしょう(別途工事、契約料が必要な場合あり)。
お金・契約の情報
※「-」と表示されているものは、実際は料金が発生するものもございます。詳細はお問い合わせください。
| 家賃 | 4万円 | 管理費・共益費 | なし |
|---|---|---|---|
| 敷金 | なし | 礼金 | 4万円 |
| 入居決定でお祝い金最大100,000円 | |||
| 保証金 | - | 償却・敷引 | - |
| 住宅保険料 | - | 更新料 | - |
| 保証会社利用 | 利用可 | 保証会社名 | 日本セーフティー |
| 保証会社費用 | - | 保証会社備考 | 日本セーフティー利用可 初回保証料:賃料総額の50% 継続保証料1万円/年 |
| 契約形態 | - | 契約期間 | - |
| 入居・引渡期間 | 即時 | 現況 | - |
| 契約備考 | 合計4.95万円(内訳:退去クリーニング費用(初回契約時):49,500円) 1K 単身者限定/子供不可 損保【1.8万円2年】 バストイレ別、エアコン、クロゼット、フローリング、室内洗濯置、陽当り良好、駐輪場、CATV、即入居可、閑静な住宅地、照明付、電気コンロ、ロフト、2沿線利用可、敷金2ヶ月、始発駅、当社管理物件、プロパンガス、礼金1ヶ月、保証会社利用可 | ||
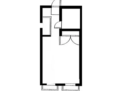
部屋の情報
| 間取り | 1K | 専有面積 | 16m2 |
|---|---|---|---|
| 所在階 / 向き | 2階 / 西 | バルコニー面積 | - |
| 水道 / ガス | - | ||
| 設備 | バス・トイレ別、2階以上、エアコン、フローリング、ロフトあり、CATV、洗濯機:室内 | ||
| 当社物件ID | 159415614 | ||
建物の情報
| 建物名 | ルージュ茅ヶ崎II | ||
|---|---|---|---|
| 所在地 | 神奈川県茅ヶ崎市南湖 | ||
| 交通 | JR東海道本線 茅ケ崎駅 徒歩18分 | ||
| 階数 | 2階建 | 総戸数 | 6戸 |
| 築年月 | 1993年04月 / 築33年 | エレベーター | - |
| 駐車場 | なし | バイク置き場 | - |
| 駐輪場 | あり | 管理人/管理会社 | - |
| 周辺環境 | その他 セブンイレブン茅ケ崎サザンビーチ店(コンビニ)まで465m その他 サザンビーチヒルズ(ショッピングセンター)まで568m その他 セブンイレブン茅ケ崎サザンビーチ店(コンビニ)まで459m その他 セブンイレブン茅ヶ崎中海岸店(コンビニ)まで614m その他 デニーズ茅ヶ崎海岸店(飲食店)まで501m その他 しゃぶ葉茅ヶ崎中海岸店(飲食店)まで455m | ||
| 建物種別 | アパート | 建物構造 | 木造 |
この部屋の取扱い不動産会社
| 会社名 | (株)太平商事元町支店(SUUMO経由) | ||
|---|---|---|---|
| 所在地 | 神奈川県茅ヶ崎市元町 4-39 小沢プラザ1階 | 交通 | - |
| 営業時間 | 10:00~17:45 | 定休日 | 水曜日 |
| 免許番号 | 神奈川県知事6566 | 取引態様 | 仲介 |
| 不動産会社管理番号 | 100456847347 | 当社管理番号 | 89 |
| 所属団体 | (公社)神奈川県宅地建物取引業協会会員 | ||
| 公正取引協議会 | (公社)首都圏不動産公正取引協議会加盟 | ||
| 取扱い物件情報 | 物件詳細へ | ||
※各種情報と現状に差異がある場合は、現状優先となります。問い合わせをすることで、より詳しい条件、情報を確認する事ができます。
提供:(株)太平商事元町支店(SUUMO経由)
この物件が気になったら掲載期限まであと2日
ルージュ茅ヶ崎IIに条件(家賃・エリア)が近い物件一覧
| 写真 | 家賃 管理費等 | 敷金 礼金 | 間取り 専有面積 | 築年数 | 最寄り駅 所在地 | キープ | 詳細 |
|---|---|---|---|---|---|---|---|
アパート 小田急小田原線 東海大学前駅 徒歩11分 築19年(1K/1階) | |||||||
![]() | 5.2万円 2,000円 | なし 5.2万円 | 1K 25.67m2 | 築19年 | 小田急小田原線 東海大学前駅 徒歩11分 小田急小田原線 鶴巻温泉駅 徒歩22分 神奈川県平塚市真田 | 詳細を見る | |
アパート レオパレススズキ(1K/2階) | |||||||
![]() | 3.8万円 5,000円 | なし なし | 1K 20.28m2 | 築25年 | 神奈川県平塚市中原3丁目 | 詳細を見る | |
アパート 六会グリーンハイツ(1K/2階) | |||||||
![]() | 4.9万円 2,000円 | 4.9万円 なし | 1K 17.06m2 | 築29年 | 小田急江ノ島線 六会日大前駅 徒歩3分 小田急江ノ島線 善行駅 徒歩10分 小田急江ノ島線 湘南台駅 徒歩20分 神奈川県藤沢市亀井野 | 詳細を見る | |
アパート コーポ石川(1K/1階) | |||||||
![]() | 3.5万円 1,000円 | 3.5万円 3.5万円 | 1K 19.83m2 | 築38年 | 小田急江ノ島線 六会日大前駅 徒歩6分 小田急江ノ島線 湘南台駅 徒歩14分 ブルーライン 下飯田駅 徒歩32分 神奈川県藤沢市亀井野 | 詳細を見る | |
マンション カレッジテラス東海大学前B棟(ワンルーム/4階) | |||||||
![]() | 6.3万円 2.1万円 | なし なし | ワンルーム 20.77m2 | 築9年 | 小田急小田原線 東海大学前駅 徒歩18分 小田急小田原線 鶴巻温泉駅 徒歩26分 小田急小田原線 秦野駅 徒歩72分 神奈川県平塚市北金目 | 詳細を見る | |
アパート JR東海道本線 平塚駅 徒歩32分 築29年(1K/1階) | |||||||
![]() | 4.3万円 3,500円 | なし なし | 1K 19.87m2 | 築29年 | JR東海道本線 平塚駅 徒歩32分 JR東海道本線 大磯駅 徒歩51分 小田急小田原線 伊勢原駅 徒歩79分 神奈川県平塚市中原 | 詳細を見る | |
アパート グランドール湘南B(2DK/1階) | |||||||
![]() | 5.8万円 1,000円 | 8.7万円 なし | 2DK 39m2 | 築32年 | 小田急江ノ島線 六会日大前駅 徒歩3分 小田急江ノ島線 湘南台駅 徒歩28分 小田急江ノ島線 善行駅 徒歩30分 神奈川県藤沢市亀井野 | 詳細を見る | |
アパート ボナール湘南台(1K/1階) | |||||||
![]() | 4.9万円 3,000円 | なし なし | 1K 18.13m2 | 築33年 | 小田急江ノ島線 湘南台駅 徒歩1分 神奈川県藤沢市湘南台 | 詳細を見る | |









