賃貸アパート
ラ・ペトレの賃貸物件情報(2LDK/2階)
| 家賃 | 管理費等 | 敷金 | 礼金 | 間取り | 専有面積 |
|---|---|---|---|---|---|
| 5.9万円 | なし | 5.9万円 | 5.9万円 | 2LDK | 76.44m2 |
入居決定でお祝い金最大100,000円
Point
当店ではご自宅にいながら、スマホ等を使っての「オンライン内見」、「オンライン重説」でのご契約手続きまで、非対面での対応が可能です!現地(物件)にいるスタッフとWebを使ってリアルタイムで内見できます。
提供:いい部屋ネット大東建託リーシング(株)広島店(SUUMO経由)

詳細情報 ラ・ペトレ
物件紹介
ラ・ペトレはJR山陽本線寺家駅から徒歩38分にあるアパートです。
このお部屋は2階以上に位置しているので、通行人や周囲の住人からの視線が気になりにくく、防犯面でも安心です。
バス・トイレ別の仕様で、のんびりお風呂タイムも楽しめます。
通信設備面ではBSアンテナがありますので、おうち時間も充実するでしょう(別途工事、契約料が必要な場合あり)。
ペット飼育の相談ができますので、あなたの大切な家族の一員も快適に暮らせるか、ぜひ確認してみてください。
このお部屋は2階以上に位置しているので、通行人や周囲の住人からの視線が気になりにくく、防犯面でも安心です。
バス・トイレ別の仕様で、のんびりお風呂タイムも楽しめます。
通信設備面ではBSアンテナがありますので、おうち時間も充実するでしょう(別途工事、契約料が必要な場合あり)。
ペット飼育の相談ができますので、あなたの大切な家族の一員も快適に暮らせるか、ぜひ確認してみてください。
お金・契約の情報
※「-」と表示されているものは、実際は料金が発生するものもございます。詳細はお問い合わせください。
| 家賃 | 5.9万円 | 管理費・共益費 | なし |
|---|---|---|---|
| 敷金 | 5.9万円 | 礼金 | 5.9万円 |
| 入居決定でお祝い金最大100,000円 | |||
| 保証金 | - | 償却・敷引 | - |
| 住宅保険料 | - | 更新料 | - |
| 保証会社利用 | 必須 | 保証会社名 | 全保連 |
| 保証会社費用 | - | 保証会社備考 | 全保連利用必 初回保証料総賃料の50% 年間更新料1.3万円 原則必須 口座振替手数料300円税 |
| 契約形態 | - | 契約期間 | - |
| 入居・引渡期間 | 即時 | 現況 | - |
| 入居可能条件 | ペット相談 | ||
| 契約備考 | ワンちゃん飼育可能各室洋室が広いメゾネット賃貸(^-^)駐車場2台込 入居用鍵2本 3本目からは有料です。ゴミ回収:業者 ゴミステーション:敷地内 小型犬1匹まで猫不可 保証会社、連帯保証人要町内会加入要(年間3000円) 2LDK 子供可/ペット相談/事務所利用不可/ルームシェア不可 損保【2.2万円2年】 バストイレ別、バルコニー、エアコン、シャワー付洗面台、室内洗濯置、シューズボックス、追焚機能浴室、角住戸、脱衣所、洗面所独立、駐輪場、閑静な住宅地、最上階、対面式キッチン、ペット相談、全居室収納、ロフト、全居室洋室、駐車2台可、バイク置場、クッションフロア、専用庭、メゾネット、浴室に窓、クロゼット2ヶ所、階段下収納、バス停徒歩3分以内、上階無し、敷地内ごみ置き場、平面駐車場、LDK12畳以上、全居室6畳以上、プロパンガス、BS、IT重説対応物件、初期費用カード決済可 敷金積み増し【ペット飼育の場合敷金2ヶ月(総額)】 | ||
部屋の情報
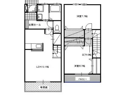
| 間取り | 2LDK | 専有面積 | 76.44m2 |
|---|---|---|---|
| 所在階 / 向き | 2階 / 南東 | バルコニー面積 | - |
| 水道 / ガス | - | ||
| 設備 | バス・トイレ別、2階以上、追い焚き、エアコン、南向き、角部屋、バルコニー、ロフトあり、洗髪洗面化粧台、BSアンテナ、専用庭、洗濯機:室内 | ||
| 当社物件ID | 101401264 | ||
建物の情報
| 建物名 | ラ・ペトレ | ||
|---|---|---|---|
| 所在地 | 広島県東広島市八本松町正力 | ||
| 交通 | JR山陽本線 寺家駅 バス乗車時間:18分 最寄りバス停で下車 徒歩3分 | ||
| 階数 | 2階建 | 総戸数 | 5戸 |
| 築年月 | 2004年12月 / 築22年 | エレベーター | - |
| 駐車場 | 空有 駐2台付 | バイク置き場 | あり |
| 駐輪場 | あり | 管理人/管理会社 | - |
| 周辺環境 | その他 ゆめマート八本松(スーパー)まで2656m その他 八本松病院(病院)まで2471m その他 東広島市役所 八本松出張所(役所)まで4350m その他 ジュンテンドー(ホームセンター)まで3048m その他 道の駅西条のん太の酒蔵(その他)まで3858m その他 ウィル(その他)まで2833m | ||
| 建物種別 | アパート | 建物構造 | 木造 |
この部屋の取扱い不動産会社
| 会社名 | いい部屋ネット大東建託リーシング(株)東広島店(SUUMO経由) | ||
|---|---|---|---|
| 所在地 | 広島県東広島市西条町御薗宇 5127 | 交通 | - |
| 営業時間 | 10:00~12:30 13:30~18:00 | 定休日 | 火曜・水曜 |
| 免許番号 | 国土交通大臣9120 | 取引態様 | 仲介 |
| 不動産会社管理番号 | 100391728986 | 当社管理番号 | 89 |
| 所属団体 | (公財)日本賃貸住宅管理協会会員 | ||
| 公正取引協議会 | (公社)首都圏不動産公正取引協議会加盟 | ||
| 取扱い物件情報 | 物件詳細へ | ||
※各種情報と現状に差異がある場合は、現状優先となります。問い合わせをすることで、より詳しい条件、情報を確認する事ができます。
提供:いい部屋ネット大東建託リーシング(株)東広島店(SUUMO経由)
この物件が気になったら掲載期限まであと11日
ラ・ペトレに条件(家賃・エリア)が近い物件一覧
| 写真 | 家賃 管理費等 | 敷金 礼金 | 間取り 専有面積 | 築年数 | 最寄り駅 所在地 | キープ | 詳細 |
|---|---|---|---|---|---|---|---|
アパート エストレビータ大芝(ワンルーム/1階) | |||||||
![]() | 4.6万円 4,000円 | 4.6万円 4.6万円 | ワンルーム 22.4m2 | 築10年 | 可部線 安芸長束駅 徒歩12分 アストラムライン 牛田駅(広島) 徒歩17分 広島県広島市西区大芝3丁目 | 詳細を見る | |
アパート 第2岩井アパート(1K/2階) | |||||||
![]() | 3.6万円 なし | 7.2万円 なし | 1K 26.08m2 | 築40年 | アストラムライン 安東駅 徒歩3分 可部線 大町駅(広島) 徒歩27分 広島県広島市安佐南区安東2丁目 | 詳細を見る | |
マンション アストラムライン 中筋駅 徒歩5分 築28年(1K/3階) | |||||||
![]() | 4.1万円 なし | 8.2万円 4.1万円 | 1K 22.68m2 | 築28年 | アストラムライン 中筋駅 徒歩5分 アストラムライン 西原駅(広島) 徒歩7分 広島県広島市安佐南区中筋1丁目 | 詳細を見る | |



